Maison à construire à La Bastide-des-Jourdans (84240)
Images
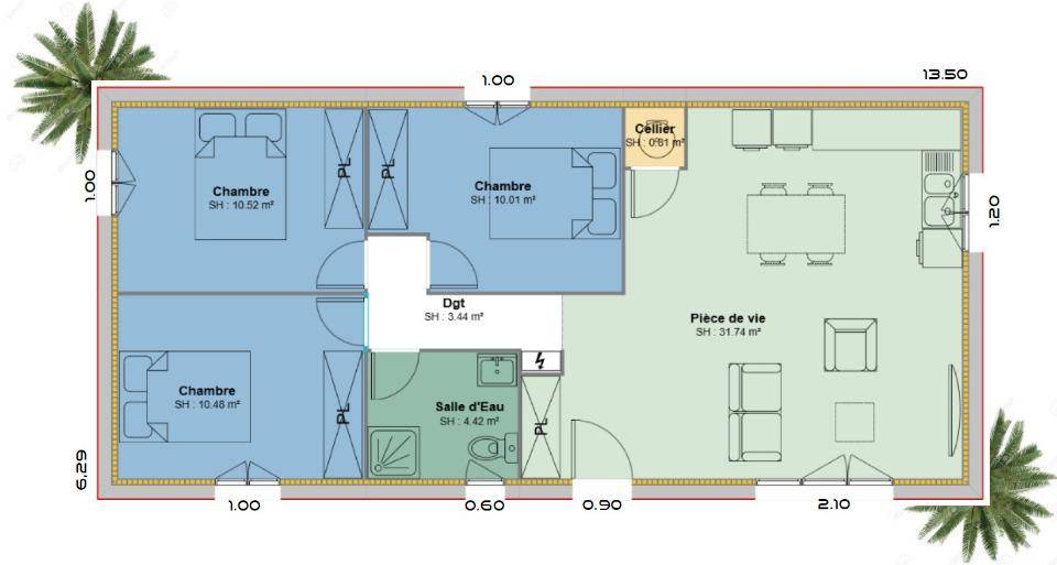
Description
Maison de 4 pièces (71 m²) en vente à La Bastide-des-Jourdans
EMPLACEMENT PRIVILÉGIÉ - MAISON 4 PIÈCES NEUVE
À vendre : nous vous présentons cette maison de 4 pièces de plain-pied de 71 m² et de 587 m² de terrain bénéficiant d'un emplacement d'exception dans La Bastide-des-Jourdans (84240). Elle propose trois chambres, une cuisine et une salle de bains.
La maison est neuve.
Cette maison est située dans un quartier convoité. L'École Primaire Edouard Arniaud est implantée à moins de 10 minutes à pied. Il y a un accès à l'autoroute A51 à 12 km. On trouve un tennis, une boulangerie, trois commerces, un bureau de poste et une épicerie à proximité.
Son prix de vente est de 279 900 €. (terrain, villa et frais de notaire compris).
Contactez notre agence (Daniel DEROCH : (Numéro supprimé)) pour obtenir de plus amples renseignements sur la maison, sur les démarches à suivre ou sur les modalités de vente. Azur & Constructions Manosque vous accompagne dans tous vos projets immobiliers et dans toutes vos démarches.
Logement susceptibles de vous intéresser
Nous vous proposons de découvrir aussi cette sélection de logements situés à moins de 10km de La Bastide-des-Jourdans et qui seraient susceptibles de vous intéresser.
La Bastide-des-Jourdans
TERRAINLa bastide des Jourdans, Résidence de qualité proche village ,école et commerces, transports en commun.Azur et Constructions DANIEL au (Numéro supprimé) vous propose :un terrain de 587 m², plat, viabilisé, bonne exposition.Prix : à partir de 140 100 € (hors frais de notaire)Vu avec notre partenaire foncierConcept clé en main et rencontrant depuis plus de 31 ans un franc succès, la formule terrain + maison fait partie de L’ADN de la société Azur et Constructions. Spécialiste de la construction de maisons individuelles fondé en 1994 à Martigues, l’entreprise familiale met à la disposition de toute sa clientèle un large choix d’annonces immobilières de terrain + modèle de maison, de plain-pied, à étage, avec ou sans garage, de style contemporain ou plus traditionnel. uvrant sur une grande partie du territoire de la région Provence-Alpes-Côte d’Azur, la société couvre le département du Vaucluse, des Hautes-Alpes, des Alpes-de-Haute-Provence, des Bouches-du-Rhône et du Gard, département de la région voisine.Pour découvrir l’ensemble des annonces de terrain + maison proposées par l’entreprise immobilière, la clientèle de la société Azur et Constructions peut consulter le catalogue disponible en ligne, via le site internet de l’entreprise. Ils ont ainsi la possibilité d’effectuer des recherches en précisant la commune, avec possibilité de s’en éloigner de plus ou moins 5 kilomètres minimum et jusqu’à 100 kilomètres. La société de construction immobilière propose également à ses clients de venir lui rendre visite dans l’une de ses 3 agences situées respectivement à Martigues, à Salon de Provence et à Plan de Campagne sur la commune de Cabriès. Les collaborateurs de chaque agence se feront un plaisir de vous présenter en détail les annonces de terrain + maison disponibles et de répondre à toutes vos questions.
La Bastide-des-Jourdans
TERRAIN ET MAISONLa Bastide-des-Jourdans : maison T4 (71 m²) en venteEmplacement privilégié – Maison neuve 4 pièces en vente à La Bastide-des-Jourdans (84240) avec une surface de 71 m² et de 587 m² de terrain. Elle inclut trois chambres, une cuisine et une salle de bains.Proche École Primaire Edouard Arniaud, tennis, boulangerie, commerces, bureau de poste et épicerie. Accès autoroute A51 à 12 km.Cette maison de 4 pièces est à vendre pour la somme de 279 900 €.(terrain, villa et frais de notaire compris).Contactez notre agence (DEROCH Daniel : (Numéro supprimé)) pour plus d’informations sur la maison.
La Bastide-des-Jourdans
TERRAINLa bastide des Jourdans, Résidence de qualité proche village ,école et commerces, transports en commun.Azur et Constructions DANIEL au (Numéro supprimé) vous propose :un terrain de 587 m², plat, viabilisé, bonne exposition.Prix : à partir de 140 100 € (hors frais de notaire)Vu avec notre partenaire foncierConcept clé en main et rencontrant depuis plus de 31 ans un franc succès, la formule terrain + maison fait partie de L’ADN de la société Azur et Constructions. Spécialiste de la construction de maisons individuelles fondé en 1994 à Martigues, l’entreprise familiale met à la disposition de toute sa clientèle un large choix d’annonces immobilières de terrain + modèle de maison, de plain-pied, à étage, avec ou sans garage, de style contemporain ou plus traditionnel. uvrant sur une grande partie du territoire de la région Provence-Alpes-Côte d’Azur, la société couvre le département du Vaucluse, des Hautes-Alpes, des Alpes-de-Haute-Provence, des Bouches-du-Rhône et du Gard, département de la région voisine.Pour découvrir l’ensemble des annonces de terrain + maison proposées par l’entreprise immobilière, la clientèle de la société Azur et Constructions peut consulter le catalogue disponible en ligne, via le site internet de l’entreprise. Ils ont ainsi la possibilité d’effectuer des recherches en précisant la commune, avec possibilité de s’en éloigner de plus ou moins 5 kilomètres minimum et jusqu’à 100 kilomètres. La société de construction immobilière propose également à ses clients de venir lui rendre visite dans l’une de ses 3 agences situées respectivement à Martigues, à Salon de Provence et à Plan de Campagne sur la commune de Cabriès. Les collaborateurs de chaque agence se feront un plaisir de vous présenter en détail les annonces de terrain + maison disponibles et de répondre à toutes vos questions.
La Bastide-des-Jourdans
TERRAIN ET MAISONCe modèle de plain pied à l’allure contemporaine est l’un des fleurons d’Azur et Constructions. Dessinée toute en harmonie, la Castellanaise est idéale pour une primo accession avec son prix maitrisé et sa surface intéressante (grand séjour, 3 chambres et garage intégré).La bastide des jourdans,Résidence de qualité proche village ,école et commerces, transports en commun.Azur et Constructions DANIEL au (Numéro supprimé) vous propose :un terrain de 804 m², plat, viabilisé, bonne exposition.Prix : à partir de 314 900 € (Villa, garage, terrain et frais de notaire compris)
La Bastide-des-Jourdans
TERRAINLa bastide des Jourdans, Résidence de qualité proche village ,école et commerces, transports en commun.Azur et Constructions DANIEL au (Numéro supprimé) vous propose :un terrain de 804 m², plat, viabilisé, bonne exposition.Prix : à partir de 148 500 € (hors frais de notaire)Vu avec notre partenaire foncierConcept clé en main et rencontrant depuis plus de 31 ans un franc succès, la formule terrain + maison fait partie de L’ADN de la société Azur et Constructions. Spécialiste de la construction de maisons individuelles fondé en 1994 à Martigues, l’entreprise familiale met à la disposition de toute sa clientèle un large choix d’annonces immobilières de terrain + modèle de maison, de plain-pied, à étage, avec ou sans garage, de style contemporain ou plus traditionnel. uvrant sur une grande partie du territoire de la région Provence-Alpes-Côte d’Azur, la société couvre le département du Vaucluse, des Hautes-Alpes, des Alpes-de-Haute-Provence, des Bouches-du-Rhône et du Gard, département de la région voisine.Pour découvrir l’ensemble des annonces de terrain + maison proposées par l’entreprise immobilière, la clientèle de la société Azur et Constructions peut consulter le catalogue disponible en ligne, via le site internet de l’entreprise. Ils ont ainsi la possibilité d’effectuer des recherches en précisant la commune, avec possibilité de s’en éloigner de plus ou moins 5 kilomètres minimum et jusqu’à 100 kilomètres. La société de construction immobilière propose également à ses clients de venir lui rendre visite dans l’une de ses 3 agences situées respectivement à Martigues, à Salon de Provence et à Plan de Campagne sur la commune de Cabriès. Les collaborateurs de chaque agence se feront un plaisir de vous présenter en détail les annonces de terrain + maison disponibles et de répondre à toutes vos questions.
La Bastide-des-Jourdans
TERRAINLa bastide des Jourdans, Résidence de qualité proche village ,école et commerces, transports en commun.Azur et Constructions DANIEL au (Numéro supprimé) vous propose :un terrain de 804 m², plat, viabilisé, bonne exposition.Prix : à partir de 148 500 € (hors frais de notaire)Vu avec notre partenaire foncierConcept clé en main et rencontrant depuis plus de 31 ans un franc succès, la formule terrain + maison fait partie de L’ADN de la société Azur et Constructions. Spécialiste de la construction de maisons individuelles fondé en 1994 à Martigues, l’entreprise familiale met à la disposition de toute sa clientèle un large choix d’annonces immobilières de terrain + modèle de maison, de plain-pied, à étage, avec ou sans garage, de style contemporain ou plus traditionnel. uvrant sur une grande partie du territoire de la région Provence-Alpes-Côte d’Azur, la société couvre le département du Vaucluse, des Hautes-Alpes, des Alpes-de-Haute-Provence, des Bouches-du-Rhône et du Gard, département de la région voisine.Pour découvrir l’ensemble des annonces de terrain + maison proposées par l’entreprise immobilière, la clientèle de la société Azur et Constructions peut consulter le catalogue disponible en ligne, via le site internet de l’entreprise. Ils ont ainsi la possibilité d’effectuer des recherches en précisant la commune, avec possibilité de s’en éloigner de plus ou moins 5 kilomètres minimum et jusqu’à 100 kilomètres. La société de construction immobilière propose également à ses clients de venir lui rendre visite dans l’une de ses 3 agences situées respectivement à Martigues, à Salon de Provence et à Plan de Campagne sur la commune de Cabriès. Les collaborateurs de chaque agence se feront un plaisir de vous présenter en détail les annonces de terrain + maison disponibles et de répondre à toutes vos questions.
La Bastide-des-Jourdans
TERRAIN ET MAISONCe modèle de plain pied à l’allure contemporaine est l’un des fleurons d’Azur et Constructions. Dessinée toute en harmonie, la Castellanaise est idéale pour une primo accession avec son prix maitrisé et sa surface intéressante (grand séjour, 3 chambres et garage intégré).La bastide des jourdans,Résidence de qualité proche village ,école et commerces, transports en commun.Azur et Constructions DANIEL au (Numéro supprimé) vous propose :un terrain de 804 m², plat, viabilisé, bonne exposition.Prix : à partir de 314 900 € (Villa, garage, terrain et frais de notaire compris)
La Bastide-des-Jourdans
TERRAIN ET MAISONMaison de 4 pièces (71 m²) en vente à La Bastide-des-JourdansEMPLACEMENT PRIVILÉGIÉ – MAISON 4 PIÈCES NEUVEÀ vendre : nous vous présentons cette maison de 4 pièces de plain-pied de 71 m² et de 587 m² de terrain bénéficiant d’un emplacement d’exception dans La Bastide-des-Jourdans (84240). Elle propose trois chambres, une cuisine et une salle de bains.La maison est neuve.Cette maison est située dans un quartier convoité. L’École Primaire Edouard Arniaud est implantée à moins de 10 minutes à pied. Il y a un accès à l’autoroute A51 à 12 km. On trouve un tennis, une boulangerie, trois commerces, un bureau de poste et une épicerie à proximité.Son prix de vente est de 279 900 €. (terrain, villa et frais de notaire compris).Contactez notre agence (Daniel DEROCH : (Numéro supprimé)) pour obtenir de plus amples renseignements sur la maison, sur les démarches à suivre ou sur les modalités de vente. Azur & Constructions Manosque vous accompagne dans tous vos projets immobiliers et dans toutes vos démarches.
Céreste
TERRAINSaisissez l’opportunité d’acquérir une parcelle de choix, classée en zone U1 (Centre Village), offrant un potentiel de construction maximal dans un emplacement privilégié. Les Points Forts de la Parcelle G243 :100% Constructible : Un terrain où votre projet prendra vie sans délai.Emprise au Sol Optimale : Le COS (Coefficient d’Occupation des Sols) permet une emprise au sol de 100%. De plus, la surface de plancher peut être supérieure à 100% grâce à la possibilité de construire sur plusieurs étages.Implantation Libre et Mitoyenne : Selon le règlement du PLU (Art. U1-7), l’implantation du futur bâtiment est libre. La construction peut s’adosser directement aux limites séparatives, permettant une construction mitoyenne aux bâtiments voisins pour une utilisation maximale de l’espace !Hauteur : Possibilité de calquer la hauteur sur celle des bâtiments voisins, avec une limite réglementaire généreuse de 12 mètres.Note Spéciale Monument Historique :La parcelle est située à proximité de la Chapelle des Pénitents, mais celle-ci n’est pas classée, ce qui n’impacte pas la constructibilité. Attention : La parcelle G243 est soumise à une servitude de protection des Monuments Historiques. Toutes modifications, constructions sur les façades et toitures nécessiteront une demande d’urbanisme spécifique. Un gage d’intégration architecturale de qualité ! Localisation :Zone : U1 (Cœur de Village)Parcelle : G243Ne manquez pas cette chance unique de développer un projet immobilier au cœur de la commune !Cette annonce référence 313942 vous est présentée par votre agent commercial BSK Immobilier FRANÇOISE CAZORLA (EI) immatriculé au RSAC de MANOSQUE (04100) sous le numéro 8(Numéro supprimé)010.Prix du bien : 70 000,00 €Les honoraires d’agence sont à la charge du vendeur.Les informations sur les risques auxquels ce bien est exposé sont disponibles sur le site Géorisques : www.georisques.gouv.fr
L’actualité immobilière à La Bastide-des-Jourdans
27/11/2023
02/11/2023
30/10/2023
20/10/2023
16/10/2023
16/10/2023