Maison à construire à Le Thor (84250)
Images
Description
Maison T4 (83 m²) en vente au Thor
PROCHE D'AVIGNON - MAISON 4 PIÈCES NEUVE
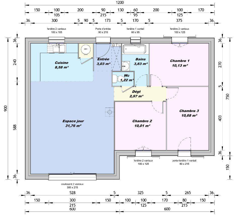
À 42 km de la côte méditerranéenne et à quelques kilomètres d'Avignon, nous vous proposons cette maison de 4 pièces de plain-pied de 83 m² et de 490 m² de terrain en vente au Thor (84250).
Elle compte trois chambres, une cuisine et une salle de bains. Cette maison est neuve.
On trouve cinq établissements scolaires à moins de 10 minutes à pied, tout comme deux crèches. Côté transports en commun, il y a la gare Le Thor à proximité. L'autoroute A7 et la nationale N129 sont accessibles à moins de 8 km. On trouve une bibliothèque, un tennis, des boulangeries, des commerces, deux supermarchés, trois boucheries-charcuteries et une épicerie dans les environs. Le marché Place du marché anime les environs tous les samedis matin.
Elle est à vendre pour la somme de 325 000 €.
N'hésitez pas à prendre contact avec Driss LAMTALSI pour toute information sur le bien, sur les modalités de vente ou sur les démarches à suivre. Contacter Mr Lamtalsi au (Numéro supprimé)
Logement susceptibles de vous intéresser
Nous vous proposons de découvrir aussi cette sélection de logements situés à moins de 10km de Le Thor et qui seraient susceptibles de vous intéresser.
L'Isle-sur-la-Sorgue
TERRAIN ET MAISONconfortable et parfaitement adapté au quotidien. Dès l’entrée, un porche couvert mène à une grande pièce de vie lumineuse avec cuisine ouverte, idéale pour les moments en famille ou entre amis.Côté nuit, trois chambres avec rangements intégrés, une salle de bains et des WC séparés complètent l’ensemble. Un cellier et un garage intégré apportent praticité et confort supplémentaire.Classée DPE A, cette maison bénéficie d'une excellente performance énergétique, vous assurant confort thermique toute l’année et économies au quotidien.Un bien fonctionnel, moderne et économe, à découvrir rapidement.AnnonceContactez-nous au (Numéro supprimé).Frais de notaire non compris.Cette annonce a été créée et diffusée avec le logiciel VITAHOME.
L'Isle-sur-la-Sorgue
TERRAIN ET MAISONDécouvrez cette maison à étage de 137 m²Rez-de-chaussée :• Suite parentale avec salle d'eau et dressing privatifs, offrant intimité et confort.• Grand espace de vie ouvert et lumineux.• Cuisine moderne avec cellier attenant.• Garage intégré avec accès direct à la maison.À l'étage :• Un couloir avec vide sur séjour, apportant luminosité et sensation d’espace.• Trois chambres avec rangements intégrés.• Salle de bain fonctionnelle, idéale pour toute la famille.Points forts :• Chauffage gainable pour un confort thermique.• DPE A, garantissant une consommation réduite.• Panneaux solaires pour une production d’énergie verte.• Matériaux de qualité, assurant durabilité et confort toute l’année.Située dans un quartier calme et proche des commodités.Contactez-nous au (Numéro supprimé).Frais de notaire non compris.Cette annonce a été créée et diffusée avec le logiciel VITAHOME.
Pernes-les-Fontaines
TERRAIN ET MAISONDans un quartier recherché, maison moderne de 125 m² habitable en DPE A.La propriété dispose d'un joli jardin arboré et d’une grande terrasse exposé sud. La maison s'étend sur 2 niveaux. Le rez-de-chaussée s'ouvre sur un hall d'entrée et un bel espace de vie de 60 m2 qui offre cuisine américaine, salon/séjour, cellier avec accès au garage.L'espace nuit offre 4chambres réparties sur 2 étages, 3 salles de bains, 2 grands dressings.Bien rare, sans vis-à-vis, qui offre un confort absolu, à deux pas des commerces et écoles. Un véritable coup de cœur.Contactez-nous au (Numéro supprimé).Frais de notaire non compris.Cette annonce a été créée et diffusée avec le logiciel VITAHOME.
L'Isle-sur-la-Sorgue
TERRAIN ET MAISONDans un cadre résidentiel recherché, découvrez cette maison neuve de 158 m² au design résolument moderne. Pensée pour offrir un confort optimal au quotidien, elle conjugue esthétisme, performance énergétique et équipements haut de gamme.Conforme à la norme RE 2020, cette maison est équipée de panneaux solaires, d’un chauffage gainable performant et bénéficie d’un DPE A, vous garantissant une consommation énergétique maîtrisée.Son agencement harmonieux met à l’honneur les volumes, avec une belle pièce de vie traversante, une suite parentale indépendante, un coin nuit pour les enfants et un bureau, idéal pour le télétravail.Parfaite pour une famille à la recherche d’espace, de lumière et d’économies d’énergie.Contactez-nous au (Numéro supprimé).Frais de notaire non compris.Cette annonce a été créée et diffusée avec le logiciel VITAHOME.
Pernes-les-Fontaines
TERRAIN ET MAISONLaissez-vous séduire par cette maison contemporaine à demi-étage, pensée pour conjuguer design, fonctionnalité et confort de vie au quotidien.Dès l’entrée, un hall accueillant vous plonge dans une atmosphère chaleureuse et moderne. L’espace se prolonge sur un vaste séjour lumineux, ouvert sur le jardin grâce à trois grandes baies vitrées qui inondent la pièce de lumière naturelle. La cuisine ouverte, parfaitement intégrée, crée un espace de vie fluide et convivial de plus de 50 m².Au rez-de-chaussée, vous bénéficiez d’un véritable espace nuit parental, avec une belle suite composée d’une chambre spacieuse, d’un dressing et d’une salle d’eau privative. Un espace intime, isolé du reste de la maison, idéal pour les parents en quête de calme.Le demi-niveau supérieur accueille deux chambres confortables, toutes bien agencées, ainsi qu’une salle de bain familiale avec baignoire et douche selon vos envies.Contactez-nous au (Numéro supprimé).Frais de notaire non compris.Cette annonce a été créée et diffusée avec le logiciel VITAHOME.
Pernes-les-Fontaines
TERRAIN ET MAISONConçue pour offrir une qualité de vie optimale, elle propose un bel espace de vie baigné de lumière, idéal pour les moments en famille ou entre amis. La suite parentale, située au rez-de-chaussée, dispose de sa propre salle d’eau ainsi que d’un dressing, pour une intimité préservée et un quotidien facilité. Un hall d’entrée accueillant avec WC indépendant et un garage intégré complètent le niveau principal.À l’étage, deux grandes chambres avec rangements viennent prolonger l’espace nuit, accompagnées d’une salle de bain et de WC séparés. L’ensemble offre un agencement fonctionnel, pensé pour le confort de toute la famille.Économe en énergie, bien isolée et équipée de prestations de qualité, cette maison réunit tous les atouts d’une construction contemporaine tournée vers l’avenir.Contactez-nous au (Numéro supprimé).Frais de notaire non compris.Cette annonce a été créée et diffusée avec le logiciel VITAHOME.
L'Isle-sur-la-Sorgue
TERRAIN ET MAISONMaison moderne et éco-performante, avec une performance énergétique DPE A.Caractéristiques principales :Rez-de-chaussée :- Espace de vie lumineux de 40 m²,- Suite parentale avec salle d’eau et dressing,- Hall d’entrée avec WC indépendant,- Garage.Étage :- Deux chambres spacieuses avec espace rangement,- Salle de bain et WC indépendant,- Villas alliant confort, modernité et faible consommation énergétique.Contactez-nous au (Numéro supprimé).Frais de notaire non compris.Cette annonce a été créée et diffusée avec le logiciel VITAHOME.
Velleron
TERRAIN ET MAISONDans quartiers prisés, découvrez cette maison traditionnelle de 125 m² habitables, implantée sur une belle parcelle arborée.Dès l’entrée, vous serez charmé par le vaste espace de vie lumineux de 60 m², intégrant une cuisine américaine ouverte sur un séjour chaleureux, idéal pour recevoir. Un cellier attenant donne directement accès au garage, pour un quotidien facilité.Réparties sur 2 niveaux, les 4 chambres offrent un confort optimal, accompagnées de 3 salles de bains et 2 dressings spacieux, parfaits pour toute la famille.À l’extérieur, profitez d’un jardin intimiste sans vis-à-vis et d’une grande terrasse plein sud, pour des moments de détente en toute quiétude.Un bien rare sur le secteur, proche de toutes les commodités et des écoles.Contactez-nous au (Numéro supprimé).Frais de notaire non compris.Cette annonce a été créée et diffusée avec le logiciel VITAHOME.
Entraigues-sur-la-Sorgue
TERRAIN ET MAISONOffrez-vous une maison pensée pour votre qualité de vie :- Un grand espace de vie lumineux.- 2 chambres confortables avec rangements.- Une salle de bains avec douche italienne et WC séparé.- Un dégagement avec placards intégrés.- Un cellier attenant à la cuisine.- Des équipements performants : panneaux solaires, excellente isolation, DPE A.Idéale pour une famille souhaitant allier modernité et responsabilité écologique.Contactez-nous au (Numéro supprimé).Frais de notaire non compris.Cette annonce a été créée et diffusée avec le logiciel VITAHOME.
L’actualité immobilière à Le Thor
27/11/2023
02/11/2023
30/10/2023
20/10/2023
16/10/2023
16/10/2023