Maison à construire à Sorgues (84700)
Images
Description
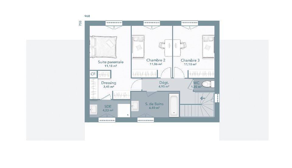
Maison F6 (130 m²) en vente à Sorgues
IDÉALEMENT SITUÉE - MAISON 6 PIÈCES NEUVE
À deux pas d'Avignon, en vente idéalement située dans Sorgues (84700), notre agence Maisons France Confort Le Pontet est heureuse de vous proposer cette maison de 6 pièces de 130 m². Son intérieur propose quatre chambres, une cuisine et trois salles de bains.
Le terrain de cette maison s'étend sur 900 m².
C'est une maison de 2 niveaux. Elle est neuve.
La maison se trouve dans un secteur recherché. Plusieurs établissements scolaires (maternelle, primaire et collège) sont implantés à moins de 10 minutes à pied. Côté transports, on trouve huit gares à moins de 10 minutes en voiture. L'autoroute A7 est accessible à 4 km. Il y a un tennis, une bibliothèque, des commerces, des boulangeries, trois supermarchés, deux épiceries et trois boucheries-charcuteries dans les environs. Le marché Centre-Ville anime le quartier tous les dimanches matin.
Son prix de vente est de 445 000 €.
Prenez contact avec Julien FANTOZZI (tél : (Numéro supprimé)) pour plus de renseignements sur la maison ou sur les modalités de vente.
Logement susceptibles de vous intéresser
Nous vous proposons de découvrir aussi cette sélection de logements situés à moins de 10km de Sorgues et qui seraient susceptibles de vous intéresser.
Sorgues
TERRAINVENTE d’un terrain de 900 m² à SorguesIDÉALEMENT SITUÉ – VUE SANS VIS-À-VISEn vente à quelques kilomètres d’Avignon à Sorgues (84700), grand terrain. Réalisez-y votre projet de construction. Ce terrain, avec une exposition sud, profite d’une vue sans vis-à-vis. Dans un secteur convoité, ce terrain idéalement situé est proche des commerces et des écoles. Plusieurs écoles (maternelle, primaire et collège) sont implantées à moins de 10 minutes à pied. Niveau transports en commun, on trouve huit gares à moins de 10 minutes en voiture. Il y a un accès à l’autoroute A7 à 4 km. Il y a un tennis, une bibliothèque, des commerces, des boulangeries, trois supermarchés, un bureau de poste et trois boucheries-charcuteries dans les environs. Ne manquez pas le marché Centre-Ville chaque dimanche matin.Ce terrain est à vendre pour la somme de 175 000 €. Contactez Julien FANTOZZI ((Numéro supprimé)) pour obtenir de plus amples informations sur le terrain. Maisons France Confort Le Pontet vous accompagne dans tous vos projets immobiliers et à toutes les étapes de l’achat.
Sorgues
TERRAIN ET MAISONSorgues : maison T4 (80 m²) à vendreIDÉALEMENT SITUÉE – MAISON 4 PIÈCES NEUVEÀ vendre à quelques kilomètres d’Avignon, nous vous présentons, idéalement située dans Sorgues (84700), cette maison de 4 pièces de plain-pied de 80 m² et de 900 m² de terrain. Elle se divise en trois chambres, une cuisine et une salle de bains.Cette maison est neuve.Cette maison se trouve dans un secteur recherché. Plusieurs établissements scolaires (maternelle, primaire et collège) sont implantés à moins de 10 minutes à pied. Niveau transports, on trouve huit gares à moins de 10 minutes en voiture. L’autoroute A7 est accessible à 4 km. Il y a un tennis, une bibliothèque, des commerces, des boulangeries, trois supermarchés, trois boucheries-charcuteries et deux épiceries à quelques minutes à peine. Le marché Centre-Ville a lieu tous les dimanches matin.Son prix de vente est de 319 000 €.N’hésitez pas à prendre contact avec Julien FANTOZZI (tél : (Numéro supprimé)) pour obtenir de plus amples informations sur la maison, sur les démarches à suivre ou sur les modalités de vente. Maisons France Confort Le Pontet vous accompagne à toutes les étapes de votre projet et dans tous vos projets immobiliers.
Sorgues
TERRAIN ET MAISONMaison F6 (130 m²) en vente à SorguesIDÉALEMENT SITUÉE – MAISON 6 PIÈCES NEUVEÀ deux pas d’Avignon, en vente idéalement située dans Sorgues (84700), notre agence Maisons France Confort Le Pontet est heureuse de vous proposer cette maison de 6 pièces de 130 m². Son intérieur propose quatre chambres, une cuisine et trois salles de bains.Le terrain de cette maison s’étend sur 900 m².C’est une maison de 2 niveaux. Elle est neuve.La maison se trouve dans un secteur recherché. Plusieurs établissements scolaires (maternelle, primaire et collège) sont implantés à moins de 10 minutes à pied. Côté transports, on trouve huit gares à moins de 10 minutes en voiture. L’autoroute A7 est accessible à 4 km. Il y a un tennis, une bibliothèque, des commerces, des boulangeries, trois supermarchés, deux épiceries et trois boucheries-charcuteries dans les environs. Le marché Centre-Ville anime le quartier tous les dimanches matin.Son prix de vente est de 445 000 €.Prenez contact avec Julien FANTOZZI (tél : (Numéro supprimé)) pour plus de renseignements sur la maison ou sur les modalités de vente.
Sorgues
TERRAIN ET MAISONMaison de 4 pièces (95 m²) en vente à SorguesIDÉALEMENT SITUÉE – MAISON 4 PIÈCES NEUVEÀ vendre : à deux pas d’Avignon, venez découvrir cette maison de 4 pièces de plain-pied de 95 m² idéalement située dans Sorgues (84700).Elle inclut trois chambres, une cuisine et deux salles de bains. Cette maison est neuve.Le terrain de la propriété s’étend sur 900 m².La maison est située dans un secteur convoité. Il y a plusieurs écoles (maternelle, primaire et collège) à moins de 10 minutes à pied. Niveau transports, on trouve huit gares à moins de 10 minutes en voiture. L’autoroute A7 est accessible à 4 km. Il y a un tennis, une bibliothèque, des commerces, des boulangeries, trois supermarchés, trois boucheries-charcuteries et deux épiceries dans les environs. Ne manquez pas le marché Centre-Ville chaque dimanche matin.Elle est proposée à l’achat pour 339 000 €.Prenez contact avec notre agence (Julien FANTOZZI : (Numéro supprimé)) pour tout renseignement sur la maison et sur les modalités de vente.
Sorgues
TERRAIN ET MAISONVENTE d’une maison de 4 pièces (73 m²) à SorguesIDÉALEMENT SITUÉE – MAISON 4 PIÈCES NEUVEÀ vendre à deux pas d’Avignon, notre agence Maisons France Confort Le Pontet est ravie de vous présenter, idéalement située dans Sorgues (84700), cette maison de 4 pièces de plain-pied de 73 m².Conçue de plain-pied, elle se divise en trois chambres, une cuisine et une salle de bains. Cette maison est neuve.Le terrain de la propriété s’étend sur 900 m².La maison est située dans un quartier convoité. Plusieurs établissements scolaires (maternelle, primaire et collège) sont implantés à moins de 10 minutes à pied. Côté transports en commun, il y a huit gares à moins de 10 minutes en voiture. On trouve un accès à l’autoroute A7 à 4 km. On trouve un tennis, une bibliothèque, des commerces, des boulangeries, trois supermarchés, deux épiceries et un bureau de poste dans les environs. Le marché Centre-Ville a lieu tous les dimanches matin.Elle est proposée à l’achat pour 289 000 €.Contactez Julien FANTOZZI ((Numéro supprimé)) pour toute question sur la maison. Maisons France Confort Le Pontet vous accompagne dans toutes vos démarches et dans tous vos projets immobiliers.
Monteux
TERRAINTerrain viabilisé, sécurisé, calme !Prix : 129900 €.Sur ce terrain de 345 m² à MONTEUX, VILLAS PRISME vous propose de réaliser votre projet de construction de maison individuelle.Avec VILLAS PRISME, vous pouvez personnaliser votre projet de maison sur mesure :- Plan et distribution- Système de chauffage au choix- Prestations et équipements selon vos souhaits : carrelages, faïence, menuiseries, salles de bains…- Mode constructif et matériaux selon les normes en vigueur Demandez une étude gratuite et personnalisée de votre projet de construction sur ce terrain à MONTEUX ! Prix hors frais de notaire. Terrain sélectionné et vu pour vous sous réserve de disponibilité et au prix indiqué par notre partenaire foncier. Non mandaté pour la vente du terrain. Visuels non contractuels.Cette annonce a été créée et diffusée avec le logiciel VITAHOME.
Monteux
TERRAINTerrain viabilisé, sécurisé, calme !Prix : 129900 €.Sur ce terrain de 363 m² à MONTEUX, VILLAS PRISME vous propose de réaliser votre projet de construction de maison individuelle.Avec VILLAS PRISME, vous pouvez personnaliser votre projet de maison sur mesure :- Plan et distribution- Système de chauffage au choix- Prestations et équipements selon vos souhaits : carrelages, faïence, menuiseries, salles de bains…- Mode constructif et matériaux selon les normes en vigueur Demandez une étude gratuite et personnalisée de votre projet de construction sur ce terrain à MONTEUX ! Prix hors frais de notaire. Terrain sélectionné et vu pour vous sous réserve de disponibilité et au prix indiqué par notre partenaire foncier. Non mandaté pour la vente du terrain. Visuels non contractuels.Cette annonce a été créée et diffusée avec le logiciel VITAHOME.
Sorgues
TERRAINFiche N°Id-TCT165919 : SORGUES Fiche BC165919 : Sorgues, Terrain de 162 m2 – – Equipements annexes : – chauffage : Aucun – Plus d’informations disponibles sur demande… – Mentions légales : Proposé à la vente à 60000 Euros (honoraires à la charge du vendeur) – Reseau Immo-Diffusion Sorgues – Pour plus d’informations, contactez notre secrétariat au (Numéro supprimé) (Appel gratuit ou prix d’une communication locale) – Les informations sur les risques auxquels ce bien est exposé sont disponibles sur le site Géorisques : www.georisques.gouv.fr
Monteux
TERRAINCe terrain de 350 m2, situé hors lotissement à Monteux, bénéficie d’une exposition plein sud. Dans un quartier tranquille, proche du centre, il offre la possibilité de construire une maison uniquement de plain-pied. Les viabilités à proximité, comme son prix plus que contenu, la liberté de choix du constructeur vous permettront de réaliser le projet qui vous ressemble. Il n’y en a qu’un !!!!A SAISIR 110 000 euros HAI.Pour visiter et vous accompagner dans votre projet, contactez Philippe BORG, au (Numéro supprimé) ou, par courriel à (Email supprimé).Selon l’article L.561.5 du Code Monétaire et Financier, pour l’organisation de la visite, la présentation d’une pièce d’identité vous sera demandée.Cette présente annonce a été rédigée sous la responsabilité éditoriale de Philippe BORG agissant sous le statut d’agent commercial immatriculé au RSAC AVIGNON 390 568 400 auprès de SAS PROPRIETES PRIVEES, au capital de 44 920 euros, ZAC LE CHÊNE FERRÉ – 44 ALLÉE DES CINQ CONTINENTS 44120 VERTOU; SIRET 487 624 777 00040, RCS Nantes. Carte Professionnelle Transactions sur immeubles et fonds de commerce (T) et Gestion immobilière (G) n°CPI 4401 2016 000 010 388 délivrée par la CCI Nantes – Saint Nazaire. Compte séquestre n(Numéro supprimé)67 BPA SAINT-SEBASTIEN-SUR-LOIRE (44230). Garantie GALIAN-SMABTP – 89 rue de la Boétie, 75008 Paris – n°28137 J pour 2 000 000 euros pour T et 120 000 euros pour G. Assurance responsabilité civile professionnelle par GALIAN-SMABTP n° de police 28137.JMandat réf 422051 – Le professionnel garantit et sécurise votre projet immobilier. Philippe BORG (EI) Agent Commercial – Numéro RSAC : AVIGNON 390 568 400 – .Les informations sur les risques auxquels ce bien est exposé sont disponibles sur le site Géorisques : www. georisques. gouv. fr
L’actualité immobilière à Sorgues
27/11/2023
02/11/2023
30/10/2023
20/10/2023
16/10/2023
16/10/2023