Maison à construire à Sainte-Cécile-les-Vignes (84290)
Images
Description
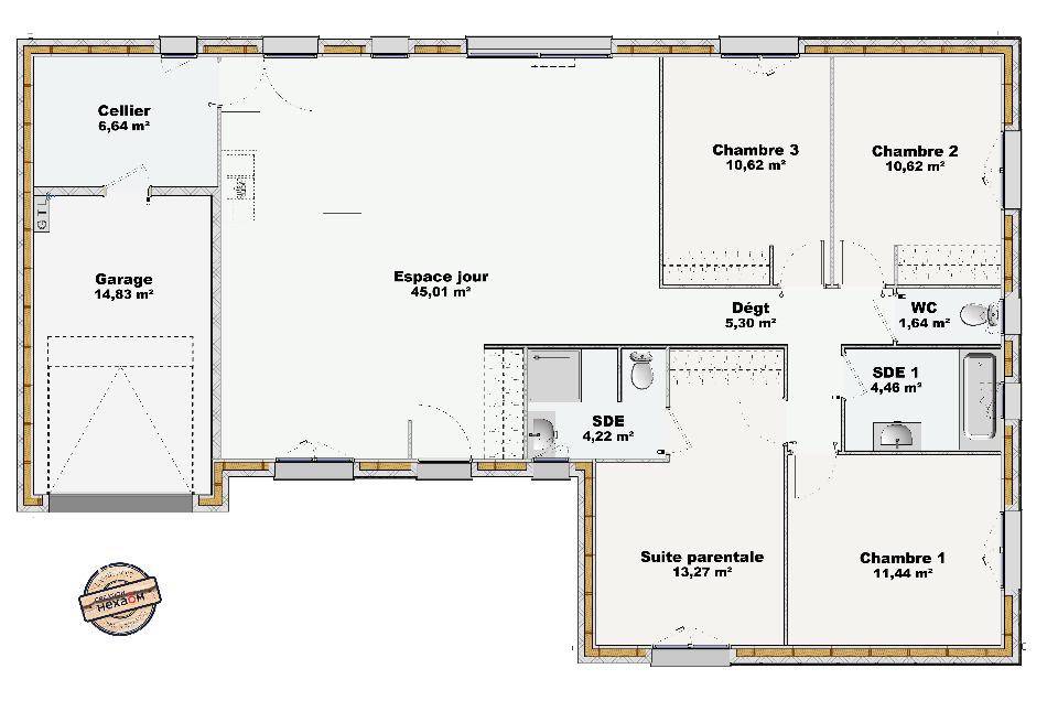
LUMI 113 - Une maison lumineuse et fonctionnelle, pensée pour votre bien-être
Maisons France Confort vous propose la LUMI 113, un modèle de maison de plain-pied à ossature bois, alliant esthétique, confort et performance. Conçue pour favoriser la lumière naturelle, cette maison offre un cadre de vie chaleureux et agréable au quotidien.
Sa pièce de vie principale, d'une surface de 45,01 m², s'ouvre largement sur l'extérieur, créant un espace convivial et accueillant. L'ossature bois assure une excellente isolation thermique et acoustique, tout en apportant une touche naturelle et douce à l'ensemble.
La maison comprend trois chambres, dont une suite parentale avec salle d'eau privative, garantissant à chacun son espace d'intimité. L'agencement a été pensé pour simplifier le quotidien : un cellier fonctionnel, un garage intégré, deux salles d'eau, des toilettes séparées et un dégagement central facilitent la circulation entre les pièces.
LUMI 113 offre également de nombreuses options pour répondre à vos envies de modernité : volets roulants électriques, centralisation des ouvertures, solutions domotiques... Autant d'équipements pour améliorer le confort de votre foyer.
Pour plus d'informations sur ce modèle ou pour découvrir d'autres projets personnalisables, n'hésitez pas à contacter votre conseiller en construction :
Olivier PUAUX - (Numéro supprimé)
Maisons France Confort
Il vous accompagnera avec plaisir dans toutes les étapes de votre projet de construction.
Logement susceptibles de vous intéresser
Nous vous proposons de découvrir aussi cette sélection de logements situés à moins de 10km de Sainte-Cécile-les-Vignes et qui seraient susceptibles de vous intéresser.
Suze-la-Rousse
TERRAIN ET MAISONMaison de 3 pièces (60 m²) en vente à Suze-la-RousseEMPLACEMENT PRIVILÉGIÉ – MAISON 3 PIÈCES NEUVEÀ vendre : à quelques kilomètres de Montélimar, notre agence Maisons France Confort Montélimar est ravie de vous proposer, bénéficiant d’un emplacement d’exception dans Suze-la-Rousse (26790), cette maison de 3 pièces de plain-pied de 60 m² et de 344 m² de terrain.Son intérieur est composé de deux chambres, d’une cuisine et d’une salle de bains. La maison est neuve.La maison se situe dans un quartier attractif. Trois établissements scolaires se trouvent à moins de 10 minutes à pied, tout comme dont le Collège Do Mistrau et l’École Primaire Suze la Rousse. L’autoroute A7 est accessible à 8 km. Il y a une bibliothèque, un tennis, deux boulangeries, trois commerces, trois épiceries, deux boucheries-charcuteries et un bureau de poste à quelques minutes du logement. Ne manquez pas le marché Place du Champ de Mars chaque vendredi matin.Son prix de vente est de 193 900 €.Contactez notre agence (florian DUBOIS : (Numéro supprimé)) pour toute information sur la maison ou sur les modalités de vente. Concrétisez vos projets immobiliers avec Maisons France Confort Montélimar.
Suze-la-Rousse
TERRAIN ET MAISONMaison de 3 pièces (60 m²) en vente à Suze-la-RousseEMPLACEMENT PRIVILÉGIÉ – MAISON 3 PIÈCES NEUVEÀ vendre : à quelques kilomètres de Montélimar, notre agence Maisons France Confort Montélimar est ravie de vous proposer, bénéficiant d’un emplacement d’exception dans Suze-la-Rousse (26790), cette maison de 3 pièces de plain-pied de 60 m² et de 344 m² de terrain.Son intérieur est composé de deux chambres, d’une cuisine et d’une salle de bains. La maison est neuve.La maison se situe dans un quartier attractif. Trois établissements scolaires se trouvent à moins de 10 minutes à pied, tout comme dont le Collège Do Mistrau et l’École Primaire Suze la Rousse. L’autoroute A7 est accessible à 8 km. Il y a une bibliothèque, un tennis, deux boulangeries, trois commerces, trois épiceries, deux boucheries-charcuteries et un bureau de poste à quelques minutes du logement. Ne manquez pas le marché Place du Champ de Mars chaque vendredi matin.Son prix de vente est de 193 900 €.Contactez notre agence (florian DUBOIS : (Numéro supprimé)) pour toute information sur la maison ou sur les modalités de vente. Concrétisez vos projets immobiliers avec Maisons France Confort Montélimar.
Suze-la-Rousse
TERRAIN ET MAISONSuze-la-Rousse : maison de 5 pièces (93 m²) en venteEMPLACEMENT PRIVILÉGIÉ – MAISON 5 PIÈCES NEUVEÀ vendre : à deux pas de Montélimar, découvrez cette maison de 5 pièces de 93 m² et de 344 m² de terrain bénéficiant d’un emplacement d’exception dans Suze-la-Rousse (26790).C’est une maison de 2 niveaux. Elle dispose de trois chambres, d’une cuisine et d’une salle de bains. Cette maison est neuve.Le bien se trouve dans un secteur prisé. Il y a trois établissements scolaires à moins de 10 minutes à pied et dont le Collège Do Mistrau et l’École Primaire Suze la Rousse. L’autoroute A7 est accessible à 8 km. On trouve une bibliothèque, un tennis, deux boulangeries, trois commerces, deux boucheries-charcuteries, trois épiceries et un bureau de poste dans les environs. Le marché Place du Champ de Mars anime les environs tous les vendredis matin.Son prix de vente est de 282 656 €.Contactez florian DUBOIS ((Numéro supprimé)) pour obtenir de plus amples renseignements sur la maison, sur les modalités de vente ou sur les démarches à suivre.
Suze-la-Rousse
TERRAIN ET MAISONMaison de 5 pièces (83 m²) à vendre à Suze-la-RousseEMPLACEMENT PRIVILÉGIÉ – MAISON 5 PIÈCES NEUVEÀ vendre : à 29 km de Montélimar, bénéficiant d’un emplacement privilégié dans Suze-la-Rousse (26790), ayez le coup de coeur pour cette maison de 5 pièces de plain-pied de 83 m².Conçue de plain-pied, elle offre trois chambres, une cuisine et une salle de bains. La maison est neuve.Le terrain de la propriété est de 344 m².Cette maison se trouve dans un quartier attractif. Il y a trois établissements scolaires à moins de 10 minutes à pied et, comme le Collège Do Mistrau ou l’École Primaire Suze la Rousse. On trouve un accès à l’autoroute A7 à 8 km. On trouve une bibliothèque, un tennis, deux boulangeries, trois commerces, deux boucheries-charcuteries, trois épiceries et un bureau de poste à quelques minutes. Enfin, le marché Place du Champ de Mars anime les environs tous les vendredis matin.Elle est à vendre pour la somme de 213 677 €.Prenez contact avec florian DUBOIS ((Numéro supprimé)) pour toute information sur la propriété et sur les démarches à suivre.
Suze-la-Rousse
TERRAIN ET MAISONDécouvrez cette maison contemporaine pensée pour le confort familial et la performance énergétique. Cette maison de plain-pied développe une surface habitable de 85 m² parfaitement optimisée. Dès l’entrée, vous serez séduit par un vaste espace de vie, baigné de lumière naturelle grâce à ses larges ouvertures. L’agencement fluide intègre une cuisine ouverte sur le séjour, idéale pour partager des moments conviviaux en famille ou entre amis.Vous trouverez également un garage pour stationnement sécurisé et un espace de rangement supplémentaire.L’espace nuit est intelligemment séparé et distribue trois chambres confortables, toutes équipées d’un espace de rangement. Une salle de bains moderne avec baignoire, un WC indépendant ainsi qu’un dégagement avec placards viennent compléter la partie nuit, assurant une fonctionnalité optimale au quotidien. Un cellier attenant à la cuisine permet d’organiser facilement vos rangements.La maison est conçue selon les dernières normes environnementales RE2020, et bénéficie d’une excellente isolation thermique et phonique. Grâce à l’installation de panneaux solaires et à sa classification en DPE A, elle garantit de très faibles consommations énergétiques. Un choix idéal pour les familles recherchant une maison moderne, économique et respectueuse de l’environnement.Contactez-nous au (Numéro supprimé).Frais de notaire non compris.Cette annonce a été créée et diffusée avec le logiciel VITAHOME.
Suze-la-Rousse
TERRAIN ET MAISONOffrez à votre famille une maison neuve à haute performance énergétique, classée DPE A. Pensée pour conjuguer bien-être et économies au quotidien, elle vous séduira par son espace de vie lumineux de 40 m², parfait pour partager de beaux moments en famille ou entre amis.La suite parentale au rez-de-chaussée bénéficie d’une salle d’eau privative et d’un dressing, pour un confort optimal jour après jour. L’entrée soignée, avec WC indépendant et garage intégré, apporte une fonctionnalité bienvenue.À l’étage, deux grandes chambres avec rangements complètent l’espace nuit, accompagnées d’une salle de bain et de WC séparés.Isolation performante, finitions de qualité et agencement intelligent.Contactez-nous au (Numéro supprimé).Frais de notaire non compris.Cette annonce a été créée et diffusée avec le logiciel VITAHOME.
Tulette
TERRAINMAISONS FRANCE CONFORT vous propose avec son partenaire foncier, un agréable terrain constructible de 1000², pour 150 000€.Idéalement situé sur la charmante commune de TULETTE, dans le Drôme. Ce terrain offre une opportunité exceptionnelle de construire la maison de vos rêves dans un cadre paisible et verdoyant. Situé dans un quartier calme, vous profiterez d’un environnement agréable et serein.Vous souhaitez en savoir plus ?Contacter votre conseiller en construction Olivier PUAUX ((Numéro supprimé)).
Tulette
TERRAIN ET MAISOND’architecture contemporaine, cette maison de 120m² est composée d’un espace de vie de 50,61 m² avec cuisine ouverte sur un grand salon, salle à manger. Elle possède aussi un espace nuit de 4 chambres et d’une salle de bains, dont une suite parentale de 18,41 m² avec salle d’eau et dressing. Lumineuse et spacieuse cette maison de plain-pied répond à la Réglementation environnementale RE2020. Pour plus de confort, vous trouverez également un garage, totalement accessible de la maison.Vous serez également séduit par ses nombreuses options (volets roulants électriques, centralisation, domotique…).Vous avez le coup de coeur pour ce modèle ou vous souhaitez personnaliser votre maison?Votre conseiller en construction Olivier PUAUX (Numéro supprimé) MAISONS FRANCE CONFORT se tient à votre disposition.
Tulette
TERRAIN ET MAISONSituée dans un cadre paisible, cette villa de 131 m² allie élégance et fonctionnalité !!!À l’intérieur, vous serez accueilli par un espace de vie de 59,64m², comprenant une cuisine ouverte sur un salon et une salle à manger lumineuse. L’espace nuit se compose de 3 chambres confortables et d’une salle de bains moderne. Une suite parentale séparée de la partie nuit offre l’intimité et le confort nécessaires pour vous détendre en toute tranquillité.Cette maison de plain-pied, conforme à la Réglementation Environnementale RE2020, vous assure un habitat écologique et économe en énergie. De plus, elle est dotée d’un garage, directement accessible depuis la maison, pour votre plus grand confort au quotidien.Vous serez également séduit par les nombreuses options disponibles, telles que les volets roulants électriques, la centralisation et la domotique, ajoutant une touche de modernité à votre foyer.Votre conseiller en construction Olivier PUAUX (Numéro supprimé) MAISONS FRANCE CONFORT se tient à votre disposition pour en savoir plus à propos de cette habitation, en découvrir d’autres ou bien même créer votre projet personnalisé.Contactez-le sans plus tarder, pour donner vie à votre projet !!!
L’actualité immobilière à Sainte-Cécile-les-Vignes
27/11/2023
02/11/2023
30/10/2023
20/10/2023
16/10/2023
16/10/2023