Maison à construire à Sainte-Cécile-les-Vignes (84290)
Images
Description
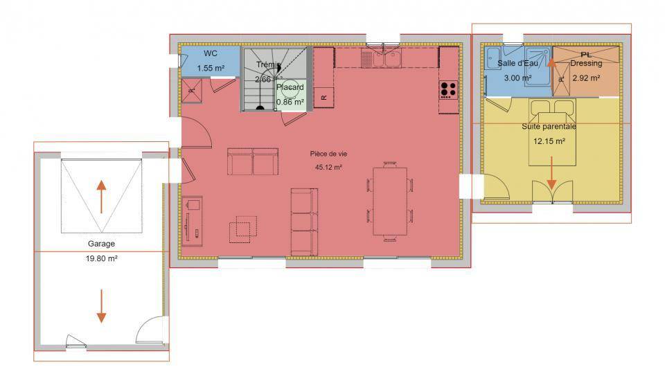
Sainte-Cécile-les-Vignes : maison T5 (110 m²) à vendre
QUARTIER RECHERCHÉ - MAISON 5 PIÈCES NEUVE
À vendre : localisée à quelques kilomètres d'Orange, Maisons France Confort Montélimar vous propose cette maison de 5 pièces de 110 m² et de 856 m² de terrain construite dans un quartier recherché de Sainte-Cécile-les-Vignes (84290). Elle compte quatre chambres, une cuisine et deux salles de bains.
Il s'agit d'une maison de 2 niveaux. Elle est neuve.
Cette maison se trouve dans un secteur prisé. L'École Maternelle Louis Gauthier est implantée à moins de 10 minutes à pied. L'autoroute A7 et la nationale N7 sont accessibles à moins de 14 km. On trouve des commerces, quatre boulangeries, une supérette, une boucherie-charcuterie et un bureau de poste à proximité du bien. Le marché Cours du Portalet a lieu tous les samedis matin.
Elle est proposée à l'achat pour 338 516 €.
Contactez notre agence (florian DUBOIS : (Numéro supprimé)) pour obtenir de plus amples renseignements sur la maison, sur les démarches à suivre ou sur les modalités de vente. Maisons France Confort Montélimar est là pour vous accompagner dans tous vos projets immobiliers.
Logement susceptibles de vous intéresser
Nous vous proposons de découvrir aussi cette sélection de logements situés à moins de 10km de Sainte-Cécile-les-Vignes et qui seraient susceptibles de vous intéresser.
Lagarde-Paréol
TERRAINFiche N°Id-TCT179048 : LAGARDE PAREOL Fiche BC179048 : Lagarde pareol, Terrain constructible d’environ 800 m2 – – Equipements annexes : parking – – chauffage : Aucun – Plus d’informations disponibles sur demande… – Mentions légales : Proposé à la vente à 100000 Euros (honoraires à la charge du vendeur) – Affaire suivie par Mme Aline Gharbi (Agent immobilier – Responsable) – Reseau Immo-Diffusion Vacqueyras – Pour plus d’informations, contactez notre secrétariat au (Numéro supprimé) (Appel gratuit ou prix d’une communication locale)
Suze-la-Rousse
TERRAIN ET MAISONOffrez à votre famille une maison neuve à haute performance énergétique, classée DPE A. Pensée pour conjuguer bien-être et économies au quotidien, elle vous séduira par son espace de vie lumineux de 40 m², parfait pour partager de beaux moments en famille ou entre amis.La suite parentale au rez-de-chaussée bénéficie d’une salle d’eau privative et d’un dressing, pour un confort optimal jour après jour. L’entrée soignée, avec WC indépendant et garage intégré, apporte une fonctionnalité bienvenue.À l’étage, deux grandes chambres avec rangements complètent l’espace nuit, accompagnées d’une salle de bain et de WC séparés.Isolation performante, finitions de qualité et agencement intelligent.Contactez-nous au (Numéro supprimé).Frais de notaire non compris.Cette annonce a été créée et diffusée avec le logiciel VITAHOME.
Violès
TERRAINCalme et plat.Prix : 113000 €.Sur ce terrain de 580 m² à VIOLES, VILLAS PRISME vous propose de réaliser votre projet de construction de maison individuelle.Avec VILLAS PRISME, vous pouvez personnaliser votre projet de maison sur mesure :- Plan et distribution- Système de chauffage au choix- Prestations et équipements selon vos souhaits : carrelages, faïence, menuiseries, salles de bains…- Mode constructif et matériaux selon les normes en vigueur Demandez une étude gratuite et personnalisée de votre projet de construction sur ce terrain à VIOLES ! Prix hors frais de notaire. Terrain sélectionné et vu pour vous sous réserve de disponibilité et au prix indiqué par notre partenaire foncier. Non mandaté pour la vente du terrain. Visuels non contractuels.Cette annonce a été créée et diffusée avec le logiciel VITAHOME.
Sainte-Cécile-les-Vignes
TERRAIN ET MAISONVENTE : maison de 6 pièces (93 m²) à Sainte-Cécile-les-VignesQUARTIER RECHERCHÉ – MAISON 6 PIÈCES NEUVEEn vente : à deux pas d’Orange, notre agence Maisons France Confort Montélimar est ravie de vous proposer, nichée dans un quartier attractif de Sainte-Cécile-les-Vignes (84290), cette maison de 6 pièces de plain-pied de 93 m² et de 856 m² de terrain.Elle dispose de trois chambres, d’une cuisine et d’une salle de bains. Cette maison est neuve.Cette maison est située dans un secteur convoité. Il y a l’École Maternelle Louis Gauthier à moins de 10 minutes à pied. L’autoroute A7 et la nationale N7 sont accessibles à moins de 14 km. On trouve des commerces, quatre boulangeries, un bureau de poste, une supérette et une boucherie-charcuterie dans les environs. Le marché Cours du Portalet a lieu chaque samedi matin.Elle est proposée à l’achat pour 268 500 €.N’hésitez pas à prendre contact avec notre agence (florian DUBOIS : (Numéro supprimé)) pour plus de renseignements sur la maison. Maisons France Confort Montélimar vous accompagne dans toutes vos démarches et dans tous vos projets immobiliers.
Sainte-Cécile-les-Vignes
TERRAINVENTE : terrain de 856 m² à Sainte-Cécile-les-VignesQUARTIER RECHERCHÉ – PROCHE D’ORANGEÀ Sainte-Cécile-les-Vignes (84290) à deux pas d’Orange, venez découvrir ce terrain de 856 m². Il est orienté plein sud. Dans un secteur recherché, le terrain niché dans un quartier convoité est proche des commerces et des écoles. L’École Maternelle Louis Gauthier est implantée à moins de 10 minutes à pied. L’autoroute A7 et la nationale N7 sont accessibles à moins de 14 km. On trouve des commerces, quatre boulangeries, un bureau de poste, une boucherie-charcuterie et une supérette à quelques minutes. Ne manquez pas le marché Cours du Portalet tous les samedis matin.Ce terrain est à vendre pour la somme de 129 000 €. Contactez notre agence (DUBOIS florian : (Numéro supprimé)) pour plus de renseignements sur le terrain ou sur les modalités de vente.
Sainte-Cécile-les-Vignes
TERRAIN ET MAISONVENTE d’une maison F6 (136 m²) à Sainte-Cécile-les-VignesQUARTIER RECHERCHÉ – MAISON 6 PIÈCES NEUVEEn vente à 14 km d’Orange, notre agence Maisons France Confort Montélimar est heureuse de vous proposer, nichée dans un quartier prisé de Sainte-Cécile-les-Vignes (84290), cette maison de 6 pièces de plain-pied de 136 m² et de 856 m² de terrain. Son intérieur dispose de quatre chambres, d’une cuisine et de deux salles de bains.La maison est neuve.Cette maison se situe dans un secteur convoité. Il y a l’École Maternelle Louis Gauthier à moins de 10 minutes à pied. L’autoroute A7 et la nationale N7 sont accessibles à moins de 14 km. On trouve des commerces, quatre boulangeries, une supérette, un bureau de poste et une boucherie-charcuterie dans les environs. Enfin, le marché Cours du Portalet anime le quartier chaque samedi matin.Elle est à vendre pour la somme de 458 452 €.Contactez florian DUBOIS (tél : (Numéro supprimé)) pour obtenir de plus amples informations sur la maison.
Sainte-Cécile-les-Vignes
TERRAIN ET MAISONSainte-Cécile-les-Vignes : maison T5 (110 m²) à vendreQUARTIER RECHERCHÉ – MAISON 5 PIÈCES NEUVEÀ vendre : localisée à quelques kilomètres d’Orange, Maisons France Confort Montélimar vous propose cette maison de 5 pièces de 110 m² et de 856 m² de terrain construite dans un quartier recherché de Sainte-Cécile-les-Vignes (84290). Elle compte quatre chambres, une cuisine et deux salles de bains.Il s’agit d’une maison de 2 niveaux. Elle est neuve.Cette maison se trouve dans un secteur prisé. L’École Maternelle Louis Gauthier est implantée à moins de 10 minutes à pied. L’autoroute A7 et la nationale N7 sont accessibles à moins de 14 km. On trouve des commerces, quatre boulangeries, une supérette, une boucherie-charcuterie et un bureau de poste à proximité du bien. Le marché Cours du Portalet a lieu tous les samedis matin.Elle est proposée à l’achat pour 338 516 €.Contactez notre agence (florian DUBOIS : (Numéro supprimé)) pour obtenir de plus amples renseignements sur la maison, sur les démarches à suivre ou sur les modalités de vente. Maisons France Confort Montélimar est là pour vous accompagner dans tous vos projets immobiliers.
Sainte-Cécile-les-Vignes
TERRAIN ET MAISONVENTE d’une maison F6 (136 m²) à Sainte-Cécile-les-VignesQUARTIER RECHERCHÉ – MAISON 6 PIÈCES NEUVEEn vente à 14 km d’Orange, notre agence Maisons France Confort Montélimar est heureuse de vous proposer, nichée dans un quartier prisé de Sainte-Cécile-les-Vignes (84290), cette maison de 6 pièces de plain-pied de 136 m² et de 856 m² de terrain. Son intérieur dispose de quatre chambres, d’une cuisine et de deux salles de bains.La maison est neuve.Cette maison se situe dans un secteur convoité. Il y a l’École Maternelle Louis Gauthier à moins de 10 minutes à pied. L’autoroute A7 et la nationale N7 sont accessibles à moins de 14 km. On trouve des commerces, quatre boulangeries, une supérette, un bureau de poste et une boucherie-charcuterie dans les environs. Enfin, le marché Cours du Portalet anime le quartier chaque samedi matin.Elle est à vendre pour la somme de 458 452 €.Contactez florian DUBOIS (tél : (Numéro supprimé)) pour obtenir de plus amples informations sur la maison.
Travaillan
TERRAINEn exclusivité, Clotilde et Mathis Fallas vous proposent ce terrain de 960 m², idéalement implanté au sein d’un environnement calme et résidentiel à Travaillan. Entièrement plat, il offre de nombreuses possibilités d’aménagement pour réaliser votre future maison, en toute liberté avec le constructeur de votre choix.Caractéristiques du Terrain:-Superficie: 960 m²-Terrain plat: idéal pour une construction facile-Constructeur: celui de votre choix-Viabilité: Eau potable, assainissement collectif-Environnement: résidentiel et calme-Exposition: Plein Sud-Vue: Ventoux et Clocher du villageN’attendez plus, ce terrain est une opportunité parfaite pour concrétiser vos projets.Prix de vente: 135 000 euros ( charge vendeur)Pour visiter et vous accompagner dans votre projet, contactez Clotilde ou Mathis FALLAS, par téléphone au (Numéro supprimé) / (Numéro supprimé) ou par mail (Email supprimé)Selon l’article L.561.5 du Code Monétaire et Financier, pour l’organisation de la visite, la présentation d’une pièce d’identité vous sera demandée.Cette vente est garantie 12 mois.Cette présente annonce a été rédigée sous la responsabilité éditoriale de Clotilde FALLAS agissant sous le statut d’agent commercial immatriculé au RSAC AVIGNON 909053597 auprès de la SAS PROPRIETES PRIVEES, au capital de 44 920 euros, ZAC LE CHÊNE FERRÉ – 44 ALLÉE DES CINQ CONTINENTS 44120 VERTOU; SIRET 487 624 777 00040, RCS Nantes. Carte professionnelle Transactions sur immeubles et fonds de commerce (T) et Gestion immobilière (G) n° CPI 4401 2016 000 010 388 délivrée par la CCI Nantes – Saint Nazaire. Compte séquestre n(Numéro supprimé)67 BPA SAINT-SEBASTIEN-SUR-LOIRE (44230) ; Garantie GALIAN – 89 rue de la Boétie, 75008 Paris – n°28137 J pour 2 000 000 euros pour T et 120 000 euros pour G. Assurance responsabilité civile professionnelle par MMA Entreprise n° de police 120.137.405Mandat réf : 425907- Le professionnel garantit et sécurise votre projet immobilier. Clotilde et Mathis FALLAS (EI) Agent Commercial – Numéro RSAC : AVIGNON 909053597 – .
L’actualité immobilière à Sainte-Cécile-les-Vignes
27/11/2023
02/11/2023
30/10/2023
20/10/2023
16/10/2023
16/10/2023