Maison à construire à Villedieu (84110)
Images
Description
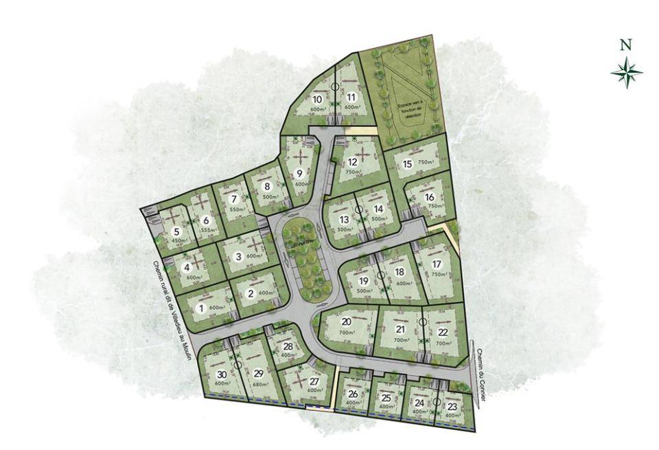
Dernières opportunités, ! Maisons France Confort Agence du Pontet, vous propose ce magnifique terrain plat entièrement viabilisé de 700M²
Avec son exposition sud, vous bénéficierez d'un cadre arboré dans un secteur très recherché.
Vous pourrez profiter d'une maison allant jusqu'à 200 M² (garage en option) à proximité de toutes les commodités : écoles, commerces, services, transports, à 45mn d'Avignon et 20 d'Orange
Villes à proximités : Vaison La Romaine, Rasteau, Roaix, seguret, Sablet...
Elaboration de votre projet sur mesure dans notre agence : Maisons France Confort Le Pontet avec étude financière possible.
Faite confiance au premier constructeur national pour vous accompagner en toute sérénité dans vos démarches.
Contactez M FINCK Walter au : (Numéro supprimé)
Logement susceptibles de vous intéresser
Nous vous proposons de découvrir aussi cette sélection de logements situés à moins de 10km de Villedieu et qui seraient susceptibles de vous intéresser.
Vaison-la-Romaine
TERRAIN ET MAISONSituée dans un environnement calme, cette maison de plain-pied de 85 m² avec garage vous séduira par son agencement intelligent : un vaste espace jour de 50 m² avec cuisine ouverte, trois chambres avec rangements, une salle de bains, WC séparés et un cellier fonctionnel.Construite selon la RE2020, elle est équipée de panneaux solaires et classée DPE A, garantissant de faibles consommations énergétiques.Parfait pour les familles recherchant confort et économies.Contactez-nous au (Numéro supprimé).Frais de notaire non compris.Cette annonce a été créée et diffusée avec le logiciel VITAHOME.
Vaison-la-Romaine
TERRAIN ET MAISONDécouvrez cette maison contemporaine en forme de L, avec ses menuiseries grises anthracite qui lui confèrent un cachet moderne et élégant. Cette maison de 106 mètres carrés a été pensée pour offrir confort et esthétique à ses futurs occupants.À l’intérieur, vous trouverez une entrée équipée de rangements pratiques, un vaste espace de vie lumineux, une cuisine fonctionnelle, une salle de bain bien agencée, trois chambres accueillantes ainsi qu’un cellier pour faciliter le rangement. Cette maison répond également aux normes les plus récentes, notamment la norme RE 2020, garantissant ainsi une construction moderne et éco-responsable. De plus, elle est dotée d’un garage intégré, offrant un accès direct depuis la maison pour plus de commodité.Votre conseiller Maisons France Confort, Olivier PUAUX ((Numéro supprimé)), est à votre disposition pour concrétiser ce projet de construction. Ne tardez pas à contacter Olivier pour donner vie à votre projet dès aujourd’hui !
Vaison-la-Romaine
TERRAIN ET MAISONMAISONS FRANCE CONFORT vous propose cette maison pensée pour vous, avec garage !Ce modèle à l’architecture contemporaine, sublimé par des menuiseries gris anthracite, allie modernité et confort de vie. D’une surface de 81 m², cette maison vous séduira par son agencement optimisé. Dès l’entrée, vous découvrirez un espace avec rangement, suivi d’un bel espace de vie lumineux ouvert sur une cuisine conviviale, idéal pour partager des moments en famille.La maison comprend également une salle de bain bien pensée, trois chambres confortables, un cellier pratique pour faciliter l’organisation du quotidien, ainsi qu’un garage, offrant un espace supplémentaire pour votre véhicule ou du rangement.Fonctionnelle, agréable et conforme à la norme RE 2020, cette maison répond aux exigences actuelles en matière de confort thermique et de performance énergétique.Vous avez le coup de coeur pour cette maison ?Olivier PUAUX, votre conseiller MAISONS FRANCE CONFORT ((Numéro supprimé)), vous accompagne dans chaque étape de votre projet. Ensemble, nous concevrons le plan de maison qui vous ressemble.Contactez-le sans attendre et donnez vie à votre projet de construction !
Vaison-la-Romaine
TERRAIN ET MAISONCaractéristiques principales :- Surface habitable : 158 m²- Conforme à la norme RE 2020- Panneaux solaires installés pour réduire votre facture énergétique- Chauffage gainable pour un confort thermique homogène- DPE A : haute performance énergétique- Suite parentale indépendante- Bureau séparé, idéal pour le télétravail- Bel espace de vie lumineuxQuartier résidentiel, cadre paisible et agréableContactez-nous au (Numéro supprimé).Frais de notaire non compris.Cette annonce a été créée et diffusée avec le logiciel VITAHOME.
Vaison-la-Romaine
TERRAIN ET MAISONOffrez-vous une maison fonctionnelle et économe, d’une surface de 110 m², ce bien vous séduira par son séjour traversant baigné de lumière, sa cuisine ouverte, ses quatre chambres confortables et ses rangements bien pensés. Vous retrouverez également un grand garage pour votre voiture ou du rangement supplémentaire. Parfaite pour les jeunes familles ou primo-accédants, cette maison affiche des performances énergétiques exemplaires avec un DPE A. Moins de dépenses, plus de confort au quotidien !Contactez-nous au (Numéro supprimé).Frais de notaire non compris.Cette annonce a été créée et diffusée avec le logiciel VITAHOME.
Vaison-la-Romaine
TERRAIN ET MAISONDécouvrez cette maison contemporaine pensée pour le confort familial et la performance énergétique. Cette maison de plain-pied développe une surface habitable de 85 m² parfaitement optimisée. Dès l’entrée, vous serez séduit par un vaste espace de vie, baigné de lumière naturelle grâce à ses larges ouvertures. L’agencement fluide intègre une cuisine ouverte sur le séjour, idéale pour partager des moments conviviaux en famille ou entre amis.Vous trouverez également un garage pour stationnement sécurisé et un espace de rangement supplémentaire.L’espace nuit est intelligemment séparé et distribue trois chambres confortables, toutes équipées d’un espace de rangement. Une salle de bains moderne avec baignoire, un WC indépendant ainsi qu’un dégagement avec placards viennent compléter la partie nuit, assurant une fonctionnalité optimale au quotidien. Un cellier attenant à la cuisine permet d’organiser facilement vos rangements.La maison est conçue selon les dernières normes environnementales RE2020, et bénéficie d’une excellente isolation thermique et phonique. Grâce à l’installation de panneaux solaires et à sa classification en DPE A, elle garantit de très faibles consommations énergétiques. Un choix idéal pour les familles recherchant une maison moderne, économique et respectueuse de l’environnement.Contactez-nous au (Numéro supprimé).Frais de notaire non compris.Cette annonce a été créée et diffusée avec le logiciel VITAHOME.
Saint-Maurice-sur-Eygues
TERRAIN ET MAISONDans un environnement calme et résidentiel, découvrez cette maison contemporaine à étage au style architectural moderne, rythmée par de nombreux décrochements de façade qui lui confèrent caractère et élégance.Le rez-de-chaussée s’ouvre sur une vaste pièce à vivre lumineuse, idéale pour recevoir, avec un espace salon-séjour et une cuisine ouverte prolongée par un cellier fonctionnel. Une suite parentale avec salle d’eau privative ainsi qu’un garage viennent compléter ce niveau.À l’étage, deux chambres avec rangements intégrés offrent un confort optimal pour toute la famille. Une terrasse accessible depuis l’une des chambres permet de profiter d’un espace extérieur intime et agréable.Cette maison combine style, confort et qualité de vie, le tout dans une ambiance chaleureuse et contemporaine.Pour plus de renseignements ou pour organiser une visite, n’hésitez pas à nous contacter.Contactez-nous au (Numéro supprimé).Frais de notaire non compris.Cette annonce a été créée et diffusée avec le logiciel VITAHOME.
Saint-Maurice-sur-Eygues
TERRAIN ET MAISONSituée dans un quartier résidentiel recherché, cette maison de plain-pied offre un cadre de vie paisible et fonctionnel, idéal pour une famille.Les atouts du bien :Surface habitable de 101m²Terrain clos et arboré, sans vis-à-visExposition idéale pour une belle luminosité intérieureEspace jour :Grande pièce de vie traversante avec cuisine ouverteAccès direct à la terrasse et au jardinCellier attenant à la cuisineGarage intégré avec accès intérieurEspace nuit :4 chambres confortablesSalle de bains indépendanteConfort et performance :Maison classée DPE A – Faibles consommations énergétiquesTrès bonne isolation thermique et phoniqueMatériaux durables et finitions soignéesProche des écoles, commerces, services et transports, cette maison combine parfaitement confort de vie et efficacité énergétique. Bien rare à la vente.Contactez-nous au (Numéro supprimé).Frais de notaire non compris.Cette annonce a été créée et diffusée avec le logiciel VITAHOME.
Tulette
TERRAINMAISONS FRANCE CONFORT vous propose avec son partenaire foncier, un agréable terrain constructible de 1000², pour 150 000€.Idéalement situé sur la charmante commune de TULETTE, dans le Drôme. Ce terrain offre une opportunité exceptionnelle de construire la maison de vos rêves dans un cadre paisible et verdoyant. Situé dans un quartier calme, vous profiterez d’un environnement agréable et serein.Vous souhaitez en savoir plus ?Contacter votre conseiller en construction Olivier PUAUX ((Numéro supprimé)).
L’actualité immobilière à Villedieu
27/11/2023
02/11/2023
30/10/2023
20/10/2023
16/10/2023
16/10/2023