Images
Description
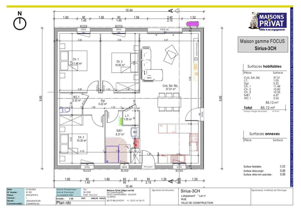
Sur ce terrain, nous vous proposons cette superbe maison de plain-pied au plan optimisé, pensée pour offrir confort et convivialité à toute la famille. Passé l’entrée, vous serez immédiatement séduit par une vaste pièce de vie baignée de lumière, où se côtoient salon, salle à manger et cuisine ouverte, idéale pour partager des moments chaleureux au quotidien.
Côté nuit, trois chambres spacieuses et lumineuses vous attendent, chacune permettant d’installer rangements et bureau selon vos envies. Une salle de bain moderne, un WC complètent cet agencement astucieux, facilitant l’organisation de la vie de famille.
Atout pratique : Un garage attenant de près de 21 m² permet de stationner votre véhicule en toute sécurité, tout en laissant de la place pour un atelier ou du rangement supplémentaire.
Moderne, fonctionnelle et pensée pour un confort optimal, cette maison saura répondre à toutes vos attentes. N’attendez plus pour venir la découvrir et laissez-vous séduire par son agencement harmonieux !
Logement susceptibles de vous intéresser
Nous vous proposons de découvrir aussi cette sélection de logements situés à moins de 10km de Aubigny-Les Clouzeaux et qui seraient susceptibles de vous intéresser.
La Roche-sur-Yon
TERRAINNous vous proposons à la vente un terrain viabilisé de 847 m², idéalement situé à La Roche-sur-Yon, en Vendée. Ce terrain bénéficie d’un potentiel unique pour la construction de la maison de vos rêves. L’emplacement est stratégique pour ceux qui recherchent à la fois tranquillité et accessibilité, faisant de ce bien un choix judicieux pour un projet résidentiel. La Roche-sur-Yon, située dans le département de la Vendée, est une ville dynamique aux multiples atouts. Vous y trouverez un cadre de vie agréable avec des services variés, des commerces de proximité, ainsi que des infrastructures éducatives de qualité. Les nombreuses attractions locales, telles que Les Halles et le parc des expositions, ajoutent à l’attrait de ce territoire. Profitez de la proximité de la nature environnante et des belles plages de la Côte Vendéenne, situées à quelques kilomètres, qui font de cette ville un lieu de vie privilégié. Ne laissez pas passer cette occasion d’acquérir un terrain au potentiel exceptionnel ! Contactez-nous dès aujourd’hui pour explorer les nombreuses possibilités qu’il offre. À noter qu’en tant que constructeur, nous ne sommes pas mandatés pour réaliser la vente de ce terrain.
Nesmy
TERRAIN ET MAISONSitué sur la commune paisible de Nesmy, ce terrain viabilisé de 584 m² offre un cadre idéal pour concrétiser votre projet de construction. Vous apprécierez son environnement calme, propice à une vie sereine. Simple, lumineuse et facile à vivre, cette maison de plain-pied est le point de départ idéal pour construire votre projet de vie ou profiter d’un pied-à-terre fonctionnel en toute saison. Son séjour traversant, ouvert sur le jardin, crée un espace de vie fluide et convivial, parfait pour se retrouver. Avec 3 chambres bien réparties, une salle de bain centrale, un cellier attenant et un garage intégré, elle allie confort, praticité et douceur de vivre. Un modèle compact, évolutif et personnalisable, aussi agréable à vivre toute l’année qu’à savourer en vacances. Pour un confort optimal et conforme à la RE2025, cette maison dispose d’une PAC avec plancher chauffant et volets roulants électriques. À noter : Le prix indiqué exclut les revêtements de sol des chambres, la cuisine aménagée, la peinture, la décoration, les frais de notaire et l’assurance dommages ouvrage. // Réf. : 557-213656-THW. Prix terrain : 65 000 €, hors frais d'agence à la charge de l'acquéreur. Ce terrain vous est proposé, par nos partenaires fonciers, dans le cadre d'un projet de construction avec nous. Les informations sur les risques auxquels ce bien est exposé sont disponibles sur le site Géorisques (www.georisques.gouv.fr). Prix maison : 139 800 €.
Nesmy
TERRAINNous vous proposons à la vente un terrain viabilisé de 489 m² situé à Nesmy, un charmant lotissement idéal pour concrétiser votre projet de construction de maison. Ce terrain plat, bénéficiant d’un environnement calme et agréable, offre une belle opportunité pour les familles souhaitant s’installer dans un cadre de vie privilégié. La localité est reconnue pour sa qualité de vie exceptionnel et son ambiance conviviale. Nesmy, située dans le département de la Vendée en région Pays de la Loire, se distingue par son atmosphère paisible tout en restant proche de toutes les commodités nécessaires à votre quotidien. Vous y trouverez des écoles à proximité, des commerces diversifiés, ainsi que des arrêts de bus facilitant vos déplacements. Ajoutez à cela l’accès rapide à des axes routiers importants, et vous comprendrez pourquoi ce terrain représente un choix stratégique pour votre future maison. De plus, la ville bénéficie d’un cadre naturel propice aux loisirs et aux activités en plein air. Ne manquez pas cette opportunité unique d’acquérir un terrain prometteur dans un environnement chaleureux et accueillant.
Nesmy
TERRAINNous vous proposons un terrain à vendre d’une surface de 584 m², situé dans un charmant lotissement à Nesmy, une commune dynamique du département de la Vendée. Ce terrain viabilisé offre une opportunité idéale pour construire la maison de vos rêves dans un environnement paisible. Profitez de ce cadre de vie agréable, avec un accès facile à toutes les commodités nécessaires au quotidien. Nesmy, localisée au cœur de la Vendée dans la région des Pays de la Loire, se distingue par son ambiance conviviale et ses nombreux attraits. Vous trouverez à proximité immédiate divers commerces, des écoles, ainsi que des espaces verts propices aux loisirs. La commune est également facilement accessible grâce à un réseau de transports bien développé et sa proximité avec d’importants axes routiers, garantissant une qualité de vie exceptionnelle pour vous et votre famille. Ne laissez pas passer cette occasion unique d’investir dans un terrain au potentiel remarquable.
Nesmy
TERRAINSitué sur la commune paisible de Nesmy, ce terrain viabilisé de 584 m² offre un cadre idéal pour concrétiser votre projet de construction. Vous apprécierez son environnement calme, propice à une vie sereine. // Réf. : T213656. Prix terrain : 65 000 €, hors frais d'agence et de notaire à la charge de l'acquéreur. Ce terrain vous est proposé, par nos partenaires fonciers, dans le cadre d'un projet de construction avec nous. Les informations sur les risques auxquels ce bien est exposé sont disponibles sur le site Géorisques (www.georisques.gouv.fr).
Nesmy
TERRAINSitué sur la commune paisible de Nesmy, ce terrain viabilisé de 584 m² offre un cadre idéal pour concrétiser votre projet de construction. Vous apprécierez son environnement calme, propice à une vie sereine. // Réf. : T213656. Prix terrain : 65 000 €, hors frais d'agence et de notaire à la charge de l'acquéreur. Ce terrain vous est proposé, par nos partenaires fonciers, dans le cadre d'un projet de construction avec nous. Les informations sur les risques auxquels ce bien est exposé sont disponibles sur le site Géorisques (www.georisques.gouv.fr).
Nesmy
TERRAINÀ la recherche du terrain parfait pour concrétiser votre rêve de construction ? Ce terrain de 442 m², idéalement situé à Nesmy, est entièrement viabilisé et offre des caractéristiques uniques qui en font une opportunité exceptionnelle. Niché dans un lotissement calme, il est parfait pour un projet de construction de maison, combinant confort et praticité pour un cadre de vie idéal. Nesmy, située en Vendée dans la région des Pays de la Loire, se distingue par son ambiance conviviale et son accessibilité à de nombreux services. À proximité immédiate, vous trouverez toutes les commodités essentielles : commerces, écoles et transports, facilitant ainsi votre quotidien. De plus, la qualité de vie qui y règne, avec son cœur de ville attrayant et son environnement paisible, saura séduire les familles comme les futurs propriétaires. Les belles promesses d’un cadre agréable pour votre futur chez-vous n’attendent que vous. Ne manquez pas cette occasion unique d’acquérir un terrain prometteur, idéalement placé et prêt à accueillir votre projet immobilier.
La Roche-sur-Yon
TERRAIN ET MAISONSitué sur la commune de La Roche-sur-Yon, ce terrain de 378 m² offre un emplacement privilégié à deux pas des commerces et des services du quotidien. Idéal pour votre projet de construction, il se trouve dans un secteur recherché alliant praticité et qualité de vie. Une maison lumineuse et pleine de charme ! Avec son architecture élégante et intemporelle, cette maison séduit par ses volumes généreux et son agencement optimisé. Son grand espace de vie ouvert sur l’extérieur invite à la convivialité, tandis que ses 3 chambres bien pensées offrent confort et intimité. Un garage intégré et des espaces fonctionnels complètent ce cadre idéal pour toute la famille. Un intérieur chaleureux, une conception harmonieuse et un projet qui vous ressemble !Envie d’en savoir plus ? Faites le premier pas vers votre futur chez-vous !. . Pour un confort optimal et conforme à la RE2025, cette maison dispose d’une PAC AIR/AIR et volets roulants électriques. À noter : Le prix indiqué exclut les revêtements de sol des chambres, la cuisine aménagée, la peinture, la décoration, les raccordements, les frais de notaire et l’assurance dommages-ouvrage. // Réf. : 563-213473-THW. Prix terrain : 70 000 €, hors frais d'agence à la charge de l'acquéreur. Ce terrain vous est proposé, par nos partenaires fonciers, dans le cadre d'un projet de construction avec nous. Les informations sur les risques auxquels ce bien est exposé sont disponibles sur le site Géorisques (www.georisques.gouv.fr). Prix maison : 164 687 €.
La Roche-sur-Yon
TERRAIN ET MAISONSur cet terrain, nous vous proposons cette maison évolutive, conçue pour aujourd’hui et pensée pour demainCe modèle de maison incarne l’harmonie parfaite entre fonctionnalité et adaptabilité, offrant un cadre de vie agréable qui évolue avec vos besoins.Au cœur de cette maison, une spacieuse pièce de vie baignée de lumière naturelle grâce à ses larges ouvertures. Ce séjour chaleureux, avec sa cuisine ouverte moderne, constitue un espace idéal pour partager des moments en famille ou entre amis.À proximité, une chambre et une salle d’eau offrent un espace nuit fonctionnel et pratique.Adossé à la maison, un garage de presque 58m² représente bien plus qu’un simple espace de stationnement. Conçu pour évoluer, il peut être transformé en un véritable espace de vie supplémentaire. En fonction de vos besoins, cet espace pourra accueillir jusqu’à trois chambres et une seconde salle d’eau, apportant ainsi une solution idéale pour agrandir votre maison sans contrainte majeure.Grâce à une conception intelligente et anticipée, cette maison s’adapte à votre mode de vie, que ce soit pour accueillir une famille grandissante, créer un espace de travail ou offrir un confort supplémentaire à vos proches.En choisissant cette maison évolutive, vous investissez dans un habitat durable, adaptable et conçu pour le bien-être de toute votre famille.
L’actualité immobilière à Aubigny-Les Clouzeaux
27/11/2023
02/11/2023
30/10/2023
20/10/2023
16/10/2023
16/10/2023