Images
Description
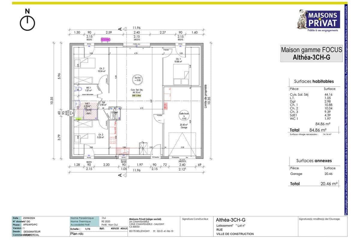
Sur ce terrain, nous vous proposons cette superbe maison de plain-pied, alliant confort, modernité et praticité, idéale pour une famille en quête de bien-être.
Avec son agencement optimisé, cette maison vous offre une spacieuse pièce de vie baignée de lumière naturelle, comprenant un séjour convivial et une cuisine ouverte fonctionnelle, parfaite pour des moments en famille ou entre amis.
L’espace nuit se compose de trois belles chambres offrant confort et sérénité, d’une salle d’eau moderne et de WC séparés pour plus de praticité.
Un garage intégré vient compléter ce bien, idéal pour stationner un véhicule ou disposer d’un espace de rangement supplémentaire.
Logement susceptibles de vous intéresser
Nous vous proposons de découvrir aussi cette sélection de logements situés à moins de 10km de Beauvoir-sur-Mer et qui seraient susceptibles de vous intéresser.
Beauvoir-sur-Mer
TERRAINSUPERBE TERRAIN EN IMPASSE EN BIEN EXPOSE – VIABILISE À vendre, un terrain viabilisé exceptionnel de 479 m², idéal pour la construction de votre maison de rêve. Situé dans le charmant lotissement de Beauvoir-sur-Mer, ce terrain bénéficie d’un ensoleillement optimal et d’un cadre de vie calme, propice à l’épanouissement de votre famille. Son plat et son accessibilité vous permettront de réaliser facilement votre projet de construction personnalisé. C’est une opportunité rare à saisir, qui n’attend que vous ! Beauvoir-sur-Mer, nichée au cœur de la Vendée dans la magnifique région des Pays de la Loire, offre un cadre de vie à la fois dynamique et serein. La ville est entourée de paysages pittoresques et se trouve à proximité de magnifiques plages et de la nature préservée. Les écoles à proximité garantissent un environnement éducatif de qualité pour vos enfants, tandis que les commodités locales vous assurent de tout avoir à portée de main. Avec ses attractions locales et son ambiance conviviale, ce terrain se situe dans un quartier où il fait bon vivre. Ne manquez pas cette occasion unique d’acquérir un bien de grande valeur dans un emplacement de choix. Imaginez votre futur chez-vous dans ce cadre idyllique ! À noter qu’en tant que constructeur, nous ne sommes pas mandatés pour réaliser la vente de ce terrain.
Beauvoir-sur-Mer
TERRAIN ET MAISONSur ce terrain, nous vous proposons cette maison neuve : la Coueronnaise, une maison traditionnelle à étage de charme. Conçue par Maisons Privat, constructeur centenaire avec les meilleurs avis clients de la région, cette habitation d’une surface de 95 m² est la maison familiale par excellence.La Coueronnaise vous séduira par son architecture traditionnelle et sa façade décrochée. Elle dispose de 4 pièces bien agencées, dont 3 chambres spacieuses. Le séjour-cuisine-salon est vaste et lumineux, agrémenté de baies coulissantes qui apportent une belle luminosité naturelle. L’entrée est séparée, offrant une organisation optimale de l’espace.À l’étage, vous trouverez deux chambres munies de placards, une salle de bains avec baignoire et WC intégrés, ainsi qu’un bureau. En rez-de-chaussée, une suite parentale avec salle d’eau privative et une douche italienne vous offriront tout le confort nécessaire.Cette maison neuve est basse consommation et conforme à la RE2020, garantissant des performances énergétiques optimales et un respect de l’environnement. Parmi les options les plus demandées par nos clients, vous pourrez choisir un garage accolé, des menuiseries en aluminium et un système de domotique pour une maison encore plus moderne et fonctionnelle.Ne manquez pas cette opportunité unique de devenir propriétaire d’une maison neuve, bien organisée et économe en énergie, conçue par un constructeur de renom. Contactez-nous dès maintenant pour plus d’informations et pour visiter notre modèle Coueronnaise.
Notre-Dame-de-Monts
TERRAINTerrains viabilisés de 334 m² à 515 m², libres de constructeur sur la commune de Notre-Dame-de-Monts, en Vendée.Découvrez notre nouvelle opération de 14 lots « Le Domaine des Oyats » située Route du Bois Soret.Idéalement située à 10 minutes de Saint-Jean-de-Monts et à 20 minutes de Challans. La commune est proche des grands centres urbains de l’Ouest : à 1h de Nantes et de la Roche-sur-Yon.Les amateurs de sports nautiques, de voile et de pêche trouveront leur bonheur dans cette région dynamique, où les loisirs liés à la mer sont à portée de main.Retrouvez l’ensemble de nos lots disponibles sur notre site internet.
Saint-Gervais
TERRAINOPPORTUNITE – EMPLACEMENT IDEAL – EXPOSITION SUD PRIMO-ACCEDANTS OU INVESTISSEURS Nous avons le plaisir de vous présenter un terrain à vendre dans le charmant lotissement de Saint-Gervais, offrant une surface généreuse de 354 m², parfaitement viabilisé et prêt à accueillir votre projet de construction de maison. Ce terrain bénéficie de caractéristiques uniques qui en font un emplacement privilégié : un cadre de vie paisible et agréable, idéal pour les familles et les personnes en quête d’un coin de tranquillité, tout en étant à proximité des commodités. Saint-Gervais, située dans le département de la Vendée au cœur de la région Pays de la Loire, se distingue par son ambiance conviviale et ses nombreuses attractions locales. Les commerces de proximité sont facilement accessibles, et la commune offre un cadre de vie de qualité, propice à la détente et aux loisirs. Profitez de la quiétude des environs, tout en étant proche des activités et des services qui enrichissent le quotidien. Le top emplacement de ce terrain, combiné à un prix attractif, en fait une occasion à ne pas manquer. Imaginez la maison de vos rêves sur ce terrain aux multiples atouts. N’hésitez pas à envisager cette opportunité d’achat unique et à nous contacter pour plus d’informations. À noter qu’en tant que constructeur, nous ne sommes pas mandatés pour réaliser la vente de ce terrain.
Saint-Gervais
TERRAIN ET MAISONSur ce terrain, nous vous proposons cette maison de plain-pied au design contemporain, idéale pour un confort de vie au quotidien. Ses deux chambres offrent un espace nuit cosy, tandis que la vaste pièce de vie de plus de 35 m² réunit cuisine ouverte, salle à manger et salon, baignés de lumière naturelle. Vous profiterez également d’une salle d’eau moderne et d’un WC indépendant, pensés pour simplifier votre quotidien.Le garage de plus de 20 m² constitue un atout majeur pour stationner votre véhicule en toute sécurité ou aménager un espace de bricolage. Son architecture élégante, soulignée par une toiture à double pente, s’intègre harmonieusement à l’environnement. Ne manquez pas cette belle opportunité?: chaque détail a été soigneusement étudié pour vous garantir une qualité de vie incomparable.
La Barre-de-Monts
TERRAIN ET MAISONA LA BARRE DE MONTS sur un terrain de 425 m², Alliance Construction vous propose de réaliser votre projet de construction de maison.Bénéficiez d’un accompagnement par des professionnels expérimentés tout au long du processus de construction.Habitez une maison spécialement pensée et conçue pour vous et votre famille, prête à décorer, adaptée à vos modes de vie, personnalisée selon vos goûts grâce à un large choix d'options, de matériaux et d'innovations !Demandez une étude gratuite et personnalisée de votre projet de construction !Contactez Perrick MACCHI au (Numéro supprimé) (Alliance Construction – Agence des Sables-d'Olonne).*Prix indicatif pour un projet de construction d'une maison individuelle. Ne sont pas inclus les frais de branchements, raccordements aux réseaux publics, frais d'adaptations, aménagements intérieurs et extérieurs et options. terrain viabilisé, frais de notaire non compris, frais divers non compris. Garanties et assurances obligatoires incluses. Terrain sélectionné par ALLIANCE auprès de nos partenaires fonciers, selon disponibilité, pour la construction d'une maison neuve. Non mandaté pour réaliser la vente (loi du 2 janvier 1970 n°70-9). Visuels non contractuels. Voir détails en agence.Cette annonce a été créée et diffusée avec le logiciel VITAHOME.
La Barre-de-Monts
TERRAIN ET MAISONA LA BARRE-DE-MONTS sur un terrain de 416 m², Alliance Construction vous propose de réaliser votre projet de construction de maison individuelle avec 3 chambres.Nombreuses personnalisations et options possibles !Demandez une étude gratuite et personnalisée de votre projet de construction !* Cette offre comprend :- Garanties constructeurs (dommages ouvrage, garantie de prix ferme et définitif, garantie de livraison, responsabilité civile et décennale).- Branchements aux compteurs et accès empierré sur 5m linéaires.Habitez une maison spécialement pensée et conçue pour vous et votre famille, prête à décorer, adaptée à vos modes de vie, personnalisée selon vos goûts grâce à un large choix d'options, de matériaux et d'innovations !Contactez Perrick MACCHI au (Numéro supprimé) (Alliance Construction – Agence des Sables-d'Olonne).*Prix indicatif pour un projet de construction d'une maison individuelle. Ne sont pas inclus les frais de branchements, raccordements aux réseaux publics, frais d'adaptations, aménagements intérieurs et extérieurs et options. terrain viabilisé, frais de notaire non compris, frais divers non compris. Garanties et assurances obligatoires incluses. Terrain sélectionné par ALLIANCE auprès de nos partenaires fonciers, selon disponibilité, pour la construction d'une maison neuve. Non mandaté pour réaliser la vente (loi du 2 janvier 1970 n°70-9). Visuels non contractuels. Voir détails en agence.Cette annonce a été créée et diffusée avec le logiciel VITAHOME.
La Barre-de-Monts
TERRAIN ET MAISONEnvie de renouveau ? Profitez du printemps pour concrétiser un nouveau projet.Votre maison Alliance construite en fonction de vos besoins avec des matériaux et des équipements de qualité à partir de 389900€ *.Habitez une maison spécialement pensée et conçue pour vous et votre famille, prête à décorer, adaptée à votre mode de vie, personnalisée selon vos goûts grâce à un large choix d’options, de matériaux et d’innovations !Contactez Perrick MACCHI au (Numéro supprimé) (Alliance Construction – Agence des Sables-d'Olonne).*Prix indicatif pour un projet de construction d'une maison individuelle. Ne sont pas inclus les frais de branchements, raccordements aux réseaux publics, frais d'adaptations, aménagements intérieurs et extérieurs et options. terrain viabilisé, frais de notaire non compris, frais divers non compris. Garanties et assurances obligatoires incluses. Terrain sélectionné par ALLIANCE auprès de nos partenaires fonciers, selon disponibilité, pour la construction d'une maison neuve. Non mandaté pour réaliser la vente (loi du 2 janvier 1970 n°70-9). Visuels non contractuels. Voir détails en agence.Cette annonce a été créée et diffusée avec le logiciel VITAHOME.
Notre-Dame-de-Monts
TERRAIN ET MAISONA NOTRE-DAME-DE-MONTS sur un terrain de 439 m², Alliance Construction vous propose de réaliser votre projet de construction de maison individuelle d'une surface de 157.34 m² habitables à partir de 455590€*Demandez une étude gratuite et personnalisée de votre projet de construction !* Cette offre comprend :- Garanties constructeurs (dommages ouvrage, garantie de prix ferme et définitif, garantie de livraison, responsabilité civile et décennale).- Branchements aux compteurs et accès empierré sur 5m linéaires.Habitez une maison spécialement pensée et conçue pour vous et votre famille, prête à décorer, adaptée à vos modes de vie, personnalisée selon vos goûts grâce à un large choix d'options, de matériaux et d'innovations !Contactez Perrick MACCHI au (Numéro supprimé) (Alliance Construction – Agence des Sables-d'Olonne).*Prix indicatif pour un projet de construction d'une maison individuelle. Ne sont pas inclus les frais de branchements, raccordements aux réseaux publics, frais d'adaptations, aménagements intérieurs et extérieurs et options. terrain viabilisé, frais de notaire non compris, frais divers non compris. Garanties et assurances obligatoires incluses. Terrain sélectionné par ALLIANCE auprès de nos partenaires fonciers, selon disponibilité, pour la construction d'une maison neuve. Non mandaté pour réaliser la vente (loi du 2 janvier 1970 n°70-9). Visuels non contractuels. Voir détails en agence.Cette annonce a été créée et diffusée avec le logiciel VITAHOME.
L’actualité immobilière à Beauvoir-sur-Mer
27/11/2023
02/11/2023
30/10/2023
20/10/2023
16/10/2023
16/10/2023