Maison à construire à Bourneau (85200)
Images
Description
VENTE d'une maison de 4 pièces (82 m²) à Bourneau
MAISON 4 PIÈCES NEUVE
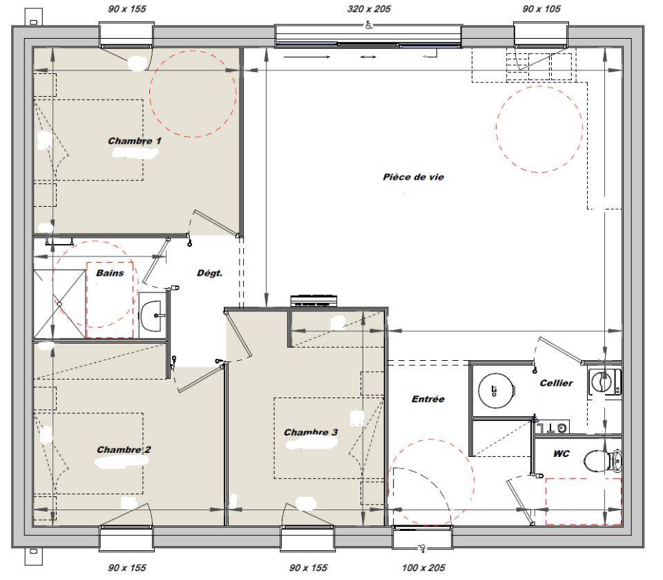
À vendre à 41 km de l'océan Atlantique, Maisons Tradilignes La Roche-sur-Yon vous présente cette maison de 4 pièces de plain-pied de 82 m² à Bourneau (85200). Elle compte trois chambres, une cuisine et une salle de bains.
Le terrain de la propriété est de 636 m².
Cette maison est neuve.
Il y a l'École Primaire Publique à l'Orée des Bois à moins de 10 minutes à pied. On trouve un accès à l'autoroute A83 à 10 km.
Son prix de vente est de 156 500 €.
Prenez contact avec Marie CASTELOT (tél : (Numéro supprimé)) pour toute information sur la maison, sur les démarches à suivre ou sur les modalités de vente. Maisons Tradilignes La Roche-sur-Yon est là pour vous accompagner dans tous vos projets immobiliers.
Logement susceptibles de vous intéresser
Nous vous proposons de découvrir aussi cette sélection de logements situés à moins de 10km de Bourneau et qui seraient susceptibles de vous intéresser.
Sérigné
TERRAIN ET MAISONVENTE : maison T4 (85 m²) à SérignéEMPLACEMENT PRIVILÉGIÉ – MAISON 4 PIÈCES NEUVEEn vente à 36 km de la côte atlantique, nous vous présentons, bénéficiant d’un emplacement d’exception dans Sérigné (85200), cette maison de 4 pièces de plain-pied de 85 m².Conçue de plain-pied, elle se divise en trois chambres, une cuisine et une salle de bains. Cette maison est neuve.Le terrain de la propriété s’étend sur 819 m².La propriété se situe dans un secteur attractif. On trouve l’École Primaire Publique les Pierides à moins de 10 minutes à pied. On trouve un accès à l’autoroute A83 à 5 km. Il y a un tennis et une supérette dans les environs.Elle est proposée à l’achat pour 174 900 €.Contactez notre agence (NOVO Virginie : (Numéro supprimé)) pour plus d’informations sur la maison, sur les démarches à suivre ou sur les modalités de vente. LMP Constructeur La Roche-sur-Yon vous accompagne à toutes les étapes de votre projet et dans tous vos projets immobiliers.
Bourneau
TERRAINVENTE d’un terrain de 240 m² à BourneauEMPLACEMENT PRIVILÉGIÉÀ 41 km de la côte atlantique à Bourneau (85200), terrain de 240 m². Il est orienté au sud-ouest. Il est situé dans un quartier prisé. On trouve l’École Primaire Publique à l’Orée des Bois à moins de 10 minutes à pied. L’autoroute A83 est accessible à 10 km.Son prix de vente est de 10 800 €. Contactez notre agence (NOVO Virginie : (Numéro supprimé)) pour toute question sur ce terrain.
Bourneau
TERRAIN ET MAISONMaison de 3 pièces (59 m²) en vente à BourneauEMPLACEMENT PRIVILÉGIÉ – MAISON 3 PIÈCES NEUVEÀ vendre : située à 41 km de l’océan Atlantique, bénéficiant d’un emplacement d’exception dans Bourneau (85200), nous sommes ravis de vous présenter cette maison de 3 pièces de plain-pied de 59 m².Son intérieur propose deux chambres, une cuisine et une salle de bains. La maison est neuve.Le terrain du bien est de 240 m².La maison est située dans un quartier recherché. L’École Primaire Publique à l’Orée des Bois se trouve à moins de 10 minutes à pied. On trouve un accès à l’autoroute A83 à 10 km.Son prix de vente est de 124 900 €.Prenez contact avec notre agence (Virginie NOVO : (Numéro supprimé)) pour tout renseignement sur la maison ou sur les modalités de vente.
Sérigné
TERRAIN ET MAISONVENTE : maison T3 (56 m²) à SérignéEMPLACEMENT PRIVILÉGIÉ – MAISON 3 PIÈCES NEUVEEn vente : à 36 km de la côte atlantique, nous sommes ravis de vous présenter, bénéficiant d’un emplacement privilégié dans Sérigné (85200), cette maison de 3 pièces de plain-pied de 56 m² et de 819 m² de terrain. Son intérieur offre deux chambres, une cuisine et une salle de bains.La maison est neuve.Cette maison se situe dans un secteur convoité. On trouve l’École Primaire Publique les Pierides à moins de 10 minutes à pied. L’autoroute A83 est accessible à 5 km. Il y a un tennis et une supérette dans les environs.Son prix de vente est de 141 900 €.Contactez notre agence (Virginie NOVO : (Numéro supprimé)) pour toute information sur la maison, sur les modalités de vente ou sur les démarches à suivre. LMP Constructeur La Roche-sur-Yon vous accompagne à toutes les étapes de l’achat et dans tous vos projets immobiliers.
Bourneau
TERRAIN ET MAISONVENTE : maison de 5 pièces (90 m²) à BourneauEMPLACEMENT PRIVILÉGIÉ – MAISON 5 PIÈCES NEUVEÀ vendre : située à 41 km de l’océan Atlantique, notre agence LMP Constructeur La Roche-sur-Yon est ravie de vous proposer, bénéficiant d’un emplacement privilégié dans Bourneau (85200), cette maison de 5 pièces de plain-pied de 90 m². Elle offre quatre chambres, une cuisine et une salle de bains.Le terrain du bien est de 240 m².Cette maison est neuve.Le bien est situé dans un secteur prisé. L’École Primaire Publique à l’Orée des Bois est implantée à moins de 10 minutes à pied. L’autoroute A83 est accessible à 10 km.Il est proposé à l’achat pour 159 900 €.Prenez contact avec Virginie NOVO (tél : (Numéro supprimé)) pour tout renseignement sur la maison, sur les démarches à suivre et sur les modalités de vente. LMP Constructeur La Roche-sur-Yon est là pour vous accompagner dans tous vos projets immobiliers.
Sérigné
TERRAIN ET MAISONVENTE : maison de 5 pièces (90 m²) à SérignéEMPLACEMENT PRIVILÉGIÉ – MAISON 5 PIÈCES NEUVEEn vente à 36 km de la côte atlantique, LMP Constructeur La Roche-sur-Yon vous propose cette maison de 5 pièces de plain-pied de 90 m², bénéficiant d’un emplacement d’exception dans Sérigné (85200). Elle inclut quatre chambres, une cuisine et une salle de bains.Le terrain de la propriété s’étend sur 819 m².La maison est neuve.Cette maison est située dans un quartier prisé. On trouve l’École Primaire Publique les Pierides à moins de 10 minutes à pied. L’autoroute A83 est accessible à 5 km. Il y a un tennis et une supérette à quelques minutes.Son prix de vente est de 183 500 €.Contactez Virginie NOVO (tél : (Numéro supprimé)) pour toute question sur la propriété. LMP Constructeur La Roche-sur-Yon est là pour vous accompagner à toutes les étapes de votre projet.
Bourneau
TERRAIN ET MAISONBourneau : maison T4 (75 m²) en venteEMPLACEMENT PRIVILÉGIÉ – MAISON 4 PIÈCES NEUVEÀ vendre : localisée à 41 km de la côte atlantique, nous sommes heureux de vous proposer cette maison de 4 pièces de plain-pied de 75 m² et de 240 m² de terrain, bénéficiant d’un emplacement d’exception dans Bourneau (85200).Conçue de plain-pied, elle compte trois chambres, une cuisine et une salle de bains. Cette maison est neuve.La maison se trouve dans un secteur prisé. Il y a l’École Primaire Publique à l’Orée des Bois à moins de 10 minutes à pied. L’autoroute A83 est accessible à 10 km.Elle est à vendre pour la somme de 149 900 €.Prenez contact avec Virginie NOVO (tél : (Numéro supprimé)) pour toute information sur la maison. LMP Constructeur La Roche-sur-Yon vous accompagne à toutes les étapes de l’achat et dans toutes vos démarches.
Sérigné
TERRAIN ET MAISONSérigné : maison T2 (61 m²) en venteEMPLACEMENT PRIVILÉGIÉ – MAISON 2 PIÈCES NEUVEÀ vendre à 36 km de la côte atlantique, votre agence LMP Constructeur La Roche-sur-Yon est heureuse de vous présenter, bénéficiant d’un emplacement privilégié dans Sérigné (85200), cette maison de 2 pièces de plain-pied de 61 m².Son intérieur dispose de deux chambres, d’une cuisine et d’une salle de bains. Cette maison est neuve.Le terrain du bien s’étend sur 819 m².La maison se situe dans un secteur prisé. L’École Primaire Publique les Pierides est implantée à moins de 10 minutes à pied. Il y a un accès à l’autoroute A83 à 5 km. On trouve un tennis et une supérette dans les environs.Elle est proposée à l’achat pour 136 245 €.Contactez notre constructeur (Virginie NOVO : (Numéro supprimé)) pour toute question sur la propriété ou sur les modalités de vente. LMP Constructeur La Roche-sur-Yon est là pour vous accompagner dans tous vos projets immobiliers.
Sérigné
TERRAIN ET MAISONSérigné : maison de 2 pièces (50 m²) à vendreEMPLACEMENT PRIVILÉGIÉ – MAISON 2 PIÈCES NEUVEEn vente à 36 km de la côte atlantique, laissez vous charmer par cette maison de 2 pièces de plain-pied de 50 m², bénéficiant d’un emplacement privilégié dans Sérigné (85200). Son intérieur compte une chambre, une cuisine et une salle de bains.Le terrain de la propriété s’étend sur 819 m².La maison est neuve.Cette propriété est située dans un quartier convoité. On trouve l’École Primaire Publique les Pierides à moins de 10 minutes à pied. Il y a un accès à l’autoroute A83 à 5 km. Il y a un tennis et une supérette à proximité.Elle est proposée à l’achat pour 126 165 €.Prenez contact avec notre agence (Virginie NOVO : (Numéro supprimé)) pour obtenir de plus amples renseignements sur la maison, sur les démarches à suivre ou sur les modalités de vente. LMP Constructeur La Roche-sur-Yon est là pour vous accompagner à toutes les étapes de votre projet.
L’actualité immobilière à Bourneau
27/11/2023
02/11/2023
30/10/2023
20/10/2023
16/10/2023
16/10/2023