Images
Description
Sur ce terrain, nous vous proposons cette maison neuve : la Clissonnaise, une charmante maison à étage de 70 m². Conçue par Maisons Privat, constructeur centenaire avec les meilleurs avis clients de la région, cette maison basse consommation est conforme à la RE2020, garantissant des performances énergétiques optimales.
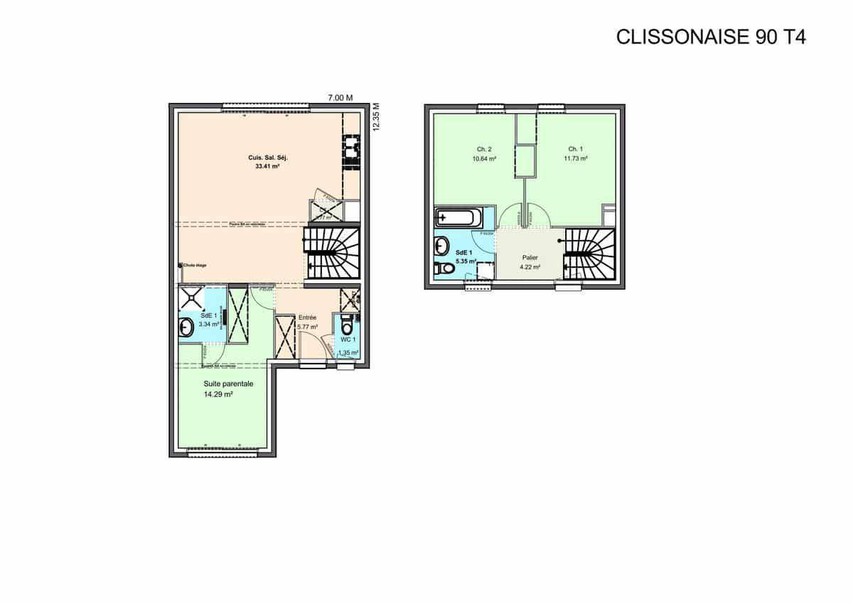
Très jolie maison traditionnelle à étage, la Clissonnaise conviendra aussi bien aux primo-accédants qu'aux couples ou aux petites familles. Elle se compose de 3 pièces, dont 2 chambres spacieuses, et est idéale pour un terrain étroit grâce à son design ingénieux.
Les caractéristiques principales de cette maison incluent des baies coulissantes pour un maximum de luminosité, une dalle étage en béton pour une solidité accrue, et une conformité à la norme RT2020 pour une efficacité énergétique supérieure.
Parmi les options les plus demandées par nos clients, vous pouvez choisir d'ajouter une deuxième salle de bains pour plus de confort, une baie à galandage pour un espace de vie encore plus ouvert, un carport pour protéger votre véhicule, ou un garage accolé pour plus de commodité.
Achetez votre nouvelle demeure à étage comme vous la souhaitez et profitez d'un grand espace de vie avec cuisine ouverte, parfait pour des moments conviviaux en famille ou entre amis. La Clissonnaise est disponible dans des dimensions allant de 70 à 110 m², permettant de nombreuses configurations en fonction de vos besoins.
Ne manquez pas cette opportunité unique de devenir propriétaire d'une maison neuve, basse consommation et parfaitement adaptée à vos attentes. Contactez-nous dès aujourd'hui pour plus d'informations et pour découvrir toutes les possibilités offertes par la Clissonnaise.
Logement susceptibles de vous intéresser
Nous vous proposons de découvrir aussi cette sélection de logements situés à moins de 10km de Bretignolles-sur-Mer et qui seraient susceptibles de vous intéresser.
Brem-sur-Mer
TERRAINVENTE d’un terrain de 432 m² à Brem-sur-MerIDÉALEMENT SITUÉ – PROCHE DE LA ROCHE-SUR-YONÀ Brem-sur-Mer (85470) sur la côte atlantique et à deux pas de La Roche-sur-Yon, donnez vie à la maison de vos rêves sur ce terrain de 432 m². Il donne sur un jardin. Dans un secteur attractif, le terrain idéalement situé est proche des commerces et des écoles. Il y a l’École Primaire Privée Notre Dame de l’Espérance et l’École Primaire Publique Sol et Vent à moins de 5 minutes . Côté transports, on trouve la gare Olonne-sur-Mer à moins de 10 minutes en voiture. Il y a un tennis, des commerces, une boulangerie, un supermarché, une épicerie et une boucherie charcuterie à quelques minutes du terrain. Enfin, le marché Rue de l’Océan anime le quartier.Ce terrain est à vendre pour la somme de 95 000 €. Contactez Tony MIGAULT (tél : (Numéro supprimé)) pour toute information sur le terrain, sur les démarches à suivre ou sur les modalités de vente. LMP Constructeur Challans est là pour vous accompagner dans tous vos projets immobiliers.
Givrand
TERRAINTerrain de 310 m² à vendre à GivrandEMPLACEMENT PRIVILÉGIÉÀ Givrand (85800) à vendre à 4 km de la côte atlantique, donnez vie à la maison de vos rêves sur ce terrain de 310 m². Il donne sur un jardin et est orienté plein sud. Dans un secteur attractif, ce terrain bénéficiant d’un emplacement privilégié est proche des commerces et des écoles. L’École Primaire Privée la Fontaine est implantée à moins de 10 minutes. Niveau transports en commun, il y a les gares Saint-Gilles-Croix-de-Vie et Saint-Hilaire-de-Riez à moins de 10 minutes en voiture. On trouve une boulangerie et un commerce à quelques minutes à peine.Son prix de vente est de 97 200 €. Contactez Tony MIGAULT (tél : (Numéro supprimé)) pour toute information sur le terrain, sur les démarches à suivre ou sur les modalités de vente.
Brem-sur-Mer
TERRAIN ET MAISONBrem-sur-Mer : maison de 3 pièces (82 m²) en venteIDÉALEMENT SITUÉE – MAISON 3 PIÈCES NEUVEEn vente : sur la côte atlantique et à quelques kilomètres de La Roche-sur-Yon, idéalement située dans Brem-sur-Mer (85470), LMP Constructeur Challans vous présente cette maison de 3 pièces de plain-pied de 82 m².Son intérieur compte deux chambres, une cuisine et une salle de bains. Cette maison est neuve.Le terrain de la propriété est de 432 m².La maison est située dans un secteur attractif. Il y a l’École Primaire Privée Notre Dame de l’Espérance et l’École Primaire Publique Sol et Vent à moins de 5 minutes. Côté transports en commun, on trouve la gare Olonne-sur-Mer à moins de 10 minutes en voiture. Il y a un tennis, des commerces, une boulangerie, un supermarché, une boucherie-charcuterie et une épicerie à proximité du bien. Enfin, le marché Rue de l’Océan anime le quartier.Elle est à vendre pour la somme de 260 000 €.N’hésitez pas à prendre contact avec Tony MIGAULT ((Numéro supprimé)) pour toute information sur la maison, sur les démarches à suivre ou sur les modalités de vente. LMP Constructeur Challans vous accompagne à toutes les étapes de votre projet et dans tous vos projets immobiliers.
Brem-sur-Mer
TERRAIN ET MAISONVENTE : maison de 6 pièces (100 m²) à Brem-sur-MerIDÉALEMENT SITUÉE – MAISON 6 PIÈCES NEUVEÀ vendre à 4 km de l’océan Atlantique et à quelques kilomètres de La Roche-sur-Yon, venez découvrir cette maison de 6 pièces de plain-pied de 100 m² et de 432 m² de terrain idéalement située dans Brem-sur-Mer (85470).Son intérieur inclut cinq chambres, une cuisine et deux salles de bains. La maison est neuve.Cette maison se trouve dans un secteur convoité. Il y a l’École Primaire Privée Notre Dame de l’Espérance et l’École Primaire Publique Sol et Vent à moins de 5 minutes . Côté transports en commun, on trouve la gare Olonne-sur-Mer à moins de 10 minutes en voiture. Il y a un tennis, des commerces, une boulangerie, un supermarché, une boucherie charcuterie et une épicerie à quelques minutes du bien. Le marché Rue de l’Océan anime le quartier.Elle est à vendre pour la somme de 334 000 €.N’hésitez pas à prendre contact avec notre agence (MIGAULT Tony : (Numéro supprimé)) pour toute question sur la maison. LMP Constructeur Challans est là pour vous accompagner à toutes les étapes de l’achat.
Brem-sur-Mer
TERRAIN ET MAISONVENTE d’une maison F4 (78 m²) à Brem-sur-MerIDÉALEMENT SITUÉE – MAISON 4 PIÈCES NEUVEÀ 4 km de la côte atlantique et à deux pas de La Roche-sur-Yon, ayez le coup de coeur pour à vendre, idéalement située dans Brem-sur-Mer (85470), cette maison de 4 pièces de 78 m² et de 432 m² de terrain. Son intérieur se divise en trois chambres, une cuisine et une salle de bains.Cette maison comporte 2 niveaux. Elle est neuve.Cette maison se situe dans un secteur attractif. On trouve l’École Primaire Privée Notre Dame de l’Espérance et l’École Primaire Publique Sol et Vent à moins de 10 minutes . Côté transports en commun, il y a la gare Olonne-sur-Mer à moins de 10 minutes en voiture. On trouve un tennis, des commerces, une boulangerie, un supermarché, une boucherie charcuterie et une épicerie dans les environs. Le marché Rue de l’Océan anime le quartier.Elle est à vendre pour la somme de 253 000 €.Prenez contact avec Tony MIGAULT ((Numéro supprimé)) pour obtenir de plus amples informations sur la maison.
Brem-sur-Mer
TERRAIN ET MAISONVENTE : maison F4 (75 m²) à Brem-sur-MerIDÉALEMENT SITUÉE – MAISON 4 PIÈCES NEUVEÀ vendre : sur la côte atlantique et à 31 km de La Roche-sur-Yon, venez découvrir, idéalement située dans Brem-sur-Mer (85470), cette maison de 4 pièces de plain-pied de 75 m².Son intérieur propose trois chambres, une cuisine et une salle de bains. La maison est neuve.Le terrain du bien est de 432 m².Cette maison se situe dans un secteur prisé. L’École Primaire Privée Notre Dame de l’Espérance et l’École Primaire Publique Sol et Vent se trouvent à moins de 10 minutes à pied. Côté transports en commun, il y a la gare Olonne-sur-Mer à moins de 10 minutes . On trouve un tennis, des commerces, une boulangerie, un supermarché, une boucherie charcuterie et une épicerie à proximité de la maison. Le marché Rue de l’Océan anime le quartier.Son prix de vente est de 236 000 €.Contactez notre agence (Tony MIGAULT : (Numéro supprimé)) pour tout renseignement sur la maison, sur les démarches à suivre et sur les modalités de vente. Concrétisez vos projets immobiliers avec LMP Constructeur Challans.
Givrand
TERRAIN ET MAISONMaison F3 (61 m²) en vente à GivrandEMPLACEMENT PRIVILÉGIÉ – MAISON 3 PIÈCES NEUVEEn vente à 4 km de l’océan Atlantique, notre agence LMP Constructeur Challans est heureuse de vous présenter cette maison de 3 pièces de plain-pied de 61 m², bénéficiant d’un emplacement d’exception dans Givrand (85800).Son intérieur propose deux chambres, une cuisine et une salle de bains. Cette maison est neuve.Le terrain du bien est de 310 m².La propriété se situe dans un secteur prisé. Il y a l’École Primaire Privée la Fontaine à moins de 10 minutes. Côté transports, on trouve les gares Saint-Gilles-Croix-de-Vie et Saint-Hilaire-de-Riez à moins de 10 minutes en voiture. Il y a une boulangerie et un commerce à quelques minutes du logement.Elle est à vendre pour la somme de 215 000 €.Prenez contact avec Tony MIGAULT ((Numéro supprimé)) pour tout renseignement sur la maison ou sur les modalités de vente. Donnez vie à vos projets immobiliers avec LMP Constructeur Challans.
Givrand
TERRAIN ET MAISONMaison de 5 pièces (96 m²) à vendre à GivrandEMPLACEMENT PRIVILÉGIÉ – MAISON 5 PIÈCES NEUVESur la côte atlantique, nous vous présentons cette maison de 5 pièces de 96 m² et de 310 m² de terrain bénéficiant d’un emplacement privilégié dans Givrand (85800). Son intérieur inclut quatre chambres, une cuisine et une salle de bains.Cette maison compte 2 niveaux. Elle est neuve.La maison se trouve dans un quartier prisé. L’École Primaire Privée la Fontaine est implantée à moins de 10 minutes à pied. Côté transports, il y a les gares Saint-Gilles-Croix-de-Vie et Saint-Hilaire-de-Riez à moins de 10 minutes. On trouve une boulangerie et un commerce à proximité.Elle est proposée à l’achat pour 287 000 €.Prenez contact avec notre agence (MIGAULT Tony : (Numéro supprimé)) pour tout renseignement sur la maison ou sur les démarches à suivre. Concrétisez vos projets immobiliers avec LMP Constructeur Challans.
L'Aiguillon-sur-Vie
TERRAIN ET MAISONTerrain à bâtir – L’Aiguillon-sur-VieBeau terrain de 360 m² dans une commune agréable et recherchée. Emplacement privilégié, proche du centre-bourg et des commodités. Une belle opportunité pour concrétiser votre projet de construction. Cette charmante maison à étage de 100 m² s’adaptera sur les terrains avec une petite façade. Familiale, elle vous offre au rez-de-chaussée un bel espace de vie avec une cuisine ouverte, un cellier et un accès direct au garage, une chambre parentale avec placards, salle d’eau et wc séparés. A l’étage, un dégagement dessert trois chambres avec rangements, une salle de bains avec wc. Pour vous assurer un confort de vie optimal et en conformité avec la RE2025, nous avons opté pour un système de chauffage par pompe à chaleur (PAC) avec plancher chauffant au rez-de-chaussée et radiateurs à l’étage. Le logement est également équipé de volets roulants électriques. Prix hors fourniture et pose : des appareils sanitaires (sauf système de chauffage et d'eau chaude sanitaire), du carrelage et de la faïence, des revêtements de sol dans les chambres. Hors décoration et aménagement intérieur et peinture. Hors raccordements, frais de notaire et dommage ouvrage. // Réf. : 2539-210716-GMI. Prix terrain : 52 500 €, hors frais d'agence à la charge de l'acquéreur. Ce terrain vous est proposé, par nos partenaires fonciers, dans le cadre d'un projet de construction avec nous. Les informations sur les risques auxquels ce bien est exposé sont disponibles sur le site Géorisques (www.georisques.gouv.fr). Prix maison : 165 270 €.
L’actualité immobilière à Bretignolles-sur-Mer
27/11/2023
02/11/2023
30/10/2023
20/10/2023
16/10/2023
16/10/2023