Terrain à vendre

216799 €
85 m²
Challans
Vendée (85)
TERRAIN ET MAISON
Réf externe: 4883875
Annonce publiée le 6 novembre 2025

Images

Description

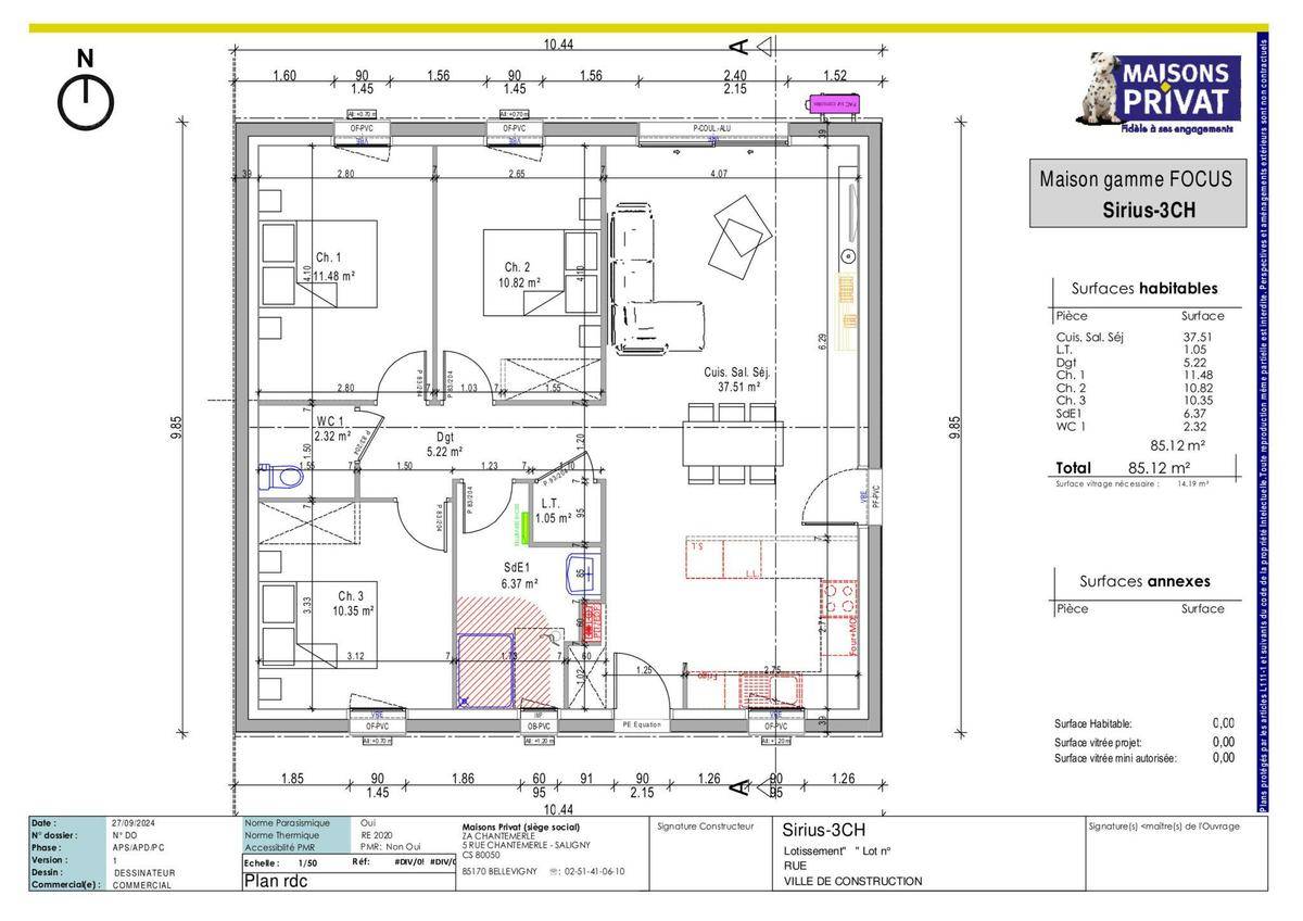
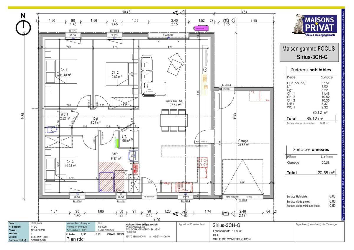
Sur ce terrain, nous vous proposons cette superbe maison de plain-pied au plan optimisé, pensée pour offrir confort et convivialité à toute la famille. Passé l’entrée, vous serez immédiatement séduit par une vaste pièce de vie baignée de lumière, où se côtoient salon, salle à manger et cuisine ouverte, idéale pour partager des moments chaleureux au quotidien.
Côté nuit, trois chambres spacieuses et lumineuses vous attendent, chacune permettant d’installer rangements et bureau selon vos envies. Une salle de bain moderne, un WC complètent cet agencement astucieux, facilitant l’organisation de la vie de famille.

Atout pratique : Un garage attenant de près de 21 m² permet de stationner votre véhicule en toute sécurité, tout en laissant de la place pour un atelier ou du rangement supplémentaire.
Moderne, fonctionnelle et pensée pour un confort optimal, cette maison saura répondre à toutes vos attentes. N’attendez plus pour venir la découvrir et laissez-vous séduire par son agencement harmonieux !

CONTACTER

Logement susceptibles de vous intéresser

172 649 €
300 m²

Saint-Christophe-du-Ligneron

TERRAIN ET MAISON

Ideal pour votre projet de construction. Contemporaine et confortable, le modèle ASINARA se distingue par son porche en façade avant et ses enduits bi-ton qui lui apportent un style très actuel. Cette maison de plain-pied vous propose une très belle pièce de vie très lumineuse grâce à ses nombreuses ouvertures. La cuisine est très fonctionnelle puisqu’à la fois ouverte sur le séjour et accolée au cellier. L’espace nuit est composé de trois chambres avec tous les rangements nécessaires ainsi que d’une salle de bains et des wc séparés. Le plus de cette maison est sans nul doute son garage intégré. Ses jeux d'enduits personnalisables sauront vous séduire. Pour vous assurer un confort de vie et conformément à la RE2025, nous avons choisi un mode de chauffage par PAC + plancher chauffant, volets roulants électriques. Prix hors fourniture et pose : des appareils sanitaires (sauf système de chauffage et d'eau chaude sanitaire), du carrelage et de la faïence, des revêtements de sol dans les chambres. Hors décoration et aménagement intérieur et peinture. Hors raccordements, frais de notaire et dommage ouvrage. // Réf. : 2536-210815-DIB. Prix terrain : 45 000 €, hors frais d'agence à la charge de l'acquéreur. Ce terrain vous est proposé, par nos partenaires fonciers, dans le cadre d'un projet de construction avec nous. Les informations sur les risques auxquels ce bien est exposé sont disponibles sur le site Géorisques (www.georisques.gouv.fr). Prix maison : 127 649 €.

212 498 €
512 m²

Commequiers

TERRAIN ET MAISON

Idéal pour votre projet de construction. Vous serez séduits par cette maison contemporaine qui se distingue par son porche en façade et ses enduits bi-ton personnalisable. Elle vous accueille dans un très bel espace de vie de plus de 44 m² très lumineux grâce à ses nombreuses ouvertures. La cuisine ouverte est très fonctionnelle puisqu’à la fois ouverte sur le séjour et accolée au cellier. L’espace nuit est composé de trois chambres avec tous les rangements nécessaires ainsi que d’une salle de bain et des wc séparés. Le plus de cette maison est sans nul doute son garage intégré. Pour vous assurer un confort de vie et conformément à la RE2025, nous avons choisi un mode de chauffage par PAC + plancher chauffant, volets roulants électriques. Prix hors fourniture et pose : des appareils sanitaires (sauf système de chauffage et d'eau chaude sanitaire), du carrelage et de la faïence, des revêtements de sol dans les chambres. Hors décoration et aménagement intérieur et peinture. Hors raccordements, frais de notaire et dommage ouvrage. // Réf. : 2538-210814-DIB. Prix terrain : 75 500 €, hors frais d'agence à la charge de l'acquéreur. Ce terrain vous est proposé, par nos partenaires fonciers, dans le cadre d'un projet de construction avec nous. Les informations sur les risques auxquels ce bien est exposé sont disponibles sur le site Géorisques (www.georisques.gouv.fr). Prix maison : 136 998 €.

L’actualité immobilière à Challans

Image du post Pourquoi acheter un terrain en lotissement ? 27/11/2023
Lire l’article
Pourquoi acheter un terrain en lotissement ?
Image du post Vendre son terrain à un promoteur : comment procéder ? 02/11/2023
Lire l’article
Vendre son terrain à un promoteur : comment procéder ?
Image du post Diviser le terrain de sa maison pour le vendre : pourquoi et comment ? 30/10/2023
Lire l’article
Diviser le terrain de sa maison pour le vendre : pourquoi et comment ?
Image du post Acheter un terrain viabilisé : quels avantages ? 20/10/2023
Lire l’article
Acheter un terrain viabilisé : quels avantages ?
Image du post Les 7 étapes incontournables pour bien vendre votre terrain constructible 16/10/2023
Lire l’article
Les 7 étapes incontournables pour bien vendre votre terrain constructible
Image du post 5 points clés à vérifier pour l’achat d’un terrain constructible  16/10/2023
Lire l’article
5 points clés à vérifier pour l’achat d’un terrain constructible