Maison à construire à Challans (85300)
Images
Description
VENTE : maison de 3 pièces (82 m²) à Challans
IDÉALEMENT SITUÉE - MAISON 3 PIÈCES NEUVE
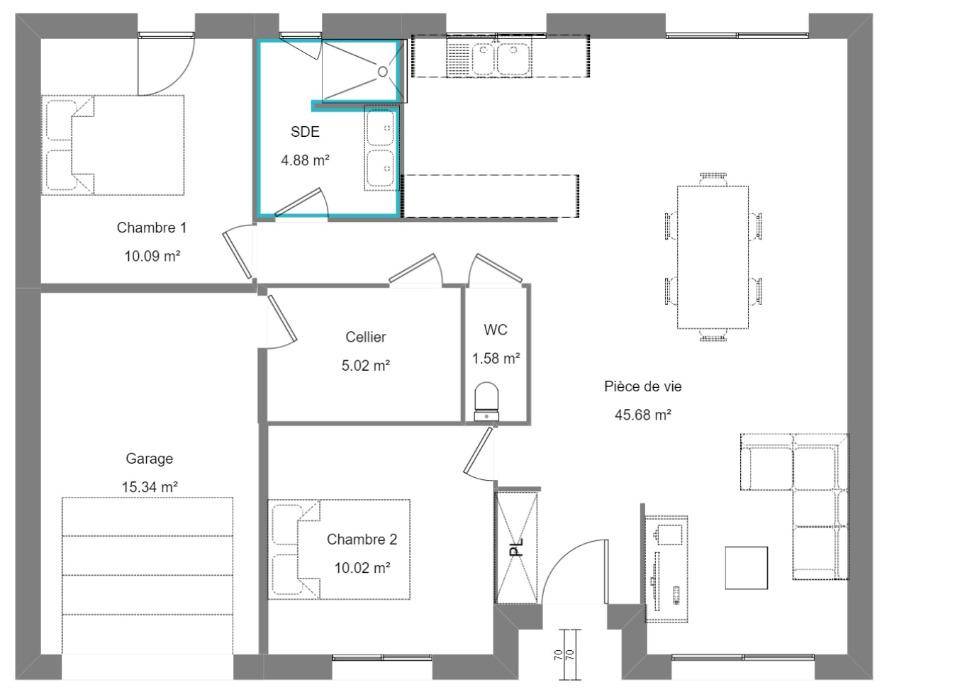
À 17 km de l'océan Atlantique, en vente idéalement située dans Challans (85300), notre agence LMP Constructeur Challans est heureuse de vous présenter cette maison de 3 pièces de plain-pied de 82 m². Son intérieur inclut deux chambres, une cuisine et une salle de bains.
Le terrain de la propriété s'étend sur 436 m².
La maison est neuve.
Le bien se situe dans un quartier prisé. Il y a des établissements scolaires de tous niveaux à moins de 10 minutes, tout comme deux structures d'accueil pour les enfants en bas âge. Niveau transports en commun, on trouve la gare Challans à quelques pas de la maison. Il y a deux bassins de natation, un tennis, des commerces, des boulangeries, deux supermarchés, deux poissonneries et deux épiceries dans les environs.
Son prix de vente est de 242 000 €.
Prenez contact avec notre agence (MIGAULT Tony : (Numéro supprimé)) pour plus de renseignements sur la maison. Concrétisez vos projets immobiliers avec LMP Constructeur Challans.
Logement susceptibles de vous intéresser
Nous vous proposons de découvrir aussi cette sélection de logements situés à moins de 10km de Challans et qui seraient susceptibles de vous intéresser.
Saint-Christophe-du-Ligneron
TERRAIN ET MAISONIdeal pour votre projet de construction. Cette maison de plain-pied en L, fonctionnelle et spacieuse vous propose un bel espace de vie lumineux et traversant. Sa cuisine est ouverte sur le séjour et a un accès direct au cellier. Son espace nuit est composé de trois belles chambres dont une suite parentale avec dressing et salle de bain privative, une deuxième salle de bains équipé ainsi que des wc séparés. Pour vous assurer un confort de vie et conformément à la RE2025, nous avons choisi un mode de chauffage par PAC + plancher chauffant, volets roulants électriques. Prix hors fourniture et pose : des appareils sanitaires (sauf système de chauffage et d'eau chaude sanitaire), du carrelage et de la faïence, des revêtements de sol dans les chambres. Hors décoration et aménagement intérieur et peinture. Hors raccordements, frais de notaire et dommage ouvrage. // Réf. : 2544-210815-DIB. Prix terrain : 45 000 €, hors frais d'agence à la charge de l'acquéreur. Ce terrain vous est proposé, par nos partenaires fonciers, dans le cadre d'un projet de construction avec nous. Les informations sur les risques auxquels ce bien est exposé sont disponibles sur le site Géorisques (www.georisques.gouv.fr). Prix maison : 133 062 €.
Saint-Christophe-du-Ligneron
TERRAIN ET MAISONIdeal pour votre projet de construction. Agréable et lumineuse, cette maison de plain-pied vous propose une cuisine ouverte sur un vaste séjour traversant de 47 m² environ. L'accès direct cuisine, cellier et garage facilite l'habitabilité de cette maison. L'espace nuit est composé de deux belles chambres avec rangement, d'une salle de bains et des wc séparés. Ses jeux d'enduits personnalisables sauront vous séduire. . Pour vous assurer un confort de vie et conformément à la RE2025, nous avons choisi un mode de chauffage par PAC + plancher chauffant, volets roulants électriques. Prix hors fourniture et pose : des appareils sanitaires (sauf système de chauffage et d'eau chaude sanitaire), du carrelage et de la faïence, des revêtements de sol dans les chambres. Hors décoration et aménagement intérieur et peinture. Hors raccordements, frais de notaire et dommage ouvrage. // Réf. : 2561-210815-DIB. Prix terrain : 45 000 €, hors frais d'agence à la charge de l'acquéreur. Ce terrain vous est proposé, par nos partenaires fonciers, dans le cadre d'un projet de construction avec nous. Les informations sur les risques auxquels ce bien est exposé sont disponibles sur le site Géorisques (www.georisques.gouv.fr). Prix maison : 129 588 €.
Saint-Christophe-du-Ligneron
TERRAIN ET MAISONIdeal pour votre projet de construction. Contemporaine et confortable, le modèle ASINARA se distingue par son porche en façade avant et ses enduits bi-ton qui lui apportent un style très actuel. Cette maison de plain-pied vous propose une très belle pièce de vie très lumineuse grâce à ses nombreuses ouvertures. La cuisine est très fonctionnelle puisqu’à la fois ouverte sur le séjour et accolée au cellier. L’espace nuit est composé de trois chambres avec tous les rangements nécessaires ainsi que d’une salle de bains et des wc séparés. Le plus de cette maison est sans nul doute son garage intégré. Ses jeux d'enduits personnalisables sauront vous séduire. Pour vous assurer un confort de vie et conformément à la RE2025, nous avons choisi un mode de chauffage par PAC + plancher chauffant, volets roulants électriques. Prix hors fourniture et pose : des appareils sanitaires (sauf système de chauffage et d'eau chaude sanitaire), du carrelage et de la faïence, des revêtements de sol dans les chambres. Hors décoration et aménagement intérieur et peinture. Hors raccordements, frais de notaire et dommage ouvrage. // Réf. : 2536-210815-DIB. Prix terrain : 45 000 €, hors frais d'agence à la charge de l'acquéreur. Ce terrain vous est proposé, par nos partenaires fonciers, dans le cadre d'un projet de construction avec nous. Les informations sur les risques auxquels ce bien est exposé sont disponibles sur le site Géorisques (www.georisques.gouv.fr). Prix maison : 127 649 €.
Commequiers
TERRAIN ET MAISONIdéal pour votre projet de construction. Maison rectangulaire de plain-pied de plus de 100 m² habitables qui vous séduira par son espace de vie traversant baigné de lumière grâce à ses ouvertures, un cellier et un garage accessible de la cuisine ouverte. Pour l’espace nuit, 4 chambres, une salle de bains avec douche et baignoire, un wc séparé. Pour vous assurer un confort de vie et conformément à la RE2025, nous avons choisi un mode de chauffage par PAC + plancher chauffant, volets roulants électriques. Prix hors fourniture et pose : des appareils sanitaires (sauf système de chauffage et d'eau chaude sanitaire), du carrelage et de la faïence, des revêtements de sol dans les chambres. Hors décoration et aménagement intérieur et peinture. Hors raccordements, frais de notaire et dommage ouvrage. // Réf. : 2567-210814-DIB. Prix terrain : 75 500 €, hors frais d'agence à la charge de l'acquéreur. Ce terrain vous est proposé, par nos partenaires fonciers, dans le cadre d'un projet de construction avec nous. Les informations sur les risques auxquels ce bien est exposé sont disponibles sur le site Géorisques (www.georisques.gouv.fr). Prix maison : 146 537 €.
Commequiers
TERRAIN ET MAISONIdéal pour votre projet de construction. Vous serez séduits par cette maison contemporaine qui se distingue par son porche en façade et ses enduits bi-ton personnalisable. Elle vous accueille dans un très bel espace de vie de plus de 44 m² très lumineux grâce à ses nombreuses ouvertures. La cuisine ouverte est très fonctionnelle puisqu’à la fois ouverte sur le séjour et accolée au cellier. L’espace nuit est composé de trois chambres avec tous les rangements nécessaires ainsi que d’une salle de bain et des wc séparés. Le plus de cette maison est sans nul doute son garage intégré. Pour vous assurer un confort de vie et conformément à la RE2025, nous avons choisi un mode de chauffage par PAC + plancher chauffant, volets roulants électriques. Prix hors fourniture et pose : des appareils sanitaires (sauf système de chauffage et d'eau chaude sanitaire), du carrelage et de la faïence, des revêtements de sol dans les chambres. Hors décoration et aménagement intérieur et peinture. Hors raccordements, frais de notaire et dommage ouvrage. // Réf. : 2538-210814-DIB. Prix terrain : 75 500 €, hors frais d'agence à la charge de l'acquéreur. Ce terrain vous est proposé, par nos partenaires fonciers, dans le cadre d'un projet de construction avec nous. Les informations sur les risques auxquels ce bien est exposé sont disponibles sur le site Géorisques (www.georisques.gouv.fr). Prix maison : 136 998 €.
Commequiers
TERRAIN ET MAISONIdéal pour votre projet de construction. Idéal premier achat, cette maison de plain-pied fonctionnelle et lumineuse vous propose une vaste pièce de vie éclairée par sa grande baie vitrée avec cuisine ouverte, deux chambres avec rangement, salle de bains et cellier indépendant. Pour vous assurer un confort de vie et conformément à la RE2025, nous avons choisi un mode de chauffage par PAC + plancher chauffant, volets roulants électriques. Prix hors fourniture et pose : des appareils sanitaires (sauf système de chauffage et d'eau chaude sanitaire), du carrelage et de la faïence, des revêtements de sol dans les chambres. Hors décoration et aménagement intérieur et peinture. Hors raccordements, frais de notaire et dommage ouvrage. // Réf. : 2552-210814-DIB. Prix terrain : 75 500 €, hors frais d'agence à la charge de l'acquéreur. Ce terrain vous est proposé, par nos partenaires fonciers, dans le cadre d'un projet de construction avec nous. Les informations sur les risques auxquels ce bien est exposé sont disponibles sur le site Géorisques (www.georisques.gouv.fr). Prix maison : 99 601 €.
Commequiers
TERRAINIdéal pour votre projet de construction. // Réf. : T210814. Prix terrain : 75 500 €, hors frais d'agence et de notaire à la charge de l'acquéreur. Ce terrain vous est proposé, par nos partenaires fonciers, dans le cadre d'un projet de construction avec nous. Les informations sur les risques auxquels ce bien est exposé sont disponibles sur le site Géorisques (www.georisques.gouv.fr).
Saint-Christophe-du-Ligneron
TERRAINIdeal pour votre projet de construction. // Réf. : T210815. Prix terrain : 45 000 €, hors frais d'agence et de notaire à la charge de l'acquéreur. Ce terrain vous est proposé, par nos partenaires fonciers, dans le cadre d'un projet de construction avec nous. Les informations sur les risques auxquels ce bien est exposé sont disponibles sur le site Géorisques (www.georisques.gouv.fr).
Soullans
TERRAINVENTE : terrain de 360 m² à SoullansIDÉALEMENT SITUÉÀ Soullans (85300) à 12 km de la côte atlantique, donnez vie à votre projet immobilier sur ce terrain de 360 m². Il donne sur un jardin. Dans un secteur prisé, le terrain idéalement situé est proche des écoles et des commerces. On trouve l’École Primaire Publique Charles Milcendeau et l’École Primaire Privée les Roseaux à moins de 5 minutes . Niveau transports en commun, il y a deux gares (Challans et Saint-Hilaire-de-Riez) à moins de 10 minutes en voiture. On trouve un tennis, quatre commerces, deux boulangeries, une supérette, deux boucheries-charcuteries et une poissonnerie dans les environs.Ce terrain est à vendre pour la somme de 73 000 €. N’hésitez pas à prendre contact avec notre agence (MIGAULT Tony : (Numéro supprimé)) pour plus de renseignements sur le terrain ou sur les démarches à suivre.
L’actualité immobilière à Challans
27/11/2023
02/11/2023
30/10/2023
20/10/2023
16/10/2023
16/10/2023