Images
Description
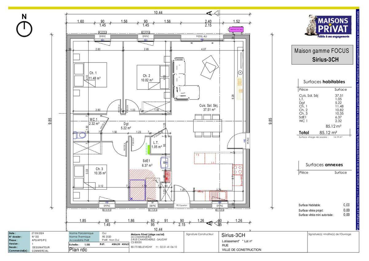
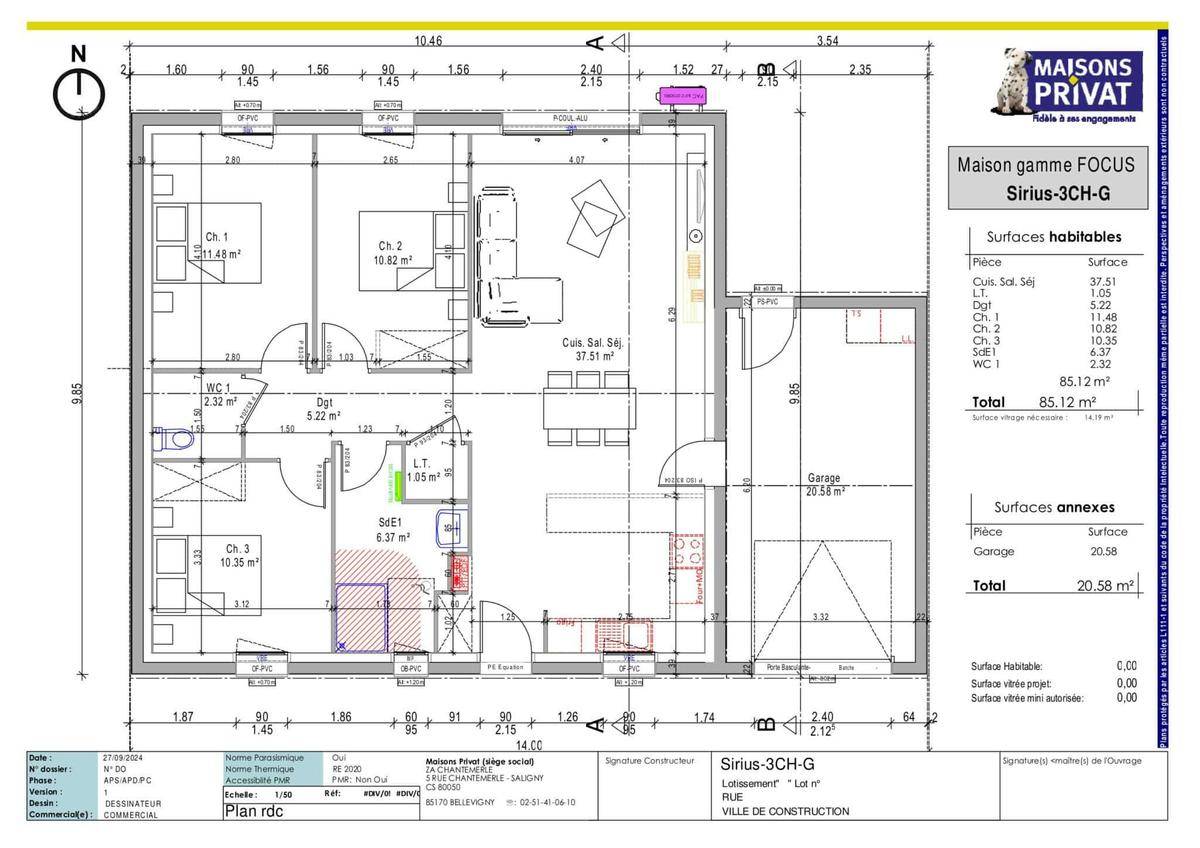
Sur ce terrain, nous vous proposons cette élégante maison de plain-pied, dont la conception soignée mise sur la luminosité et la convivialité. Dès l’entrée, vous serez accueilli par une généreuse pièce à vivre de plus de 37 m², inondée de lumière naturelle, qui rassemble salon, salle à manger et cuisine ouverte pour des moments de partage en famille ou entre amis.
La partie nuit se compose de trois chambres confortables, offrant chacune la possibilité d’aménager rangements et espace de travail selon vos envies. Une salle de bain moderne, un WC indépendant viennent compléter un agencement pensé pour simplifier votre quotidien.
Sur cette version, un garage peut être ajouté en option.
Avec sa disposition ingénieuse et ses volumes agréables, cette maison saura vous séduire par son atmosphère chaleureuse et son potentiel d’aménagement. Ne manquez pas cette belle opportunité et venez la visiter sans tarder?!
Logement susceptibles de vous intéresser
Nous vous proposons de découvrir aussi cette sélection de logements situés à moins de 10km de Challans et qui seraient susceptibles de vous intéresser.
Challans
TERRAINSitué sur la commune dynamique de Challans, à proximité des commerces, écoles et services, découvrez ce beau terrain viabilisé de 750 m², prêt à accueillir votre projet de construction. Implanté dans un environnement calme et verdoyant, ce terrain offre un cadre de vie idéal pour allier tranquillité et proximité du centre-ville. // Réf. : T210144. Prix terrain : 147 500 €, hors frais d'agence et de notaire à la charge de l'acquéreur. Ce terrain vous est proposé, par nos partenaires fonciers, dans le cadre d'un projet de construction avec nous. Les informations sur les risques auxquels ce bien est exposé sont disponibles sur le site Géorisques (www.georisques.gouv.fr).
Challans
TERRAIN ET MAISONSitué sur la commune dynamique de Challans, à proximité des commerces, écoles et services, découvrez ce beau terrain viabilisé de 750 m², prêt à accueillir votre projet de construction. Implanté dans un environnement calme et verdoyant, ce terrain offre un cadre de vie idéal pour allier tranquillité et proximité du centre-ville. Une maison facile à vivre, pensée pour répondre à toutes vos envies de simplicité et de confort. Avec sa pièce de vie traversante et ouverte, ses 3 chambres, sa salle de bain fonctionnelle et son garage intégré, ce modèle offre tout le nécessaire, sans superflu. Idéale pour un premier achat malin ou une résidence secondaire pratique et lumineuse, elle combine compacité, efficacité et confort au quotidien. Son plan évolutif et personnalisable s’adapte à vos projets de vie, en bord de mer comme à la campagne. Pour un confort optimal et conforme à la RE2025, cette maison dispose d’une PAC avec plancher chauffant et volets roulants électriques. À noter : Le prix indiqué exclut les revêtements de sol des chambres, la cuisine aménagée, la peinture, la décoration, les frais de notaire et l’assurance dommages ouvrage. // Réf. : 554-210144-THW. Prix terrain : 147 500 €, hors frais d'agence à la charge de l'acquéreur. Ce terrain vous est proposé, par nos partenaires fonciers, dans le cadre d'un projet de construction avec nous. Les informations sur les risques auxquels ce bien est exposé sont disponibles sur le site Géorisques (www.georisques.gouv.fr). Prix maison : 149 940 €.
Challans
TERRAIN ET MAISONSitué sur la commune dynamique de Challans, à proximité des commerces, écoles et services, découvrez ce beau terrain viabilisé de 750 m², prêt à accueillir votre projet de construction. Implanté dans un environnement calme et verdoyant, ce terrain offre un cadre de vie idéal pour allier tranquillité et proximité du centre-ville. Un format compact, un agencement malin et une vraie sensation d’espace : cette maison de plain-pied a tout d’un refuge facile à vivre. La pièce de vie traversante avec cuisine ouverte s’ouvre sur l’extérieur pour profiter pleinement de chaque rayon de soleil. Avec ses 2 chambres, sa salle de bain fonctionnelle, son cellier attenant et son garage intégré, elle réunit tous les essentiels dans une ambiance simple et agréable. Un modèle idéal pour une première acquisition ou pour poser ses valises en toute liberté à deux pas de l’océan. Pour un confort optimal et conforme à la RE2025, cette maison dispose d’une PAC avec plancher chauffant et volets roulants électriques. À noter : Le prix indiqué exclut les revêtements de sol des chambres, la cuisine aménagée, la peinture, la décoration, les frais de notaire et l’assurance dommages ouvrage. // Réf. : 558-210144-THW. Prix terrain : 147 500 €, hors frais d'agence à la charge de l'acquéreur. Ce terrain vous est proposé, par nos partenaires fonciers, dans le cadre d'un projet de construction avec nous. Les informations sur les risques auxquels ce bien est exposé sont disponibles sur le site Géorisques (www.georisques.gouv.fr). Prix maison : 133 800 €.
Challans
TERRAIN ET MAISONSitué sur la commune dynamique de Challans, à proximité des commerces, écoles et services, découvrez ce beau terrain viabilisé de 750 m², prêt à accueillir votre projet de construction. Implanté dans un environnement calme et verdoyant, ce terrain offre un cadre de vie idéal pour allier tranquillité et proximité du centre-ville. Moderne et astucieuse, cette maison à étage sépare avec élégance les espaces de vie et les espaces nuit. Au rez-de-chaussée, profitez d’un grand séjour lumineux, d’une cuisine ouverte avec cellier et d’un garage intégré. À l’étage, 3 belles chambres, une salle de bain, un WC indépendant et un dégagement central assurent confort et intimité. Un modèle personnalisable qui s’adapte à vos envies, pour un projet unique à votre image !. Pour un confort optimal et conforme à la RE2025, cette maison dispose d’une PAC avec plancher chauffant et volets roulants électriques. À noter : Le prix indiqué exclut les revêtements de sol des chambres, la cuisine aménagée, la peinture, la décoration, les frais de notaire et l’assurance dommages ouvrage. // Réf. : 544-210144-THW. Prix terrain : 147 500 €, hors frais d'agence à la charge de l'acquéreur. Ce terrain vous est proposé, par nos partenaires fonciers, dans le cadre d'un projet de construction avec nous. Les informations sur les risques auxquels ce bien est exposé sont disponibles sur le site Géorisques (www.georisques.gouv.fr). Prix maison : 164 463 €.
Challans
TERRAINSitué sur la commune dynamique de Challans, à proximité des commerces, écoles et services, découvrez ce beau terrain viabilisé de 750 m², prêt à accueillir votre projet de construction. Implanté dans un environnement calme et verdoyant, ce terrain offre un cadre de vie idéal pour allier tranquillité et proximité du centre-ville. // Réf. : T210144. Prix terrain : 147 500 €, hors frais d'agence et de notaire à la charge de l'acquéreur. Ce terrain vous est proposé, par nos partenaires fonciers, dans le cadre d'un projet de construction avec nous. Les informations sur les risques auxquels ce bien est exposé sont disponibles sur le site Géorisques (www.georisques.gouv.fr).
Commequiers
TERRAINNous vous proposons un terrain à vendre d’une superficie de 344 m², idéalement situé dans la charmante commune de Commequiers, en Vendée. Ce terrain plat et ensoleillé, bien positionné, représente une opportunité rare pour concrétiser votre projet de construction de maison, offrant un cadre de vie agréable et pratique. Son emplacement privilégié en cœur de ville vous permettra de bénéficier de commodités de proximité et d’une qualité de vie indiscutable. Commequiers est un lieu de vie plaisant, à proximité des vallées, des plages de la Côte de Lumière et des axes routiers principaux, facilitant ainsi l’accès aux villes voisines. Vous trouverez ici toutes les commodités nécessaires : petits commerces, écoles et divers services à quelques pas de votre futur foyer. Profitez également des attraits locaux qui feront le bonheur de toute la famille, alliant nature et culture dans une région riche en histoire. Ce terrain est l’occasion rêvée d’ériger la maison de vos rêves dans un environnement dynamique et accueillant. N’attendez plus pour découvrir ce terrain, une rare opportunité à saisir dès maintenant pour donner vie à votre projet immobilier. À noter qu’en tant que constructeur, nous ne sommes pas mandatés pour réaliser la vente de ce terrain.
Commequiers
TERRAIN ET MAISONSur ce terrain, nous vous proposons cette superbe maison de plain-pied, alliant confort, modernité et praticité, idéale pour une famille en quête de bien-être.Avec son agencement optimisé, cette maison vous offre une spacieuse pièce de vie baignée de lumière naturelle, comprenant un séjour convivial et une cuisine ouverte fonctionnelle, parfaite pour des moments en famille ou entre amis.L’espace nuit se compose de trois belles chambres offrant confort et sérénité, d’une salle d’eau moderne et de WC séparés pour plus de praticité.Un garage intégré vient compléter ce bien, idéal pour stationner un véhicule ou disposer d’un espace de rangement supplémentaire.
Challans
TERRAINDécouvrez ce terrain d’une superficie de 305 m², idéalement situé dans le charmant lotissement de Challans, une commune dynamique de la Vendée. Ce bien, entièrement viabilisé, vous offre une opportunité unique de réaliser votre projet de construction de maison dans un cadre de vie agréable. Grâce à son ensoleillement optimal, ce terrain s’inscrit parfaitement dans un environnement où il fait bon vivre. Challans, située dans la région des Pays de la Loire, combine le charme de la campagne avec la proximité des commodités modernes. Profitez des commerces variés, écoles, collégiales et lycées à proximité, ainsi que d’un accès facile aux transports en commun, notamment grâce à l’arrêt de bus et à la gare à proximité. Avec un accès rapide aux grands axes routiers, vous découvrirez tout le potentiel de cette ville dynamique, qui ne manque pas d’atouts pour séduire les familles et les professionnels en quête d’un havre de paix et de confort. Ne laissez pas passer cette occasion exceptionnelle d’acquérir un terrain au potentiel énorme. Contactez-nous dès maintenant pour envisager votre futur projet sur cette parcelle. À noter qu’en tant que constructeur, nous ne sommes pas mandatés pour réaliser la vente de ce terrain.
Challans
TERRAIN ET MAISONSur ce terrain, nous vous proposons cette élégante maison de plain-pied, dont la conception soignée mise sur la luminosité et la convivialité. Dès l’entrée, vous serez accueilli par une généreuse pièce à vivre de plus de 37 m², inondée de lumière naturelle, qui rassemble salon, salle à manger et cuisine ouverte pour des moments de partage en famille ou entre amis.La partie nuit se compose de trois chambres confortables, offrant chacune la possibilité d’aménager rangements et espace de travail selon vos envies. Une salle de bain moderne, un WC indépendant viennent compléter un agencement pensé pour simplifier votre quotidien.Sur cette version, un garage peut être ajouté en option.Avec sa disposition ingénieuse et ses volumes agréables, cette maison saura vous séduire par son atmosphère chaleureuse et son potentiel d’aménagement. Ne manquez pas cette belle opportunité et venez la visiter sans tarder?!
L’actualité immobilière à Challans
27/11/2023
02/11/2023
30/10/2023
20/10/2023
16/10/2023
16/10/2023