Images
Description
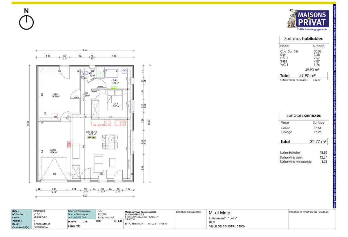
Sur ce terrain, nous vous proposons ce modèle de maison qui incarne l'harmonie parfaite entre fonctionnalité et adaptabilité, elle est conçue pour répondre à vos besoins présents tout en anticipant vos projets futurs.
Le cœur de cette maison est une pièce de vie spacieuse et lumineuse de 30 m², judicieusement aménagée pour maximiser le confort et l'utilité. Cet espace multifonctionnel combine un salon / séjour accueillant, et une cuisine ouverte moderne. Les grandes fenêtres baignent la pièce de lumière naturelle, créant une atmosphère chaleureuse et accueillante, idéale pour se détendre ou recevoir des invités.
À côté de la pièce de vie se trouvent une chambre et une salle d’eau.
Adossé à la maison, un garage de 34 m.² offre un espace pratique pour garer un véhicule ou stocker des équipements.
La conception de cette maison intègre dès le départ la possibilité d'évolution. Lorsque le moment sera venu d'agrandir, l'atelier actuel pourra être aménagé en une chambre avec salle d'eau ou dressing. Cette transformation est facilitée par une infrastructure prévue pour accueillir les installations sanitaires nécessaires. Cette flexibilité permet d'adapter la maison à l'évolution de votre famille ou de vos besoins sans compromis sur le confort ou la qualité de vie.
En résumé, cette maison évolutive est une solution idéale pour ceux qui cherchent à investir dans un habitat adaptable et durable.
* Prix indiqué hors branchements, hors sanitaires, hors revêtement des sols et des murs. Assurance dommages ouvrages incluse.
Logement susceptibles de vous intéresser
Nous vous proposons de découvrir aussi cette sélection de logements situés à moins de 10km de Chavagnes-en-Paillers et qui seraient susceptibles de vous intéresser.
Montaigu-Vendée
TERRAIN ET MAISONSur ce terrain, nous vous proposons cette maison neuve : l’Aixoise, un coquet pavillon familial de plain-pied. Disponible en T4 sur une superficie de 80 m², l’Aixoise est une jolie maison traditionnelle qui saura répondre à toutes vos attentes.Une maison neuve idéale pour installer votre petite famille. Vous apprécierez l’espace nuit agrémenté d’un dégagement le rendant véritablement indépendant de la pièce de vie. Il est composé de trois chambres, d’une salle de bain et de w.c. séparés. Le grand séjour traversant est doté d’une cuisine ouverte avec accès au garage intégré. D’une conception pratique et originale tout à la fois, cette demeure a beaucoup d’atouts pour séduire, même les plus exigeants.Les caractéristiques principales de cette maison incluent un toit à 2 pans ou 4 pans, des baies coulissantes pour une luminosité optimale, et un garage intégré. De plus, cette maison neuve est basse consommation et conforme à la RE2020, garantissant ainsi des économies d’énergie et un confort de vie optimal.Les options les plus demandées par nos clients sont également disponibles : une terrasse en béton poreux, un plancher chauffant, des menuiseries en aluminium, et un système de domotique pour une maison connectée et moderne.Construite par Maisons Privat, constructeur centenaire avec les meilleurs avis clients de la région, l’Aixoise est la maison idéale pour votre famille. Ne manquez pas cette opportunité unique de vivre dans une maison neuve, confortable et économe en énergie. Contactez-nous dès aujourd’hui pour plus d’informations !
Montaigu-Vendée
TERRAIN ET MAISONBeau terrain situé dans un environnement calme et verdoyant, proche des commodités et idéal pour concrétiser votre projet de construction. Transformez votre maison avec Evolia. Avec Evolia, construisez la maison de vos rêves, étape par étape. Profitez d'une modularité unique et faites de votre foyer un espace évolutif et adaptable à chaque moment de votre vie. Notre atout majeur ? Un garage de 41 m² transformable en un espace de vie exceptionnel. Ce vaste garage peut devenir trois chambres supplémentaires et une salle d'eau, vous permettant d'agrandir votre maison sans déménagement et en maximisant chaque mètre carré pour répondre à vos besoins changeants. Prix hors fourniture et pose : des appareils sanitaires (sauf système de chauffage et d'eau chaude sanitaire), du carrelage, de la faïence, de la cuisine aménagée, des revêtements de sol dans les chambres. Hors décoration, aménagement intérieur, peinture, raccordements, frais de notaire et dommage ouvrage. (Surface habitable 49 m² + garage 41 m²). // Réf. : 2604-213536-VAS. Prix terrain : 53 000 €, hors frais d'agence à la charge de l'acquéreur. Ce terrain vous est proposé, par nos partenaires fonciers, dans le cadre d'un projet de construction avec nous. Les informations sur les risques auxquels ce bien est exposé sont disponibles sur le site Géorisques (www.georisques.gouv.fr). Prix maison : 98 996 €.
Chavagnes-en-Paillers
TERRAIN ET MAISONSur ce terrain, nous vous proposons cette maison neuve : la Coueronnaise, une maison traditionnelle à étage de charme. Conçue par Maisons Privat, constructeur centenaire avec les meilleurs avis clients de la région, cette habitation d’une surface de 95 m² est la maison familiale par excellence.La Coueronnaise vous séduira par son architecture traditionnelle et sa façade décrochée. Elle dispose de 4 pièces bien agencées, dont 3 chambres spacieuses. Le séjour-cuisine-salon est vaste et lumineux, agrémenté de baies coulissantes qui apportent une belle luminosité naturelle. L’entrée est séparée, offrant une organisation optimale de l’espace.À l’étage, vous trouverez deux chambres munies de placards, une salle de bains avec baignoire et WC intégrés, ainsi qu’un bureau. En rez-de-chaussée, une suite parentale avec salle d’eau privative et une douche italienne vous offriront tout le confort nécessaire.Cette maison neuve est basse consommation et conforme à la RE2020, garantissant des performances énergétiques optimales et un respect de l’environnement. Parmi les options les plus demandées par nos clients, vous pourrez choisir un garage accolé, des menuiseries en aluminium et un système de domotique pour une maison encore plus moderne et fonctionnelle.Ne manquez pas cette opportunité unique de devenir propriétaire d’une maison neuve, bien organisée et économe en énergie, conçue par un constructeur de renom. Contactez-nous dès maintenant pour plus d’informations et pour visiter notre modèle Coueronnaise.
Montaigu-Vendée
TERRAINOffrez-vous une opportunité exceptionnelle avec ce terrain de 348 mètres carrés, viabilisé et prêt à accueillir votre projet de construction de maison. Situé au cœur de Saint-Hilaire-de-Loulay, ce terrain bénéficie d’un emplacement privilégié dans un lotissement tranquille, idéal pour les familles et les personnes souhaitant s’installer dans un cadre paisible tout en profitant de la proximité des commodités. Saint-Hilaire-de-Loulay, située dans le département de la Vendée au sein de la région Pays de la Loire, offre un cadre de vie agréable avec toutes les commodités à portée de main. Profitez de la proximité du centre-ville, des commerces et des services, ainsi que d’un accès facile à la nature environnante, idéale pour les loisirs en plein air. Avec ses nombreuses attractions locales et son ambiance conviviale, cette ville saura séduire tous ceux qui recherchent un cadre de vie harmonieux. Ne laissez pas passer cette chance unique d’acquérir un terrain au potentiel illimité. Contactez-nous dès maintenant pour discuter de cette opportunité d’achat. À noter qu’en tant que constructeur, nous ne sommes pas mandatés pour réaliser la vente de ce terrain.
Montaigu-Vendée
TERRAIN ET MAISONSur ce terrain, nous vous proposons cette maison neuve : la Clissonnaise, une charmante maison à étage de 110 m². Conçue par Maisons Privat, constructeur centenaire avec les meilleurs avis clients de la région, cette demeure est idéale pour les primo-accédants, les couples ou les familles.Très jolie maison traditionnelle, la Clissonnaise se compose de 4 chambres et de 4 pièces, offrant ainsi un espace de vie confortable et fonctionnel. Grâce à ses baies coulissantes, la maison bénéficie d’une luminosité naturelle exceptionnelle. La dalle étage en béton assure une solidité et une isolation acoustique optimales.Cette maison est conforme à la norme RT2020, garantissant une basse consommation énergétique et un confort thermique tout au long de l’année. De plus, elle est construite sur un terrain étroit, optimisant ainsi l’utilisation de l’espace disponible.Les options les plus demandées par nos clients sont également disponibles pour personnaliser votre maison selon vos besoins : une deuxième salle de bains, une baie à galandage pour un accès fluide à l’extérieur, un carport et un garage accolé.Achetez votre nouvelle demeure à étage comme vous la souhaitez. La Clissonnaise permet de nombreuses configurations pour s’adapter à la composition de votre famille. Vous pouvez opter pour une suite parentale avec salle d’eau privative si vous le souhaitez. Vous disposerez également d’un grand espace de vie avec cuisine ouverte, parfait pour les moments de convivialité en famille ou entre amis.Ne manquez pas cette opportunité unique d’acquérir une maison neuve, basse consommation et conforme à la RE2020, construite par un constructeur de renom. Contactez-nous dès aujourd’hui pour plus d’informations et pour planifier une visite.
Les Brouzils
TERRAIN ET MAISONSur ce terrain, nous vous proposons cette maison neuve : La Challandaise, une petite maison pleine d’atouts.La Challandaise est le modèle parfait pour les primo-accédants ou les retraités. Cette demeure traditionnelle de plain-pied comporte un maximum d’atouts dans un minimum d’espace.Une habitation de plain-pied très fonctionnelle, des dimensions raisonnables.La Challandaise est fonctionnelle et agréable à vivre. Son espace de vie salon-séjour-cuisine, lumineux, vous accueille chaleureusement. Avec une surface de 50 m², elle comporte une chambre et deux pièces. Cette charmante maison d’inspiration traditionnelle vous séduira avec ses volumes simples et efficaces.Les caractéristiques principales de cette maison incluent des baies coulissantes, une conception basse consommation, et une structure évolutive et compacte. La maison est conforme à la norme RE2020, garantissant une performance énergétique optimale et un confort de vie exceptionnel.Les options les plus demandées par nos clients sont également disponibles : plancher chauffant, carport, garage accolé, et terrasse en béton poreux.Construite par Maisons Privat, un constructeur centenaire avec les meilleurs avis clients de la région, cette maison neuve est une opportunité à ne pas manquer. Profitez d’une habitation moderne, économique et évolutive, parfaitement adaptée à vos besoins.
Chavagnes-en-Paillers
TERRAINÀ la recherche d’un terrain d’exception pour réaliser le projet de votre maison idéale ? Nous vous proposons ce superbe terrain de 540 m², viabilisé, situé au cœur du charmant lotissement de Chavagnes-en-Paillers, dans le département de la Vendée. Ce terrain offre une opportunité rare de construction dans un cadre paisible, tout en étant à proximité des commodités essentielles. Imaginez votre future résidence dans cet environnement propice à la fois à la tranquillité et à la convivialité. Chavagnes-en-Paillers, dynamique ville du Pays de la Loire, se distingue par ses nombreuses attractivités et ses services de qualité. Idéalement située, cette localité bénéficie d’une excellente accessibilité, et vous plongera rapidement dans le charme de la Vendée. Profitez des proximité immédiates avec les commerces, ainsi que des espaces verts qui vous permettront de savourer la nature au quotidien. Ne manquez pas cette occasion unique d’investir dans un terrain offrant tout le potentiel nécessaire pour concrétiser vos rêves de construction. Cette opportunité d’achat unique est à considérer sérieusement. N’attendez plus pour envisager votre futur chez-vous sur ce terrain prometteur ! À noter qu’en tant que constructeur, nous ne sommes pas mandatés pour réaliser la vente de ce terrain.
Les Brouzils
TERRAINNous vous présentons ce terrain à vendre d’une surface généreuse de 138 m², situé dans le charmant lotissement de Brouzils, au cœur de la Vendée. Ce terrain viabilisé est idéal pour concevoir la maison de vos rêves, offrant un cadre de vie agréable et paisible. Profitez de l’exceptionnelle qualité de vie que cette ville dynamique peut vous offrir, où l’harmonie entre nature et urbanisme est mise en avant. Située dans le département de la Vendée, Brouzils bénéficie d’un emplacement stratégique au sein des Pays de la Loire. Vous trouverez à proximité de nombreuses attractions locales, commodités et infrastructures qui sauront répondre à tous vos besoins quotidiens. Entre le charme de la campagne environnante et les services d’une ville dynamique, ce terrain est une véritable opportunité pour ceux qui souhaitent s’établir dans un environnement accueillant et convivial. Ne manquez pas cette occasion unique d’investir dans un emplacement de choix. Contactez-nous pour envisager votre futur chez-vous dans ce cadre enchanteur. À noter qu’en tant que constructeur, nous ne sommes pas mandatés pour réaliser la vente de ce terrain.
Montaigu-Vendée
TERRAINNous vous proposons un terrain à bâtir exceptionnel de 504 m², idéalement situé dans le charmant lotissement de Saint-Hilaire-de-Loulay. Ce terrain viabilisé, offrant tous les raccordements nécessaires, représente une opportunité rêvée pour concrétiser votre projet de construction de maison. Avec son environnement paisible et accueillant, ce bien saura séduire les familles et les investisseurs en quête d’un cadre de vie privilégié. Saint-Hilaire-de-Loulay, une commune dynamique située dans le département de la Vendée, au cœur de la région des Pays de la Loire, propose une multitude d’attractions locales et de commodités. À proximité immédiate, vous trouverez des commerces variés, des écoles, ainsi que des espaces verts pour profiter de moments de détente en famille. Avec un accès facile aux grands axes routiers, cette ville est idéale pour ceux qui souhaitent allier tranquillité de la campagne et accessibilité à la ville. Ce terrain représente une opportunité rare pour réaliser vos ambitions de construction dans un cadre exceptionnel. N’hésitez pas à nous contacter pour plus d’informations sur cette offre unique. À noter qu’en tant que constructeur, nous ne sommes pas mandatés pour réaliser la vente de ce terrain.
L’actualité immobilière à Chavagnes-en-Paillers
27/11/2023
02/11/2023
30/10/2023
20/10/2023
16/10/2023
16/10/2023