Maison à construire à Coëx (85220)
Images
Description
***** CENTRE VILLE ******
VENTE d'une maison de 3 pièces (54 m²) à Coëx
IDÉALEMENT SITUÉE - MAISON 3 PIÈCES NEUVE
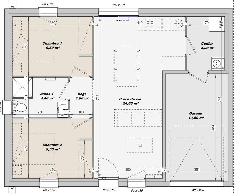
En vente à 13 km de l'océan Atlantique et à deux pas de La Roche-sur-Yon, notre agence LMP Constructeur Saint-Gilles-Croix-de-Vie est ravie de vous présenter, idéalement située dans Coëx (85220), cette maison de 3 pièces de plain-pied de 54 m² et de 400 m² de terrain.
Elle se divise en trois chambres, une cuisine et une salle de bains. Cette maison est neuve.
La maison se situe dans un quartier prisé. L'École Primaire Publique Jules Verne et l'École Primaire Privée Saint Joseph se trouvent à moins de 10 minutes à pied. On trouve un accès à l'autoroute A87 à 20 km. Il y a un tennis, deux boulangeries, quatre commerces, un supermarché, une épicerie et deux boucheries-charcuteries dans les environs.
Elle est à vendre pour la somme de 209 900 €.
Prenez contact avec Nicolas RISSELIN (tél : (Numéro supprimé)) pour plus de renseignements sur la propriété, sur les modalités de vente ou sur les démarches à suivre.
***** CENTRE VILLE ******
Logement susceptibles de vous intéresser
Nous vous proposons de découvrir aussi cette sélection de logements situés à moins de 10km de Coëx et qui seraient susceptibles de vous intéresser.
Maché
TERRAINPrix : 75500 €.Sur ce terrain de 487 m² à MACHE, Alliance Construction vous propose de réaliser votre projet de construction de maison individuelle.Avec Alliance Construction, habitez une maison spécialement pensée et conçue pour vous et votre famille, prête à décorer, adaptée à vos modes de vie, personnalisée selon vos goûts grâce à un large choix d'options, de matériaux et d'innovations ! Demandez une étude gratuite et personnalisée de votre projet de construction sur ce terrain à MACHE !Contactez Sylvain CARIOU au (Numéro supprimé) (Alliance Construction – Agence de la Roche-sur-Yon).Prix hors frais de notaire. Terrain sélectionné par ALLIANCE auprès de nos partenaires fonciers, selon disponibilité, pour la construction d'une maison neuve. Non mandaté pour réaliser la vente (loi du 2 janvier 1970 n°70-9). Visuels non contractuels. Voir détails en agence.Cette annonce a été créée et diffusée avec le logiciel VITAHOME.
Maché
TERRAINPrix : 56000 €.Sur ce terrain de 350 m² à MACHE, Alliance Construction vous propose de réaliser votre projet de construction de maison individuelle.Avec Alliance Construction, habitez une maison spécialement pensée et conçue pour vous et votre famille, prête à décorer, adaptée à vos modes de vie, personnalisée selon vos goûts grâce à un large choix d'options, de matériaux et d'innovations ! Demandez une étude gratuite et personnalisée de votre projet de construction sur ce terrain à MACHE !Contactez Sylvain CARIOU au (Numéro supprimé) (Alliance Construction – Agence de la Roche-sur-Yon).Prix hors frais de notaire. Terrain sélectionné par ALLIANCE auprès de nos partenaires fonciers, selon disponibilité, pour la construction d'une maison neuve. Non mandaté pour réaliser la vente (loi du 2 janvier 1970 n°70-9). Visuels non contractuels. Voir détails en agence.Cette annonce a été créée et diffusée avec le logiciel VITAHOME.
Martinet
TERRAINPrix : 65000 €.Sur ce terrain de 410 m² à MARTINET, Alliance Construction vous propose de réaliser votre projet de construction de maison individuelle.Avec Alliance Construction, habitez une maison spécialement pensée et conçue pour vous et votre famille, prête à décorer, adaptée à vos modes de vie, personnalisée selon vos goûts grâce à un large choix d'options, de matériaux et d'innovations ! Demandez une étude gratuite et personnalisée de votre projet de construction sur ce terrain à MARTINET !Contactez Sylvain CARIOU au (Numéro supprimé) (Alliance Construction – Agence de la Roche-sur-Yon).Prix hors frais de notaire. Terrain sélectionné par ALLIANCE auprès de nos partenaires fonciers, selon disponibilité, pour la construction d'une maison neuve. Non mandaté pour réaliser la vente (loi du 2 janvier 1970 n°70-9). Visuels non contractuels. Voir détails en agence.Cette annonce a été créée et diffusée avec le logiciel VITAHOME.
Maché
TERRAINVenez découvrir ce magnifique terrain dans un petit lotissement en pleine nature !terrain viabilisé de 419 m² pour construire votre maison idéal !Prix : 66000 €.Sur ce terrain de 419 m² à MACHE, Alliance Construction vous propose de réaliser votre projet de construction de maison individuelle.Avec Alliance Construction, habitez une maison spécialement pensée et conçue pour vous et votre famille, prête à décorer, adaptée à vos modes de vie, personnalisée selon vos goûts grâce à un large choix d'options, de matériaux et d'innovations ! Demandez une étude gratuite et personnalisée de votre projet de construction sur ce terrain à MACHE !Contactez Sylvain CARIOU au (Numéro supprimé) (Alliance Construction – Agence de la Roche-sur-Yon).Prix hors frais de notaire. Terrain sélectionné par ALLIANCE auprès de nos partenaires fonciers, selon disponibilité, pour la construction d'une maison neuve. Non mandaté pour réaliser la vente (loi du 2 janvier 1970 n°70-9). Visuels non contractuels. Voir détails en agence.Cette annonce a été créée et diffusée avec le logiciel VITAHOME.
Maché
TERRAIN ET MAISONA MACHE sur un terrain de 350 m², Alliance Construction vous propose de réaliser votre projet de construction de maison individuelle d'une surface de 87.87 m² habitables avec 4 chambres, à partir de 216325€*Demandez une étude gratuite et personnalisée de votre projet de construction !* Cette offre comprend :- Garanties constructeurs (dommages ouvrage, garantie de prix ferme et définitif, garantie de livraison, responsabilité civile et décennale).- Branchements aux compteurs et accès empierré sur 5m linéaires.Habitez une maison spécialement pensée et conçue pour vous et votre famille, prête à décorer, adaptée à vos modes de vie, personnalisée selon vos goûts grâce à un large choix d'options, de matériaux et d'innovations !Contactez Patrice (Numéro supprimé)*Prix indicatif pour un projet de construction d'une maison individuelle. Ne sont pas inclus les frais de branchements, raccordements aux réseaux publics, frais d'adaptations, aménagements intérieurs et extérieurs et options. terrain viabilisé, frais de notaire non compris, frais divers non compris. Garanties et assurances obligatoires incluses. Terrain sélectionné par ALLIANCE auprès de nos partenaires fonciers, selon disponibilité, pour la construction d'une maison neuve. Non mandaté pour réaliser la vente (loi du 2 janvier 1970 n°70-9). Visuels non contractuels. Voir détails en agence.Cette annonce a été créée et diffusée avec le logiciel VITAHOME.
Maché
TERRAIN ET MAISONVous rêvez d’un jardin paysager, une cuisine avec ilot centrale, parquet dans les chambres… Faites construire, vous pourrez choisir !Alliance vous propose un de ses modèles de maison sur-mesure sur un terrain de 487 m² à partir de 255000€* (hors frais supplémentaires et selon disponibilité de notre partenaire foncier.)Découvrez tous nos modèles de maisons sur notre site internet ou appelez nous pour réaliser votre projet entièrement sur-mesure.La construction bois offre des avantages multiples. Il apporte notamment la performance thermique, le confort été – confort hiver, la qualité de l’air et participe à notre bien-être dans nos habitats.Contactez Sylvain CARIOU au (Numéro supprimé) (Alliance Construction – Agence de la Roche-sur-Yon).*Prix indicatif pour un projet de construction d'une maison individuelle. Ne sont pas inclus les frais de branchements, raccordements aux réseaux publics, frais d'adaptations, aménagements intérieurs et extérieurs et options. terrain viabilisé, frais de notaire non compris, frais divers non compris. Garanties et assurances obligatoires incluses. Terrain sélectionné par ALLIANCE auprès de nos partenaires fonciers, selon disponibilité, pour la construction d'une maison neuve. Non mandaté pour réaliser la vente (loi du 2 janvier 1970 n°70-9). Visuels non contractuels. Voir détails en agence.Cette annonce a été créée et diffusée avec le logiciel VITAHOME.
Maché
TERRAIN ET MAISONA MACHE sur un terrain de 487 m², Alliance Construction vous propose de réaliser votre projet de construction de maison individuelle d'une surface de 74.11 m² habitables avec 2 chambres aux normes PMR !Demandez une étude gratuite et personnalisée de votre projet de construction !* Cette offre comprend :- Garanties constructeurs (dommages ouvrage, garantie de prix ferme et définitif, garantie de livraison, responsabilité civile et décennale).- Branchements aux compteurs et accès empierré sur 5m linéaires.Habitez une maison spécialement pensée et conçue pour vous et votre famille, prête à décorer, adaptée à vos modes de vie, personnalisée selon vos goûts grâce à un large choix d'options, de matériaux et d'innovations !Contactez Sylvain CARIOU au (Numéro supprimé) (Alliance Construction – Agence de la Roche-sur-Yon).*Prix indicatif pour un projet de construction d'une maison individuelle. Ne sont pas inclus les frais de branchements, raccordements aux réseaux publics, frais d'adaptations, aménagements intérieurs et extérieurs et options. terrain viabilisé, frais de notaire non compris, frais divers non compris. Garanties et assurances obligatoires incluses. Terrain sélectionné par ALLIANCE auprès de nos partenaires fonciers, selon disponibilité, pour la construction d'une maison neuve. Non mandaté pour réaliser la vente (loi du 2 janvier 1970 n°70-9). Visuels non contractuels. Voir détails en agence.Cette annonce a été créée et diffusée avec le logiciel VITAHOME.
Maché
TERRAIN ET MAISONAlliance Construction vous propose de réaliser votre projet de construction de maison individuelle avec 3 chambres,Venez découvrir ce magnifique terrain dans un petit lotissement en pleine nature !terrain viabilisé de 419 m² pour construire votre maison idéal !Demandez une étude gratuite et personnalisée de votre projet de construction !* Cette offre comprend :- Garanties constructeurs (dommages ouvrage, garantie de prix ferme et définitif, garantie de livraison, responsabilité civile et décennale).- Branchements aux compteurs et accès empierré sur 5m linéaires.Habitez une maison spécialement pensée et conçue pour vous et votre famille, prête à décorer, adaptée à vos modes de vie, personnalisée selon vos goûts grâce à un large choix d'options, de matériaux et d'innovations !Contactez Sylvain CARIOU au (Numéro supprimé) (Alliance Construction – Agence de la Roche-sur-Yon).*Prix indicatif pour un projet de construction d'une maison individuelle. Ne sont pas inclus les frais de branchements, raccordements aux réseaux publics, frais d'adaptations, aménagements intérieurs et extérieurs et options. terrain viabilisé, frais de notaire non compris, frais divers non compris. Garanties et assurances obligatoires incluses. Terrain sélectionné par ALLIANCE auprès de nos partenaires fonciers, selon disponibilité, pour la construction d'une maison neuve. Non mandaté pour réaliser la vente (loi du 2 janvier 1970 n°70-9). Visuels non contractuels. Voir détails en agence.Cette annonce a été créée et diffusée avec le logiciel VITAHOME.
Maché
TERRAIN ET MAISONEnvie de renouveau ? Profitez du printemps pour concrétiser un nouveau projet. Votre maison Alliance construite en fonction de vos besoins avec des matériaux et des équipements de qualité à partir de 324450€ *.Habitez une maison spécialement pensée et conçue pour vous et votre famille, prête à décorer, adaptée à votre mode de vie, personnalisée selon vos goûts grâce à un large choix d’options, de matériaux et d’innovations !Contactez Sylvain CARIOU au (Numéro supprimé) (Alliance Construction – Agence de la Roche-sur-Yon).*Prix indicatif pour un projet de construction d'une maison individuelle. Ne sont pas inclus les frais de branchements, raccordements aux réseaux publics, frais d'adaptations, aménagements intérieurs et extérieurs et options. terrain viabilisé, frais de notaire non compris, frais divers non compris. Garanties et assurances obligatoires incluses. Terrain sélectionné par ALLIANCE auprès de nos partenaires fonciers, selon disponibilité, pour la construction d'une maison neuve. Non mandaté pour réaliser la vente (loi du 2 janvier 1970 n°70-9). Visuels non contractuels. Voir détails en agence.Cette annonce a été créée et diffusée avec le logiciel VITAHOME.
L’actualité immobilière à Coëx
27/11/2023
02/11/2023
30/10/2023
20/10/2023
16/10/2023
16/10/2023