Images
Description
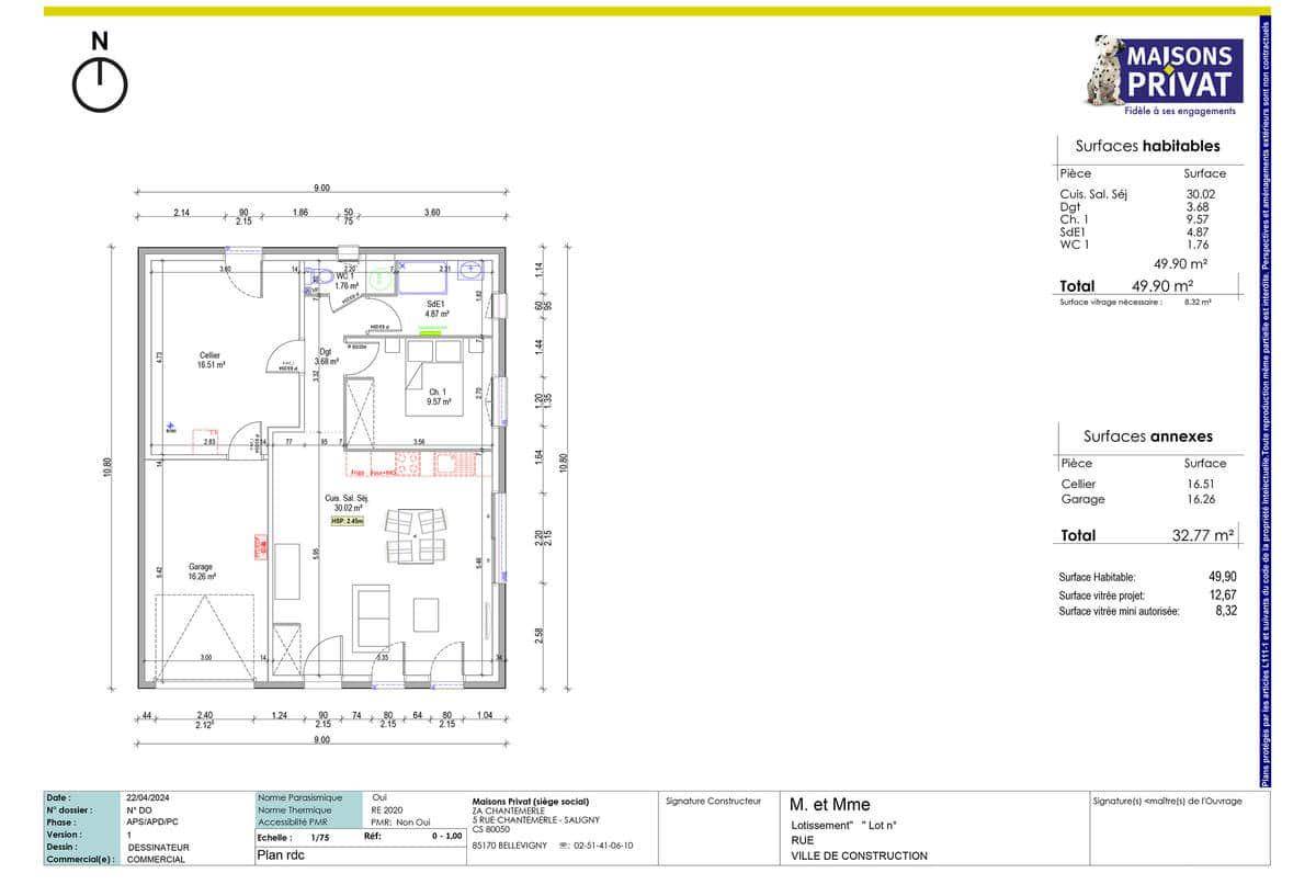
Sur ce terrain, nous vous proposons ce modèle de maison qui incarne l'harmonie parfaite entre fonctionnalité et adaptabilité, elle est conçue pour répondre à vos besoins présents tout en anticipant vos projets futurs.
Le cœur de cette maison est une pièce de vie spacieuse et lumineuse de 30 m², judicieusement aménagée pour maximiser le confort et l'utilité. Cet espace multifonctionnel combine un salon / séjour accueillant, et une cuisine ouverte moderne. Les grandes fenêtres baignent la pièce de lumière naturelle, créant une atmosphère chaleureuse et accueillante, idéale pour se détendre ou recevoir des invités.
À côté de la pièce de vie se trouvent une chambre et une salle d’eau.
Adossé à la maison, un garage de 34 m.² offre un espace pratique pour garer un véhicule ou stocker des équipements.
La conception de cette maison intègre dès le départ la possibilité d'évolution. Lorsque le moment sera venu d'agrandir, l'atelier actuel pourra être aménagé en une chambre avec salle d'eau ou dressing. Cette transformation est facilitée par une infrastructure prévue pour accueillir les installations sanitaires nécessaires. Cette flexibilité permet d'adapter la maison à l'évolution de votre famille ou de vos besoins sans compromis sur le confort ou la qualité de vie.
En résumé, cette maison évolutive est une solution idéale pour ceux qui cherchent à investir dans un habitat adaptable et durable.
* Prix indiqué hors branchements, hors sanitaires, hors revêtement des sols et des murs. Assurance dommages ouvrages incluse.
Logement susceptibles de vous intéresser
Nous vous proposons de découvrir aussi cette sélection de logements situés à moins de 10km de Commequiers et qui seraient susceptibles de vous intéresser.
Challans
TERRAINSitué sur la commune dynamique de Challans, à proximité des commerces, écoles et services, découvrez ce beau terrain viabilisé de 750 m², prêt à accueillir votre projet de construction. Implanté dans un environnement calme et verdoyant, ce terrain offre un cadre de vie idéal pour allier tranquillité et proximité du centre-ville. // Réf. : T210144. Prix terrain : 147 500 €, hors frais d'agence et de notaire à la charge de l'acquéreur. Ce terrain vous est proposé, par nos partenaires fonciers, dans le cadre d'un projet de construction avec nous. Les informations sur les risques auxquels ce bien est exposé sont disponibles sur le site Géorisques (www.georisques.gouv.fr).
Apremont
TERRAINSitué sur la commune d’Apremont, charmant village au cœur du bocage vendéen, découvrez ce terrain viabilisé de 404 m², idéal pour concrétiser votre projet de construction. Implanté dans un environnement calme et verdoyant, à proximité du centre-bourg et de ses commodités, ce terrain offre un cadre de vie paisible tout en restant proche des grands axes et des plages vendéennes. // Réf. : T210145. Prix terrain : 58 200 €, hors frais d'agence et de notaire à la charge de l'acquéreur. Ce terrain vous est proposé, par nos partenaires fonciers, dans le cadre d'un projet de construction avec nous. Les informations sur les risques auxquels ce bien est exposé sont disponibles sur le site Géorisques (www.georisques.gouv.fr).
Apremont
TERRAIN ET MAISONSitué sur la commune d’Apremont, charmant village au cœur du bocage vendéen, découvrez ce terrain viabilisé de 404 m², idéal pour concrétiser votre projet de construction. Implanté dans un environnement calme et verdoyant, à proximité du centre-bourg et de ses commodités, ce terrain offre un cadre de vie paisible tout en restant proche des grands axes et des plages vendéennes. Une maison facile à vivre, pensée pour répondre à toutes vos envies de simplicité et de confort. Avec sa pièce de vie traversante et ouverte, ses 3 chambres, sa salle de bain fonctionnelle et son garage intégré, ce modèle offre tout le nécessaire, sans superflu. Idéale pour un premier achat malin ou une résidence secondaire pratique et lumineuse, elle combine compacité, efficacité et confort au quotidien. Son plan évolutif et personnalisable s’adapte à vos projets de vie, en bord de mer comme à la campagne. Pour un confort optimal et conforme à la RE2025, cette maison dispose d’une PAC avec plancher chauffant et volets roulants électriques. À noter : Le prix indiqué exclut les revêtements de sol des chambres, la cuisine aménagée, la peinture, la décoration, les frais de notaire et l’assurance dommages ouvrage. // Réf. : 554-210145-THW. Prix terrain : 58 200 €, hors frais d'agence à la charge de l'acquéreur. Ce terrain vous est proposé, par nos partenaires fonciers, dans le cadre d'un projet de construction avec nous. Les informations sur les risques auxquels ce bien est exposé sont disponibles sur le site Géorisques (www.georisques.gouv.fr). Prix maison : 149 940 €.
Apremont
TERRAIN ET MAISONSitué sur la commune d’Apremont, charmant village au cœur du bocage vendéen, découvrez ce terrain viabilisé de 404 m², idéal pour concrétiser votre projet de construction. Implanté dans un environnement calme et verdoyant, à proximité du centre-bourg et de ses commodités, ce terrain offre un cadre de vie paisible tout en restant proche des grands axes et des plages vendéennes. Un format compact, un agencement malin et une vraie sensation d’espace : cette maison de plain-pied a tout d’un refuge facile à vivre. La pièce de vie traversante avec cuisine ouverte s’ouvre sur l’extérieur pour profiter pleinement de chaque rayon de soleil. Avec ses 2 chambres, sa salle de bain fonctionnelle, son cellier attenant et son garage intégré, elle réunit tous les essentiels dans une ambiance simple et agréable. Un modèle idéal pour une première acquisition ou pour poser ses valises en toute liberté à deux pas de l’océan. Pour un confort optimal et conforme à la RE2025, cette maison dispose d’une PAC avec plancher chauffant et volets roulants électriques. À noter : Le prix indiqué exclut les revêtements de sol des chambres, la cuisine aménagée, la peinture, la décoration, les frais de notaire et l’assurance dommages ouvrage. // Réf. : 558-210145-THW. Prix terrain : 58 200 €, hors frais d'agence à la charge de l'acquéreur. Ce terrain vous est proposé, par nos partenaires fonciers, dans le cadre d'un projet de construction avec nous. Les informations sur les risques auxquels ce bien est exposé sont disponibles sur le site Géorisques (www.georisques.gouv.fr). Prix maison : 133 800 €.
Apremont
TERRAIN ET MAISONSitué sur la commune d’Apremont, charmant village au cœur du bocage vendéen, découvrez ce terrain viabilisé de 404 m², idéal pour concrétiser votre projet de construction. Implanté dans un environnement calme et verdoyant, à proximité du centre-bourg et de ses commodités, ce terrain offre un cadre de vie paisible tout en restant proche des grands axes et des plages vendéennes. Un modèle de plain-pied pensé pour optimiser l’investissement locatif tout en répondant pleinement aux exigences d’accessibilité. Grâce à son agencement aux normes PMR, cette maison garantit des déplacements fluides, des accès facilités et un usage confortable pour tous les profils de locataires. Composée de 3 chambres, d’une salle d’eau accessible, d’un grand espace de vie traversant, d’un cellier et d’un garage intégré, elle coche toutes les cases de la praticité. Un bien rentable, conforme et fonctionnel, idéal pour la location longue durée ou saisonnière, avec un plan personnalisable selon les objectifs du projet. Pour un confort optimal et conforme à la RE2025, cette maison dispose d’une PAC avec plancher chauffant et volets roulants électriques. À noter : Le prix indiqué exclut les revêtements de sol des chambres, la cuisine aménagée, la peinture, la décoration, les frais de notaire et l’assurance dommages ouvrage. // Réf. : 559-210145-THW. Prix terrain : 58 200 €, hors frais d'agence à la charge de l'acquéreur. Ce terrain vous est proposé, par nos partenaires fonciers, dans le cadre d'un projet de construction avec nous. Les informations sur les risques auxquels ce bien est exposé sont disponibles sur le site Géorisques (www.georisques.gouv.fr). Prix maison : 152 900 €.
Challans
TERRAIN ET MAISONSitué sur la commune dynamique de Challans, à proximité des commerces, écoles et services, découvrez ce beau terrain viabilisé de 750 m², prêt à accueillir votre projet de construction. Implanté dans un environnement calme et verdoyant, ce terrain offre un cadre de vie idéal pour allier tranquillité et proximité du centre-ville. Une maison facile à vivre, pensée pour répondre à toutes vos envies de simplicité et de confort. Avec sa pièce de vie traversante et ouverte, ses 3 chambres, sa salle de bain fonctionnelle et son garage intégré, ce modèle offre tout le nécessaire, sans superflu. Idéale pour un premier achat malin ou une résidence secondaire pratique et lumineuse, elle combine compacité, efficacité et confort au quotidien. Son plan évolutif et personnalisable s’adapte à vos projets de vie, en bord de mer comme à la campagne. Pour un confort optimal et conforme à la RE2025, cette maison dispose d’une PAC avec plancher chauffant et volets roulants électriques. À noter : Le prix indiqué exclut les revêtements de sol des chambres, la cuisine aménagée, la peinture, la décoration, les frais de notaire et l’assurance dommages ouvrage. // Réf. : 554-210144-THW. Prix terrain : 147 500 €, hors frais d'agence à la charge de l'acquéreur. Ce terrain vous est proposé, par nos partenaires fonciers, dans le cadre d'un projet de construction avec nous. Les informations sur les risques auxquels ce bien est exposé sont disponibles sur le site Géorisques (www.georisques.gouv.fr). Prix maison : 149 940 €.
Challans
TERRAIN ET MAISONSitué sur la commune dynamique de Challans, à proximité des commerces, écoles et services, découvrez ce beau terrain viabilisé de 750 m², prêt à accueillir votre projet de construction. Implanté dans un environnement calme et verdoyant, ce terrain offre un cadre de vie idéal pour allier tranquillité et proximité du centre-ville. Un format compact, un agencement malin et une vraie sensation d’espace : cette maison de plain-pied a tout d’un refuge facile à vivre. La pièce de vie traversante avec cuisine ouverte s’ouvre sur l’extérieur pour profiter pleinement de chaque rayon de soleil. Avec ses 2 chambres, sa salle de bain fonctionnelle, son cellier attenant et son garage intégré, elle réunit tous les essentiels dans une ambiance simple et agréable. Un modèle idéal pour une première acquisition ou pour poser ses valises en toute liberté à deux pas de l’océan. Pour un confort optimal et conforme à la RE2025, cette maison dispose d’une PAC avec plancher chauffant et volets roulants électriques. À noter : Le prix indiqué exclut les revêtements de sol des chambres, la cuisine aménagée, la peinture, la décoration, les frais de notaire et l’assurance dommages ouvrage. // Réf. : 558-210144-THW. Prix terrain : 147 500 €, hors frais d'agence à la charge de l'acquéreur. Ce terrain vous est proposé, par nos partenaires fonciers, dans le cadre d'un projet de construction avec nous. Les informations sur les risques auxquels ce bien est exposé sont disponibles sur le site Géorisques (www.georisques.gouv.fr). Prix maison : 133 800 €.
Challans
TERRAIN ET MAISONSitué sur la commune dynamique de Challans, à proximité des commerces, écoles et services, découvrez ce beau terrain viabilisé de 750 m², prêt à accueillir votre projet de construction. Implanté dans un environnement calme et verdoyant, ce terrain offre un cadre de vie idéal pour allier tranquillité et proximité du centre-ville. Moderne et astucieuse, cette maison à étage sépare avec élégance les espaces de vie et les espaces nuit. Au rez-de-chaussée, profitez d’un grand séjour lumineux, d’une cuisine ouverte avec cellier et d’un garage intégré. À l’étage, 3 belles chambres, une salle de bain, un WC indépendant et un dégagement central assurent confort et intimité. Un modèle personnalisable qui s’adapte à vos envies, pour un projet unique à votre image !. Pour un confort optimal et conforme à la RE2025, cette maison dispose d’une PAC avec plancher chauffant et volets roulants électriques. À noter : Le prix indiqué exclut les revêtements de sol des chambres, la cuisine aménagée, la peinture, la décoration, les frais de notaire et l’assurance dommages ouvrage. // Réf. : 544-210144-THW. Prix terrain : 147 500 €, hors frais d'agence à la charge de l'acquéreur. Ce terrain vous est proposé, par nos partenaires fonciers, dans le cadre d'un projet de construction avec nous. Les informations sur les risques auxquels ce bien est exposé sont disponibles sur le site Géorisques (www.georisques.gouv.fr). Prix maison : 164 463 €.
Apremont
TERRAINSitué sur la commune d’Apremont, charmant village au cœur du bocage vendéen, découvrez ce terrain viabilisé de 404 m², idéal pour concrétiser votre projet de construction. Implanté dans un environnement calme et verdoyant, à proximité du centre-bourg et de ses commodités, ce terrain offre un cadre de vie paisible tout en restant proche des grands axes et des plages vendéennes. // Réf. : T210145. Prix terrain : 58 200 €, hors frais d'agence et de notaire à la charge de l'acquéreur. Ce terrain vous est proposé, par nos partenaires fonciers, dans le cadre d'un projet de construction avec nous. Les informations sur les risques auxquels ce bien est exposé sont disponibles sur le site Géorisques (www.georisques.gouv.fr).
L’actualité immobilière à Commequiers
27/11/2023
02/11/2023
30/10/2023
20/10/2023
16/10/2023
16/10/2023