Maison à construire à Commequiers (85220)
Images
Description
*********AU CENTRE BOURG ******
Commequiers : maison F2 (61 m²) en vente
IDÉALEMENT SITUÉE - MAISON 2 PIÈCES NEUVE
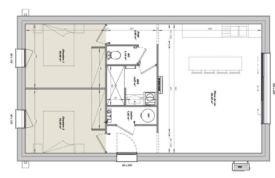
À vendre : à 12 km de l'océan Atlantique, nous vous présentons cette maison de 2 pièces de plain-pied de 61 m², idéalement située dans Commequiers (85220). Son intérieur dispose de deux chambres, d'une cuisine et d'une salle de bains.
Le terrain du bien s'étend sur 382 m².
La maison est neuve.
Cette maison se trouve dans un quartier attractif. Il y a l'École Primaire Publique Robert Doisneau et l'École Primaire Privée Mixte Saint Pierre à moins de 10 minutes à pied. Niveau transports en commun, on trouve la gare Challans à moins de 10 minutes en voiture. Il y a un tennis, deux commerces, une boulangerie, un supermarché et une poissonnerie à proximité.
Elle est proposée à l'achat pour 176 900 €.
N'hésitez pas à prendre contact avec Nicolas RISSELIN ((Numéro supprimé)) pour toute information sur la maison, sur les démarches à suivre ou sur les modalités de vente. LMP Constructeur Saint-Gilles-Croix-de-Vie vous accompagne dans tous vos projets immobiliers et à toutes les étapes de votre projet.
*********AU CENTRE BOURG ******
Logement susceptibles de vous intéresser
Nous vous proposons de découvrir aussi cette sélection de logements situés à moins de 10km de Commequiers et qui seraient susceptibles de vous intéresser.
Challans
TERRAINSitué sur la commune dynamique de Challans, à proximité des commerces, écoles et services, découvrez ce beau terrain viabilisé de 750 m², prêt à accueillir votre projet de construction. Implanté dans un environnement calme et verdoyant, ce terrain offre un cadre de vie idéal pour allier tranquillité et proximité du centre-ville. // Réf. : T210144. Prix terrain : 147 500 €, hors frais d'agence et de notaire à la charge de l'acquéreur. Ce terrain vous est proposé, par nos partenaires fonciers, dans le cadre d'un projet de construction avec nous. Les informations sur les risques auxquels ce bien est exposé sont disponibles sur le site Géorisques (www.georisques.gouv.fr).
Apremont
TERRAINSitué sur la commune d’Apremont, charmant village au cœur du bocage vendéen, découvrez ce terrain viabilisé de 404 m², idéal pour concrétiser votre projet de construction. Implanté dans un environnement calme et verdoyant, à proximité du centre-bourg et de ses commodités, ce terrain offre un cadre de vie paisible tout en restant proche des grands axes et des plages vendéennes. // Réf. : T210145. Prix terrain : 58 200 €, hors frais d'agence et de notaire à la charge de l'acquéreur. Ce terrain vous est proposé, par nos partenaires fonciers, dans le cadre d'un projet de construction avec nous. Les informations sur les risques auxquels ce bien est exposé sont disponibles sur le site Géorisques (www.georisques.gouv.fr).
Apremont
TERRAIN ET MAISONSitué sur la commune d’Apremont, charmant village au cœur du bocage vendéen, découvrez ce terrain viabilisé de 404 m², idéal pour concrétiser votre projet de construction. Implanté dans un environnement calme et verdoyant, à proximité du centre-bourg et de ses commodités, ce terrain offre un cadre de vie paisible tout en restant proche des grands axes et des plages vendéennes. Une maison facile à vivre, pensée pour répondre à toutes vos envies de simplicité et de confort. Avec sa pièce de vie traversante et ouverte, ses 3 chambres, sa salle de bain fonctionnelle et son garage intégré, ce modèle offre tout le nécessaire, sans superflu. Idéale pour un premier achat malin ou une résidence secondaire pratique et lumineuse, elle combine compacité, efficacité et confort au quotidien. Son plan évolutif et personnalisable s’adapte à vos projets de vie, en bord de mer comme à la campagne. Pour un confort optimal et conforme à la RE2025, cette maison dispose d’une PAC avec plancher chauffant et volets roulants électriques. À noter : Le prix indiqué exclut les revêtements de sol des chambres, la cuisine aménagée, la peinture, la décoration, les frais de notaire et l’assurance dommages ouvrage. // Réf. : 554-210145-THW. Prix terrain : 58 200 €, hors frais d'agence à la charge de l'acquéreur. Ce terrain vous est proposé, par nos partenaires fonciers, dans le cadre d'un projet de construction avec nous. Les informations sur les risques auxquels ce bien est exposé sont disponibles sur le site Géorisques (www.georisques.gouv.fr). Prix maison : 149 940 €.
Apremont
TERRAIN ET MAISONSitué sur la commune d’Apremont, charmant village au cœur du bocage vendéen, découvrez ce terrain viabilisé de 404 m², idéal pour concrétiser votre projet de construction. Implanté dans un environnement calme et verdoyant, à proximité du centre-bourg et de ses commodités, ce terrain offre un cadre de vie paisible tout en restant proche des grands axes et des plages vendéennes. Un format compact, un agencement malin et une vraie sensation d’espace : cette maison de plain-pied a tout d’un refuge facile à vivre. La pièce de vie traversante avec cuisine ouverte s’ouvre sur l’extérieur pour profiter pleinement de chaque rayon de soleil. Avec ses 2 chambres, sa salle de bain fonctionnelle, son cellier attenant et son garage intégré, elle réunit tous les essentiels dans une ambiance simple et agréable. Un modèle idéal pour une première acquisition ou pour poser ses valises en toute liberté à deux pas de l’océan. Pour un confort optimal et conforme à la RE2025, cette maison dispose d’une PAC avec plancher chauffant et volets roulants électriques. À noter : Le prix indiqué exclut les revêtements de sol des chambres, la cuisine aménagée, la peinture, la décoration, les frais de notaire et l’assurance dommages ouvrage. // Réf. : 558-210145-THW. Prix terrain : 58 200 €, hors frais d'agence à la charge de l'acquéreur. Ce terrain vous est proposé, par nos partenaires fonciers, dans le cadre d'un projet de construction avec nous. Les informations sur les risques auxquels ce bien est exposé sont disponibles sur le site Géorisques (www.georisques.gouv.fr). Prix maison : 133 800 €.
Apremont
TERRAIN ET MAISONSitué sur la commune d’Apremont, charmant village au cœur du bocage vendéen, découvrez ce terrain viabilisé de 404 m², idéal pour concrétiser votre projet de construction. Implanté dans un environnement calme et verdoyant, à proximité du centre-bourg et de ses commodités, ce terrain offre un cadre de vie paisible tout en restant proche des grands axes et des plages vendéennes. Un modèle de plain-pied pensé pour optimiser l’investissement locatif tout en répondant pleinement aux exigences d’accessibilité. Grâce à son agencement aux normes PMR, cette maison garantit des déplacements fluides, des accès facilités et un usage confortable pour tous les profils de locataires. Composée de 3 chambres, d’une salle d’eau accessible, d’un grand espace de vie traversant, d’un cellier et d’un garage intégré, elle coche toutes les cases de la praticité. Un bien rentable, conforme et fonctionnel, idéal pour la location longue durée ou saisonnière, avec un plan personnalisable selon les objectifs du projet. Pour un confort optimal et conforme à la RE2025, cette maison dispose d’une PAC avec plancher chauffant et volets roulants électriques. À noter : Le prix indiqué exclut les revêtements de sol des chambres, la cuisine aménagée, la peinture, la décoration, les frais de notaire et l’assurance dommages ouvrage. // Réf. : 559-210145-THW. Prix terrain : 58 200 €, hors frais d'agence à la charge de l'acquéreur. Ce terrain vous est proposé, par nos partenaires fonciers, dans le cadre d'un projet de construction avec nous. Les informations sur les risques auxquels ce bien est exposé sont disponibles sur le site Géorisques (www.georisques.gouv.fr). Prix maison : 152 900 €.
Challans
TERRAIN ET MAISONSitué sur la commune dynamique de Challans, à proximité des commerces, écoles et services, découvrez ce beau terrain viabilisé de 750 m², prêt à accueillir votre projet de construction. Implanté dans un environnement calme et verdoyant, ce terrain offre un cadre de vie idéal pour allier tranquillité et proximité du centre-ville. Une maison facile à vivre, pensée pour répondre à toutes vos envies de simplicité et de confort. Avec sa pièce de vie traversante et ouverte, ses 3 chambres, sa salle de bain fonctionnelle et son garage intégré, ce modèle offre tout le nécessaire, sans superflu. Idéale pour un premier achat malin ou une résidence secondaire pratique et lumineuse, elle combine compacité, efficacité et confort au quotidien. Son plan évolutif et personnalisable s’adapte à vos projets de vie, en bord de mer comme à la campagne. Pour un confort optimal et conforme à la RE2025, cette maison dispose d’une PAC avec plancher chauffant et volets roulants électriques. À noter : Le prix indiqué exclut les revêtements de sol des chambres, la cuisine aménagée, la peinture, la décoration, les frais de notaire et l’assurance dommages ouvrage. // Réf. : 554-210144-THW. Prix terrain : 147 500 €, hors frais d'agence à la charge de l'acquéreur. Ce terrain vous est proposé, par nos partenaires fonciers, dans le cadre d'un projet de construction avec nous. Les informations sur les risques auxquels ce bien est exposé sont disponibles sur le site Géorisques (www.georisques.gouv.fr). Prix maison : 149 940 €.
Challans
TERRAIN ET MAISONSitué sur la commune dynamique de Challans, à proximité des commerces, écoles et services, découvrez ce beau terrain viabilisé de 750 m², prêt à accueillir votre projet de construction. Implanté dans un environnement calme et verdoyant, ce terrain offre un cadre de vie idéal pour allier tranquillité et proximité du centre-ville. Un format compact, un agencement malin et une vraie sensation d’espace : cette maison de plain-pied a tout d’un refuge facile à vivre. La pièce de vie traversante avec cuisine ouverte s’ouvre sur l’extérieur pour profiter pleinement de chaque rayon de soleil. Avec ses 2 chambres, sa salle de bain fonctionnelle, son cellier attenant et son garage intégré, elle réunit tous les essentiels dans une ambiance simple et agréable. Un modèle idéal pour une première acquisition ou pour poser ses valises en toute liberté à deux pas de l’océan. Pour un confort optimal et conforme à la RE2025, cette maison dispose d’une PAC avec plancher chauffant et volets roulants électriques. À noter : Le prix indiqué exclut les revêtements de sol des chambres, la cuisine aménagée, la peinture, la décoration, les frais de notaire et l’assurance dommages ouvrage. // Réf. : 558-210144-THW. Prix terrain : 147 500 €, hors frais d'agence à la charge de l'acquéreur. Ce terrain vous est proposé, par nos partenaires fonciers, dans le cadre d'un projet de construction avec nous. Les informations sur les risques auxquels ce bien est exposé sont disponibles sur le site Géorisques (www.georisques.gouv.fr). Prix maison : 133 800 €.
Challans
TERRAIN ET MAISONSitué sur la commune dynamique de Challans, à proximité des commerces, écoles et services, découvrez ce beau terrain viabilisé de 750 m², prêt à accueillir votre projet de construction. Implanté dans un environnement calme et verdoyant, ce terrain offre un cadre de vie idéal pour allier tranquillité et proximité du centre-ville. Moderne et astucieuse, cette maison à étage sépare avec élégance les espaces de vie et les espaces nuit. Au rez-de-chaussée, profitez d’un grand séjour lumineux, d’une cuisine ouverte avec cellier et d’un garage intégré. À l’étage, 3 belles chambres, une salle de bain, un WC indépendant et un dégagement central assurent confort et intimité. Un modèle personnalisable qui s’adapte à vos envies, pour un projet unique à votre image !. Pour un confort optimal et conforme à la RE2025, cette maison dispose d’une PAC avec plancher chauffant et volets roulants électriques. À noter : Le prix indiqué exclut les revêtements de sol des chambres, la cuisine aménagée, la peinture, la décoration, les frais de notaire et l’assurance dommages ouvrage. // Réf. : 544-210144-THW. Prix terrain : 147 500 €, hors frais d'agence à la charge de l'acquéreur. Ce terrain vous est proposé, par nos partenaires fonciers, dans le cadre d'un projet de construction avec nous. Les informations sur les risques auxquels ce bien est exposé sont disponibles sur le site Géorisques (www.georisques.gouv.fr). Prix maison : 164 463 €.
Apremont
TERRAINSitué sur la commune d’Apremont, charmant village au cœur du bocage vendéen, découvrez ce terrain viabilisé de 404 m², idéal pour concrétiser votre projet de construction. Implanté dans un environnement calme et verdoyant, à proximité du centre-bourg et de ses commodités, ce terrain offre un cadre de vie paisible tout en restant proche des grands axes et des plages vendéennes. // Réf. : T210145. Prix terrain : 58 200 €, hors frais d'agence et de notaire à la charge de l'acquéreur. Ce terrain vous est proposé, par nos partenaires fonciers, dans le cadre d'un projet de construction avec nous. Les informations sur les risques auxquels ce bien est exposé sont disponibles sur le site Géorisques (www.georisques.gouv.fr).
L’actualité immobilière à Commequiers
27/11/2023
02/11/2023
30/10/2023
20/10/2023
16/10/2023
16/10/2023