Images
Description
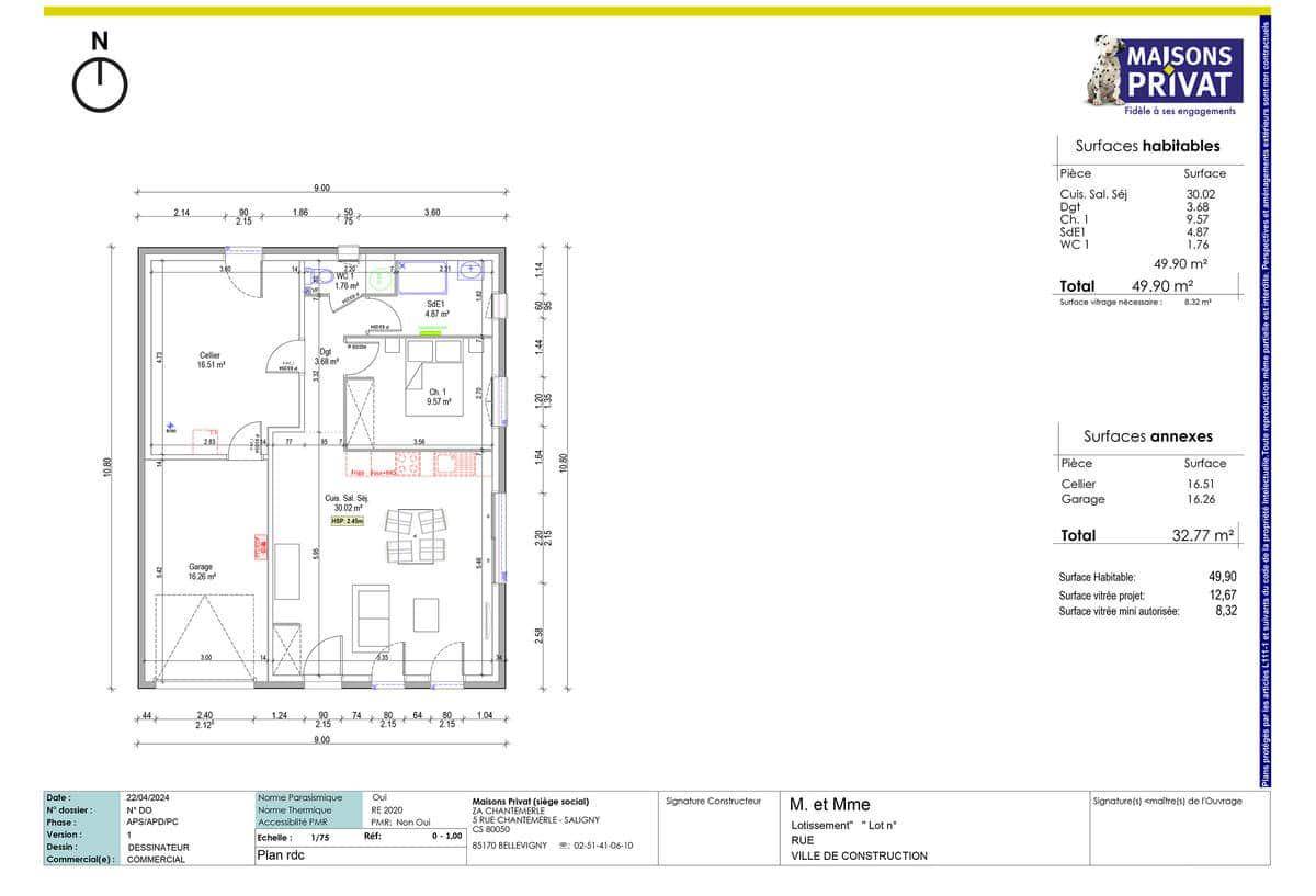
Sur ce terrain, nous vous proposons ce modèle de maison qui incarne l'harmonie parfaite entre fonctionnalité et adaptabilité, elle est conçue pour répondre à vos besoins présents tout en anticipant vos projets futurs.
Le cœur de cette maison est une pièce de vie spacieuse et lumineuse de 30 m², judicieusement aménagée pour maximiser le confort et l'utilité. Cet espace multifonctionnel combine un salon / séjour accueillant, et une cuisine ouverte moderne. Les grandes fenêtres baignent la pièce de lumière naturelle, créant une atmosphère chaleureuse et accueillante, idéale pour se détendre ou recevoir des invités.
À côté de la pièce de vie se trouvent une chambre et une salle d’eau.
Adossé à la maison, un garage de 34 m.² offre un espace pratique pour garer un véhicule ou stocker des équipements.
La conception de cette maison intègre dès le départ la possibilité d'évolution. Lorsque le moment sera venu d'agrandir, l'atelier actuel pourra être aménagé en une chambre avec salle d'eau ou dressing. Cette transformation est facilitée par une infrastructure prévue pour accueillir les installations sanitaires nécessaires. Cette flexibilité permet d'adapter la maison à l'évolution de votre famille ou de vos besoins sans compromis sur le confort ou la qualité de vie.
En résumé, cette maison évolutive est une solution idéale pour ceux qui cherchent à investir dans un habitat adaptable et durable.
* Prix indiqué hors branchements, hors sanitaires, hors revêtement des sols et des murs. Assurance dommages ouvrages incluse.
Logement susceptibles de vous intéresser
Nous vous proposons de découvrir aussi cette sélection de logements situés à moins de 10km de Commequiers et qui seraient susceptibles de vous intéresser.
Maché
TERRAINPrix : 56000 €.Sur ce terrain de 350 m² à MACHE, Alliance Construction vous propose de réaliser votre projet de construction de maison individuelle.Avec Alliance Construction, habitez une maison spécialement pensée et conçue pour vous et votre famille, prête à décorer, adaptée à vos modes de vie, personnalisée selon vos goûts grâce à un large choix d'options, de matériaux et d'innovations ! Demandez une étude gratuite et personnalisée de votre projet de construction sur ce terrain à MACHE !Contactez Sylvain CARIOU au (Numéro supprimé) (Alliance Construction – Agence de la Roche-sur-Yon).Prix hors frais de notaire. Terrain sélectionné par ALLIANCE auprès de nos partenaires fonciers, selon disponibilité, pour la construction d'une maison neuve. Non mandaté pour réaliser la vente (loi du 2 janvier 1970 n°70-9). Visuels non contractuels. Voir détails en agence.Cette annonce a été créée et diffusée avec le logiciel VITAHOME.
Maché
TERRAIN ET MAISONA MACHE sur un terrain de 350 m², Alliance Construction vous propose de réaliser votre projet de construction de maison individuelle d'une surface de 87.91 m² habitables avec 3 chambres, à partir de 218154€*Demandez une étude gratuite et personnalisée de votre projet de construction !* Cette offre comprend :- Garanties constructeurs (dommages ouvrage, garantie de prix ferme et définitif, garantie de livraison, responsabilité civile et décennale).- Branchements aux compteurs et accès empierré sur 5m linéaires.Habitez une maison spécialement pensée et conçue pour vous et votre famille, prête à décorer, adaptée à vos modes de vie, personnalisée selon vos goûts grâce à un large choix d'options, de matériaux et d'innovations !Contactez Sylvain CARIOU au (Numéro supprimé) (Alliance Construction – Agence de la Roche-sur-Yon).*Prix indicatif pour un projet de construction d'une maison individuelle. Ne sont pas inclus les frais de branchements, raccordements aux réseaux publics, frais d'adaptations, aménagements intérieurs et extérieurs et options. terrain viabilisé, frais de notaire non compris, frais divers non compris. Garanties et assurances obligatoires incluses. Terrain sélectionné par ALLIANCE auprès de nos partenaires fonciers, selon disponibilité, pour la construction d'une maison neuve. Non mandaté pour réaliser la vente (loi du 2 janvier 1970 n°70-9). Visuels non contractuels. Voir détails en agence.Cette annonce a été créée et diffusée avec le logiciel VITAHOME.
Saint-Maixent-sur-Vie
TERRAINDécouvrez ce magnifique terrain viabilisé de 494 m² situé dans un lieu-dit paisible entre Commequiers, Coex et Saint-Maixent-sur-Vie, idéal pour la réalisation de votre projet de construction de maison. Ce terrain offre une belle opportunité pour construire la maison de vos rêves dans un cadre calme et agréable. Profitez d’un environnement serein tout en étant à proximité des commodités nécessaires à votre vie quotidienne. Saint-Maixent-sur-Vie, nichée en Vendée au cœur de la région Pays de la Loire, est une ville dynamique qui allie sérénité et modernité. Son emplacement privilégié vous permet de profiter des plaisirs de la nature avec de nombreuses activités de plein air tout en étant à proximité des commodités essentielles, telles que les commerces, les écoles et les infrastructures sportives. La région est également réputée pour ses paysages pittoresques et sa richesse culturelle, offrant ainsi à ses habitants un cadre de vie privilégié. Ne manquez pas cette occasion unique d’investir dans ce terrain prometteur et envisagez dès à présent les nombreuses possibilités qu’il vous offre. Contactez-nous pour plus d’informations. À noter qu’en tant que constructeur, nous ne sommes pas mandatés pour réaliser la vente de ce terrain.
Maché
TERRAIN ET MAISONA MACHE sur un terrain de 350 m², Alliance Construction vous propose de réaliser votre projet de construction de maison individuelle d'une surface de 95 m² habitables avec 4 chambres, à partir de 263871€*Demandez une étude gratuite et personnalisée de votre projet de construction !* Cette offre comprend :- Garanties constructeurs (dommages ouvrage, garantie de prix ferme et définitif, garantie de livraison, responsabilité civile et décennale).- Branchements aux compteurs et accès empierré sur 5m linéaires.Habitez une maison spécialement pensée et conçue pour vous et votre famille, prête à décorer, adaptée à vos modes de vie, personnalisée selon vos goûts grâce à un large choix d'options, de matériaux et d'innovations !Contactez Patrice (Numéro supprimé)*Prix indicatif pour un projet de construction d'une maison individuelle. Ne sont pas inclus les frais de branchements, raccordements aux réseaux publics, frais d'adaptations, aménagements intérieurs et extérieurs et options. terrain viabilisé, frais de notaire non compris, frais divers non compris. Garanties et assurances obligatoires incluses. Terrain sélectionné par ALLIANCE auprès de nos partenaires fonciers, selon disponibilité, pour la construction d'une maison neuve. Non mandaté pour réaliser la vente (loi du 2 janvier 1970 n°70-9). Visuels non contractuels. Voir détails en agence.Cette annonce a été créée et diffusée avec le logiciel VITAHOME.
Maché
TERRAIN ET MAISONProfitez de vos vacances pour concrétiser un nouveau projet.Votre maison Alliance construite en fonction de vos besoins avec des matériaux et des équipements de qualité à partir de 235000€* Habitez une maison spécialement pensée et conçue pour vous et votre famille, prête à décorer, adaptée à votre mode de vie, personnalisée selon vos goûts grâce à un large choix d’options, de matériaux et d’innovations !Contactez Sylvain CARIOU au (Numéro supprimé) (Alliance Construction – Agence de la Roche-sur-Yon).*Prix indicatif pour un projet de construction d'une maison individuelle. Ne sont pas inclus les frais de branchements, raccordements aux réseaux publics, frais d'adaptations, aménagements intérieurs et extérieurs et options. terrain viabilisé, frais de notaire non compris, frais divers non compris. Garanties et assurances obligatoires incluses. Terrain sélectionné par ALLIANCE auprès de nos partenaires fonciers, selon disponibilité, pour la construction d'une maison neuve. Non mandaté pour réaliser la vente (loi du 2 janvier 1970 n°70-9). Visuels non contractuels. Voir détails en agence.Cette annonce a été créée et diffusée avec le logiciel VITAHOME.
Maché
TERRAINPrix : 60000 €.Sur ce terrain de 350 m² à MACHE, Alliance Construction vous propose de réaliser votre projet de construction de maison individuelle.Avec Alliance Construction, habitez une maison spécialement pensée et conçue pour vous et votre famille, prête à décorer, adaptée à vos modes de vie, personnalisée selon vos goûts grâce à un large choix d'options, de matériaux et d'innovations ! Demandez une étude gratuite et personnalisée de votre projet de construction sur ce terrain à MACHE !Contactez Sylvain CARIOU au (Numéro supprimé) (Alliance Construction – Agence de la Roche-sur-Yon).Prix hors frais de notaire. Terrain sélectionné par ALLIANCE auprès de nos partenaires fonciers, selon disponibilité, pour la construction d'une maison neuve. Non mandaté pour réaliser la vente (loi du 2 janvier 1970 n°70-9). Visuels non contractuels. Voir détails en agence.Cette annonce a été créée et diffusée avec le logiciel VITAHOME.
Saint-Maixent-sur-Vie
TERRAINDécouvrez ce lotissement de 494 m², idéalement situé pour réaliser votre projet de construction de maison dans la charmante commune de Saint-Maixent-sur-Vie. Ce terrain viabilisé saura vous séduire par son potentiel d’aménagement et sa configuration propice à l’épanouissement de votre future résidence. Profitez d’un environnement paisible dans un lieu-dit entre Commequiers, Coex et Saint-Maixent-sur, où la convivialité des riverains crée une atmosphère chaleureuse et accueillante. Saint-Maixent-sur-Vie, située dans le département de la Vendée, au cœur de la région Pays de la Loire, bénéficie d’un cadre de vie privilégié. La commune offre un accès facile aux grandes axes routiers tout en préservant une ambiance tranquille. Vous trouverez à proximité des attractions locales telles que des sentiers de randonnée, des commerces pratiques et des écoles de qualité. Les belles plages de la côte vendéenne ne sont qu’à quelques kilomètres, ajoutant à ce cadre exceptionnel un atout tout particulier pour les amoureux de la nature et des activités en plein air. Ne manquez pas cette opportunité d’acquérir un terrain de choix, tout en contemplant le potentiel que ce lieu peut offrir. Une vie sereine vous attend, alors n’hésitez plus et envisagez dès maintenant d’y poser vos valises ! À noter qu’en tant que constructeur, nous ne sommes pas mandatés pour réaliser la vente de ce terrain.
Maché
TERRAINPrix : 75500 €.Sur ce terrain de 487 m² à MACHE, Alliance Construction vous propose de réaliser votre projet de construction de maison individuelle.Avec Alliance Construction, habitez une maison spécialement pensée et conçue pour vous et votre famille, prête à décorer, adaptée à vos modes de vie, personnalisée selon vos goûts grâce à un large choix d'options, de matériaux et d'innovations ! Demandez une étude gratuite et personnalisée de votre projet de construction sur ce terrain à MACHE !Contactez Sylvain CARIOU au (Numéro supprimé) (Alliance Construction – Agence de la Roche-sur-Yon).Prix hors frais de notaire. Terrain sélectionné par ALLIANCE auprès de nos partenaires fonciers, selon disponibilité, pour la construction d'une maison neuve. Non mandaté pour réaliser la vente (loi du 2 janvier 1970 n°70-9). Visuels non contractuels. Voir détails en agence.Cette annonce a été créée et diffusée avec le logiciel VITAHOME.
Maché
TERRAINVenez découvrir ce magnifique terrain dans un petit lotissement en pleine nature !terrain viabilisé de 419 m² pour construire votre maison idéal !Prix : 66000 €.Sur ce terrain de 419 m² à MACHE, Alliance Construction vous propose de réaliser votre projet de construction de maison individuelle.Avec Alliance Construction, habitez une maison spécialement pensée et conçue pour vous et votre famille, prête à décorer, adaptée à vos modes de vie, personnalisée selon vos goûts grâce à un large choix d'options, de matériaux et d'innovations ! Demandez une étude gratuite et personnalisée de votre projet de construction sur ce terrain à MACHE !Contactez Sylvain CARIOU au (Numéro supprimé) (Alliance Construction – Agence de la Roche-sur-Yon).Prix hors frais de notaire. Terrain sélectionné par ALLIANCE auprès de nos partenaires fonciers, selon disponibilité, pour la construction d'une maison neuve. Non mandaté pour réaliser la vente (loi du 2 janvier 1970 n°70-9). Visuels non contractuels. Voir détails en agence.Cette annonce a été créée et diffusée avec le logiciel VITAHOME.
L’actualité immobilière à Commequiers
27/11/2023
02/11/2023
30/10/2023
20/10/2023
16/10/2023
16/10/2023