Images
Description
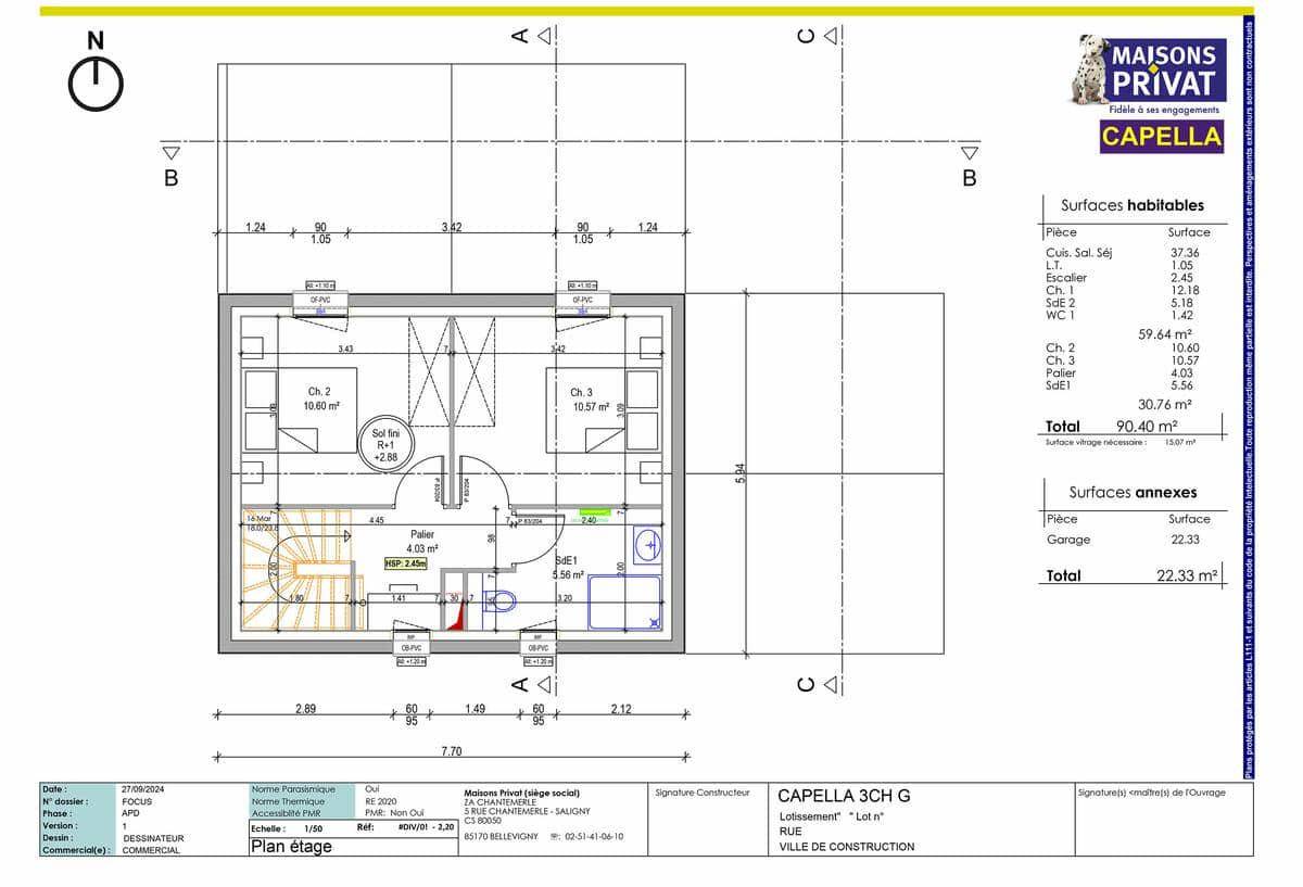
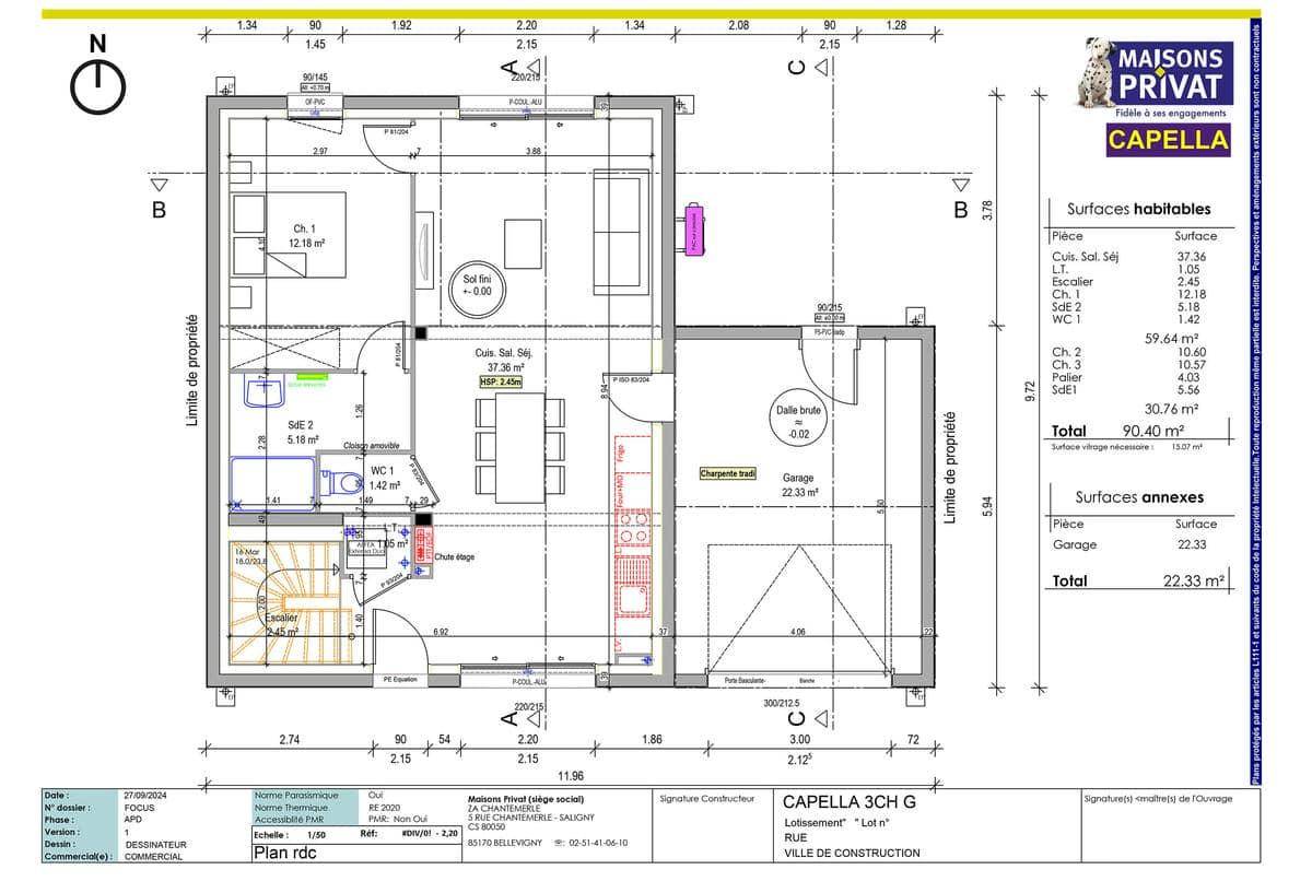
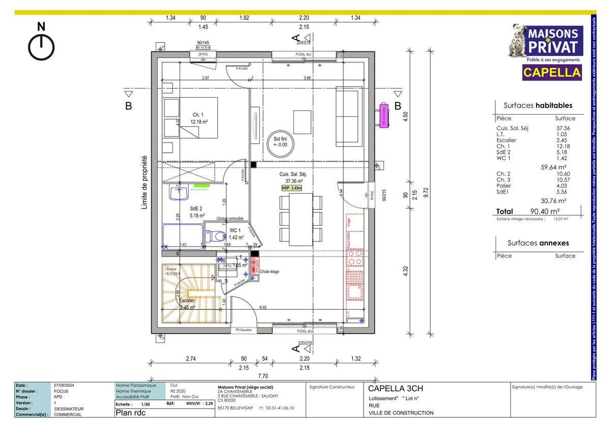
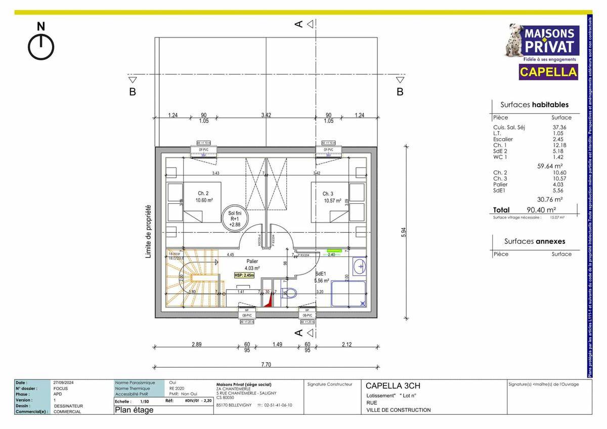
Sur ce terrain, nous vous proposons une maison contemporaine pensée pour le bien-être de toute la famille. Avec ses 90,57 m² de surface habitable et ses espaces lumineux cette maison à étage est idéale pour ceux qui recherchent un cadre de vie agréable et fonctionnel.
Un intérieur chaleureux et optimisé
Dès l’entrée, découvrez une belle pièce de vie de 37 m², spacieuse et lumineuse grâce à ses larges ouvertures donnant sur le jardin . L’espace salon-salle à manger se prolonge harmonieusement avec une cuisine ouverte, idéale pour partager des moments conviviaux.
Le rez-de-chaussée accueille également une suite parentale confortable de 12,18 m², garantissant calme et intimité. Une salle d’eau moderne et des WC indépendants complètent ce niveau.
Un étage conçu pour la famille
À l’étage, deux chambres de 10,70 m² et 10,74 m² offrent un espace de vie agréable pour les enfants ou les invités. Une grande salle d’eau de 5,56 m² ainsi qu’un palier pouvant être aménagé en coin bureau ou espace détente complètent ce niveau.
Sur cette version, un garage peut être ajouté en option.
* Prix indiqué hors branchements, hors sanitaires, hors revêtement des sols et des murs. Assurance dommages ouvrages incluse.
Logement susceptibles de vous intéresser
Nous vous proposons de découvrir aussi cette sélection de logements situés à moins de 10km de Dompierre-sur-Yon et qui seraient susceptibles de vous intéresser.
Dompierre-sur-Yon
TERRAINNous vous proposons un terrain à vendre d’une superficie de 524 m², situé dans le charmant lotissement de Dompierre-sur-Yon. Ce terrain viabilisé offre une opportunité rare pour les futurs propriétaires souhaitant réaliser un projet de construction de maison sur un espace sécurisé et accueillant. Profitez d’un cadre de vie idéal pour bâtir votre rêve dans une ville en plein essor, alliant tranquillité et dynamisme. Idéalement situé en Vendée, dans la région des Pays de la Loire, Dompierre-sur-Yon bénéficie d’un emplacement stratégique, à proximité des principales commodités et attractions locales. Le centre-ville offre une variété de commerces, de services et d’écoles, permettant de vivre au quotidien dans un environnement agréable et pratique. De plus, la proximité avec la nature et les sentiers de randonnée enrichissent la qualité de vie de ce charmant village, faisant de ce terrain un choix privilégié pour les amateurs de grands espaces et de détente. Ne laissez pas passer cette occasion unique d’investir dans un terrain prometteur à Dompierre-sur-Yon. Contactez-nous dès maintenant pour découvrir le potentiel de cet espace et envisager votre futur projet de construction! À noter qu’en tant que constructeur, nous ne sommes pas mandatés pour réaliser la vente de ce terrain.
Mouilleron-le-Captif
TERRAIN ET MAISONSitué au cœur de la commune recherchée de Mouilleron-le-Captif, découvrez ce terrain viabilisé de 471 m², idéal pour concrétiser votre projet de construction. Vous apprécierez son environnement calme, offrant un cadre de vie agréable et préservé, tout en restant proche des commerces, des écoles et des axes routiers. Un modèle de plain-pied où chaque mètre carré a été pensé pour conjuguer accessibilité, confort et efficacité locative. Entièrement conforme aux normes PMR, il offre de larges circulations, une salle de bains spacieuse adaptée, des accès facilités à toutes les pièces, y compris le garage attenant. Le séjour lumineux, les 3 chambres avec rangements intégrés, et l’optimisation des dégagements assurent une vie fluide et sans contrainte. Un bien rare, idéal pour la location inclusive, avec un plan fonctionnel, ergonomique et personnalisable selon les objectifs d’usage ou d’investissement. Pour un confort optimal et conforme à la RE2025, cette maison dispose d’une PAC avec plancher chauffant et volets roulants électriques. À noter : Le prix indiqué exclut les revêtements de sol des chambres, la cuisine aménagée, la peinture, la décoration, les frais de notaire et l’assurance dommages ouvrage. // Réf. : 560-213653-THW. Prix terrain : 66 900 €, hors frais d'agence à la charge de l'acquéreur. Ce terrain vous est proposé, par nos partenaires fonciers, dans le cadre d'un projet de construction avec nous. Les informations sur les risques auxquels ce bien est exposé sont disponibles sur le site Géorisques (www.georisques.gouv.fr). Prix maison : 150 800 €.
Mouilleron-le-Captif
TERRAINDécouvrez ce terrain de 337 m², idéalement situé au cœur de Mouilleron-le-Captif, dans un environnement calme et recherché. Parfait pour votre futur projet de construction, il offre un cadre de vie agréable tout en restant proche des commerces, des écoles et des axes principaux. // Réf. : T213472. Prix terrain : 66 500 €, hors frais d'agence et de notaire à la charge de l'acquéreur. Ce terrain vous est proposé, par nos partenaires fonciers, dans le cadre d'un projet de construction avec nous. Les informations sur les risques auxquels ce bien est exposé sont disponibles sur le site Géorisques (www.georisques.gouv.fr).
Mouilleron-le-Captif
TERRAINDécouvrez ce terrain de 337 m², idéalement situé au cœur de Mouilleron-le-Captif, dans un environnement calme et recherché. Parfait pour votre futur projet de construction, il offre un cadre de vie agréable tout en restant proche des commerces, des écoles et des axes principaux. // Réf. : T213472. Prix terrain : 66 500 €, hors frais d'agence et de notaire à la charge de l'acquéreur. Ce terrain vous est proposé, par nos partenaires fonciers, dans le cadre d'un projet de construction avec nous. Les informations sur les risques auxquels ce bien est exposé sont disponibles sur le site Géorisques (www.georisques.gouv.fr).
Dompierre-sur-Yon
TERRAINDécouvrez ce magnifique terrain à vendre de 369 m², situé dans le charmant lotissement de Dompierre-sur-Yon. Ce terrain viabilisé est l’emplacement idéal pour concrétiser votre rêve de construction d’une maison familiale. Avec une surface généreuse et un environnement paisible, ce terrain offre une rare opportunité d’édifier votre havre de paix dans une ville où la tranquillité et la convivialité se rencontrent. Nichée dans le département de la Vendée, Dompierre-sur-Yon est une commune dynamique au cœur de la région Pays de la Loire. Profitez d’une vie de qualité avec ses commerces de proximité, ses écoles et ses infrastructures sportives. Les amateurs de nature seront ravis de découvrir les nombreux sentiers et espaces verts qui entourent la ville, tandis que les attractions locales, à quelques minutes en voiture, ajoutent à son charme indéniable. Cette commune allie efficacement douceur de vivre et proximité des commodités. Ce terrain représente une opportunité unique d’investissement dans un cadre agréable et recherché. N’hésitez pas à envisager cet emplacement idéal pour votre futur projet de construction! À noter qu’en tant que constructeur, nous ne sommes pas mandatés pour réaliser la vente de ce terrain.
Dompierre-sur-Yon
TERRAIN ET MAISONSur ce terrain, nous vous proposons cette jolie maison neuve au design moderne et épuré, idéale pour un premier achat ou un investissement locatif, cette maison de plain-pied allie confort, fonctionnalité et esthétique.D’une surface habitable de 61.74 m², elle se compose de deux chambres spacieuses , d’une grande pièce de vie lumineuse de 35.34 m² intégrant une cuisine ouverte, un salon et une salle à manger. La salle d’eau moderne est complétée par un WC indépendant. Les prestations de qualité, avec des menuiseries modernes, une isolation performante, offrent un cadre de vie agréable et économe en énergie.Sur cette version, un garage peut être ajouté en option.Cette construction neuve, conforme aux dernières normes énergétiques, garantit un confort optimal et une faible consommation énergétique.
Mouilleron-le-Captif
TERRAINSitué au cœur de la commune recherchée de Mouilleron-le-Captif, découvrez ce terrain viabilisé de 471 m², idéal pour concrétiser votre projet de construction. Vous apprécierez son environnement calme, offrant un cadre de vie agréable et préservé, tout en restant proche des commerces, des écoles et des axes routiers. // Réf. : T213653. Prix terrain : 66 900 €, hors frais d'agence et de notaire à la charge de l'acquéreur. Ce terrain vous est proposé, par nos partenaires fonciers, dans le cadre d'un projet de construction avec nous. Les informations sur les risques auxquels ce bien est exposé sont disponibles sur le site Géorisques (www.georisques.gouv.fr).
Mouilleron-le-Captif
TERRAINSitué au cœur de la commune recherchée de Mouilleron-le-Captif, découvrez ce terrain viabilisé de 471 m², idéal pour concrétiser votre projet de construction. Vous apprécierez son environnement calme, offrant un cadre de vie agréable et préservé, tout en restant proche des commerces, des écoles et des axes routiers. // Réf. : T213653. Prix terrain : 66 900 €, hors frais d'agence et de notaire à la charge de l'acquéreur. Ce terrain vous est proposé, par nos partenaires fonciers, dans le cadre d'un projet de construction avec nous. Les informations sur les risques auxquels ce bien est exposé sont disponibles sur le site Géorisques (www.georisques.gouv.fr).
Mouilleron-le-Captif
TERRAIN ET MAISONSitué au cœur de la commune recherchée de Mouilleron-le-Captif, découvrez ce terrain viabilisé de 471 m², idéal pour concrétiser votre projet de construction. Vous apprécierez son environnement calme, offrant un cadre de vie agréable et préservé, tout en restant proche des commerces, des écoles et des axes routiers. Découvrez EVOLIA, la maison évolutive qui s'adapte à chaque étape de votre vie. Transformez facilement une maison de 2 chambres en une maison de 3 chambres grâce à un garage aménageable de 15 m². Flexible et personnalisable, EVOLIA évolue avec vous, que vous soyez une jeune famille, un couple ou une personne seule. Ne laissez plus vos besoins en logement vous limiter. Contactez nos experts conseillers dès aujourd’hui et faites de EVOLIA la maison de vos rêves. Prix hors fourniture et pose : des appareils sanitaires (sauf système de chauffage et d'eau chaude sanitaire), du carrelage, de la faïence, de la cuisine aménagée, des revêtements de sol dans les chambres. Hors décoration, aménagement intérieur, peinture, raccordements, frais de notaire et dommage ouvrage. (Surface habitable 49 m²+garage 15 m²). // Réf. : 2663-213653-THW. Prix terrain : 66 900 €, hors frais d'agence à la charge de l'acquéreur. Ce terrain vous est proposé, par nos partenaires fonciers, dans le cadre d'un projet de construction avec nous. Les informations sur les risques auxquels ce bien est exposé sont disponibles sur le site Géorisques (www.georisques.gouv.fr). Prix maison : 95 181 €.
L’actualité immobilière à Dompierre-sur-Yon
27/11/2023
02/11/2023
30/10/2023
20/10/2023
16/10/2023
16/10/2023