Maison à construire à Givrand (85800)
Images
Description
****PROCHE DU BOURG ET A SEULEMENT QUELQUES MINUTES DE LA MER*****
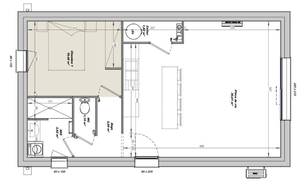
Maison de 2 pièces (50 m²) en vente à Givrand
MAISON 2 PIÈCES NEUVE
À vendre à 4 km de l'océan Atlantique, nous sommes ravis de vous présenter à Givrand (85800), cette maison de 2 pièces de plain-pied de 50 m² et de 380 m² de terrain. Elle dispose d'une chambre, d'une cuisine et d'une salle de bains.
La maison est neuve.
Il y a l'École Primaire Privée la Fontaine à moins de 10 minutes à pied. Niveau transports, on trouve deux gares (Saint-Gilles-Croix-de-Vie et Saint-Hilaire-de-Riez) à moins de 10 minutes en voiture. Il y a une boulangerie et un commerce à proximité.
Elle est à vendre pour la somme de 189 900 €.
Contactez Nicolas RISSELIN ((Numéro supprimé)) pour plus d'informations sur cette maison. Faites de vos projets immobiliers une réalité avec LMP Constructeur Saint-Gilles-Croix-de-Vie.
****PROCHE DU BOURG ET A SEULEMENT QUELQUES MINUTES DE LA MER*****
Logement susceptibles de vous intéresser
Nous vous proposons de découvrir aussi cette sélection de logements situés à moins de 10km de Givrand et qui seraient susceptibles de vous intéresser.

Saint-Gilles-Croix-de-Vie
TERRAINChristophe Debien – BSK Immobilier vous présente un terrain d’exception, idéalement situé sur le secteur recherché de Saint-Gilles-Croix-de-Vie.À moins de 5 minutes à pied de la grande plage, 10 minutes en vélo du remblai et 5 minutes en voiture de la gare SNCF, ce terrain rare offre un emplacement privilégié, alliant calme, confort de vie et proximité du littoral.Implanté dans une zone non submersible, il dispose d’une façade d’environ 12 mètres pour une profondeur d’environ 23 mètres, permettant une orientation plein sud idéale pour un futur projet de construction baigné de lumière.Le terrain est non viabilisé, mais les raccordements sont à proximité immédiate, facilitant ainsi les démarches de viabilisation.Le certificat d’urbanisme est validé, garantissant la faisabilité de votre projet.Une opportunité rare pour bâtir dans un environnement paisible, à seulement quelques pas de l’océan. Pour tout renseignement complémentaire ou pour découvrir ce bien, contactez Christophe Debien – BSK Immobilier au (Numéro supprimé).Cette annonce référence 308049 vous est présentée par votre agent commercial BSK Immobilier CHRISTOPHE DEBIEN (EI) immatriculé au RSAC de LA ROCHE-SUR-YON (85000) sous le numéro 9(Numéro supprimé)016.Prix du bien : 230 000,00 €Les honoraires d’agence sont à la charge du vendeur.Les informations sur les risques auxquels ce bien est exposé sont disponibles sur le site Géorisques : www.georisques.gouv.fr

Givrand
TERRAIN****PROCHE DU BOURG ET A SEULEMENT QUELQUES MINUTES DE LA MER*****VENTE : terrain de 380 m² à GivrandÀ Givrand (85800) sur la côte atlantique, donnez vie à votre projet de construction sur ce terrain de 380 m². Ce terrain est proche des commerces et des écoles. L’École Primaire Privée la Fontaine se trouve à moins de 10 minutes à pied. Niveau transports en commun, il y a deux gares (Saint-Gilles-Croix-de-Vie et Saint-Hilaire-de-Riez) à moins de 10 minutes en voiture. On trouve une boulangerie et un commerce à proximité du bien.Il est proposé à l’achat pour 84 000 €. N’hésitez pas à prendre contact avec Nicolas RISSELIN ((Numéro supprimé)) pour tout renseignement sur ce terrain.****PROCHE DU BOURG ET A SEULEMENT QUELQUES MINUTES DE LA MER*****

Givrand
TERRAIN ET MAISON****PROCHE DU BOURG ET A SEULEMENT QUELQUES MINUTES DE LA MER*****Maison de 2 pièces (50 m²) en vente à GivrandMAISON 2 PIÈCES NEUVEÀ vendre à 4 km de l’océan Atlantique, nous sommes ravis de vous présenter à Givrand (85800), cette maison de 2 pièces de plain-pied de 50 m² et de 380 m² de terrain. Elle dispose d’une chambre, d’une cuisine et d’une salle de bains.La maison est neuve.Il y a l’École Primaire Privée la Fontaine à moins de 10 minutes à pied. Niveau transports, on trouve deux gares (Saint-Gilles-Croix-de-Vie et Saint-Hilaire-de-Riez) à moins de 10 minutes en voiture. Il y a une boulangerie et un commerce à proximité.Elle est à vendre pour la somme de 189 900 €.Contactez Nicolas RISSELIN ((Numéro supprimé)) pour plus d’informations sur cette maison. Faites de vos projets immobiliers une réalité avec LMP Constructeur Saint-Gilles-Croix-de-Vie.****PROCHE DU BOURG ET A SEULEMENT QUELQUES MINUTES DE LA MER*****

Givrand
TERRAIN ET MAISON****PROCHE DU BOURG ET A SEULEMENT QUELQUES MINUTES DE LA MER*****Maison T2 (61 m²) en vente à GivrandMAISON 2 PIÈCES NEUVEÀ vendre : sur le littoral atlantique, à Givrand (85800), votre agence LMP Constructeur Saint-Gilles-Croix-de-Vie est heureuse de vous proposer cette maison de 2 pièces de plain-pied de 61 m².Son intérieur compte deux chambres, une cuisine et une salle de bains. La maison est neuve.Le terrain du bien est de 380 m².L’École Primaire Privée la Fontaine est implantée à moins de 10 minutes à pied. Côté transports, il y a deux gares (Saint-Gilles-Croix-de-Vie et Saint-Hilaire-de-Riez) à moins de 10 minutes en voiture. On trouve une boulangerie et un commerce à quelques minutes à peine.Son prix de vente est de 199 990 €.N’hésitez pas à prendre contact avec Nicolas RISSELIN (tél : (Numéro supprimé)) pour plus de renseignements sur la maison ou sur les démarches à suivre. LMP Constructeur Saint-Gilles-Croix-de-Vie vous accompagne dans tous vos projets immobiliers et à toutes les étapes de votre projet.****PROCHE DU BOURG ET A SEULEMENT QUELQUES MINUTES DE LA MER*****

Givrand
TERRAIN ET MAISON****PROCHE DU BOURG ET A SEULEMENT QUELQUES MINUTES DE LA MER*****Maison F2 (61 m²) à vendre à GivrandMAISON 2 PIÈCES NEUVEÀ vendre à 4 km de la côte atlantique, à Givrand (85800), nous vous présentons cette maison de 2 pièces de plain-pied de 61 m². Elle propose deux chambres, une cuisine et une salle de bains.Le terrain du bien est de 380 m².La maison est neuve.On trouve l’École Primaire Privée la Fontaine à moins de 10 minutes à pied. Niveau transports en commun, il y a deux gares (Saint-Gilles-Croix-de-Vie et Saint-Hilaire-de-Riez) à moins de 10 minutes en voiture. On trouve une boulangerie et un commerce à proximité de la maison.Elle est à vendre pour la somme de 215 900 €.Prenez contact avec notre agence (Nicolas RISSELIN : (Numéro supprimé)) pour tout renseignement sur la maison ou sur les démarches à suivre.****PROCHE DU BOURG ET A SEULEMENT QUELQUES MINUTES DE LA MER*****

Givrand
TERRAIN ET MAISON****PROCHE DU BOURG ET A SEULEMENT QUELQUES MINUTES DE LA MER*****VENTE : maison de 2 pièces (79 m²) à GivrandMAISON 2 PIÈCES NEUVEÀ vendre : sur le littoral atlantique, venez découvrir cette maison de 2 pièces de plain-pied de 79 m² à Givrand (85800). Elle comporte trois chambres, une cuisine et une salle de bains.Le terrain de la propriété est de 380 m².Cette maison est neuve.L’École Primaire Privée la Fontaine se trouve à moins de 10 minutes à pied. Niveau transports, il y a les gares Saint-Gilles-Croix-de-Vie et Saint-Hilaire-de-Riez à moins de 10 minutes en voiture. On trouve une boulangerie et un commerce à quelques minutes à peine.Elle est à vendre pour la somme de 217 900 €.Contactez notre agence (Nicolas RISSELIN : (Numéro supprimé)) pour plus d’informations sur cette maison.****PROCHE DU BOURG ET A SEULEMENT QUELQUES MINUTES DE LA MER*****

Givrand
TERRAIN ET MAISON****PROCHE DU BOURG ET A SEULEMENT QUELQUES MINUTES DE LA MER*****VENTE : maison T4 (79 m²) à GivrandMAISON 4 PIÈCES NEUVEÀ vendre : située à 4 km de la côte atlantique, nous sommes heureux de vous proposer à Givrand (85800), cette maison de 4 pièces de plain-pied de 79 m² et de 380 m² de terrain. Son intérieur compte trois chambres, une cuisine et une salle de bains.La maison est neuve.Il y a l’École Primaire Privée la Fontaine à moins de 10 minutes à pied. Côté transports en commun, on trouve les gares Saint-Gilles-Croix-de-Vie et Saint-Hilaire-de-Riez à moins de 10 minutes en voiture. Il y a une boulangerie et un commerce à proximité.Elle est à vendre pour la somme de 221 900 €.N’hésitez pas à prendre contact avec notre agence (RISSELIN Nicolas : (Numéro supprimé)) pour obtenir de plus amples renseignements sur la maison ou sur les modalités de vente.****PROCHE DU BOURG ET A SEULEMENT QUELQUES MINUTES DE LA MER*****

Givrand
TERRAIN ET MAISON****PROCHE DU BOURG ET A SEULEMENT QUELQUES MINUTES DE LA MER*****Givrand : maison de 4 pièces (84 m²) en venteMAISON 4 PIÈCES NEUVEÀ vendre : à 4 km de l’océan Atlantique, à Givrand (85800), LMP Constructeur Saint-Gilles-Croix-de-Vie vous propose cette maison de 4 pièces de plain-pied de 84 m².Elle compte trois chambres, une cuisine et une salle de bains. Cette maison est neuve.Le terrain de la propriété s’étend sur 380 m².L’École Primaire Privée la Fontaine se trouve à moins de 10 minutes à pied. Niveau transports, il y a les gares Saint-Gilles-Croix-de-Vie et Saint-Hilaire-de-Riez à moins de 10 minutes en voiture. On trouve une boulangerie et un commerce à proximité de la maison.Son prix de vente est de 259 900 €.Prenez contact avec Nicolas RISSELIN ((Numéro supprimé)) pour tout renseignement sur la maison.****PROCHE DU BOURG ET A SEULEMENT QUELQUES MINUTES DE LA MER*****

Saint-Hilaire-de-Riez
TERRAINVENTE : terrain de 342 m² à Saint-Hilaire-de-Riez 1 km du centre ville.IDÉALEMENT SITUÉ à 2 km de la plage de Sion !À Saint-Hilaire-de-Riez (85270) sur le littoral atlantique, imaginez la maison de vos rêves sur ce terrain de 342 m². Ce terrain, avec une exposition sud, donne sur un jardin. Dans un secteur recherché, le terrain idéalement situé est proche des commerces et des écoles. L’École Maternelle Publique Henry Simon, l’École Élémentaire Publique Henry Simon et l’École Primaire Privée Mixte le Marais Bleu sont implantées à moins de 5 minutes. Niveau transports en commun, on trouve la gare Saint-Hilaire-de-Riez juste à côté. Il y a trois boulangeries, trois commerces, une supérette, une poissonnerie et une épicerie à proximité du bien.Son prix de vente est de 120 000 €. N’hésitez pas à prendre contact avec notre agence (Tony MIGAULT : (Numéro supprimé)) pour toute question sur le terrain. LMP Constructeur Challans vous accompagne dans toutes vos démarches et à toutes les étapes de votre projet.
L’actualité immobilière à Givrand





