Maison à construire à Givrand (85800)
Images
Description
****A SEULMENT 5 MINUTES DES PLAGES****
Maison de 2 pièces (61 m²) en vente à Givrand
IDÉALEMENT SITUÉE - MAISON 2 PIÈCES NEUVE
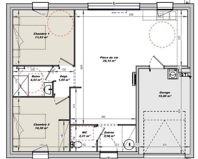
Sur la côte atlantique, LMP Constructeur Challans vous présente cette maison de 2 pièces de plain-pied de 61 m² et de 244 m² de terrain idéalement située dans Givrand (85800). Elle dispose de deux chambres, d'une cuisine et d'une salle de bains.
La maison est neuve.
La maison se situe dans un quartier recherché. On trouve l'École Primaire Privée la Fontaine à moins de 10 minutes à pied. Côté transports en commun, il y a les gares Saint-Gilles-Croix-de-Vie et Saint-Hilaire-de-Riez à moins de 10 minutes en voiture. On trouve une boulangerie et un commerce à proximité de la maison.
Son prix de vente est de 210 900 €.
Prenez contact avec Nicolas RISSELIN (tél : (Numéro supprimé)) pour toute question sur la maison. Concrétisez vos projets immobiliers avec LMP Constructeur Challans.
****A SEULMENT 5 MINUTES DES PLAGES****
Logement susceptibles de vous intéresser
Nous vous proposons de découvrir aussi cette sélection de logements situés à moins de 10km de Givrand et qui seraient susceptibles de vous intéresser.
Givrand
TERRAIN ET MAISONA GIVRAND sur un terrain de 225 m², Alliance Construction vous propose de réaliser votre projet de construction de maison individuelle d'une surface de 80 m² habitables avec 3 chambres, à partir de 225072€*Demandez une étude gratuite et personnalisée de votre projet de construction !* Cette offre comprend :- Garanties constructeurs (dommages ouvrage, garantie de prix ferme et définitif, garantie de livraison, responsabilité civile et décennale).- Branchements aux compteurs et accès empierré sur 5m linéaires.Habitez une maison spécialement pensée et conçue pour vous et votre famille, prête à décorer, adaptée à vos modes de vie, personnalisée selon vos goûts grâce à un large choix d'options, de matériaux et d'innovations !Contactez Perrick MACCHI au (Numéro supprimé) (Alliance Construction – Agence des Sables-d'Olonne).*Prix indicatif pour un projet de construction d'une maison individuelle. Ne sont pas inclus les frais de branchements, raccordements aux réseaux publics, frais d'adaptations, aménagements intérieurs et extérieurs et options. terrain viabilisé, frais de notaire non compris, frais divers non compris. Garanties et assurances obligatoires incluses. Terrain sélectionné par ALLIANCE auprès de nos partenaires fonciers, selon disponibilité, pour la construction d'une maison neuve. Non mandaté pour réaliser la vente (loi du 2 janvier 1970 n°70-9). Visuels non contractuels. Voir détails en agence.Cette annonce a été créée et diffusée avec le logiciel VITAHOME.
Givrand
TERRAIN ET MAISONA GIVRAND sur un terrain de 225 m², Alliance Construction vous propose de réaliser votre projet de construction de maison individuelle d'une surface de 95.07 m² habitables avec 3 chambres, à partir de 232600€*Demandez une étude gratuite et personnalisée de votre projet de construction !* Cette offre comprend :- Garanties constructeurs (dommages ouvrage, garantie de prix ferme et définitif, garantie de livraison, responsabilité civile et décennale).- Branchements aux compteurs et accès empierré sur 5m linéaires.Habitez une maison spécialement pensée et conçue pour vous et votre famille, prête à décorer, adaptée à vos modes de vie, personnalisée selon vos goûts grâce à un large choix d'options, de matériaux et d'innovations !Contactez Perrick MACCHI au (Numéro supprimé) (Alliance Construction – Agence des Sables-d'Olonne).*Prix indicatif pour un projet de construction d'une maison individuelle. Ne sont pas inclus les frais de branchements, raccordements aux réseaux publics, frais d'adaptations, aménagements intérieurs et extérieurs et options. terrain viabilisé, frais de notaire non compris, frais divers non compris. Garanties et assurances obligatoires incluses. Terrain sélectionné par ALLIANCE auprès de nos partenaires fonciers, selon disponibilité, pour la construction d'une maison neuve. Non mandaté pour réaliser la vente (loi du 2 janvier 1970 n°70-9). Visuels non contractuels. Voir détails en agence.Cette annonce a été créée et diffusée avec le logiciel VITAHOME.
Saint-Gilles-Croix-de-Vie
TERRAIN ET MAISONSur ce terrain, nous vous proposons cette maison neuve : la Florentaise. Conçue par Maisons Privat, constructeur centenaire avec les meilleurs avis clients de la région, cette maison de 80 m² allie confort et fonctionnalité.Intérieur bien pensé et confort sont les atouts de la Florentaise. Ce modèle de maison traditionnelle de plain-pied propose un intérieur bien organisé où le moindre espace est utilisé, ce qui en fait une demeure très fonctionnelle au style intemporel.La Florentaise, une maison neuve qui adapte ses dimensions à vos envies. Ce modèle se décline en versions d’une superficie allant de 70 à 102 m² et propose de 2 à 4 chambres donnant sur un dégagement. Vous apprécierez les placards équipant toutes les chambres. La taille généreuse de la salle de bain permet de l’équiper si vous le souhaitez d’une douche et d’une baignoire.Du côté de l’espace jour, un grand salon/séjour traversant pour profiter du moindre rayon de soleil. La cuisine ouverte fait de cette pièce de vie un endroit propice pour se retrouver en famille ou entre amis.Les caractéristiques principales de cette maison incluent un garage intégré, une conception basse consommation et une cuisine ouverte. La Florentaise est conforme à la RE2020, garantissant une performance énergétique optimale et des économies sur vos factures d’énergie.Les options les plus demandées par nos clients sont également disponibles : menuiseries en aluminium, toiture en 2 pans ou 4 pans, et grenier sur garage pour encore plus de rangement et de style.Ne manquez pas cette opportunité de construire la maison de vos rêves avec Maisons Privat, un constructeur de confiance. Contactez-nous dès aujourd’hui pour plus d’informations !
L'Aiguillon-sur-Vie
TERRAIN ET MAISONA L'AIGUILLON-SUR-VIE sur un terrain de 375 m², Alliance Construction vous propose de réaliser votre projet de construction de maison individuelle d'une surface de 94.48 m² habitables avec 3 chambres, à partir de 246700€*Demandez une étude gratuite et personnalisée de votre projet de construction !* Cette offre comprend :- Garanties constructeurs (dommages ouvrage, garantie de prix ferme et définitif, garantie de livraison, responsabilité civile et décennale).- Branchements aux compteurs et accès empierré sur 5m linéaires.Habitez une maison spécialement pensée et conçue pour vous et votre famille, prête à décorer, adaptée à vos modes de vie, personnalisée selon vos goûts grâce à un large choix d'options, de matériaux et d'innovations !Contactez Perrick MACCHI au (Numéro supprimé) (Alliance Construction – Agence des Sables-d'Olonne).*Prix indicatif pour un projet de construction d'une maison individuelle. Ne sont pas inclus les frais de branchements, raccordements aux réseaux publics, frais d'adaptations, aménagements intérieurs et extérieurs et options. terrain viabilisé, frais de notaire non compris, frais divers non compris. Garanties et assurances obligatoires incluses. Terrain sélectionné par ALLIANCE auprès de nos partenaires fonciers, selon disponibilité, pour la construction d'une maison neuve. Non mandaté pour réaliser la vente (loi du 2 janvier 1970 n°70-9). Visuels non contractuels. Voir détails en agence.Cette annonce a été créée et diffusée avec le logiciel VITAHOME.
Saint-Gilles-Croix-de-Vie
TERRAINNous vous proposons un terrain exceptionnel de 578 m², idéalement situé à Saint-Gilles-Croix-de-Vie, dans le département de la Vendée. Ce lot, non viabilisé, offre une occasion rêvée pour réaliser votre projet de construction de maison, dans un cadre paisible et harmonieux. Profitez de l’environnement unique de la région, caractérisé par sa proximité avec la mer et ses paysages enchanteurs, qui en font un lieu de vie privilégié. Implanté dans un quartier résidentiel calme, ce terrain bénéficie de toutes les commodités nécessaires à votre quotidien. À proximité, vous trouverez des commerces variés et une gamme d’attractions locales qui rendront votre vie agréable et dynamique. La beauté naturelle de la Vendée et des possibilités de loisirs nautiques font de cette ville un cadre de vie idéal. Saisissez cette opportunité rare d’investir dans un bien d’exception dans une région en plein essor. Ce terrain représente un excellent potentiel pour ceux qui souhaitent construire la maison de leurs rêves en harmonie avec la nature et les commodités environnantes. N’hésitez pas à nous contacter pour en savoir plus sur cette offre unique. À noter qu’en tant que constructeur, nous ne sommes pas mandatés pour réaliser la vente de ce terrain.
Saint-Maixent-sur-Vie
TERRAIN ET MAISONSitué au cœur de la commune de Saint-Maixent-sur-Vie, ce terrain constructible de 402 m², entièrement viabilisé, offre un cadre de vie paisible dans un environnement calme et agréable. Idéal pour votre projet de construction, il bénéficie d’une belle situation, à proximité des services essentiels tout en conservant la tranquillité d’un quartier résidentiel. Un format compact, un agencement malin et une vraie sensation d’espace : cette maison de plain-pied a tout d’un refuge facile à vivre. La pièce de vie traversante avec cuisine ouverte s’ouvre sur l’extérieur pour profiter pleinement de chaque rayon de soleil. Avec ses 2 chambres, sa salle de bain fonctionnelle, son cellier attenant et son garage intégré, elle réunit tous les essentiels dans une ambiance simple et agréable. Un modèle idéal pour une première acquisition ou pour poser ses valises en toute liberté à deux pas de l’océan. Pour un confort optimal et conforme à la RE2025, cette maison dispose d’une PAC avec plancher chauffant et volets roulants électriques. À noter : Le prix indiqué exclut les revêtements de sol des chambres, la cuisine aménagée, la peinture, la décoration, les frais de notaire et l’assurance dommages ouvrage. // Réf. : 558-213476-THW. Prix terrain : 52 662 €, hors frais d'agence à la charge de l'acquéreur. Ce terrain vous est proposé, par nos partenaires fonciers, dans le cadre d'un projet de construction avec nous. Les informations sur les risques auxquels ce bien est exposé sont disponibles sur le site Géorisques (www.georisques.gouv.fr). Prix maison : 133 800 €.
L'Aiguillon-sur-Vie
TERRAINPrix : 62500 €.Sur ce terrain de 375 m² à L'AIGUILLON-SUR-VIE, Alliance Construction vous propose de réaliser votre projet de construction de maison individuelle.Avec Alliance Construction, habitez une maison spécialement pensée et conçue pour vous et votre famille, prête à décorer, adaptée à vos modes de vie, personnalisée selon vos goûts grâce à un large choix d'options, de matériaux et d'innovations ! Demandez une étude gratuite et personnalisée de votre projet de construction sur ce terrain à L'AIGUILLON-SUR-VIE !Contactez Perrick MACCHI au (Numéro supprimé) (Alliance Construction – Agence des Sables-d'Olonne).Prix hors frais de notaire. Terrain sélectionné par ALLIANCE auprès de nos partenaires fonciers, selon disponibilité, pour la construction d'une maison neuve. Non mandaté pour réaliser la vente (loi du 2 janvier 1970 n°70-9). Visuels non contractuels. Voir détails en agence.Cette annonce a été créée et diffusée avec le logiciel VITAHOME.
L'Aiguillon-sur-Vie
TERRAIN ET MAISONA L'AIGUILLON-SUR-VIE sur un terrain de 43 m², Alliance Construction vous propose de réaliser votre projet de construction de maison individuelle d'une surface de 80 m² habitables avec 3 chambres, à partir de 247072€*Demandez une étude gratuite et personnalisée de votre projet de construction !* Cette offre comprend :- Garanties constructeurs (dommages ouvrage, garantie de prix ferme et définitif, garantie de livraison, responsabilité civile et décennale).- Branchements aux compteurs et accès empierré sur 5m linéaires.Habitez une maison spécialement pensée et conçue pour vous et votre famille, prête à décorer, adaptée à vos modes de vie, personnalisée selon vos goûts grâce à un large choix d'options, de matériaux et d'innovations !Contactez Perrick MACCHI au (Numéro supprimé) (Alliance Construction – Agence des Sables-d'Olonne).*Prix indicatif pour un projet de construction d'une maison individuelle. Ne sont pas inclus les frais de branchements, raccordements aux réseaux publics, frais d'adaptations, aménagements intérieurs et extérieurs et options. terrain viabilisé, frais de notaire non compris, frais divers non compris. Garanties et assurances obligatoires incluses. Terrain sélectionné par ALLIANCE auprès de nos partenaires fonciers, selon disponibilité, pour la construction d'une maison neuve. Non mandaté pour réaliser la vente (loi du 2 janvier 1970 n°70-9). Visuels non contractuels. Voir détails en agence.Cette annonce a été créée et diffusée avec le logiciel VITAHOME.
Givrand
TERRAIN ET MAISONA GIVRAND sur un terrain de 288 m², Alliance Construction vous propose de réaliser votre projet de construction de maison individuelle d'une surface de 72.93 m² habitables avec 3 chambres, à partir de 198230€*Informations du terrain : Idéalement situé dans un lotissement calme et recherché, ce terrain de 288 m² bénéficie d'une exposition sud arrière. À proximité immédiate des commodités, vous serez également à quelques minutes de la mer et des pistes cyclables, parfait pour les amoureux de la nature et des activités en plein air. Le cadre paisible et l'emplacement stratégique en font un choix parfait pour votre futur projet immobilier.Demandez une étude gratuite et personnalisée de votre projet de construction !* Cette offre comprend :- Garanties constructeurs (dommages ouvrage, garantie de prix ferme et définitif, garantie de livraison, responsabilité civile et décennale).- Branchements aux compteurs et accès empierré sur 5m linéaires.Habitez une maison spécialement pensée et conçue pour vous et votre famille, prête à décorer, adaptée à vos modes de vie, personnalisée selon vos goûts grâce à un large choix d'options, de matériaux et d'innovations !Contactez Perrick MACCHI au (Numéro supprimé) (Alliance Construction – Agence des Sables-d'Olonne).*Prix indicatif pour un projet de construction d'une maison individuelle. Ne sont pas inclus les frais de branchements, raccordements aux réseaux publics, frais d'adaptations, aménagements intérieurs et extérieurs et options. terrain viabilisé, frais de notaire non compris, frais divers non compris. Garanties et assurances obligatoires incluses. Terrain sélectionné par ALLIANCE auprès de nos partenaires fonciers, selon disponibilité, pour la construction d'une maison neuve. Non mandaté pour réaliser la vente (loi du 2 janvier 1970 n°70-9). Visuels non contractuels. Voir détails en agence.Cette annonce a été créée et diffusée avec le logiciel VITAHOME.
L’actualité immobilière à Givrand
27/11/2023
02/11/2023
30/10/2023
20/10/2023
16/10/2023
16/10/2023