Images
Description
Sur ce terrain, nous vous proposons cette maison neuve : la Blainium, une maison résolument moderne et très singulière.
La Blainium, une maison de plain-pied contemporaine, propose une façade très stylée et originale avec ses jeux de toiture et de façades. Par ailleurs, ses grandes fenêtres laissent entrer généreusement la lumière extérieure.
La Blainium permet de vivre son rêve dans une maison unique.
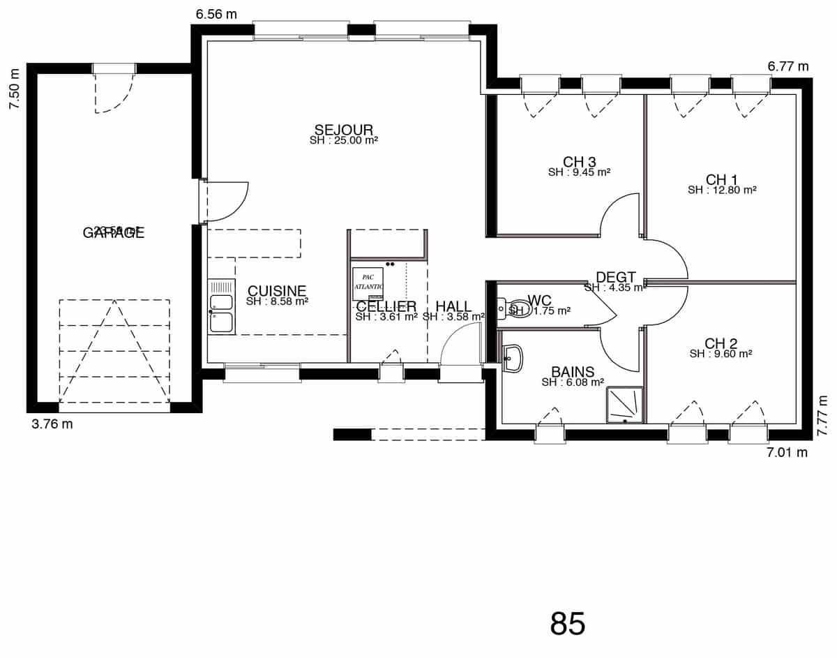
Cette demeure de 85 m² dispose de 3 chambres et de 4 pièces. En partie jour, vous disposerez d’un hall d'entrée qui donne sur un vaste séjour, une cuisine ouverte qui se prête à accueillir un grand îlot central, et un cellier. Le garage pratique d'accès est accolé. Parmi les caractéristiques principales, vous trouverez un toit plat, un garage accolé, un dressing et une suite parentale.
Les options les plus demandées par nos clients sont également disponibles : menuiseries en aluminium, enduit bi-ton, plancher chauffant et double garage.
Cette maison neuve est basse consommation et conforme à la RE2020, vous garantissant ainsi des économies d'énergie et un confort optimal.
Le constructeur de cette maison, Maisons Privat, est un constructeur centenaire avec les meilleurs avis clients de la région. Faites confiance à notre expertise pour réaliser votre rêve de posséder une maison neuve exceptionnelle.
Logement susceptibles de vous intéresser
Nous vous proposons de découvrir aussi cette sélection de logements situés à moins de 10km de Grosbreuil et qui seraient susceptibles de vous intéresser.
Nieul-le-Dolent
TERRAINPrix : 44500 €.Sur ce terrain de 417 m² à NIEUL-LE-DOLENT, Alliance Construction vous propose de réaliser votre projet de construction de maison individuelle.Avec Alliance Construction, habitez une maison spécialement pensée et conçue pour vous et votre famille, prête à décorer, adaptée à vos modes de vie, personnalisée selon vos goûts grâce à un large choix d'options, de matériaux et d'innovations ! Demandez une étude gratuite et personnalisée de votre projet de construction sur ce terrain à NIEUL-LE-DOLENT !Contactez Sylvain CARIOU au (Numéro supprimé) (Alliance Construction – Agence de la Roche-sur-Yon).Prix hors frais de notaire. Terrain sélectionné par ALLIANCE auprès de nos partenaires fonciers, selon disponibilité, pour la construction d'une maison neuve. Non mandaté pour réaliser la vente (loi du 2 janvier 1970 n°70-9). Visuels non contractuels. Voir détails en agence.Cette annonce a été créée et diffusée avec le logiciel VITAHOME.
Nieul-le-Dolent
TERRAIN ET MAISONA NIEUL-LE-DOLENT sur un terrain de 417 m², Alliance Construction vous propose de réaliser votre projet de construction de maison individuelle d'une surface de 88.04 m² habitables avec 3 chambres, à partir de 200425€*Demandez une étude gratuite et personnalisée de votre projet de construction !* Cette offre comprend :- Garanties constructeurs (dommages ouvrage, garantie de prix ferme et définitif, garantie de livraison, responsabilité civile et décennale).- Branchements aux compteurs et accès empierré sur 5m linéaires.Habitez une maison spécialement pensée et conçue pour vous et votre famille, prête à décorer, adaptée à vos modes de vie, personnalisée selon vos goûts grâce à un large choix d'options, de matériaux et d'innovations !Contactez Sylvain CARIOU au (Numéro supprimé) (Alliance Construction – Agence de la Roche-sur-Yon).*Prix indicatif pour un projet de construction d'une maison individuelle. Ne sont pas inclus les frais de branchements, raccordements aux réseaux publics, frais d'adaptations, aménagements intérieurs et extérieurs et options. terrain viabilisé, frais de notaire non compris, frais divers non compris. Garanties et assurances obligatoires incluses. Terrain sélectionné par ALLIANCE auprès de nos partenaires fonciers, selon disponibilité, pour la construction d'une maison neuve. Non mandaté pour réaliser la vente (loi du 2 janvier 1970 n°70-9). Visuels non contractuels. Voir détails en agence.Cette annonce a été créée et diffusée avec le logiciel VITAHOME.
Sainte-Flaive-des-Loups
TERRAINRonald Relmy et megAgence, vous propose ce terrain à bâtir non viabilisé de 601 m², borné et libre de constructeur, situé hors lotissement, au calme en fond d’impasse.Vue dégagée sur la campagne, exposition Est-Ouest avec possibilité de terrasse plein Sud.Points forts :Réseaux au pied du terrainAssainissement collectifCentre-bourg à 500 mÉcoles à moins de 300 mCommerces, micro-crèche, bibliothèque et services à proximitéLocalisation idéale : à seulement 15 minutes des plages des Sables-d’Olonne et de La Roche-sur-Yon, parfait pour un projet de construction dans un cadre naturel et paisible.À noter : une projection de construction de deux maisons a été réalisée pour les investisseurs souhaitant concrétiser une belle opération immobilière.Les informations sur les risques auxquels ce bien est exposé sont disponibles sur le site Géorisques : www.georisques.gouv.frPrix de vente : 68 000 €Honoraires charge vendeurContactez votre consultant megAgence : Ronald RELMY, Tél. : (Numéro supprimé), E-mail : (Email supprimé) – Mandataire indépendant en portage salarial
Talmont-Saint-Hilaire
TERRAIN ET MAISONTerrain viabilisé à Talmont-Saint-Hilaire (85). À découvrir, terrain idéalement situé dans un secteur résidentiel calme et recherché de Talmont-Saint-Hilaire. Proche du centre-bourg, des commerces, écoles et services, il offre un cadre de vie agréable à quelques minutes des plages. Agréable et lumineuse, cette maison de plain-pied vous propose une cuisine ouverte sur un vaste séjour traversant de 47 m² environ. L'accès direct cuisine, cellier et garage facilite l'habitabilité de cette maison. L'espace nuit est composé de deux belles chambres avec rangement, d'une salle de bains et des wc séparés. Ses jeux d'enduits personnalisables sauront vous séduire. . Pour vous assurer un confort de vie et conformément à la RE2025, nous avons choisi un mode de chauffage par PAC + plancher chauffant, volets roulants électriques. Prix hors fourniture et pose : des appareils sanitaires (sauf système de chauffage et d'eau chaude sanitaire), du carrelage et de la faïence, des revêtements de sol dans les chambres. Hors décoration et aménagement intérieur et peinture. Hors raccordements, frais de notaire et dommage ouvrage. // Réf. : 2561-210726-SBI. Prix terrain : 133 000 €, hors frais d'agence à la charge de l'acquéreur. Ce terrain vous est proposé, par nos partenaires fonciers, dans le cadre d'un projet de construction avec nous. Les informations sur les risques auxquels ce bien est exposé sont disponibles sur le site Géorisques (www.georisques.gouv.fr). Prix maison : 129 588 €.
Talmont-Saint-Hilaire
TERRAIN ET MAISONTerrain viabilisé à Talmont-Saint-Hilaire (85). À découvrir, terrain idéalement situé dans un secteur résidentiel calme et recherché de Talmont-Saint-Hilaire. Proche du centre-bourg, des commerces, écoles et services, il offre un cadre de vie agréable à quelques minutes des plages. Bien pensée et fonctionnelle. Avec son architecture en L et de plain-pied, la maison CARNEY vous séduira par sa cuisine ouverte sur un bel espace de vie lumineux et ses trois chambres. Pour vous assurer un confort de vie et conformément à la RE2025, nous avons choisi un mode de chauffage par PAC + plancher chauffant, volets roulants électriques. Prix hors fourniture et pose : des appareils sanitaires (sauf système de chauffage et d'eau chaude sanitaire), du carrelage et de la faïence, des revêtements de sol dans les chambres. Hors décoration et aménagement intérieur et peinture. Hors raccordements, frais de notaire et dommage ouvrage. // Réf. : 2541-210726-SBI. Prix terrain : 133 000 €, hors frais d'agence à la charge de l'acquéreur. Ce terrain vous est proposé, par nos partenaires fonciers, dans le cadre d'un projet de construction avec nous. Les informations sur les risques auxquels ce bien est exposé sont disponibles sur le site Géorisques (www.georisques.gouv.fr). Prix maison : 118 430 €.
Talmont-Saint-Hilaire
TERRAIN ET MAISONTerrain viabilisé à Talmont-Saint-Hilaire (85). À découvrir, terrain idéalement situé dans un secteur résidentiel calme et recherché de Talmont-Saint-Hilaire. Proche du centre-bourg, des commerces, écoles et services, il offre un cadre de vie agréable à quelques minutes des plages. Découvrez EVOLIA, la maison évolutive qui s'adapte à chaque étape de votre vie. Transformez facilement une maison de 2 chambres en une maison de 3 chambres grâce à un garage aménageable de 15 m². Flexible et personnalisable, EVOLIA évolue avec vous, que vous soyez une jeune famille, un couple ou une personne seule. Ne laissez plus vos besoins en logement vous limiter. Contactez nos experts conseillers dès aujourd’hui et faites de EVOLIA la maison de vos rêves. Prix hors fourniture et pose : des appareils sanitaires (sauf système de chauffage et d'eau chaude sanitaire), du carrelage, de la faïence, de la cuisine aménagée, des revêtements de sol dans les chambres. Hors décoration, aménagement intérieur, peinture, raccordements, frais de notaire et dommage ouvrage. (Surface habitable 49 m²+garage 15 m²). // Réf. : 2615-210726-SBI. Prix terrain : 133 000 €, hors frais d'agence à la charge de l'acquéreur. Ce terrain vous est proposé, par nos partenaires fonciers, dans le cadre d'un projet de construction avec nous. Les informations sur les risques auxquels ce bien est exposé sont disponibles sur le site Géorisques (www.georisques.gouv.fr). Prix maison : 95 181 €.
Sainte-Foy
TERRAIN ET MAISONTerrain à bâtir – Sainte-Foy – 450 m²Beau terrain de 450 m² dans une commune recherchée. Emplacement privilégié, à proximité des écoles, commerces et axes routiers. Une excellente opportunité pour concrétiser votre projet de construction. Cette charmante maison à étage de 100 m² s’adaptera sur les terrains avec une petite façade. Familiale, elle vous offre au rez-de-chaussée un bel espace de vie avec une cuisine ouverte, un cellier et un accès direct au garage, une chambre parentale avec placards, salle d’eau et wc séparés. A l’étage, un dégagement dessert trois chambres avec rangements, une salle de bains avec wc. Pour vous assurer un confort de vie optimal et en conformité avec la RE2025, nous avons opté pour un système de chauffage par pompe à chaleur (PAC) avec plancher chauffant au rez-de-chaussée et radiateurs à l’étage. Le logement est également équipé de volets roulants électriques. Prix hors fourniture et pose : des appareils sanitaires (sauf système de chauffage et d'eau chaude sanitaire), du carrelage et de la faïence, des revêtements de sol dans les chambres. Hors décoration et aménagement intérieur et peinture. Hors raccordements, frais de notaire et dommage ouvrage. // Réf. : 2539-210708-GMI. Prix terrain : 108 500 €, hors frais d'agence à la charge de l'acquéreur. Ce terrain vous est proposé, par nos partenaires fonciers, dans le cadre d'un projet de construction avec nous. Les informations sur les risques auxquels ce bien est exposé sont disponibles sur le site Géorisques (www.georisques.gouv.fr). Prix maison : 165 270 €.
Sainte-Foy
TERRAIN ET MAISONTerrain à bâtir – Sainte-Foy – 450 m²Beau terrain de 450 m² dans une commune recherchée. Emplacement privilégié, à proximité des écoles, commerces et axes routiers. Une excellente opportunité pour concrétiser votre projet de construction. Un cocon moderne et fonctionnel pour toute la famille ! Cette maison a été conçue pour offrir un espace optimisé et confortable, idéal pour une vie de famille harmonieuse. Au rez-de-chaussée, une pièce de vie spacieuse et lumineuse vous accueille, combinant un salon convivial, une salle à manger chaleureuse et une cuisine ouverte moderne. Un cellier attenant vient compléter cet espace en facilitant le rangement et l’organisation. L’étage est dédié au repos avec trois belles chambres, offrant à chacun un espace personnel agréable et bien agencé. Une salle de bain fonctionnelle et des WC indépendants apportent un confort supplémentaire à toute la famille. Pour vous assurer un confort de vie optimal et en conformité avec la RE2025, nous avons opté pour un système de chauffage par pompe à chaleur (PAC) avec plancher chauffant au rez-de-chaussée et radiateurs à l’étage. Le logement est également équipé de volets roulants électriques. Prix hors fourniture et pose : des appareils sanitaires (sauf système de chauffage et d'eau chaude sanitaire), du carrelage et de la faïence, des revêtements de sol dans les chambres. Hors décoration et aménagement intérieur et peinture. Hors raccordements, frais de notaire et dommage ouvrage. // Réf. : 2570-210708-GMI. Prix terrain : 108 500 €, hors frais d'agence à la charge de l'acquéreur. Ce terrain vous est proposé, par nos partenaires fonciers, dans le cadre d'un projet de construction avec nous. Les informations sur les risques auxquels ce bien est exposé sont disponibles sur le site Géorisques (www.georisques.gouv.fr). Prix maison : 142 187 €.
Sainte-Foy
TERRAIN ET MAISONTerrain à bâtir – Sainte-Foy – 450 m²Beau terrain de 450 m² dans une commune recherchée. Emplacement privilégié, à proximité des écoles, commerces et axes routiers. Une excellente opportunité pour concrétiser votre projet de construction. Familiale et fonctionnelle, cette maison rectangulaire de plain-pied vous séduira par un espace de vie de 50 m² très lumineux avec sa baie vitrée et ses ouvertures, une cuisine ouverte vous permettra de communiquer aisément. Du côté de l’espace nuit, un dégagement dessert 1 chambre parentale avec dressing et salle d’eau, trois chambres avec rangement, une salle de bain et un wc séparé. Pour vous assurer un confort de vie et conformément à la RE2025, nous avons choisi un mode de chauffage par PAC + plancher chauffant, volets roulants électriques. Prix hors fourniture et pose : des appareils sanitaires (sauf système de chauffage et d'eau chaude sanitaire), du carrelage et de la faïence, des revêtements de sol dans les chambres. Hors décoration et aménagement intérieur et peinture. Hors raccordements, frais de notaire et dommage ouvrage. // Réf. : 2556-210708-GMI. Prix terrain : 108 500 €, hors frais d'agence à la charge de l'acquéreur. Ce terrain vous est proposé, par nos partenaires fonciers, dans le cadre d'un projet de construction avec nous. Les informations sur les risques auxquels ce bien est exposé sont disponibles sur le site Géorisques (www.georisques.gouv.fr). Prix maison : 143 381 €.
L’actualité immobilière à Grosbreuil
27/11/2023
02/11/2023
30/10/2023
20/10/2023
16/10/2023
16/10/2023