Maison à construire à La Chaize-le-Vicomte (85310)
Images
Description
VENTE : maison de 3 pièces (66 m²) à La Chaize-le-Vicomte
MAISON 3 PIÈCES NEUVE - PROCHE DE LA ROCHE-SUR-YON
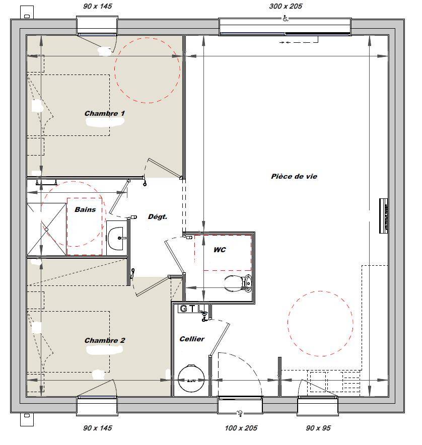
En vente : à 37 km de l'océan Atlantique et à 10 km de La Roche-sur-Yon, notre agence Maisons Tradilignes La Roche-sur-Yon est heureuse de vous proposer cette maison de 3 pièces de plain-pied de 66 m² à La Chaize-le-Vicomte (85310). Elle est composée de deux chambres, d'une cuisine et d'une salle de bains.
Le terrain du bien est de 410 m².
Cette maison est neuve.
On trouve l'École Primaire Privée Saint Joseph et l'École Primaire Publique Pierre Perret à moins de 10 minutes à pied et deux crèches. Niveau transports en commun, il y a la gare La Chaize-le-Vicomte à quelques pas du bien. L'autoroute A87 est accessible à 5 km. On trouve un tennis, deux boulangeries, quatre commerces, une boucherie-charcuterie et une supérette à quelques minutes de la maison.
Elle est à vendre pour la somme de 162 400 €.
Contactez Marie CASTELOT (tél : (Numéro supprimé)) pour toute information sur cette maison.
Logement susceptibles de vous intéresser
Nous vous proposons de découvrir aussi cette sélection de logements situés à moins de 10km de La Chaize-le-Vicomte et qui seraient susceptibles de vous intéresser.
La Roche-sur-Yon
TERRAINNous vous proposons à la vente un terrain viabilisé de 847 m², idéalement situé à La Roche-sur-Yon, en Vendée. Ce terrain bénéficie d’un potentiel unique pour la construction de la maison de vos rêves. L’emplacement est stratégique pour ceux qui recherchent à la fois tranquillité et accessibilité, faisant de ce bien un choix judicieux pour un projet résidentiel. La Roche-sur-Yon, située dans le département de la Vendée, est une ville dynamique aux multiples atouts. Vous y trouverez un cadre de vie agréable avec des services variés, des commerces de proximité, ainsi que des infrastructures éducatives de qualité. Les nombreuses attractions locales, telles que Les Halles et le parc des expositions, ajoutent à l’attrait de ce territoire. Profitez de la proximité de la nature environnante et des belles plages de la Côte Vendéenne, situées à quelques kilomètres, qui font de cette ville un lieu de vie privilégié. Ne laissez pas passer cette occasion d’acquérir un terrain au potentiel exceptionnel ! Contactez-nous dès aujourd’hui pour explorer les nombreuses possibilités qu’il offre. À noter qu’en tant que constructeur, nous ne sommes pas mandatés pour réaliser la vente de ce terrain.
La Roche-sur-Yon
TERRAIN ET MAISONSitué sur la commune de La Roche-sur-Yon, ce terrain de 378 m² offre un emplacement privilégié à deux pas des commerces et des services du quotidien. Idéal pour votre projet de construction, il se trouve dans un secteur recherché alliant praticité et qualité de vie. Une maison lumineuse et pleine de charme ! Avec son architecture élégante et intemporelle, cette maison séduit par ses volumes généreux et son agencement optimisé. Son grand espace de vie ouvert sur l’extérieur invite à la convivialité, tandis que ses 3 chambres bien pensées offrent confort et intimité. Un garage intégré et des espaces fonctionnels complètent ce cadre idéal pour toute la famille. Un intérieur chaleureux, une conception harmonieuse et un projet qui vous ressemble !Envie d’en savoir plus ? Faites le premier pas vers votre futur chez-vous !. . Pour un confort optimal et conforme à la RE2025, cette maison dispose d’une PAC AIR/AIR et volets roulants électriques. À noter : Le prix indiqué exclut les revêtements de sol des chambres, la cuisine aménagée, la peinture, la décoration, les raccordements, les frais de notaire et l’assurance dommages-ouvrage. // Réf. : 563-213473-THW. Prix terrain : 70 000 €, hors frais d'agence à la charge de l'acquéreur. Ce terrain vous est proposé, par nos partenaires fonciers, dans le cadre d'un projet de construction avec nous. Les informations sur les risques auxquels ce bien est exposé sont disponibles sur le site Géorisques (www.georisques.gouv.fr). Prix maison : 164 687 €.
La Roche-sur-Yon
TERRAIN ET MAISONSur cet terrain, nous vous proposons cette maison évolutive, conçue pour aujourd’hui et pensée pour demainCe modèle de maison incarne l’harmonie parfaite entre fonctionnalité et adaptabilité, offrant un cadre de vie agréable qui évolue avec vos besoins.Au cœur de cette maison, une spacieuse pièce de vie baignée de lumière naturelle grâce à ses larges ouvertures. Ce séjour chaleureux, avec sa cuisine ouverte moderne, constitue un espace idéal pour partager des moments en famille ou entre amis.À proximité, une chambre et une salle d’eau offrent un espace nuit fonctionnel et pratique.Adossé à la maison, un garage de presque 58m² représente bien plus qu’un simple espace de stationnement. Conçu pour évoluer, il peut être transformé en un véritable espace de vie supplémentaire. En fonction de vos besoins, cet espace pourra accueillir jusqu’à trois chambres et une seconde salle d’eau, apportant ainsi une solution idéale pour agrandir votre maison sans contrainte majeure.Grâce à une conception intelligente et anticipée, cette maison s’adapte à votre mode de vie, que ce soit pour accueillir une famille grandissante, créer un espace de travail ou offrir un confort supplémentaire à vos proches.En choisissant cette maison évolutive, vous investissez dans un habitat durable, adaptable et conçu pour le bien-être de toute votre famille.
La Roche-sur-Yon
TERRAIN ET MAISONSitué sur la commune de La Roche-sur-Yon, ce terrain de 378 m² offre un emplacement privilégié à deux pas des commerces et des services du quotidien. Idéal pour votre projet de construction, il se trouve dans un secteur recherché alliant praticité et qualité de vie. Adoptez Evolia et faites évoluer votre maison en toute sérénité. Evolia est idéale pour les jeunes familles et les couples, offrant une maison de base avec 2 chambres et un garage de 41 m². Transformez ce garage en 2 chambres supplémentaires et une salle d'eau, sans déménager vous permettant d'agrandir votre maison sans déménagement et en maximisant chaque mètre carré pour répondre à vos besoins changeants. Prix hors fourniture et pose : appareils sanitaires, carrelage, faïence, cuisine aménagée, revêtements de sol dans les chambres, décoration, aménagement intérieur, peinture, raccordements, frais de notaire et dommage ouvrage. (Surface habitable : 49 m² + garage 41 m²). // Réf. : 2665-213473-THW. Prix terrain : 70 000 €, hors frais d'agence à la charge de l'acquéreur. Ce terrain vous est proposé, par nos partenaires fonciers, dans le cadre d'un projet de construction avec nous. Les informations sur les risques auxquels ce bien est exposé sont disponibles sur le site Géorisques (www.georisques.gouv.fr). Prix maison : 103 768 €.
La Roche-sur-Yon
TERRAIN ET MAISONSur ce terrain, nous vous proposons cette maison neuve : La Challandaise, une petite maison pleine d’atouts.La Challandaise est le modèle parfait pour les primo-accédants ou les retraités. Cette demeure traditionnelle de plain-pied comporte un maximum d’atouts dans un minimum d’espace.Une habitation de plain-pied très fonctionnelle, des dimensions raisonnables.La Challandaise est fonctionnelle et agréable à vivre. Son espace de vie salon-séjour-cuisine, lumineux, vous accueille chaleureusement. Avec une surface de 50 m², elle comporte une chambre et deux pièces. Cette charmante maison d’inspiration traditionnelle vous séduira avec ses volumes simples et efficaces.Les caractéristiques principales de cette maison incluent des baies coulissantes, une conception basse consommation, et une structure évolutive et compacte. La maison est conforme à la norme RE2020, garantissant une performance énergétique optimale et un confort de vie exceptionnel.Les options les plus demandées par nos clients sont également disponibles : plancher chauffant, carport, garage accolé, et terrasse en béton poreux.Construite par Maisons Privat, un constructeur centenaire avec les meilleurs avis clients de la région, cette maison neuve est une opportunité à ne pas manquer. Profitez d’une habitation moderne, économique et évolutive, parfaitement adaptée à vos besoins.
La Roche-sur-Yon
TERRAINSitué sur la commune de La Roche-sur-Yon, ce terrain de 378 m² offre un emplacement privilégié à deux pas des commerces et des services du quotidien. Idéal pour votre projet de construction, il se trouve dans un secteur recherché alliant praticité et qualité de vie. // Réf. : T213473. Prix terrain : 70 000 €, hors frais d'agence et de notaire à la charge de l'acquéreur. Ce terrain vous est proposé, par nos partenaires fonciers, dans le cadre d'un projet de construction avec nous. Les informations sur les risques auxquels ce bien est exposé sont disponibles sur le site Géorisques (www.georisques.gouv.fr).
La Roche-sur-Yon
TERRAINSitué sur la commune de La Roche-sur-Yon, ce terrain de 378 m² offre un emplacement privilégié à deux pas des commerces et des services du quotidien. Idéal pour votre projet de construction, il se trouve dans un secteur recherché alliant praticité et qualité de vie. // Réf. : T213473. Prix terrain : 70 000 €, hors frais d'agence et de notaire à la charge de l'acquéreur. Ce terrain vous est proposé, par nos partenaires fonciers, dans le cadre d'un projet de construction avec nous. Les informations sur les risques auxquels ce bien est exposé sont disponibles sur le site Géorisques (www.georisques.gouv.fr).
La Roche-sur-Yon
TERRAIN ET MAISONSitué sur la commune de La Roche-sur-Yon, ce terrain de 378 m² offre un emplacement privilégié à deux pas des commerces et des services du quotidien. Idéal pour votre projet de construction, il se trouve dans un secteur recherché alliant praticité et qualité de vie. Un format compact, un agencement malin et une vraie sensation d’espace : cette maison de plain-pied a tout d’un refuge facile à vivre. La pièce de vie traversante avec cuisine ouverte s’ouvre sur l’extérieur pour profiter pleinement de chaque rayon de soleil. Avec ses 2 chambres, sa salle de bain fonctionnelle, son cellier attenant et son garage intégré, elle réunit tous les essentiels dans une ambiance simple et agréable. Un modèle idéal pour une première acquisition ou pour poser ses valises en toute liberté à deux pas de l’océan. Pour un confort optimal et conforme à la RE2025, cette maison dispose d’une PAC avec plancher chauffant et volets roulants électriques. À noter : Le prix indiqué exclut les revêtements de sol des chambres, la cuisine aménagée, la peinture, la décoration, les frais de notaire et l’assurance dommages ouvrage. // Réf. : 558-213473-THW. Prix terrain : 70 000 €, hors frais d'agence à la charge de l'acquéreur. Ce terrain vous est proposé, par nos partenaires fonciers, dans le cadre d'un projet de construction avec nous. Les informations sur les risques auxquels ce bien est exposé sont disponibles sur le site Géorisques (www.georisques.gouv.fr). Prix maison : 133 800 €.
La Roche-sur-Yon
TERRAINDécouvrez ce terrain à bâtir de 253 m², idéalement situé dans le charmant lotissement de La Roche-sur-Yon, en Vendée. Ce terrain viabilisé vous offre une opportunité précieuse pour réaliser le projet de construction de vos rêves. Sa configuration optimale et son exposition favorable en font un choix parfait pour y ériger une maison confortable adaptée à vos besoins et à votre style de vie. La Roche-sur-Yon, située dans le département de la Vendée et la région des Pays de la Loire, est une ville dynamique qui combine le charme d’une ville historique et les commodités d’une ville moderne. Profitez des nombreuses attractions locales, telles que le parc des expositions, les commerces variés, ainsi que les infrastructures éducatives et sportives de qualité. Les plaisirs de la nature ne sont pas en reste avec des espaces verts et des pistes cyclables à proximité, rendant cette ville particulièrement attrayante pour les familles et les amoureux de la nature. Ne laissez pas passer cette occasion unique d’acquérir un terrain offrant un potentiel exceptionnel pour votre futur projet immobilier. Prenez contact dès aujourd’hui pour en savoir plus sur cette opportunité à ne pas manquer. À noter qu’en tant que constructeur, nous ne sommes pas mandatés pour réaliser la vente de ce terrain.
L’actualité immobilière à La Chaize-le-Vicomte
27/11/2023
02/11/2023
30/10/2023
20/10/2023
16/10/2023
16/10/2023