Images
Description
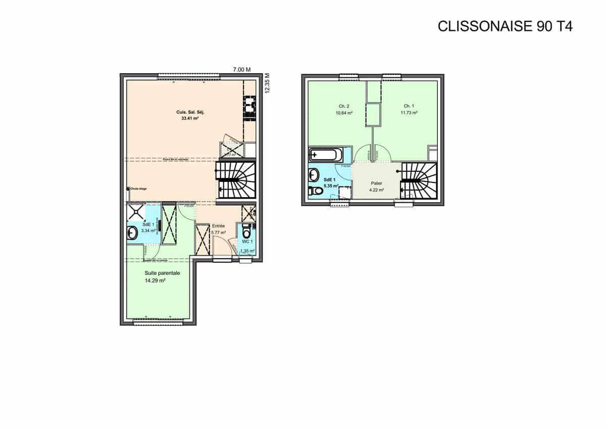
Sur ce terrain, nous vous proposons cette maison neuve : la Clissonnaise, une charmante maison à étage de 70 m². Conçue par Maisons Privat, constructeur centenaire avec les meilleurs avis clients de la région, cette maison basse consommation est conforme à la RE2020, garantissant des performances énergétiques optimales.
Très jolie maison traditionnelle à étage, la Clissonnaise conviendra aussi bien aux primo-accédants qu'aux couples ou aux petites familles. Elle se compose de 3 pièces, dont 2 chambres spacieuses, et est idéale pour un terrain étroit grâce à son design ingénieux.
Les caractéristiques principales de cette maison incluent des baies coulissantes pour un maximum de luminosité, une dalle étage en béton pour une solidité accrue, et une conformité à la norme RT2020 pour une efficacité énergétique supérieure.
Parmi les options les plus demandées par nos clients, vous pouvez choisir d'ajouter une deuxième salle de bains pour plus de confort, une baie à galandage pour un espace de vie encore plus ouvert, un carport pour protéger votre véhicule, ou un garage accolé pour plus de commodité.
Achetez votre nouvelle demeure à étage comme vous la souhaitez et profitez d'un grand espace de vie avec cuisine ouverte, parfait pour des moments conviviaux en famille ou entre amis. La Clissonnaise est disponible dans des dimensions allant de 70 à 110 m², permettant de nombreuses configurations en fonction de vos besoins.
Ne manquez pas cette opportunité unique de devenir propriétaire d'une maison neuve, basse consommation et parfaitement adaptée à vos attentes. Contactez-nous dès aujourd'hui pour plus d'informations et pour découvrir toutes les possibilités offertes par la Clissonnaise.
Logement susceptibles de vous intéresser
Nous vous proposons de découvrir aussi cette sélection de logements situés à moins de 10km de La Roche-sur-Yon et qui seraient susceptibles de vous intéresser.

La Roche-sur-Yon
TERRAINNous vous présentons une opportunité rare d’acquérir un terrain viabilisé de 343 m², idéalement situé dans un quartier recherché de La Roche-sur-Yon, en Vendée. Parfait pour la construction de votre future maison, ce terrain plat offre toutes les caractéristiques nécessaires pour un projet résidentiel de qualité. Son emplacement privilégié rapproche du centre-ville tout en offrant un cadre de vie paisible, idéal pour les familles et les personnes en quête de tranquillité. La Roche-sur-Yon, charmante préfecture de la Vendée, séduit par son dynamisme et ses nombreuses commodités. Profitez d’une vie urbaine intense avec des commerces, des écoles, et des services à proximité, tout en bénéficiant d’un accès facilité aux grands axes routiers qui desservent la région. La ville, réputée pour sa qualité de vie, offre également diverses attractions locales, des espaces verts et un riche patrimoine culturel, parfaite pour ceux qui souhaitent s’établir dans un environnement convivial et agréable. Ce terrain représente une opportunité d’achat unique, permettant de réaliser votre projet de construction dans une ville prisée, alliant confort et accessibilité. N’hésitez pas à nous contacter pour plus d’informations! À noter qu’en tant que constructeur, nous ne sommes pas mandatés pour réaliser la vente de ce terrain.

La Roche-sur-Yon
TERRAIN ET MAISONSur ce terrain, nous vous proposons une maison contemporaine pensée pour le bien-être de toute la famille. Avec ses 90,57 m² de surface habitable et ses espaces lumineux cette maison à étage est idéale pour ceux qui recherchent un cadre de vie agréable et fonctionnel.Un intérieur chaleureux et optimiséDès l’entrée, découvrez une belle pièce de vie de 37 m², spacieuse et lumineuse grâce à ses larges ouvertures donnant sur le jardin . L’espace salon-salle à manger se prolonge harmonieusement avec une cuisine ouverte, idéale pour partager des moments conviviaux.Le rez-de-chaussée accueille également une suite parentale confortable de 12,18 m², garantissant calme et intimité. Une salle d’eau moderne et des WC indépendants complètent ce niveau.Un étage conçu pour la familleÀ l’étage, deux chambres de 10,70 m² et 10,74 m² offrent un espace de vie agréable pour les enfants ou les invités. Une grande salle d’eau de 5,56 m² ainsi qu’un palier pouvant être aménagé en coin bureau ou espace détente complètent ce niveau.Sur cette version, un garage peut être ajouté en option.* Prix indiqué hors branchements, hors sanitaires, hors revêtement des sols et des murs. Assurance dommages ouvrages incluse.

La Roche-sur-Yon
TERRAINDécouvrez cet exceptionnel terrain à vendre, situé dans le charmant lotissement de La Roche-sur-Yon, en Vendée. Avec une superficie généreuse de 456 m², ce terrain viabilisé est un cadre idéal pour concrétiser votre projet de construction de maison. Profitez d’une parcelle parfaitement plate, offrant ainsi un panorama agréable et facilitant la réalisation de votre future demeure dans un quartier prisé, alliant calme et qualité de vie. La Roche-sur-Yon, ville dynamique du département de la Vendée, vous séduira par ses multiples attraits locaux. Ce terrain se trouve au cœur de la ville, à proximité des commerces, des écoles, ainsi que des collèges et lycées, garantissant ainsi un quotidien pratique et facilité pour les familles. De plus, l’environnement paisible et les axes routiers importants à proximité rendent l’accès à la ville et à ses environs extrêmement pratique. Ne manquez pas cette opportunité de vivre dans un cadre alliant confort et commodités. Ce terrain représente une occasion unique de bâtir la maison de vos rêves dans un cadre d’exception. Ne tardez pas à envisager cette opportunité d’achat. À noter qu’en tant que constructeur, nous ne sommes pas mandatés pour réaliser la vente de ce terrain.

La Roche-sur-Yon
TERRAIN ET MAISONSur ce terrain, nous vous proposons cette maison neuve : la Poiréenne, une maison qui vous offre sa singularité et son confort.Charmant pavillon de plain-pied, l’atout de choc de la Poiréenne tient dans l’originalité de ses formes asymétriques. Cette configuration permet d’isoler l’espace nuit dans une aile indépendante. Il sera possible d’ouvrir la pièce de vie sur 3 façades pour garantir un maximum de lumière et de chaleur à ses heureux propriétaires.Avec une surface de 90 m², cette maison dispose de 3 chambres et de 4 pièces. La Poiréenne se distingue par son plan en T, offrant une distribution confortable et originale. Vous profiterez au maximum de l’espace disponible de la profondeur de votre terrain. Les chambres sont réunies autour d’un dégagement qui comprend également la salle d’eau avec une douche italienne et des WC séparés. Côté jour, la Poiréenne vous propose un salon-séjour avec cuisine semi-ouverte, communiquant avec le garage.Les caractéristiques principales de cette maison incluent des baies coulissantes et des volets roulants. Parmi les options les plus demandées par les clients, vous trouverez la baie à galandage, la charpente traditionnelle et l’aménagement du garage. L’ajout d’une charpente traditionnelle au garage de taille généreuse est une option fréquemment retenue par les acquéreurs de cette maison, permettant l’aménagement d’un faux grenier avec un plancher bois.Cette maison neuve est basse consommation et conforme à la RE2020, garantissant des performances énergétiques optimales et un confort de vie exceptionnel.Le constructeur de cette maison est Maisons Privat, un constructeur centenaire avec les meilleurs avis clients de la région. Faites confiance à leur expertise pour réaliser votre projet de vie dans cette maison unique et confortable.

La Roche-sur-Yon
TERRAINÀ la recherche du terrain idéal pour concrétiser votre projet de construction de maison ? Ne cherchez plus ! Ce terrain de 410 m², situé à La Roche-sur-Yon, est un véritable bijou dans un quartier prisé. Entièrement viabilisé, il vous offre une toile de fond parfaite pour bâtir la maison de vos rêves. Son emplacement plat et calme contribue à un cadre de vie agréable, idéal pour les familles ou les professionnels en quête de tranquillité. La Roche-sur-Yon, en Vendée, présente de nombreux atouts pour séduire les acheteurs. Idéalement localisée en Pays de la Loire, cette ville dynamique est réputée pour sa qualité de vie. Vous bénéficierez de la proximité immédiate des commerces et des commodités, ainsi que d’écoles à proximité, rendant le quotidien plus facile et agréable. De plus, le réseau de transports vous permettra de rejoindre facilement les axes routiers importants, tout en profitant de l’animation du cœur de ville et des nombreuses attractions locales. Viva la Roche-sur-Yon, une ville où il fait bon vivre ! Ne manquez pas cette opportunité unique d’investir dans un terrain prometteur, parfait pour réaliser votre projet de construction.

La Roche-sur-Yon
TERRAIN ET MAISONSur ce terrain, nous vous proposons cette maison neuve : la Clissonnaise, une charmante maison à étage de 110 m². Conçue par Maisons Privat, constructeur centenaire avec les meilleurs avis clients de la région, cette demeure est idéale pour les primo-accédants, les couples ou les familles.Très jolie maison traditionnelle, la Clissonnaise se compose de 4 chambres et de 4 pièces, offrant ainsi un espace de vie confortable et fonctionnel. Grâce à ses baies coulissantes, la maison bénéficie d’une luminosité naturelle exceptionnelle. La dalle étage en béton assure une solidité et une isolation acoustique optimales.Cette maison est conforme à la norme RT2020, garantissant une basse consommation énergétique et un confort thermique tout au long de l’année. De plus, elle est construite sur un terrain étroit, optimisant ainsi l’utilisation de l’espace disponible.Les options les plus demandées par nos clients sont également disponibles pour personnaliser votre maison selon vos besoins : une deuxième salle de bains, une baie à galandage pour un accès fluide à l’extérieur, un carport et un garage accolé.Achetez votre nouvelle demeure à étage comme vous la souhaitez. La Clissonnaise permet de nombreuses configurations pour s’adapter à la composition de votre famille. Vous pouvez opter pour une suite parentale avec salle d’eau privative si vous le souhaitez. Vous disposerez également d’un grand espace de vie avec cuisine ouverte, parfait pour les moments de convivialité en famille ou entre amis.Ne manquez pas cette opportunité unique d’acquérir une maison neuve, basse consommation et conforme à la RE2020, construite par un constructeur de renom. Contactez-nous dès aujourd’hui pour plus d’informations et pour planifier une visite.

Mouilleron-le-Captif
TERRAINÀ vendre, un terrain de 446 m² idéalement situé dans un lotissement paisible à Mouilleron-le-Captif, une charmante commune de Vendée. Ce terrain viabilisé vous offre l’opportunité rêvée pour la construction de votre maison personnalisée. Profitez d’un cadre de vie agréable, alliant tranquillité et accessibilité, propice à l’épanouissement familial. Située dans le département de la Vendée, Mouilleron-le-Captif se distingue par son ambiance conviviale et ses nombreuses commodités. Vous serez à proximité de diverses attractions locales, notamment des espaces verts, des installations sportives et des commerces. La ville bénéficie également d’une excellente desserte routière, vous permettant de rejoindre facilement les grandes villes de la région. Un environnement idéal pour bâtir votre projet de vie, dans un cadre enchanteur où il fait bon vivre. Ce terrain représente une opportunité unique d’investissement pour votre futur projet de construction. N’hésitez pas à envisager cette chance de concrétiser vos rêves immobiliers. À noter qu’en tant que constructeur, nous ne sommes pas mandatés pour réaliser la vente de ce terrain.

Mouilleron-le-Captif
TERRAIN ET MAISONSur ce terrain, nous vous proposons cette maison neuve : l’Aixoise, un coquet pavillon familial de plain-pied. Disponible en T4 sur une superficie de 80 m², l’Aixoise est une jolie maison traditionnelle qui saura répondre à toutes vos attentes.Une maison neuve idéale pour installer votre petite famille. Vous apprécierez l’espace nuit agrémenté d’un dégagement le rendant véritablement indépendant de la pièce de vie. Il est composé de trois chambres, d’une salle de bain et de w.c. séparés. Le grand séjour traversant est doté d’une cuisine ouverte avec accès au garage intégré. D’une conception pratique et originale tout à la fois, cette demeure a beaucoup d’atouts pour séduire, même les plus exigeants.Les caractéristiques principales de cette maison incluent un toit à 2 pans ou 4 pans, des baies coulissantes pour une luminosité optimale, et un garage intégré. De plus, cette maison neuve est basse consommation et conforme à la RE2020, garantissant ainsi des économies d’énergie et un confort de vie optimal.Les options les plus demandées par nos clients sont également disponibles : une terrasse en béton poreux, un plancher chauffant, des menuiseries en aluminium, et un système de domotique pour une maison connectée et moderne.Construite par Maisons Privat, constructeur centenaire avec les meilleurs avis clients de la région, l’Aixoise est la maison idéale pour votre famille. Ne manquez pas cette opportunité unique de vivre dans une maison neuve, confortable et économe en énergie. Contactez-nous dès aujourd’hui pour plus d’informations !

La Roche-sur-Yon
TERRAINDécouvrez ce terrain exceptionnel à vendre, situé à La Roche-sur-Yon, au cœur de la Vendée. Avec une superficie généreuse de 274 m², ce terrain viabilisé offre l’âme parfaite pour concrétiser votre projet de construction de maison. Son orientation favorable et ses caractéristiques uniques en font une opportunité idéale pour les particuliers souhaitant bâtir leur nid douillet dans un cadre agréable et dynamique. La Roche-sur-Yon est une ville reconnue pour son riche patrimoine culturel et ses nombreuses commodités. À proximité, vous pourrez profiter de marchés locaux, de restaurants raffinés et de boutiques artisanales, tout en ayant accès à des espaces verts propices à la détente. Située en Pays de la Loire, cette ville dynamique offre également un accès facile aux plages environnantes et au célèbre Parc des Expositions, attirant ainsi un large public et créant un cadre de vie épanouissant. Ce terrain représente une opportunité unique à ne pas manquer pour tous ceux qui souhaitent s’installer dans un environnement enrichissant et plein de potentiel. N’attendez plus pour envisager votre futur chez-vous ! À noter qu’en tant que constructeur, nous ne sommes pas mandatés pour réaliser la vente de ce terrain.
L’actualité immobilière à La Roche-sur-Yon





