Images
Description
Sur ce terrain, nous vous proposons cette maison neuve : la Dompierroise, une maison au concept original et agréable.
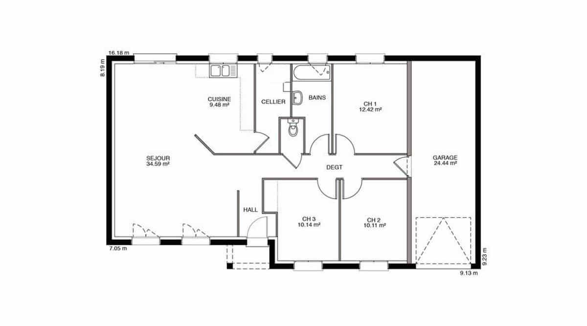
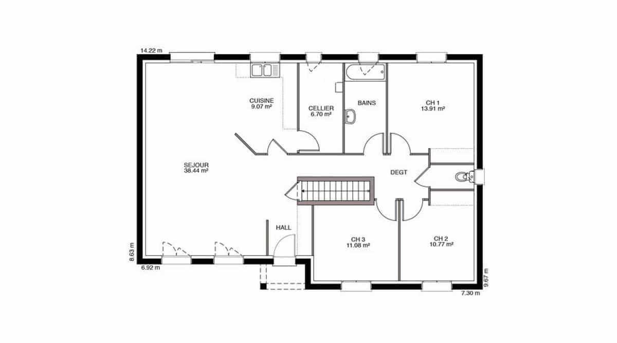
La Dompierroise est une intéressante maison traditionnelle de plain-pied dont l’originalité tient au fait qu’elle se compose de deux corps de bâtiment en décalé. Ce qui permet une délimitation des espaces intéressante et une organisation optimisée. Avec une surface de 80 m², cette maison dispose de 3 chambres et de 4 pièces, offrant ainsi un espace de vie confortable et fonctionnel.
Une maison pour toutes les configurations familiales.
Déclinée en versions allant du T3 au T5, avec une surface au sol comprise entre 70 et 90 m², la Dompierroise s’adapte totalement à la composition de votre famille. Du plus petit au plus grand modèle, vous trouverez la même organisation pratique de l’intérieur, avec un salon-séjour-cuisine spacieux. Un grand garage intégré est inclus, quelle que soit la version. De plus, cette maison est équipée d'un porche accueillant, ajoutant une touche de charme et de fonctionnalité.
Ceux qui ont aimé ce modèle ont également retenu ces options :
- Enduit bi-ton
- Plancher chauffant
- Sous-sol
Insistons sur le fait que cette maison neuve est basse consommation et conforme à la RE2020, garantissant ainsi des performances énergétiques optimales et un confort de vie inégalé.
Le constructeur de cette maison est Maisons Privat, un constructeur centenaire avec les meilleurs avis clients de la région. Faites confiance à leur expertise et à leur savoir-faire pour réaliser votre projet de vie dans une maison qui allie tradition et modernité.
Logement susceptibles de vous intéresser
Nous vous proposons de découvrir aussi cette sélection de logements situés à moins de 10km de La Roche-sur-Yon et qui seraient susceptibles de vous intéresser.
La Roche-sur-Yon
TERRAINPrix : 66430 €.Sur ce terrain de 407 m² à LA ROCHE-SUR-YON, Alliance Construction vous propose de réaliser votre projet de construction de maison individuelle.Avec Alliance Construction, habitez une maison spécialement pensée et conçue pour vous et votre famille, prête à décorer, adaptée à vos modes de vie, personnalisée selon vos goûts grâce à un large choix d'options, de matériaux et d'innovations ! Demandez une étude gratuite et personnalisée de votre projet de construction sur ce terrain à LA ROCHE-SUR-YON !Contactez Sylvain CARIOU au (Numéro supprimé) (Alliance Construction – Agence de la Roche-sur-Yon).Prix hors frais de notaire. Terrain sélectionné par ALLIANCE auprès de nos partenaires fonciers, selon disponibilité, pour la construction d'une maison neuve. Non mandaté pour réaliser la vente (loi du 2 janvier 1970 n°70-9). Visuels non contractuels. Voir détails en agence.Cette annonce a été créée et diffusée avec le logiciel VITAHOME.
Mouilleron-le-Captif
TERRAINPrix : 74000 €.Sur ce terrain de 375 m² à MOUILLERON-LE-CAPTIF, Alliance Construction vous propose de réaliser votre projet de construction de maison individuelle.Avec Alliance Construction, habitez une maison spécialement pensée et conçue pour vous et votre famille, prête à décorer, adaptée à vos modes de vie, personnalisée selon vos goûts grâce à un large choix d'options, de matériaux et d'innovations ! Demandez une étude gratuite et personnalisée de votre projet de construction sur ce terrain à MOUILLERON-LE-CAPTIF !Contactez Sylvain CARIOU au (Numéro supprimé) (Alliance Construction – Agence de la Roche-sur-Yon).Prix hors frais de notaire. Terrain sélectionné par ALLIANCE auprès de nos partenaires fonciers, selon disponibilité, pour la construction d'une maison neuve. Non mandaté pour réaliser la vente (loi du 2 janvier 1970 n°70-9). Visuels non contractuels. Voir détails en agence.Cette annonce a été créée et diffusée avec le logiciel VITAHOME.
La Roche-sur-Yon
TERRAINPrix : 72000 €.Sur ce terrain de 425 m² à LA ROCHE-SUR-YON, Alliance Construction vous propose de réaliser votre projet de construction de maison individuelle.Avec Alliance Construction, habitez une maison spécialement pensée et conçue pour vous et votre famille, prête à décorer, adaptée à vos modes de vie, personnalisée selon vos goûts grâce à un large choix d'options, de matériaux et d'innovations ! Demandez une étude gratuite et personnalisée de votre projet de construction sur ce terrain à LA ROCHE-SUR-YON !Contactez Sylvain CARIOU au (Numéro supprimé) (Alliance Construction – Agence de la Roche-sur-Yon).Prix hors frais de notaire. Terrain sélectionné par ALLIANCE auprès de nos partenaires fonciers, selon disponibilité, pour la construction d'une maison neuve. Non mandaté pour réaliser la vente (loi du 2 janvier 1970 n°70-9). Visuels non contractuels. Voir détails en agence.Cette annonce a été créée et diffusée avec le logiciel VITAHOME.
Mouilleron-le-Captif
TERRAINA seulement quelques minutes de La Roche-sur-Yon, ce nouveau quartier résidentiel s'installe à l'entrée de la commune dynamique de Mouilleron Le Captif.Laissez vous séduire par ses nombreux atouts dans un cadre verdoyant !Prix : 84000 €.Sur ce terrain de 430 m² à MOUILLERON-LE-CAPTIF, Alliance Construction vous propose de réaliser votre projet de construction de maison individuelle.Avec Alliance Construction, habitez une maison spécialement pensée et conçue pour vous et votre famille, prête à décorer, adaptée à vos modes de vie, personnalisée selon vos goûts grâce à un large choix d'options, de matériaux et d'innovations ! Demandez une étude gratuite et personnalisée de votre projet de construction sur ce terrain à MOUILLERON-LE-CAPTIF !Contactez Sylvain CARIOU au (Numéro supprimé) (Alliance Construction – Agence de la Roche-sur-Yon).Prix hors frais de notaire. Terrain sélectionné par ALLIANCE auprès de nos partenaires fonciers, selon disponibilité, pour la construction d'une maison neuve. Non mandaté pour réaliser la vente (loi du 2 janvier 1970 n°70-9). Visuels non contractuels. Voir détails en agence.Cette annonce a été créée et diffusée avec le logiciel VITAHOME.
La Roche-sur-Yon
TERRAINPrix : 85500 €.Sur ce terrain de 432 m² à LA ROCHE-SUR-YON, Alliance Construction vous propose de réaliser votre projet de construction de maison individuelle.Avec Alliance Construction, habitez une maison spécialement pensée et conçue pour vous et votre famille, prête à décorer, adaptée à vos modes de vie, personnalisée selon vos goûts grâce à un large choix d'options, de matériaux et d'innovations ! Demandez une étude gratuite et personnalisée de votre projet de construction sur ce terrain à LA ROCHE-SUR-YON !Contactez Sylvain CARIOU au (Numéro supprimé) (Alliance Construction – Agence de la Roche-sur-Yon).Prix hors frais de notaire. Terrain sélectionné par ALLIANCE auprès de nos partenaires fonciers, selon disponibilité, pour la construction d'une maison neuve. Non mandaté pour réaliser la vente (loi du 2 janvier 1970 n°70-9). Visuels non contractuels. Voir détails en agence.Cette annonce a été créée et diffusée avec le logiciel VITAHOME.
Mouilleron-le-Captif
TERRAINPrix : 84500 €.Sur ce terrain de 434 m² à MOUILLERON-LE-CAPTIF, Alliance Construction vous propose de réaliser votre projet de construction de maison individuelle.Avec Alliance Construction, habitez une maison spécialement pensée et conçue pour vous et votre famille, prête à décorer, adaptée à vos modes de vie, personnalisée selon vos goûts grâce à un large choix d'options, de matériaux et d'innovations ! Demandez une étude gratuite et personnalisée de votre projet de construction sur ce terrain à MOUILLERON-LE-CAPTIF !Contactez Sylvain CARIOU au (Numéro supprimé) (Alliance Construction – Agence de la Roche-sur-Yon).Prix hors frais de notaire. Terrain sélectionné par ALLIANCE auprès de nos partenaires fonciers, selon disponibilité, pour la construction d'une maison neuve. Non mandaté pour réaliser la vente (loi du 2 janvier 1970 n°70-9). Visuels non contractuels. Voir détails en agence.Cette annonce a été créée et diffusée avec le logiciel VITAHOME.
La Roche-sur-Yon
TERRAINÀ proximité, les habitants peuvent profiter des commodités telles que les commerces locaux, les écoles, et les espaces verts, offrant ainsi un mode de vie pratique et agréable.Prix : 90000 €.Sur ce terrain de 900 m² à LA ROCHE-SUR-YON, Alliance Construction vous propose de réaliser votre projet de construction de maison individuelle.Avec Alliance Construction, habitez une maison spécialement pensée et conçue pour vous et votre famille, prête à décorer, adaptée à vos modes de vie, personnalisée selon vos goûts grâce à un large choix d'options, de matériaux et d'innovations ! Demandez une étude gratuite et personnalisée de votre projet de construction sur ce terrain à LA ROCHE-SUR-YON !Contactez Sylvain CARIOU au (Numéro supprimé) (Alliance Construction – Agence de la Roche-sur-Yon).Prix hors frais de notaire. Terrain sélectionné par ALLIANCE auprès de nos partenaires fonciers, selon disponibilité, pour la construction d'une maison neuve. Non mandaté pour réaliser la vente (loi du 2 janvier 1970 n°70-9). Visuels non contractuels. Voir détails en agence.Cette annonce a été créée et diffusée avec le logiciel VITAHOME.
La Roche-sur-Yon
TERRAINPrix : 109500 €.Sur ce terrain de 807 m² à LA ROCHE-SUR-YON, Alliance Construction vous propose de réaliser votre projet de construction de maison individuelle.Avec Alliance Construction, habitez une maison spécialement pensée et conçue pour vous et votre famille, prête à décorer, adaptée à vos modes de vie, personnalisée selon vos goûts grâce à un large choix d'options, de matériaux et d'innovations ! Demandez une étude gratuite et personnalisée de votre projet de construction sur ce terrain à LA ROCHE-SUR-YON !Contactez Sylvain CARIOU au (Numéro supprimé) (Alliance Construction – Agence de la Roche-sur-Yon).Prix hors frais de notaire. Terrain sélectionné par ALLIANCE auprès de nos partenaires fonciers, selon disponibilité, pour la construction d'une maison neuve. Non mandaté pour réaliser la vente (loi du 2 janvier 1970 n°70-9). Visuels non contractuels. Voir détails en agence.Cette annonce a été créée et diffusée avec le logiciel VITAHOME.
La Roche-sur-Yon
TERRAINPrix : 112500 €.Sur ce terrain de 804 m² à LA ROCHE-SUR-YON, Alliance Construction vous propose de réaliser votre projet de construction de maison individuelle.Avec Alliance Construction, habitez une maison spécialement pensée et conçue pour vous et votre famille, prête à décorer, adaptée à vos modes de vie, personnalisée selon vos goûts grâce à un large choix d'options, de matériaux et d'innovations ! Demandez une étude gratuite et personnalisée de votre projet de construction sur ce terrain à LA ROCHE-SUR-YON !Contactez Sylvain CARIOU au (Numéro supprimé) (Alliance Construction – Agence de la Roche-sur-Yon).Prix hors frais de notaire. Terrain sélectionné par ALLIANCE auprès de nos partenaires fonciers, selon disponibilité, pour la construction d'une maison neuve. Non mandaté pour réaliser la vente (loi du 2 janvier 1970 n°70-9). Visuels non contractuels. Voir détails en agence.Cette annonce a été créée et diffusée avec le logiciel VITAHOME.
L’actualité immobilière à La Roche-sur-Yon
27/11/2023
02/11/2023
30/10/2023
20/10/2023
16/10/2023
16/10/2023