Images
Description
Sur ce terrain, nous vous proposons cette maison neuve : la Dompierroise, une maison au concept original et agréable.
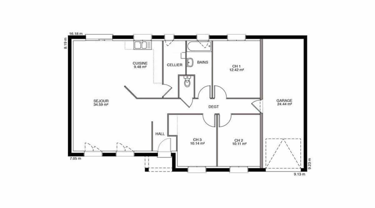
La Dompierroise est une intéressante maison traditionnelle de plain-pied dont l’originalité tient au fait qu’elle se compose de deux corps de bâtiment en décalé. Ce qui permet une délimitation des espaces intéressante et une organisation optimisée. Avec une surface de 80 m², cette maison dispose de 3 chambres et de 4 pièces, offrant ainsi un espace de vie confortable et fonctionnel.
Une maison pour toutes les configurations familiales.
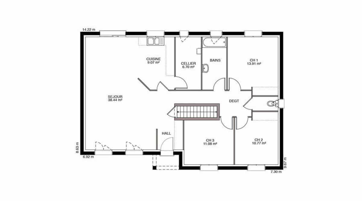
Déclinée en versions allant du T3 au T5, avec une surface au sol comprise entre 70 et 90 m², la Dompierroise s’adapte totalement à la composition de votre famille. Du plus petit au plus grand modèle, vous trouverez la même organisation pratique de l’intérieur, avec un salon-séjour-cuisine spacieux. Un grand garage intégré est inclus, quelle que soit la version. De plus, cette maison est équipée d'un porche accueillant, ajoutant une touche de charme et de fonctionnalité.
Ceux qui ont aimé ce modèle ont également retenu ces options :
- Enduit bi-ton
- Plancher chauffant
- Sous-sol
Insistons sur le fait que cette maison neuve est basse consommation et conforme à la RE2020, garantissant ainsi des performances énergétiques optimales et un confort de vie inégalé.
Le constructeur de cette maison est Maisons Privat, un constructeur centenaire avec les meilleurs avis clients de la région. Faites confiance à leur expertise et à leur savoir-faire pour réaliser votre projet de vie dans une maison qui allie tradition et modernité.
Logement susceptibles de vous intéresser
Nous vous proposons de découvrir aussi cette sélection de logements situés à moins de 10km de La Roche-sur-Yon et qui seraient susceptibles de vous intéresser.
La Roche-sur-Yon
TERRAINNous vous proposons à la vente un terrain viabilisé de 847 m², idéalement situé à La Roche-sur-Yon, en Vendée. Ce terrain bénéficie d’un potentiel unique pour la construction de la maison de vos rêves. L’emplacement est stratégique pour ceux qui recherchent à la fois tranquillité et accessibilité, faisant de ce bien un choix judicieux pour un projet résidentiel. La Roche-sur-Yon, située dans le département de la Vendée, est une ville dynamique aux multiples atouts. Vous y trouverez un cadre de vie agréable avec des services variés, des commerces de proximité, ainsi que des infrastructures éducatives de qualité. Les nombreuses attractions locales, telles que Les Halles et le parc des expositions, ajoutent à l’attrait de ce territoire. Profitez de la proximité de la nature environnante et des belles plages de la Côte Vendéenne, situées à quelques kilomètres, qui font de cette ville un lieu de vie privilégié. Ne laissez pas passer cette occasion d’acquérir un terrain au potentiel exceptionnel ! Contactez-nous dès aujourd’hui pour explorer les nombreuses possibilités qu’il offre. À noter qu’en tant que constructeur, nous ne sommes pas mandatés pour réaliser la vente de ce terrain.
Nesmy
TERRAIN ET MAISONSitué sur la commune paisible de Nesmy, ce terrain viabilisé de 584 m² offre un cadre idéal pour concrétiser votre projet de construction. Vous apprécierez son environnement calme, propice à une vie sereine. Simple, lumineuse et facile à vivre, cette maison de plain-pied est le point de départ idéal pour construire votre projet de vie ou profiter d’un pied-à-terre fonctionnel en toute saison. Son séjour traversant, ouvert sur le jardin, crée un espace de vie fluide et convivial, parfait pour se retrouver. Avec 3 chambres bien réparties, une salle de bain centrale, un cellier attenant et un garage intégré, elle allie confort, praticité et douceur de vivre. Un modèle compact, évolutif et personnalisable, aussi agréable à vivre toute l’année qu’à savourer en vacances. Pour un confort optimal et conforme à la RE2025, cette maison dispose d’une PAC avec plancher chauffant et volets roulants électriques. À noter : Le prix indiqué exclut les revêtements de sol des chambres, la cuisine aménagée, la peinture, la décoration, les frais de notaire et l’assurance dommages ouvrage. // Réf. : 557-213656-THW. Prix terrain : 65 000 €, hors frais d'agence à la charge de l'acquéreur. Ce terrain vous est proposé, par nos partenaires fonciers, dans le cadre d'un projet de construction avec nous. Les informations sur les risques auxquels ce bien est exposé sont disponibles sur le site Géorisques (www.georisques.gouv.fr). Prix maison : 139 800 €.
Mouilleron-le-Captif
TERRAIN ET MAISONSitué au cœur de la commune recherchée de Mouilleron-le-Captif, découvrez ce terrain viabilisé de 471 m², idéal pour concrétiser votre projet de construction. Vous apprécierez son environnement calme, offrant un cadre de vie agréable et préservé, tout en restant proche des commerces, des écoles et des axes routiers. Un modèle de plain-pied où chaque mètre carré a été pensé pour conjuguer accessibilité, confort et efficacité locative. Entièrement conforme aux normes PMR, il offre de larges circulations, une salle de bains spacieuse adaptée, des accès facilités à toutes les pièces, y compris le garage attenant. Le séjour lumineux, les 3 chambres avec rangements intégrés, et l’optimisation des dégagements assurent une vie fluide et sans contrainte. Un bien rare, idéal pour la location inclusive, avec un plan fonctionnel, ergonomique et personnalisable selon les objectifs d’usage ou d’investissement. Pour un confort optimal et conforme à la RE2025, cette maison dispose d’une PAC avec plancher chauffant et volets roulants électriques. À noter : Le prix indiqué exclut les revêtements de sol des chambres, la cuisine aménagée, la peinture, la décoration, les frais de notaire et l’assurance dommages ouvrage. // Réf. : 560-213653-THW. Prix terrain : 66 900 €, hors frais d'agence à la charge de l'acquéreur. Ce terrain vous est proposé, par nos partenaires fonciers, dans le cadre d'un projet de construction avec nous. Les informations sur les risques auxquels ce bien est exposé sont disponibles sur le site Géorisques (www.georisques.gouv.fr). Prix maison : 150 800 €.
Nesmy
TERRAINNous vous proposons à la vente un terrain viabilisé de 489 m² situé à Nesmy, un charmant lotissement idéal pour concrétiser votre projet de construction de maison. Ce terrain plat, bénéficiant d’un environnement calme et agréable, offre une belle opportunité pour les familles souhaitant s’installer dans un cadre de vie privilégié. La localité est reconnue pour sa qualité de vie exceptionnel et son ambiance conviviale. Nesmy, située dans le département de la Vendée en région Pays de la Loire, se distingue par son atmosphère paisible tout en restant proche de toutes les commodités nécessaires à votre quotidien. Vous y trouverez des écoles à proximité, des commerces diversifiés, ainsi que des arrêts de bus facilitant vos déplacements. Ajoutez à cela l’accès rapide à des axes routiers importants, et vous comprendrez pourquoi ce terrain représente un choix stratégique pour votre future maison. De plus, la ville bénéficie d’un cadre naturel propice aux loisirs et aux activités en plein air. Ne manquez pas cette opportunité unique d’acquérir un terrain prometteur dans un environnement chaleureux et accueillant.
Nesmy
TERRAINNous vous proposons un terrain à vendre d’une surface de 584 m², situé dans un charmant lotissement à Nesmy, une commune dynamique du département de la Vendée. Ce terrain viabilisé offre une opportunité idéale pour construire la maison de vos rêves dans un environnement paisible. Profitez de ce cadre de vie agréable, avec un accès facile à toutes les commodités nécessaires au quotidien. Nesmy, localisée au cœur de la Vendée dans la région des Pays de la Loire, se distingue par son ambiance conviviale et ses nombreux attraits. Vous trouverez à proximité immédiate divers commerces, des écoles, ainsi que des espaces verts propices aux loisirs. La commune est également facilement accessible grâce à un réseau de transports bien développé et sa proximité avec d’importants axes routiers, garantissant une qualité de vie exceptionnelle pour vous et votre famille. Ne laissez pas passer cette occasion unique d’investir dans un terrain au potentiel remarquable.
Mouilleron-le-Captif
TERRAINDécouvrez ce terrain de 337 m², idéalement situé au cœur de Mouilleron-le-Captif, dans un environnement calme et recherché. Parfait pour votre futur projet de construction, il offre un cadre de vie agréable tout en restant proche des commerces, des écoles et des axes principaux. // Réf. : T213472. Prix terrain : 66 500 €, hors frais d'agence et de notaire à la charge de l'acquéreur. Ce terrain vous est proposé, par nos partenaires fonciers, dans le cadre d'un projet de construction avec nous. Les informations sur les risques auxquels ce bien est exposé sont disponibles sur le site Géorisques (www.georisques.gouv.fr).
Mouilleron-le-Captif
TERRAINDécouvrez ce terrain de 337 m², idéalement situé au cœur de Mouilleron-le-Captif, dans un environnement calme et recherché. Parfait pour votre futur projet de construction, il offre un cadre de vie agréable tout en restant proche des commerces, des écoles et des axes principaux. // Réf. : T213472. Prix terrain : 66 500 €, hors frais d'agence et de notaire à la charge de l'acquéreur. Ce terrain vous est proposé, par nos partenaires fonciers, dans le cadre d'un projet de construction avec nous. Les informations sur les risques auxquels ce bien est exposé sont disponibles sur le site Géorisques (www.georisques.gouv.fr).
Nesmy
TERRAINSitué sur la commune paisible de Nesmy, ce terrain viabilisé de 584 m² offre un cadre idéal pour concrétiser votre projet de construction. Vous apprécierez son environnement calme, propice à une vie sereine. // Réf. : T213656. Prix terrain : 65 000 €, hors frais d'agence et de notaire à la charge de l'acquéreur. Ce terrain vous est proposé, par nos partenaires fonciers, dans le cadre d'un projet de construction avec nous. Les informations sur les risques auxquels ce bien est exposé sont disponibles sur le site Géorisques (www.georisques.gouv.fr).
Nesmy
TERRAINSitué sur la commune paisible de Nesmy, ce terrain viabilisé de 584 m² offre un cadre idéal pour concrétiser votre projet de construction. Vous apprécierez son environnement calme, propice à une vie sereine. // Réf. : T213656. Prix terrain : 65 000 €, hors frais d'agence et de notaire à la charge de l'acquéreur. Ce terrain vous est proposé, par nos partenaires fonciers, dans le cadre d'un projet de construction avec nous. Les informations sur les risques auxquels ce bien est exposé sont disponibles sur le site Géorisques (www.georisques.gouv.fr).
L’actualité immobilière à La Roche-sur-Yon
27/11/2023
02/11/2023
30/10/2023
20/10/2023
16/10/2023
16/10/2023