Terrain à vendre

216536 €
70 m²
La Roche-sur-Yon
Vendée (85)
TERRAIN ET MAISON
Réf externe: 4975886
Annonce publiée le 14 décembre 2025

Images

Description

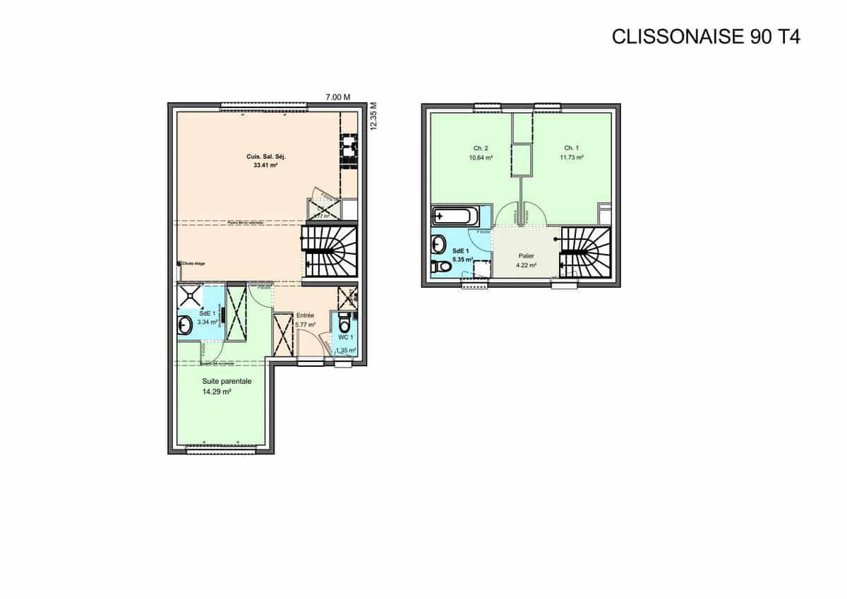
Sur ce terrain, nous vous proposons cette maison neuve : la Clissonnaise, une charmante maison à étage de 70 m². Conçue par Maisons Privat, constructeur centenaire avec les meilleurs avis clients de la région, cette maison basse consommation est conforme à la RE2020, garantissant des performances énergétiques optimales.

Très jolie maison traditionnelle à étage, la Clissonnaise conviendra aussi bien aux primo-accédants qu'aux couples ou aux petites familles. Elle se compose de 3 pièces, dont 2 chambres spacieuses, et est idéale pour un terrain étroit grâce à son design ingénieux.

Les caractéristiques principales de cette maison incluent des baies coulissantes pour un maximum de luminosité, une dalle étage en béton pour une solidité accrue, et une conformité à la norme RT2020 pour une efficacité énergétique supérieure.

Parmi les options les plus demandées par nos clients, vous pouvez choisir d'ajouter une deuxième salle de bains pour plus de confort, une baie à galandage pour un espace de vie encore plus ouvert, un carport pour protéger votre véhicule, ou un garage accolé pour plus de commodité.

Achetez votre nouvelle demeure à étage comme vous la souhaitez et profitez d'un grand espace de vie avec cuisine ouverte, parfait pour des moments conviviaux en famille ou entre amis. La Clissonnaise est disponible dans des dimensions allant de 70 à 110 m², permettant de nombreuses configurations en fonction de vos besoins.

Ne manquez pas cette opportunité unique de devenir propriétaire d'une maison neuve, basse consommation et parfaitement adaptée à vos attentes. Contactez-nous dès aujourd'hui pour plus d'informations et pour découvrir toutes les possibilités offertes par la Clissonnaise.

CONTACTER

Logement susceptibles de vous intéresser

204 800 €
584 m²

Nesmy

TERRAIN ET MAISON

Situé sur la commune paisible de Nesmy, ce terrain viabilisé de 584 m² offre un cadre idéal pour concrétiser votre projet de construction. Vous apprécierez son environnement calme, propice à une vie sereine. Simple, lumineuse et facile à vivre, cette maison de plain-pied est le point de départ idéal pour construire votre projet de vie ou profiter d’un pied-à-terre fonctionnel en toute saison. Son séjour traversant, ouvert sur le jardin, crée un espace de vie fluide et convivial, parfait pour se retrouver. Avec 3 chambres bien réparties, une salle de bain centrale, un cellier attenant et un garage intégré, elle allie confort, praticité et douceur de vivre. Un modèle compact, évolutif et personnalisable, aussi agréable à vivre toute l’année qu’à savourer en vacances. Pour un confort optimal et conforme à la RE2025, cette maison dispose d’une PAC avec plancher chauffant et volets roulants électriques.   À noter : Le prix indiqué exclut les revêtements de sol des chambres, la cuisine aménagée, la peinture, la décoration, les frais de notaire et l’assurance dommages ouvrage. // Réf. : 557-213656-THW. Prix terrain : 65 000 €, hors frais d'agence à la charge de l'acquéreur. Ce terrain vous est proposé, par nos partenaires fonciers, dans le cadre d'un projet de construction avec nous. Les informations sur les risques auxquels ce bien est exposé sont disponibles sur le site Géorisques (www.georisques.gouv.fr). Prix maison : 139 800 €.

217 700 €
471 m²

Mouilleron-le-Captif

TERRAIN ET MAISON

Situé au cœur de la commune recherchée de Mouilleron-le-Captif, découvrez ce terrain viabilisé de 471 m², idéal pour concrétiser votre projet de construction. Vous apprécierez son environnement calme, offrant un cadre de vie agréable et préservé, tout en restant proche des commerces, des écoles et des axes routiers. Un modèle de plain-pied où chaque mètre carré a été pensé pour conjuguer accessibilité, confort et efficacité locative. Entièrement conforme aux normes PMR, il offre de larges circulations, une salle de bains spacieuse adaptée, des accès facilités à toutes les pièces, y compris le garage attenant. Le séjour lumineux, les 3 chambres avec rangements intégrés, et l’optimisation des dégagements assurent une vie fluide et sans contrainte. Un bien rare, idéal pour la location inclusive, avec un plan fonctionnel, ergonomique et personnalisable selon les objectifs d’usage ou d’investissement. Pour un confort optimal et conforme à la RE2025, cette maison dispose d’une PAC avec plancher chauffant et volets roulants électriques.   À noter : Le prix indiqué exclut les revêtements de sol des chambres, la cuisine aménagée, la peinture, la décoration, les frais de notaire et l’assurance dommages ouvrage. // Réf. : 560-213653-THW. Prix terrain : 66 900 €, hors frais d'agence à la charge de l'acquéreur. Ce terrain vous est proposé, par nos partenaires fonciers, dans le cadre d'un projet de construction avec nous. Les informations sur les risques auxquels ce bien est exposé sont disponibles sur le site Géorisques (www.georisques.gouv.fr). Prix maison : 150 800 €.

L’actualité immobilière à La Roche-sur-Yon

Image du post Pourquoi acheter un terrain en lotissement ? 27/11/2023
Lire l’article
Pourquoi acheter un terrain en lotissement ?
Image du post Vendre son terrain à un promoteur : comment procéder ? 02/11/2023
Lire l’article
Vendre son terrain à un promoteur : comment procéder ?
Image du post Diviser le terrain de sa maison pour le vendre : pourquoi et comment ? 30/10/2023
Lire l’article
Diviser le terrain de sa maison pour le vendre : pourquoi et comment ?
Image du post Acheter un terrain viabilisé : quels avantages ? 20/10/2023
Lire l’article
Acheter un terrain viabilisé : quels avantages ?
Image du post Les 7 étapes incontournables pour bien vendre votre terrain constructible 16/10/2023
Lire l’article
Les 7 étapes incontournables pour bien vendre votre terrain constructible
Image du post 5 points clés à vérifier pour l’achat d’un terrain constructible  16/10/2023
Lire l’article
5 points clés à vérifier pour l’achat d’un terrain constructible