Maison à construire à Lairoux (85400)
Images
Description
VENTE : maison de 3 pièces (59 m²) à Lairoux
EMPLACEMENT PRIVILÉGIÉ - MAISON 3 PIÈCES NEUVE
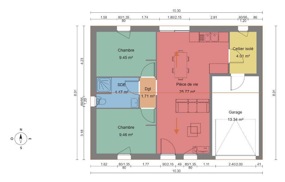
À vendre à 16 km de la côte atlantique et à 27 km de La Roche-sur-Yon, nous vous proposons cette maison de 3 pièces de plain-pied de 59 m², bénéficiant d'un emplacement privilégié dans Lairoux (85400).
Elle inclut deux chambres, une cuisine et une salle de bains. Cette maison est neuve.
Le terrain du bien s'étend sur 501 m².
Cette maison est située dans un secteur prisé. L'École Primaire Publique les Bergeronnettes se trouve à moins de 10 minutes à pied. Niveau transports, il y a la gare Luçon à moins de 10 minutes en voiture. L'autoroute A83 est accessible à 18 km.
Son prix de vente est de 145 900 €.
Prenez contact avec notre agence (NOVO Virginie : (Numéro supprimé)) pour obtenir de plus amples renseignements sur la maison, sur les modalités de vente ou sur les démarches à suivre.
Logement susceptibles de vous intéresser
Nous vous proposons de découvrir aussi cette sélection de logements situés à moins de 10km de Lairoux et qui seraient susceptibles de vous intéresser.
Lairoux
TERRAINVENTE d’un terrain de 501 m² à LairouxEMPLACEMENT PRIVILÉGIÉ – PROCHE DE LA ROCHE-SUR-YONÀ 16 km de la côte atlantique et à quelques kilomètres de La Roche-sur-Yon à Lairoux (85400), grand terrain. Il est prêt à accueillir la maison de vos rêves pour toute la famille. Ce terrain est situé dans un secteur attractif. Il y a l’École Primaire Publique les Bergeronnettes à moins de 10 minutes à pied. Côté transports, on trouve la gare Luçon à moins de 10 minutes en voiture. L’autoroute A83 est accessible à 18 km.Il est à vendre pour la somme de 25 100 €. N’hésitez pas à prendre contact avec notre agence (NOVO Virginie :(Numéro supprimé) ) pour obtenir de plus amples renseignements sur le terrain. LMP Constructeur La Roche-sur-Yon est là pour vous accompagner à toutes les étapes de l’achat.
Lairoux
TERRAIN ET MAISONLairoux : maison de 3 pièces (59 m²) à vendreEMPLACEMENT PRIVILÉGIÉ – MAISON 3 PIÈCES NEUVEÀ 16 km de l’océan Atlantique et à quelques kilomètres de La Roche-sur-Yon, notre agence LMP Constructeur La Roche-sur-Yon est heureuse de vous présenter cette maison de 3 pièces de plain-pied de 59 m² à vendre, bénéficiant d’un emplacement d’exception dans Lairoux (85400).Elle dispose de deux chambres, d’une cuisine et d’une salle de bains. La maison est neuve.Le terrain du bien s’étend sur 501 m².Cette maison se trouve dans un quartier recherché. Il y a l’École Primaire Publique les Bergeronnettes à moins de 10 minutes à pied. Niveau transports, on trouve la gare Luçon à moins de 10 minutes en voiture. L’autoroute A83 est accessible à 18 km.Son prix de vente est de 135 900 €.Contactez Virginie NOVO (tél : (Numéro supprimé)) pour obtenir de plus amples informations sur la maison ou sur les modalités de vente.
Lairoux
TERRAIN ET MAISONVENTE : maison de 3 pièces (59 m²) à LairouxEMPLACEMENT PRIVILÉGIÉ – MAISON 3 PIÈCES NEUVEÀ vendre à 16 km de la côte atlantique et à 27 km de La Roche-sur-Yon, nous vous proposons cette maison de 3 pièces de plain-pied de 59 m², bénéficiant d’un emplacement privilégié dans Lairoux (85400).Elle inclut deux chambres, une cuisine et une salle de bains. Cette maison est neuve.Le terrain du bien s’étend sur 501 m².Cette maison est située dans un secteur prisé. L’École Primaire Publique les Bergeronnettes se trouve à moins de 10 minutes à pied. Niveau transports, il y a la gare Luçon à moins de 10 minutes en voiture. L’autoroute A83 est accessible à 18 km.Son prix de vente est de 145 900 €.Prenez contact avec notre agence (NOVO Virginie : (Numéro supprimé)) pour obtenir de plus amples renseignements sur la maison, sur les modalités de vente ou sur les démarches à suivre.
Lairoux
TERRAIN ET MAISONVENTE d’une maison de 4 pièces (85 m²) à LairouxEMPLACEMENT PRIVILÉGIÉ – MAISON 4 PIÈCES NEUVEÀ 16 km de l’océan Atlantique et à 27 km de La Roche-sur-Yon, nous sommes ravis de vous présenter cette maison de 4 pièces de plain-pied de 85 m² bénéficiant d’un emplacement privilégié dans Lairoux (85400). Elle compte trois chambres, une cuisine et une salle de bains.Le terrain de cette maison s’étend sur 501 m².La maison est neuve.Cette maison est située dans un secteur convoité. L’École Primaire Publique les Bergeronnettes se trouve à moins de 10 minutes à pied. Côté transports, il y a la gare Luçon à moins de 10 minutes en voiture. Il y a un accès à l’autoroute A83 à 18 km.Son prix de vente est de 184 900 €.Contactez notre agence (NOVO Virginie : (Numéro supprimé)) pour toute question sur la maison.
Lairoux
TERRAIN ET MAISONMaison F3 (71 m²) en vente à LairouxEMPLACEMENT PRIVILÉGIÉ – MAISON 3 PIÈCES NEUVEÀ vendre à 16 km de la côte atlantique et à deux pas de La Roche-sur-Yon, votre agence LMP Constructeur La Roche-sur-Yon est ravie de vous présenter cette maison de 3 pièces de plain-pied de 71 m² bénéficiant d’un emplacement privilégié dans Lairoux (85400).Elle est composée de deux chambres, d’une cuisine et d’une salle de bains. Cette maison est neuve.Le terrain de la propriété s’étend sur 501 m².La maison se trouve dans un quartier prisé. Il y a l’École Primaire Publique les Bergeronnettes à moins de 10 minutes à pied. Côté transports, on trouve la gare Luçon à moins de 10 minutes en voiture. L’autoroute A83 est accessible à 18 km.Elle est proposée à l’achat pour 155 100 €.Prenez contact avec notre agence (NOVO Virginie :(Numéro supprimé) ) pour tout renseignement sur la maison. LMP Constructeur La Roche-sur-Yon est là pour vous accompagner à toutes les étapes de votre projet.
Lairoux
TERRAIN ET MAISONLairoux : maison T4 (75 m²) en venteEMPLACEMENT PRIVILÉGIÉ – MAISON 4 PIÈCES NEUVEEn vente : localisée à 16 km de la côte atlantique et à quelques kilomètres de La Roche-sur-Yon, bénéficiant d’un emplacement d’exception dans Lairoux (85400), nous sommes heureux de vous proposer cette maison de 4 pièces de plain-pied de 75 m². Conçue de plain-pied, elle comporte trois chambres, une cuisine et une salle de bains.Le terrain de la propriété s’étend sur 501 m².La maison est neuve.La maison se situe dans un quartier convoité. Il y a l’École Primaire Publique les Bergeronnettes à moins de 10 minutes à pied. Niveau transports en commun, on trouve la gare Luçon à moins de 10 minutes en voiture. L’autoroute A83 est accessible à 18 km.Elle est à vendre pour la somme de 169 900 €.N’hésitez pas à prendre contact avec notre agence (NOVO Virginie : (Numéro supprimé)) pour tout renseignement sur la maison. LMP Constructeur La Roche-sur-Yon est là pour vous accompagner à toutes les étapes de l’achat.
Lairoux
TERRAIN ET MAISONVENTE d’une maison F5 (90 m²) à LairouxEMPLACEMENT PRIVILÉGIÉ – MAISON 5 PIÈCES NEUVEÀ vendre : située à 16 km de l’océan Atlantique et à 27 km de La Roche-sur-Yon, découvrez, bénéficiant d’un emplacement privilégié dans Lairoux (85400), cette maison de 5 pièces de plain-pied de 90 m².Son intérieur propose quatre chambres, une cuisine et une salle de bains. Cette maison est neuve.Le terrain de la propriété est de 501 m².Cette maison est située dans un secteur convoité. On trouve l’École Primaire Publique les Bergeronnettes à moins de 10 minutes à pied. Niveau transports en commun, il y a la gare Luçon à moins de 10 minutes en voiture. L’autoroute A83 est accessible à 18 km.Elle est proposée à l’achat pour 179 900 €.Prenez contact avec Virginie NOVO ((Numéro supprimé)) pour tout renseignement sur la maison ou sur les modalités de vente. Concrétisez vos projets immobiliers avec LMP Constructeur La Roche-sur-Yon.
Lairoux
TERRAIN ET MAISONVENTE d’une maison de 2 pièces (61 m²) à LairouxEMPLACEMENT PRIVILÉGIÉ – MAISON 3 PIÈCES NEUVEÀ vendre : à 16 km de l’océan Atlantique et à deux pas de La Roche-sur-Yon, nous sommes heureux de vous présenter cette maison de 2 pièces de plain-pied de 61 m² et de 501 m² de terrain bénéficiant d’un emplacement privilégié dans Lairoux (85400). Conçue de plain-pied, elle est composée de deux chambres, d’une cuisine et d’une salle de bains.La maison est neuve.La maison se trouve dans un quartier convoité. L’École Primaire Publique les Bergeronnettes est implantée à moins de 10 minutes à pied. Côté transports en commun, on trouve la gare Luçon à moins de 10 minutes en voiture. On trouve un accès à l’autoroute A83 à 18 km.Elle est à vendre pour la somme de 132 345 €.Contactez Virginie NOVO (tél : (Numéro supprimé)) pour toute information sur la maison, sur les démarches à suivre ou sur les modalités de vente. Faites de vos projets immobiliers une réalité avec LMP Constructeur La Roche-sur-Yon.
Lairoux
TERRAIN ET MAISONVENTE : maison F2 (50 m²) à LairouxEMPLACEMENT PRIVILÉGIÉ – MAISON 2 PIÈCES NEUVEEn vente : située à 16 km de la côte atlantique et à deux pas de La Roche-sur-Yon, bénéficiant d’un emplacement d’exception dans Lairoux (85400), notre agence LMP Constructeur La Roche-sur-Yon est heureuse de vous présenter cette maison de 2 pièces de plain-pied de 50 m² et de 501 m² de terrain.Conçue de plain-pied, elle offre une chambre, une cuisine et une salle de bains. Cette maison est neuve.La maison est située dans un secteur convoité. On trouve l’École Primaire Publique les Bergeronnettes à moins de 10 minutes à pied. Niveau transports, il y a la gare Luçon à moins de 10 minutes en voiture. Il y a un accès à l’autoroute A83 à 18 km.Elle est à vendre pour la somme de 122 265 €.Contactez notre agence (NOVO Virginie : (Numéro supprimé)) pour tout renseignement sur la maison. Concrétisez vos projets immobiliers avec LMP Constructeur La Roche-sur-Yon.
L’actualité immobilière à Lairoux
27/11/2023
02/11/2023
30/10/2023
20/10/2023
16/10/2023
16/10/2023