Maison à construire à Lairoux (85400)
Images
Description
VENTE : maison de 3 pièces (59 m²) à Lairoux
EMPLACEMENT PRIVILÉGIÉ - MAISON 3 PIÈCES NEUVE
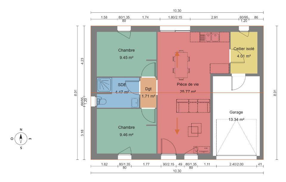
À vendre à 16 km de la côte atlantique et à 27 km de La Roche-sur-Yon, nous vous proposons cette maison de 3 pièces de plain-pied de 59 m², bénéficiant d'un emplacement privilégié dans Lairoux (85400).
Elle inclut deux chambres, une cuisine et une salle de bains. Cette maison est neuve.
Le terrain du bien s'étend sur 501 m².
Cette maison est située dans un secteur prisé. L'École Primaire Publique les Bergeronnettes se trouve à moins de 10 minutes à pied. Niveau transports, il y a la gare Luçon à moins de 10 minutes en voiture. L'autoroute A83 est accessible à 18 km.
Son prix de vente est de 145 900 €.
Prenez contact avec notre agence (NOVO Virginie : (Numéro supprimé)) pour obtenir de plus amples renseignements sur la maison, sur les modalités de vente ou sur les démarches à suivre.
Logement susceptibles de vous intéresser
Nous vous proposons de découvrir aussi cette sélection de logements situés à moins de 10km de Lairoux et qui seraient susceptibles de vous intéresser.
Grues
TERRAIN ET MAISONA GRUES sur un terrain de 560 m², Alliance Construction vous propose de réaliser votre projet de construction de maison individuelle d'une surface de 71.3 m² habitables avec 2 chambres, à partir de 205320€*Demandez une étude gratuite et personnalisée de votre projet de construction !* Cette offre comprend :- Garanties constructeurs (dommages ouvrage, garantie de prix ferme et définitif, garantie de livraison, responsabilité civile et décennale).- Branchements aux compteurs et accès empierré sur 5m linéaires.Habitez une maison spécialement pensée et conçue pour vous et votre famille, prête à décorer, adaptée à vos modes de vie, personnalisée selon vos goûts grâce à un large choix d'options, de matériaux et d'innovations !Contactez Perrick MACCHI au (Numéro supprimé) (Alliance Construction – Agence des Sables-d'Olonne).*Prix indicatif pour un projet de construction d'une maison individuelle. Ne sont pas inclus les frais de branchements, raccordements aux réseaux publics, frais d'adaptations, aménagements intérieurs et extérieurs et options. terrain viabilisé, frais de notaire non compris, frais divers non compris. Garanties et assurances obligatoires incluses. Terrain sélectionné par ALLIANCE auprès de nos partenaires fonciers, selon disponibilité, pour la construction d'une maison neuve. Non mandaté pour réaliser la vente (loi du 2 janvier 1970 n°70-9). Visuels non contractuels. Voir détails en agence.Cette annonce a été créée et diffusée avec le logiciel VITAHOME.
Grues
TERRAINPrix : 49000 €.Sur ce terrain de 480 m² à GRUES, Alliance Construction vous propose de réaliser votre projet de construction de maison individuelle.Avec Alliance Construction, habitez une maison spécialement pensée et conçue pour vous et votre famille, prête à décorer, adaptée à vos modes de vie, personnalisée selon vos goûts grâce à un large choix d'options, de matériaux et d'innovations ! Demandez une étude gratuite et personnalisée de votre projet de construction sur ce terrain à GRUES !Contactez Perrick MACCHI au (Numéro supprimé) (Alliance Construction – Agence des Sables-d'Olonne).Prix hors frais de notaire. Terrain sélectionné par ALLIANCE auprès de nos partenaires fonciers, selon disponibilité, pour la construction d'une maison neuve. Non mandaté pour réaliser la vente (loi du 2 janvier 1970 n°70-9). Visuels non contractuels. Voir détails en agence.Cette annonce a été créée et diffusée avec le logiciel VITAHOME.
Grues
TERRAIN ET MAISONA GRUES sur un terrain de 562 m², Alliance Construction vous propose de réaliser votre projet de construction de maison individuelle d'une surface de 119.55 m² habitables avec 4 chambres, à partir de 321870€*Demandez une étude gratuite et personnalisée de votre projet de construction !* Cette offre comprend :- Garanties constructeurs (dommages ouvrage, garantie de prix ferme et définitif, garantie de livraison, responsabilité civile et décennale).- Branchements aux compteurs et accès empierré sur 5m linéaires.Habitez une maison spécialement pensée et conçue pour vous et votre famille, prête à décorer, adaptée à vos modes de vie, personnalisée selon vos goûts grâce à un large choix d'options, de matériaux et d'innovations !Contactez Perrick MACCHI au (Numéro supprimé) (Alliance Construction – Agence des Sables-d'Olonne).*Prix indicatif pour un projet de construction d'une maison individuelle. Ne sont pas inclus les frais de branchements, raccordements aux réseaux publics, frais d'adaptations, aménagements intérieurs et extérieurs et options. terrain viabilisé, frais de notaire non compris, frais divers non compris. Garanties et assurances obligatoires incluses. Terrain sélectionné par ALLIANCE auprès de nos partenaires fonciers, selon disponibilité, pour la construction d'une maison neuve. Non mandaté pour réaliser la vente (loi du 2 janvier 1970 n°70-9). Visuels non contractuels. Voir détails en agence.Cette annonce a été créée et diffusée avec le logiciel VITAHOME.
Grues
TERRAIN ET MAISONA GRUES sur un terrain de 560 m², Alliance Construction vous propose de réaliser votre projet de construction de maison individuelle d'une surface de 95 m² habitables avec 4 chambres, à partir de 282383€*Demandez une étude gratuite et personnalisée de votre projet de construction !* Cette offre comprend :- Garanties constructeurs (dommages ouvrage, garantie de prix ferme et définitif, garantie de livraison, responsabilité civile et décennale).- Branchements aux compteurs et accès empierré sur 5m linéaires.Habitez une maison spécialement pensée et conçue pour vous et votre famille, prête à décorer, adaptée à vos modes de vie, personnalisée selon vos goûts grâce à un large choix d'options, de matériaux et d'innovations !Contactez Perrick MACCHI au (Numéro supprimé) (Alliance Construction – Agence des Sables-d'Olonne).*Prix indicatif pour un projet de construction d'une maison individuelle. Ne sont pas inclus les frais de branchements, raccordements aux réseaux publics, frais d'adaptations, aménagements intérieurs et extérieurs et options. terrain viabilisé, frais de notaire non compris, frais divers non compris. Garanties et assurances obligatoires incluses. Terrain sélectionné par ALLIANCE auprès de nos partenaires fonciers, selon disponibilité, pour la construction d'une maison neuve. Non mandaté pour réaliser la vente (loi du 2 janvier 1970 n°70-9). Visuels non contractuels. Voir détails en agence.Cette annonce a été créée et diffusée avec le logiciel VITAHOME.
Grues
TERRAIN ET MAISONA GRUES sur un terrain de 560 m², Alliance Construction vous propose de réaliser votre projet de construction de maison individuelle d'une surface de 71.3 m² habitables avec 2 chambres, à partir de 205320€*Demandez une étude gratuite et personnalisée de votre projet de construction !* Cette offre comprend :- Garanties constructeurs (dommages ouvrage, garantie de prix ferme et définitif, garantie de livraison, responsabilité civile et décennale).- Branchements aux compteurs et accès empierré sur 5m linéaires.Habitez une maison spécialement pensée et conçue pour vous et votre famille, prête à décorer, adaptée à vos modes de vie, personnalisée selon vos goûts grâce à un large choix d'options, de matériaux et d'innovations !Contactez Perrick MACCHI au (Numéro supprimé) (Alliance Construction – Agence des Sables-d'Olonne).*Prix indicatif pour un projet de construction d'une maison individuelle. Ne sont pas inclus les frais de branchements, raccordements aux réseaux publics, frais d'adaptations, aménagements intérieurs et extérieurs et options. terrain viabilisé, frais de notaire non compris, frais divers non compris. Garanties et assurances obligatoires incluses. Terrain sélectionné par ALLIANCE auprès de nos partenaires fonciers, selon disponibilité, pour la construction d'une maison neuve. Non mandaté pour réaliser la vente (loi du 2 janvier 1970 n°70-9). Visuels non contractuels. Voir détails en agence.Cette annonce a été créée et diffusée avec le logiciel VITAHOME.
Grues
TERRAIN ET MAISONA GRUES sur un terrain de 560 m², Alliance Construction vous propose de réaliser votre projet de construction de maison individuelle d'une surface de 38.74 m² habitables avec 1 chambres, à partir de 149670€*Demandez une étude gratuite et personnalisée de votre projet de construction !* Cette offre comprend :- Garanties constructeurs (dommages ouvrage, garantie de prix ferme et définitif, garantie de livraison, responsabilité civile et décennale).- Branchements aux compteurs et accès empierré sur 5m linéaires.Habitez une maison spécialement pensée et conçue pour vous et votre famille, prête à décorer, adaptée à vos modes de vie, personnalisée selon vos goûts grâce à un large choix d'options, de matériaux et d'innovations !Contactez Perrick MACCHI au (Numéro supprimé) (Alliance Construction – Agence des Sables-d'Olonne).*Prix indicatif pour un projet de construction d'une maison individuelle. Ne sont pas inclus les frais de branchements, raccordements aux réseaux publics, frais d'adaptations, aménagements intérieurs et extérieurs et options. terrain viabilisé, frais de notaire non compris, frais divers non compris. Garanties et assurances obligatoires incluses. Terrain sélectionné par ALLIANCE auprès de nos partenaires fonciers, selon disponibilité, pour la construction d'une maison neuve. Non mandaté pour réaliser la vente (loi du 2 janvier 1970 n°70-9). Visuels non contractuels. Voir détails en agence.Cette annonce a été créée et diffusée avec le logiciel VITAHOME.
Grues
TERRAINPrix : 64900 €.Sur ce terrain de 562 m² à GRUES, Alliance Construction vous propose de réaliser votre projet de construction de maison individuelle.Avec Alliance Construction, habitez une maison spécialement pensée et conçue pour vous et votre famille, prête à décorer, adaptée à vos modes de vie, personnalisée selon vos goûts grâce à un large choix d'options, de matériaux et d'innovations ! Demandez une étude gratuite et personnalisée de votre projet de construction sur ce terrain à GRUES !Contactez Perrick MACCHI au (Numéro supprimé) (Alliance Construction – Agence des Sables-d'Olonne).Prix hors frais de notaire. Terrain sélectionné par ALLIANCE auprès de nos partenaires fonciers, selon disponibilité, pour la construction d'une maison neuve. Non mandaté pour réaliser la vente (loi du 2 janvier 1970 n°70-9). Visuels non contractuels. Voir détails en agence.Cette annonce a été créée et diffusée avec le logiciel VITAHOME.
Grues
TERRAINPrix : 64400 €.Sur ce terrain de 560 m² à GRUES, Alliance Construction vous propose de réaliser votre projet de construction de maison individuelle.Avec Alliance Construction, habitez une maison spécialement pensée et conçue pour vous et votre famille, prête à décorer, adaptée à vos modes de vie, personnalisée selon vos goûts grâce à un large choix d'options, de matériaux et d'innovations ! Demandez une étude gratuite et personnalisée de votre projet de construction sur ce terrain à GRUES !Contactez Perrick MACCHI au (Numéro supprimé) (Alliance Construction – Agence des Sables-d'Olonne).Prix hors frais de notaire. Terrain sélectionné par ALLIANCE auprès de nos partenaires fonciers, selon disponibilité, pour la construction d'une maison neuve. Non mandaté pour réaliser la vente (loi du 2 janvier 1970 n°70-9). Visuels non contractuels. Voir détails en agence.Cette annonce a été créée et diffusée avec le logiciel VITAHOME.
Grues
TERRAIN ET MAISONA GRUES sur un terrain de 480 m², Alliance Construction vous propose de réaliser votre projet de construction de maison individuelle d'une surface de 87.91 m² habitables avec 3 chambres, à partir de 207154€*Demandez une étude gratuite et personnalisée de votre projet de construction !* Cette offre comprend :- Garanties constructeurs (dommages ouvrage, garantie de prix ferme et définitif, garantie de livraison, responsabilité civile et décennale).- Branchements aux compteurs et accès empierré sur 5m linéaires.Habitez une maison spécialement pensée et conçue pour vous et votre famille, prête à décorer, adaptée à vos modes de vie, personnalisée selon vos goûts grâce à un large choix d'options, de matériaux et d'innovations !Contactez Perrick MACCHI au (Numéro supprimé) (Alliance Construction – Agence des Sables-d'Olonne).*Prix indicatif pour un projet de construction d'une maison individuelle. Ne sont pas inclus les frais de branchements, raccordements aux réseaux publics, frais d'adaptations, aménagements intérieurs et extérieurs et options. terrain viabilisé, frais de notaire non compris, frais divers non compris. Garanties et assurances obligatoires incluses. Terrain sélectionné par ALLIANCE auprès de nos partenaires fonciers, selon disponibilité, pour la construction d'une maison neuve. Non mandaté pour réaliser la vente (loi du 2 janvier 1970 n°70-9). Visuels non contractuels. Voir détails en agence.Cette annonce a été créée et diffusée avec le logiciel VITAHOME.
L’actualité immobilière à Lairoux
27/11/2023
02/11/2023
30/10/2023
20/10/2023
16/10/2023
16/10/2023