Terrain à vendre

257575 €
70 m²
Le Fenouiller
Vendée (85)
TERRAIN ET MAISON
Réf externe: 4928267
Annonce publiée le 29 octobre 2025

Images

Description

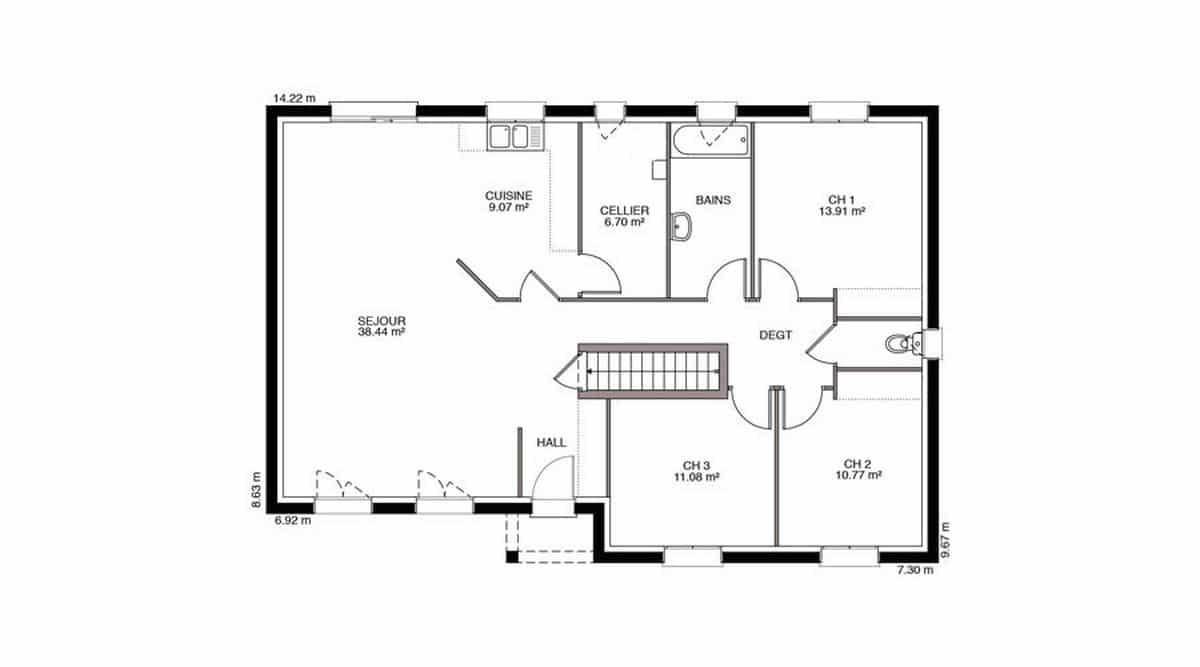
Sur ce terrain, nous vous proposons cette maison neuve : la Dompierroise, une maison au concept original et agréable.

La Dompierroise est une intéressante maison traditionnelle de plain-pied dont l’originalité tient au fait qu’elle se compose de deux corps de bâtiment en décalé. Ce qui permet une délimitation des espaces intéressante et une organisation optimisée.

Avec une surface de 70 m², cette maison dispose de 2 chambres et de 3 pièces, offrant ainsi un espace de vie confortable et fonctionnel. Le salon-séjour-cuisine spacieux est idéal pour les moments en famille ou entre amis. Un grand garage intégré est inclus, ajoutant une touche de praticité supplémentaire.

Cette maison neuve est basse consommation et conforme à la RE2020, garantissant des performances énergétiques optimales et un respect des normes environnementales actuelles.

Les options les plus demandées par nos clients pour ce modèle incluent :
- Enduit bi-ton
- Plancher chauffant
- Sous-sol

Maisons Privat, constructeur centenaire avec les meilleurs avis clients de la région, vous propose cette maison qui saura répondre à toutes vos attentes en termes de confort et de qualité de vie. Ne manquez pas cette opportunité unique de devenir propriétaire d'une maison moderne et économe en énergie.

CONTACTER

Logement susceptibles de vous intéresser

228 254 €
360 m²

L'Aiguillon-sur-Vie

TERRAIN ET MAISON

A L'AIGUILLON-SUR-VIE sur un terrain de 360 m², Alliance Construction vous propose de réaliser votre projet de construction de maison individuelle d'une surface de 87.91 m² habitables avec 3 chambres, à partir de 228254€*Informations du terrain : Alliance Construction a sélectionné ce terrain pour votre projet de ConstructionÀ proximité de Saint Gilles Croix de Vie, ce terrain de 360m² bénéficie d'une belle luminosité. Il est idéalement orienté Sud Arrière. Construisez avec ALLIANCE CONSTRUCTION votre Résidence principale !Imaginons ensemble votre projet de maison sur cette parcelle située viabilisé, proche du centre, 5 minutes à pied, près de la mer, à proximité des écoles.Terrain à 70100€ (Hors frais)NON MANDATÉ POUR LA VENTE DES TERRAINSALLIANCE CONSTRUCTION n’est pas chargé de réaliser la vente des terrains à bâtir mentionnés dans ces annonces.ALLIANCE CONSTRUCTION agit seulement en qualité de constructeur.Demandez une étude gratuite et personnalisée de votre projet de construction !* Cette offre comprend :- Garanties constructeurs (dommages ouvrage, garantie de prix ferme et définitif, garantie de livraison, responsabilité civile et décennale).- Branchements aux compteurs et accès empierré sur 5m linéaires.Habitez une maison spécialement pensée et conçue pour vous et votre famille, prête à décorer, adaptée à vos modes de vie, personnalisée selon vos goûts grâce à un large choix d'options, de matériaux et d'innovations !Contactez Perrick MACCHI au (Numéro supprimé) (Alliance Construction – Agence des Sables-d'Olonne).*Prix indicatif pour un projet de construction d'une maison individuelle. Ne sont pas inclus les frais de branchements, raccordements aux réseaux publics, frais d'adaptations, aménagements intérieurs et extérieurs et options. terrain viabilisé, frais de notaire non compris, frais divers non compris. Garanties et assurances obligatoires incluses. Terrain sélectionné par ALLIANCE auprès de nos partenaires fonciers, selon disponibilité, pour la construction d'une maison neuve. Non mandaté pour réaliser la vente (loi du 2 janvier 1970 n°70-9). Visuels non contractuels. Voir détails en agence.Cette annonce a été créée et diffusée avec le logiciel VITAHOME.

211 020 €
360 m²

L'Aiguillon-sur-Vie

TERRAIN ET MAISON

A L'AIGUILLON-SUR-VIE sur un terrain de 360 m², Alliance Construction vous propose de réaliser votre projet de construction de maison individuelle d'une surface de 71.3 m² habitables avec 2 chambres, à partir de 211020€*Informations du terrain : Alliance Construction a sélectionné ce terrain pour votre projet de ConstructionÀ proximité de Saint Gilles Croix de Vie, ce terrain de 360m² bénéficie d'une belle luminosité. Il est idéalement orienté Sud Arrière. Construisez avec ALLIANCE CONSTRUCTION votre Résidence principale !Imaginons ensemble votre projet de maison sur cette parcelle située viabilisé, proche du centre, 5 minutes à pied, près de la mer, à proximité des écoles.Terrain à 70100€ (Hors frais)NON MANDATÉ POUR LA VENTE DES TERRAINSALLIANCE CONSTRUCTION n’est pas chargé de réaliser la vente des terrains à bâtir mentionnés dans ces annonces.ALLIANCE CONSTRUCTION agit seulement en qualité de constructeur.Demandez une étude gratuite et personnalisée de votre projet de construction !* Cette offre comprend :- Garanties constructeurs (dommages ouvrage, garantie de prix ferme et définitif, garantie de livraison, responsabilité civile et décennale).- Branchements aux compteurs et accès empierré sur 5m linéaires.Habitez une maison spécialement pensée et conçue pour vous et votre famille, prête à décorer, adaptée à vos modes de vie, personnalisée selon vos goûts grâce à un large choix d'options, de matériaux et d'innovations !Contactez Perrick MACCHI au (Numéro supprimé) (Alliance Construction – Agence des Sables-d'Olonne).*Prix indicatif pour un projet de construction d'une maison individuelle. Ne sont pas inclus les frais de branchements, raccordements aux réseaux publics, frais d'adaptations, aménagements intérieurs et extérieurs et options. terrain viabilisé, frais de notaire non compris, frais divers non compris. Garanties et assurances obligatoires incluses. Terrain sélectionné par ALLIANCE auprès de nos partenaires fonciers, selon disponibilité, pour la construction d'une maison neuve. Non mandaté pour réaliser la vente (loi du 2 janvier 1970 n°70-9). Visuels non contractuels. Voir détails en agence.Cette annonce a été créée et diffusée avec le logiciel VITAHOME.

211 800 €
360 m²

L'Aiguillon-sur-Vie

TERRAIN ET MAISON

A L'AIGUILLON-SUR-VIE sur un terrain de 360 m², Alliance Construction vous propose de réaliser votre projet de construction de maison individuelle d'une surface de 77.93 m² habitables avec 3 chambres, à partir de 211800€*Informations du terrain : Alliance Construction a sélectionné ce terrain pour votre projet de ConstructionÀ proximité de Saint Gilles Croix de Vie, ce terrain de 360m² bénéficie d'une belle luminosité. Il est idéalement orienté Sud Arrière. Construisez avec ALLIANCE CONSTRUCTION votre Résidence principale !Imaginons ensemble votre projet de maison sur cette parcelle située viabilisé, proche du centre, 5 minutes à pied, près de la mer, à proximité des écoles.Terrain à 70100€ (Hors frais)NON MANDATÉ POUR LA VENTE DES TERRAINSALLIANCE CONSTRUCTION n’est pas chargé de réaliser la vente des terrains à bâtir mentionnés dans ces annonces.ALLIANCE CONSTRUCTION agit seulement en qualité de constructeur.Demandez une étude gratuite et personnalisée de votre projet de construction !* Cette offre comprend :- Garanties constructeurs (dommages ouvrage, garantie de prix ferme et définitif, garantie de livraison, responsabilité civile et décennale).- Branchements aux compteurs et accès empierré sur 5m linéaires.Habitez une maison spécialement pensée et conçue pour vous et votre famille, prête à décorer, adaptée à vos modes de vie, personnalisée selon vos goûts grâce à un large choix d'options, de matériaux et d'innovations !Contactez Perrick MACCHI au (Numéro supprimé) (Alliance Construction – Agence des Sables-d'Olonne).*Prix indicatif pour un projet de construction d'une maison individuelle. Ne sont pas inclus les frais de branchements, raccordements aux réseaux publics, frais d'adaptations, aménagements intérieurs et extérieurs et options. terrain viabilisé, frais de notaire non compris, frais divers non compris. Garanties et assurances obligatoires incluses. Terrain sélectionné par ALLIANCE auprès de nos partenaires fonciers, selon disponibilité, pour la construction d'une maison neuve. Non mandaté pour réaliser la vente (loi du 2 janvier 1970 n°70-9). Visuels non contractuels. Voir détails en agence.Cette annonce a été créée et diffusée avec le logiciel VITAHOME.

222 925 €
408 m²

Commequiers

TERRAIN ET MAISON

Vous pouvez profitez du PZT sur ce projet :A COMMEQUIERS sur un terrain de 408 m², Alliance Construction vous propose de réaliser votre projet de construction de maison individuelle d'une surface de 88.04 m² habitables avec 3 chambres, à partir de 222925€*Informations du terrain : Venez découvrir ce terrain de 408 m² situé à Commequiers, une ville dynamique et attractive. Vous bénéficierez de la proximité immédiate de tous les commerces, de la supérette, de la station-service, des médecins et bien plus encore. À seulement 15 minutes de la côte, cet emplacement vous offre un cadre de vie agréable et pratique.Caractéristiques du terrain :Superficie : 408 m²Situé en lotissementTerrain viabilisé (eau, électricité, tout à l'égout)Proche des commodités : commerces, écoles, servicesÀ 15 minutes des plagesNe manquez pas cette belle opportunité d'acquérir un terrain dans un environnement idéal, à proximité de toutes les commodités et des plages !Pour plus d’informations ou pour organiser une visite, contactez-nous dès aujourd'hui !Demandez une étude gratuite et personnalisée de votre projet de construction !* Cette offre comprend :- Garanties constructeurs (dommages ouvrage, garantie de prix ferme et définitif, garantie de livraison, responsabilité civile et décennale).- Branchements aux compteurs et accès empierré sur 5m linéaires.Habitez une maison spécialement pensée et conçue pour vous et votre famille, prête à décorer, adaptée à vos modes de vie, personnalisée selon vos goûts grâce à un large choix d'options, de matériaux et d'innovations !Contactez Perrick MACCHI au (Numéro supprimé) (Alliance Construction – Agence des Sables-d'Olonne).*Prix indicatif pour un projet de construction d'une maison individuelle. Ne sont pas inclus les frais de branchements, raccordements aux réseaux publics, frais d'adaptations, aménagements intérieurs et extérieurs et options. terrain viabilisé, frais de notaire non compris, frais divers non compris. Garanties et assurances obligatoires incluses. Terrain sélectionné par ALLIANCE auprès de nos partenaires fonciers, selon disponibilité, pour la construction d'une maison neuve. Non mandaté pour réaliser la vente (loi du 2 janvier 1970 n°70-9). Visuels non contractuels. Voir détails en agence.Cette annonce a été créée et diffusée avec le logiciel VITAHOME.

308 300 €
614 m²

Bretignolles-sur-Mer

TERRAIN ET MAISON

A BRETIGNOLLES-SUR-MER sur un terrain de 614 m², Alliance Construction vous propose de réaliser votre projet de construction de maison individuelle d'une surface de 90 m² habitables avec 3 chambres, à partir de 308300€*Informations du terrain : Ce terrain est situé dans le quartier de la Grande Sauzaie, dans un secteur récent et calme, à l'écart des lotissements traditionnels. Il bénéficie d’une bonne orientation, idéale pour la construction de votre future maison.Le terrain est déjà viabilisé, vous permettant de commencer votre projet sans attendre les raccordements aux différents réseaux (eau, électricité, téléphone, etc.).Demandez une étude gratuite et personnalisée de votre projet de construction !* Cette offre comprend :- Garanties constructeurs (dommages ouvrage, garantie de prix ferme et définitif, garantie de livraison, responsabilité civile et décennale).- Branchements aux compteurs et accès empierré sur 5m linéaires.Habitez une maison spécialement pensée et conçue pour vous et votre famille, prête à décorer, adaptée à vos modes de vie, personnalisée selon vos goûts grâce à un large choix d'options, de matériaux et d'innovations !Contactez Perrick MACCHI au (Numéro supprimé) (Alliance Construction – Agence des Sables-d'Olonne).*Prix indicatif pour un projet de construction d'une maison individuelle. Ne sont pas inclus les frais de branchements, raccordements aux réseaux publics, frais d'adaptations, aménagements intérieurs et extérieurs et options. terrain viabilisé, frais de notaire non compris, frais divers non compris. Garanties et assurances obligatoires incluses. Terrain sélectionné par ALLIANCE auprès de nos partenaires fonciers, selon disponibilité, pour la construction d'une maison neuve. Non mandaté pour réaliser la vente (loi du 2 janvier 1970 n°70-9). Visuels non contractuels. Voir détails en agence.Cette annonce a été créée et diffusée avec le logiciel VITAHOME.

356 100 €
614 m²

Bretignolles-sur-Mer

TERRAIN ET MAISON

A BRETIGNOLLES-SUR-MER sur un terrain de 614 m², Alliance Construction vous propose de réaliser votre projet de construction de maison individuelle d'une surface de 108.08 m² habitables avec 4 chambres, à partir de 356100€*Informations du terrain : Ce terrain est situé dans le quartier de la Grande Sauzaie, dans un secteur récent et calme, à l'écart des lotissements traditionnels. Il bénéficie d’une bonne orientation, idéale pour la construction de votre future maison.Le terrain est déjà viabilisé, vous permettant de commencer votre projet sans attendre les raccordements aux différents réseaux (eau, électricité, téléphone, etc.).Demandez une étude gratuite et personnalisée de votre projet de construction !* Cette offre comprend :- Garanties constructeurs (dommages ouvrage, garantie de prix ferme et définitif, garantie de livraison, responsabilité civile et décennale).- Branchements aux compteurs et accès empierré sur 5m linéaires.Habitez une maison spécialement pensée et conçue pour vous et votre famille, prête à décorer, adaptée à vos modes de vie, personnalisée selon vos goûts grâce à un large choix d'options, de matériaux et d'innovations !Contactez Perrick MACCHI au (Numéro supprimé) (Alliance Construction – Agence des Sables-d'Olonne).*Prix indicatif pour un projet de construction d'une maison individuelle. Ne sont pas inclus les frais de branchements, raccordements aux réseaux publics, frais d'adaptations, aménagements intérieurs et extérieurs et options. terrain viabilisé, frais de notaire non compris, frais divers non compris. Garanties et assurances obligatoires incluses. Terrain sélectionné par ALLIANCE auprès de nos partenaires fonciers, selon disponibilité, pour la construction d'une maison neuve. Non mandaté pour réaliser la vente (loi du 2 janvier 1970 n°70-9). Visuels non contractuels. Voir détails en agence.Cette annonce a été créée et diffusée avec le logiciel VITAHOME.

371 600 €
324 m²

Bretignolles-sur-Mer

TERRAIN ET MAISON

A BRETIGNOLLES-SUR-MER sur un terrain de 324 m², Alliance Construction vous propose de réaliser votre projet de construction de maison individuelle d'une surface de 119.55 m² habitables avec 4 chambres, à partir de 371600€*Informations du terrain : Alliance Construction vous propose ce terrain de 324 m², situé à proximité immédiate de la plage et des commerces. Ce terrain est viabilisé et disponible dès maintenant, offrant une façade de 15 mètres linéaires. Idéalement exposé sur l'arrière, il constitue une belle opportunité pour réaliser votre projet immobilier. Le prix est de 109 000 €.Demandez une étude gratuite et personnalisée de votre projet de construction !* Cette offre comprend :- Garanties constructeurs (dommages ouvrage, garantie de prix ferme et définitif, garantie de livraison, responsabilité civile et décennale).- Branchements aux compteurs et accès empierré sur 5m linéaires.Habitez une maison spécialement pensée et conçue pour vous et votre famille, prête à décorer, adaptée à vos modes de vie, personnalisée selon vos goûts grâce à un large choix d'options, de matériaux et d'innovations !Contactez Perrick MACCHI au (Numéro supprimé) (Alliance Construction – Agence des Sables-d'Olonne).*Prix indicatif pour un projet de construction d'une maison individuelle. Ne sont pas inclus les frais de branchements, raccordements aux réseaux publics, frais d'adaptations, aménagements intérieurs et extérieurs et options. terrain viabilisé, frais de notaire non compris, frais divers non compris. Garanties et assurances obligatoires incluses. Terrain sélectionné par ALLIANCE auprès de nos partenaires fonciers, selon disponibilité, pour la construction d'une maison neuve. Non mandaté pour réaliser la vente (loi du 2 janvier 1970 n°70-9). Visuels non contractuels. Voir détails en agence.Cette annonce a été créée et diffusée avec le logiciel VITAHOME.

250 700 €
324 m²

Bretignolles-sur-Mer

TERRAIN ET MAISON

A BRETIGNOLLES-SUR-MER sur un terrain de 324 m², Alliance Construction vous propose de réaliser votre projet de construction de maison individuelle d'une surface de 77.93 m² habitables avec 3 chambres, à partir de 250700€*Informations du terrain : Alliance Construction vous propose ce terrain de 324 m², situé à proximité immédiate de la plage et des commerces. Ce terrain est viabilisé et disponible dès maintenant, offrant une façade de 15 mètres linéaires. Idéalement exposé sur l'arrière, il constitue une belle opportunité pour réaliser votre projet immobilier. Le prix est de 109 000 €.Demandez une étude gratuite et personnalisée de votre projet de construction !* Cette offre comprend :- Garanties constructeurs (dommages ouvrage, garantie de prix ferme et définitif, garantie de livraison, responsabilité civile et décennale).- Branchements aux compteurs et accès empierré sur 5m linéaires.Habitez une maison spécialement pensée et conçue pour vous et votre famille, prête à décorer, adaptée à vos modes de vie, personnalisée selon vos goûts grâce à un large choix d'options, de matériaux et d'innovations !Contactez Perrick MACCHI au (Numéro supprimé) (Alliance Construction – Agence des Sables-d'Olonne).*Prix indicatif pour un projet de construction d'une maison individuelle. Ne sont pas inclus les frais de branchements, raccordements aux réseaux publics, frais d'adaptations, aménagements intérieurs et extérieurs et options. terrain viabilisé, frais de notaire non compris, frais divers non compris. Garanties et assurances obligatoires incluses. Terrain sélectionné par ALLIANCE auprès de nos partenaires fonciers, selon disponibilité, pour la construction d'une maison neuve. Non mandaté pour réaliser la vente (loi du 2 janvier 1970 n°70-9). Visuels non contractuels. Voir détails en agence.Cette annonce a été créée et diffusée avec le logiciel VITAHOME.

208 700 €
408 m²

Commequiers

TERRAIN ET MAISON

A COMMEQUIERS sur un terrain de 408 m², Alliance Construction vous propose de réaliser votre projet de construction de maison individuelle d'une surface de 77.93 m² habitables avec 3 chambres, à partir de 208700€*Informations du terrain : Venez découvrir ce terrain de 408 m² situé à Commequiers, une ville dynamique et attractive. Vous bénéficierez de la proximité immédiate de tous les commerces, de la supérette, de la station-service, des médecins et bien plus encore. À seulement 15 minutes de la côte, cet emplacement vous offre un cadre de vie agréable et pratique.Caractéristiques du terrain :Superficie : 408 m²Situé en lotissementTerrain viabilisé (eau, électricité, tout à l'égout)Proche des commodités : commerces, écoles, servicesÀ 15 minutes des plagesNe manquez pas cette belle opportunité d'acquérir un terrain dans un environnement idéal, à proximité de toutes les commodités et des plages !Pour plus d’informations ou pour organiser une visite, contactez-nous dès aujourd'hui !Demandez une étude gratuite et personnalisée de votre projet de construction !* Cette offre comprend :- Garanties constructeurs (dommages ouvrage, garantie de prix ferme et définitif, garantie de livraison, responsabilité civile et décennale).- Branchements aux compteurs et accès empierré sur 5m linéaires.Habitez une maison spécialement pensée et conçue pour vous et votre famille, prête à décorer, adaptée à vos modes de vie, personnalisée selon vos goûts grâce à un large choix d'options, de matériaux et d'innovations !Contactez Perrick MACCHI au (Numéro supprimé) (Alliance Construction – Agence des Sables-d'Olonne).*Prix indicatif pour un projet de construction d'une maison individuelle. Ne sont pas inclus les frais de branchements, raccordements aux réseaux publics, frais d'adaptations, aménagements intérieurs et extérieurs et options. terrain viabilisé, frais de notaire non compris, frais divers non compris. Garanties et assurances obligatoires incluses. Terrain sélectionné par ALLIANCE auprès de nos partenaires fonciers, selon disponibilité, pour la construction d'une maison neuve. Non mandaté pour réaliser la vente (loi du 2 janvier 1970 n°70-9). Visuels non contractuels. Voir détails en agence.Cette annonce a été créée et diffusée avec le logiciel VITAHOME.

L’actualité immobilière à Le Fenouiller

Image du post Pourquoi acheter un terrain en lotissement ? 27/11/2023
Lire l’article
Pourquoi acheter un terrain en lotissement ?
Image du post Vendre son terrain à un promoteur : comment procéder ? 02/11/2023
Lire l’article
Vendre son terrain à un promoteur : comment procéder ?
Image du post Diviser le terrain de sa maison pour le vendre : pourquoi et comment ? 30/10/2023
Lire l’article
Diviser le terrain de sa maison pour le vendre : pourquoi et comment ?
Image du post Acheter un terrain viabilisé : quels avantages ? 20/10/2023
Lire l’article
Acheter un terrain viabilisé : quels avantages ?
Image du post Les 7 étapes incontournables pour bien vendre votre terrain constructible 16/10/2023
Lire l’article
Les 7 étapes incontournables pour bien vendre votre terrain constructible
Image du post 5 points clés à vérifier pour l’achat d’un terrain constructible  16/10/2023
Lire l’article
5 points clés à vérifier pour l’achat d’un terrain constructible