Maison à construire à Le Fenouiller (85800)
Images
Description
***** AU CENTRE BOURG *****
Le Fenouiller : maison T2 (61 m²) à vendre
IDÉALEMENT SITUÉE - MAISON 2 PIÈCES NEUVE
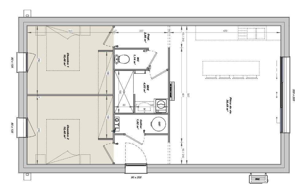
À 3 km de la côte atlantique, en vente idéalement située dans Le Fenouiller (85800), découvrez cette maison de 2 pièces de plain-pied de 61 m² et de 401 m² de terrain. Conçue de plain-pied, elle inclut deux chambres, une cuisine et une salle de bains.
La maison est neuve.
Cette maison se trouve dans un secteur recherché. Il y a l'École Primaire Publique le Petit Prince et l'École Primaire Privée Sainte Marie à moins de 10 minutes à pied. Niveau transports, on trouve deux gares (Saint-Hilaire-de-Riez et Saint-Gilles-Croix-de-Vie) à moins de 10 minutes en voiture. Il y a un tennis, une boulangerie, un commerce et une supérette à quelques minutes à peine.
Elle est à vendre pour la somme de 219 900 €.
Contactez notre agence (Nicolas RISSELIN : (Numéro supprimé)) pour tout renseignement sur la maison, sur les modalités de vente ou sur les démarches à suivre. LMP Constructeur Challans est là pour vous accompagner à toutes les étapes de votre projet.
***** AU CENTRE BOURG *****
Logement susceptibles de vous intéresser
Nous vous proposons de découvrir aussi cette sélection de logements situés à moins de 10km de Le Fenouiller et qui seraient susceptibles de vous intéresser.
Givrand
TERRAIN ET MAISONA GIVRAND sur un terrain de 225 m², Alliance Construction vous propose de réaliser votre projet de construction de maison individuelle d'une surface de 80 m² habitables avec 3 chambres, à partir de 225072€*Demandez une étude gratuite et personnalisée de votre projet de construction !* Cette offre comprend :- Garanties constructeurs (dommages ouvrage, garantie de prix ferme et définitif, garantie de livraison, responsabilité civile et décennale).- Branchements aux compteurs et accès empierré sur 5m linéaires.Habitez une maison spécialement pensée et conçue pour vous et votre famille, prête à décorer, adaptée à vos modes de vie, personnalisée selon vos goûts grâce à un large choix d'options, de matériaux et d'innovations !Contactez Perrick MACCHI au (Numéro supprimé) (Alliance Construction – Agence des Sables-d'Olonne).*Prix indicatif pour un projet de construction d'une maison individuelle. Ne sont pas inclus les frais de branchements, raccordements aux réseaux publics, frais d'adaptations, aménagements intérieurs et extérieurs et options. terrain viabilisé, frais de notaire non compris, frais divers non compris. Garanties et assurances obligatoires incluses. Terrain sélectionné par ALLIANCE auprès de nos partenaires fonciers, selon disponibilité, pour la construction d'une maison neuve. Non mandaté pour réaliser la vente (loi du 2 janvier 1970 n°70-9). Visuels non contractuels. Voir détails en agence.Cette annonce a été créée et diffusée avec le logiciel VITAHOME.
Givrand
TERRAIN ET MAISONA GIVRAND sur un terrain de 225 m², Alliance Construction vous propose de réaliser votre projet de construction de maison individuelle d'une surface de 95.07 m² habitables avec 3 chambres, à partir de 232600€*Demandez une étude gratuite et personnalisée de votre projet de construction !* Cette offre comprend :- Garanties constructeurs (dommages ouvrage, garantie de prix ferme et définitif, garantie de livraison, responsabilité civile et décennale).- Branchements aux compteurs et accès empierré sur 5m linéaires.Habitez une maison spécialement pensée et conçue pour vous et votre famille, prête à décorer, adaptée à vos modes de vie, personnalisée selon vos goûts grâce à un large choix d'options, de matériaux et d'innovations !Contactez Perrick MACCHI au (Numéro supprimé) (Alliance Construction – Agence des Sables-d'Olonne).*Prix indicatif pour un projet de construction d'une maison individuelle. Ne sont pas inclus les frais de branchements, raccordements aux réseaux publics, frais d'adaptations, aménagements intérieurs et extérieurs et options. terrain viabilisé, frais de notaire non compris, frais divers non compris. Garanties et assurances obligatoires incluses. Terrain sélectionné par ALLIANCE auprès de nos partenaires fonciers, selon disponibilité, pour la construction d'une maison neuve. Non mandaté pour réaliser la vente (loi du 2 janvier 1970 n°70-9). Visuels non contractuels. Voir détails en agence.Cette annonce a été créée et diffusée avec le logiciel VITAHOME.
Saint-Gilles-Croix-de-Vie
TERRAIN ET MAISONSur ce terrain, nous vous proposons cette maison neuve : la Florentaise. Conçue par Maisons Privat, constructeur centenaire avec les meilleurs avis clients de la région, cette maison de 80 m² allie confort et fonctionnalité.Intérieur bien pensé et confort sont les atouts de la Florentaise. Ce modèle de maison traditionnelle de plain-pied propose un intérieur bien organisé où le moindre espace est utilisé, ce qui en fait une demeure très fonctionnelle au style intemporel.La Florentaise, une maison neuve qui adapte ses dimensions à vos envies. Ce modèle se décline en versions d’une superficie allant de 70 à 102 m² et propose de 2 à 4 chambres donnant sur un dégagement. Vous apprécierez les placards équipant toutes les chambres. La taille généreuse de la salle de bain permet de l’équiper si vous le souhaitez d’une douche et d’une baignoire.Du côté de l’espace jour, un grand salon/séjour traversant pour profiter du moindre rayon de soleil. La cuisine ouverte fait de cette pièce de vie un endroit propice pour se retrouver en famille ou entre amis.Les caractéristiques principales de cette maison incluent un garage intégré, une conception basse consommation et une cuisine ouverte. La Florentaise est conforme à la RE2020, garantissant une performance énergétique optimale et des économies sur vos factures d’énergie.Les options les plus demandées par nos clients sont également disponibles : menuiseries en aluminium, toiture en 2 pans ou 4 pans, et grenier sur garage pour encore plus de rangement et de style.Ne manquez pas cette opportunité de construire la maison de vos rêves avec Maisons Privat, un constructeur de confiance. Contactez-nous dès aujourd’hui pour plus d’informations !
Commequiers
TERRAIN ET MAISONSur ce terrain, nous vous proposons cette superbe maison de plain-pied, alliant confort, modernité et praticité, idéale pour une famille en quête de bien-être.Avec son agencement optimisé, cette maison vous offre une spacieuse pièce de vie baignée de lumière naturelle, comprenant un séjour convivial et une cuisine ouverte fonctionnelle, parfaite pour des moments en famille ou entre amis.L’espace nuit se compose de trois belles chambres offrant confort et sérénité, d’une salle d’eau moderne et de WC séparés pour plus de praticité.Un garage intégré vient compléter ce bien, idéal pour stationner un véhicule ou disposer d’un espace de rangement supplémentaire.
Commequiers
TERRAINDécouvrez ce terrain d’exception de 322 m², viabilisé, situé dans le charmant lotissement de Commequiers, dans le département de la Vendée. Idéal pour concrétiser votre projet de construction de maison, cet espace généreux offre une opportunité unique de bâtir votre havre de paix. Le cadre paisible et ensoleillé de la commune vous promet une qualité de vie inestimable, avec la proximité d’axes routiers majeurs facilitant vos déplacements. Commequiers est une ville dynamique au cœur du Pays de la Loire, réputée pour ses commodités accessibles, ses écoles à proximité et son atmosphère conviviale. À quelques pas, vous découvrirez des commerces de proximité, ainsi que des infrastructures qui rendent la vie quotidienne agréable. La beauté naturelle de la région, aux abords de la mer, renforce l’attrait de ce terrain. Ne manquez pas cette occasion rare d’investir dans un emplacement privilégié qui saura séduire les amoureux de la nature tout en restant proche des services essentiels. Ce terrain présente un potentiel exceptionnel pour réaliser votre projet de vie. N’attendez plus et envisagez cette opportunité d’achat unique dès aujourd’hui. À noter qu’en tant que constructeur, nous ne sommes pas mandatés pour réaliser la vente de ce terrain.
Commequiers
TERRAIN ET MAISONA COMMEQUIERS sur un terrain de 408 m², Alliance Construction vous propose de réaliser votre projet de construction de maison individuelle d'une surface de 77.93 m² habitables avec 3 chambres, à partir de 208700€*Informations du terrain : Venez découvrir ce terrain de 408 m² situé à Commequiers, une ville dynamique et attractive. Vous bénéficierez de la proximité immédiate de tous les commerces, de la supérette, de la station-service, des médecins et bien plus encore. À seulement 15 minutes de la côte, cet emplacement vous offre un cadre de vie agréable et pratique.Caractéristiques du terrain :Superficie : 408 m²Situé en lotissementTerrain viabilisé (eau, électricité, tout à l'égout)Proche des commodités : commerces, écoles, servicesÀ 15 minutes des plagesNe manquez pas cette belle opportunité d'acquérir un terrain dans un environnement idéal, à proximité de toutes les commodités et des plages !Pour plus d’informations ou pour organiser une visite, contactez-nous dès aujourd'hui !Demandez une étude gratuite et personnalisée de votre projet de construction !* Cette offre comprend :- Garanties constructeurs (dommages ouvrage, garantie de prix ferme et définitif, garantie de livraison, responsabilité civile et décennale).- Branchements aux compteurs et accès empierré sur 5m linéaires.Habitez une maison spécialement pensée et conçue pour vous et votre famille, prête à décorer, adaptée à vos modes de vie, personnalisée selon vos goûts grâce à un large choix d'options, de matériaux et d'innovations !Contactez Perrick MACCHI au (Numéro supprimé) (Alliance Construction – Agence des Sables-d'Olonne).*Prix indicatif pour un projet de construction d'une maison individuelle. Ne sont pas inclus les frais de branchements, raccordements aux réseaux publics, frais d'adaptations, aménagements intérieurs et extérieurs et options. terrain viabilisé, frais de notaire non compris, frais divers non compris. Garanties et assurances obligatoires incluses. Terrain sélectionné par ALLIANCE auprès de nos partenaires fonciers, selon disponibilité, pour la construction d'une maison neuve. Non mandaté pour réaliser la vente (loi du 2 janvier 1970 n°70-9). Visuels non contractuels. Voir détails en agence.Cette annonce a été créée et diffusée avec le logiciel VITAHOME.
L'Aiguillon-sur-Vie
TERRAIN ET MAISONA L'AIGUILLON-SUR-VIE sur un terrain de 375 m², Alliance Construction vous propose de réaliser votre projet de construction de maison individuelle d'une surface de 94.48 m² habitables avec 3 chambres, à partir de 246700€*Demandez une étude gratuite et personnalisée de votre projet de construction !* Cette offre comprend :- Garanties constructeurs (dommages ouvrage, garantie de prix ferme et définitif, garantie de livraison, responsabilité civile et décennale).- Branchements aux compteurs et accès empierré sur 5m linéaires.Habitez une maison spécialement pensée et conçue pour vous et votre famille, prête à décorer, adaptée à vos modes de vie, personnalisée selon vos goûts grâce à un large choix d'options, de matériaux et d'innovations !Contactez Perrick MACCHI au (Numéro supprimé) (Alliance Construction – Agence des Sables-d'Olonne).*Prix indicatif pour un projet de construction d'une maison individuelle. Ne sont pas inclus les frais de branchements, raccordements aux réseaux publics, frais d'adaptations, aménagements intérieurs et extérieurs et options. terrain viabilisé, frais de notaire non compris, frais divers non compris. Garanties et assurances obligatoires incluses. Terrain sélectionné par ALLIANCE auprès de nos partenaires fonciers, selon disponibilité, pour la construction d'une maison neuve. Non mandaté pour réaliser la vente (loi du 2 janvier 1970 n°70-9). Visuels non contractuels. Voir détails en agence.Cette annonce a été créée et diffusée avec le logiciel VITAHOME.
Commequiers
TERRAINSitué sur la charmante commune de Commequiers, ce terrain viabilisé de 414 m² bénéficie d’une excellente exposition, idéale pour votre futur projet de construction. Vous serez séduit par son environnement calme, offrant un cadre de vie agréable et paisible, tout en restant proche des services et commodités du secteur. // Réf. : T213651. Prix terrain : 64 000 €, hors frais d'agence et de notaire à la charge de l'acquéreur. Ce terrain vous est proposé, par nos partenaires fonciers, dans le cadre d'un projet de construction avec nous. Les informations sur les risques auxquels ce bien est exposé sont disponibles sur le site Géorisques (www.georisques.gouv.fr).
Commequiers
TERRAINSitué sur la charmante commune de Commequiers, ce terrain viabilisé de 414 m² bénéficie d’une excellente exposition, idéale pour votre futur projet de construction. Vous serez séduit par son environnement calme, offrant un cadre de vie agréable et paisible, tout en restant proche des services et commodités du secteur. // Réf. : T213651. Prix terrain : 64 000 €, hors frais d'agence et de notaire à la charge de l'acquéreur. Ce terrain vous est proposé, par nos partenaires fonciers, dans le cadre d'un projet de construction avec nous. Les informations sur les risques auxquels ce bien est exposé sont disponibles sur le site Géorisques (www.georisques.gouv.fr).
L’actualité immobilière à Le Fenouiller
27/11/2023
02/11/2023
30/10/2023
20/10/2023
16/10/2023
16/10/2023