Images
Description
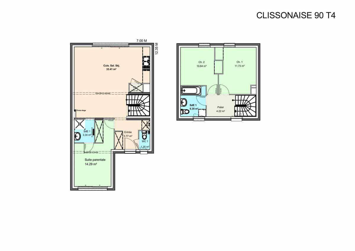
Sur ce terrain, nous vous proposons cette maison neuve : la Clissonnaise, une charmante maison à étage de 110 m². Conçue par Maisons Privat, constructeur centenaire avec les meilleurs avis clients de la région, cette demeure est idéale pour les primo-accédants, les couples ou les familles.
Très jolie maison traditionnelle, la Clissonnaise se compose de 4 chambres et de 4 pièces, offrant ainsi un espace de vie confortable et fonctionnel. Grâce à ses baies coulissantes, la maison bénéficie d'une luminosité naturelle exceptionnelle. La dalle étage en béton assure une solidité et une isolation acoustique optimales.
Cette maison est conforme à la norme RT2020, garantissant une basse consommation énergétique et un confort thermique tout au long de l'année. De plus, elle est construite sur un terrain étroit, optimisant ainsi l'utilisation de l'espace disponible.
Les options les plus demandées par nos clients sont également disponibles pour personnaliser votre maison selon vos besoins : une deuxième salle de bains, une baie à galandage pour un accès fluide à l'extérieur, un carport et un garage accolé.
Achetez votre nouvelle demeure à étage comme vous la souhaitez. La Clissonnaise permet de nombreuses configurations pour s'adapter à la composition de votre famille. Vous pouvez opter pour une suite parentale avec salle d’eau privative si vous le souhaitez. Vous disposerez également d’un grand espace de vie avec cuisine ouverte, parfait pour les moments de convivialité en famille ou entre amis.
Ne manquez pas cette opportunité unique d'acquérir une maison neuve, basse consommation et conforme à la RE2020, construite par un constructeur de renom. Contactez-nous dès aujourd'hui pour plus d'informations et pour planifier une visite.
Logement susceptibles de vous intéresser
Nous vous proposons de découvrir aussi cette sélection de logements situés à moins de 10km de Le Poiré-sur-Vie et qui seraient susceptibles de vous intéresser.

Mouilleron-le-Captif
TERRAINÀ vendre, un terrain de 446 m² idéalement situé dans un lotissement paisible à Mouilleron-le-Captif, une charmante commune de Vendée. Ce terrain viabilisé vous offre l’opportunité rêvée pour la construction de votre maison personnalisée. Profitez d’un cadre de vie agréable, alliant tranquillité et accessibilité, propice à l’épanouissement familial. Située dans le département de la Vendée, Mouilleron-le-Captif se distingue par son ambiance conviviale et ses nombreuses commodités. Vous serez à proximité de diverses attractions locales, notamment des espaces verts, des installations sportives et des commerces. La ville bénéficie également d’une excellente desserte routière, vous permettant de rejoindre facilement les grandes villes de la région. Un environnement idéal pour bâtir votre projet de vie, dans un cadre enchanteur où il fait bon vivre. Ce terrain représente une opportunité unique d’investissement pour votre futur projet de construction. N’hésitez pas à envisager cette chance de concrétiser vos rêves immobiliers. À noter qu’en tant que constructeur, nous ne sommes pas mandatés pour réaliser la vente de ce terrain.

Mouilleron-le-Captif
TERRAIN ET MAISONSur ce terrain, nous vous proposons cette maison neuve : l’Aixoise, un coquet pavillon familial de plain-pied. Disponible en T4 sur une superficie de 80 m², l’Aixoise est une jolie maison traditionnelle qui saura répondre à toutes vos attentes.Une maison neuve idéale pour installer votre petite famille. Vous apprécierez l’espace nuit agrémenté d’un dégagement le rendant véritablement indépendant de la pièce de vie. Il est composé de trois chambres, d’une salle de bain et de w.c. séparés. Le grand séjour traversant est doté d’une cuisine ouverte avec accès au garage intégré. D’une conception pratique et originale tout à la fois, cette demeure a beaucoup d’atouts pour séduire, même les plus exigeants.Les caractéristiques principales de cette maison incluent un toit à 2 pans ou 4 pans, des baies coulissantes pour une luminosité optimale, et un garage intégré. De plus, cette maison neuve est basse consommation et conforme à la RE2020, garantissant ainsi des économies d’énergie et un confort de vie optimal.Les options les plus demandées par nos clients sont également disponibles : une terrasse en béton poreux, un plancher chauffant, des menuiseries en aluminium, et un système de domotique pour une maison connectée et moderne.Construite par Maisons Privat, constructeur centenaire avec les meilleurs avis clients de la région, l’Aixoise est la maison idéale pour votre famille. Ne manquez pas cette opportunité unique de vivre dans une maison neuve, confortable et économe en énergie. Contactez-nous dès aujourd’hui pour plus d’informations !

La Genétouze
TERRAINDécouvrez ce terrain idéalement situé dans le charmant lotissement de La Genétouze, offrant une superficie généreuse de 711 m², parfaitement viabilisé et prêt à accueillir votre projet de construction de maison. Ce bien représente une opportunité exceptionnelle pour concrétiser vos aspirations immobilières dans un cadre paisible et harmonieux. L’environnement verdoyant de la commune et son ambiance conviviale en font un lieu de vie idéal pour les familles et les professionnels en quête de tranquillité. La Genétouze, dans le département de la Vendée, est prisée pour sa convivialité et son dynamisme. La commune bénéficie de la proximité des commodités nécessaires à votre quotidien, telles que commerces, écoles et services de santé. De plus, le secteur regorge d’attractions locales, de paysages naturels remarquables et d’activités de plein air, garantissant un cadre de vie agréable et riche en possibilités. N’attendez plus pour profiter d’un cadre de vie paisible tout en étant à proximité des atouts de la région des Pays de la Loire. Ne laissez pas passer cette occasion unique d’acquérir un terrain prometteur dans un environnement privilégié. Contactez-nous pour plus d’informations. À noter qu’en tant que constructeur, nous ne sommes pas mandatés pour réaliser la vente de ce terrain.

La Genétouze
TERRAIN ET MAISONSur ce terrain, nous vous proposons cette maison neuve : l’INNOVA, une maison contemporaine absolument unique. Avec une surface de 130 m², cette demeure de plain-pied a tout de la maison d’architecte. La composition de ses différents corps en fait une maison d’un aspect magnifique tout en permettant une disposition intérieure extrêmement intéressante.L’INNOVA, le rêve d’une maison unique réalisable, se distingue par ses 4 chambres et ses 4 pièces principales. Vous y trouverez un porche accueillant, un garage accolé et un plancher chauffant, l’une des options les plus demandées par nos clients. Cette maison neuve est basse consommation et conforme à la RE2020, garantissant ainsi une efficacité énergétique optimale et un confort de vie exceptionnel. Construite par Maisons Privat, constructeur centenaire avec les meilleurs avis clients de la région, l’INNOVA est une opportunité rare de vivre dans une maison moderne, élégante et respectueuse de l’environnement.Ne manquez pas cette chance unique de devenir propriétaire d’une maison INNOVA, où chaque détail a été pensé pour votre bien-être et votre satisfaction. Contactez-nous dès aujourd’hui pour plus d’informations et pour planifier une visite.

Le Poiré-sur-Vie
TERRAINDécouvrez une opportunité rare d’acquérir un terrain de 598 m², idéalement situé au cœur du charmant lotissement du Poiré-sur-Vie, dans le département dynamique de la Vendée. Ce terrain viabilisé, prêt pour accueillir votre projet de construction, est parfait pour réaliser la maison de vos rêves. Avec une surface généreuse, ce bien se prête aussi bien à une construction moderne qu’à une architecture plus traditionnelle, vous offrant de nombreuses possibilités pour personnaliser votre futur chez-vous. Le Poiré-sur-Vie, une ville attractive de la région des Pays de la Loire, offre un cadre de vie agréable avec ses commodités à proximité. Profitez de la proximité des commerces, des écoles et des infrastructures sportives qui font de cette ville un lieu de vie apprécié des familles et des jeunes actifs. Sans oublier les nombreux sentiers de randonnée et espaces verts qui invitent à la détente, ainsi que les attractions locales qui sauront séduire tant les résidents que les visiteurs. Ce terrain constitue donc un point de départ idéal pour explorer tout le potentiel de cette belle région. Ne laissez pas passer cette opportunité unique d’investir dans un terrain au potentiel indéniable. Contactez-nous pour envisager cette possibilité d’achat qui pourrait donner vie à votre projet immobilier. À noter qu’en tant que constructeur, nous ne sommes pas mandatés pour réaliser la vente de ce terrain.

Le Poiré-sur-Vie
TERRAIN ET MAISONSur ce terrain, nous vous proposons cette superbe maison de plain-pied, alliant confort, modernité et praticité, idéale pour une famille en quête de bien-être.Avec son agencement optimisé, cette maison vous offre une spacieuse pièce de vie baignée de lumière naturelle, comprenant un séjour convivial et une cuisine ouverte fonctionnelle, parfaite pour des moments en famille ou entre amis.L’espace nuit se compose de trois belles chambres offrant confort et sérénité, d’une salle d’eau moderne et de WC séparés pour plus de praticité.Un garage intégré vient compléter ce bien, idéal pour stationner un véhicule ou disposer d’un espace de rangement supplémentaire.

Bellevigny
TERRAINDécouvrez ce terrain exceptionnel d’une superficie de 537 m², entièrement viabilisé, situé à Belleville-sur-Vie, dans le charmant département de la Vendée. Ce bien est idéal pour la réalisation de votre projet de construction de maison. Profitez d’un cadre de vie alliant tranquillité et dynamisme, parfaitement adapté aux familles et aux amateurs de nature. Belleville-sur-Vie se distingue par sa qualité de vie incontestée et sa proximité avec de nombreuses attractions locales. Vous serez à quelques minutes des plages de la Vendée et des espaces naturels propices aux activités de plein air. La ville dispose également de toutes les commodités nécessaires avec des commerces, des services et des infrastructures scolaires qui facilitent votre quotidien. Ce magnifique secteur offre un cadre harmonieux entre ville et campagne, parfait pour s’épanouir. Ne manquez pas cette opportunité unique d’acquérir un terrain au potentiel exceptionnel dans un environnement privilégié. Contactez-nous pour plus d’informations. À noter qu’en tant que constructeur, nous ne sommes pas mandatés pour réaliser la vente de ce terrain.

Bellevigny
TERRAIN ET MAISONSur ce terrain, nous vous proposons cette maison neuve : l’INNOVA, une maison contemporaine absolument unique. Avec une surface de 130 m², cette demeure de plain-pied a tout de la maison d’architecte. La composition de ses différents corps en fait une maison d’un aspect magnifique tout en permettant une disposition intérieure extrêmement intéressante.L’INNOVA, le rêve d’une maison unique réalisable, se distingue par ses 4 chambres et ses 4 pièces principales. Vous y trouverez un porche accueillant, un garage accolé et un plancher chauffant, l’une des options les plus demandées par nos clients. Cette maison neuve est basse consommation et conforme à la RE2020, garantissant ainsi une efficacité énergétique optimale et un confort de vie exceptionnel. Construite par Maisons Privat, constructeur centenaire avec les meilleurs avis clients de la région, l’INNOVA est une opportunité rare de vivre dans une maison moderne, élégante et respectueuse de l’environnement.Ne manquez pas cette chance unique de devenir propriétaire d’une maison INNOVA, où chaque détail a été pensé pour votre bien-être et votre satisfaction. Contactez-nous dès aujourd’hui pour plus d’informations et pour planifier une visite.

Venansault
TERRAIN ET MAISONTerrain à vendre – Venansault – 400 m² – 60 000 €Belle opportunité à saisir ! Terrain prêt à bâtir dans un secteur agréable, proche du centre et des commodités. Cette charmante maison à étage de 100 m² s’adaptera sur les terrains avec une petite façade. Familiale, elle vous offre au rez-de-chaussée un bel espace de vie avec une cuisine ouverte, un cellier et un accès direct au garage, une chambre parentale avec placards, salle d’eau et wc séparés. A l’étage, un dégagement dessert trois chambres avec rangements, une salle de bains avec wc. Pour vous assurer un confort de vie optimal et en conformité avec la RE2025, nous avons opté pour un système de chauffage par pompe à chaleur (PAC) avec plancher chauffant au rez-de-chaussée et radiateurs à l’étage. Le logement est également équipé de volets roulants électriques. Prix hors fourniture et pose : des appareils sanitaires (sauf système de chauffage et d'eau chaude sanitaire), du carrelage et de la faïence, des revêtements de sol dans les chambres. Hors décoration et aménagement intérieur et peinture. Hors raccordements, frais de notaire et dommage ouvrage. // Réf. : 2539-209512-GMI. Prix terrain : 60 000 €, hors frais d'agence à la charge de l'acquéreur. Ce terrain vous est proposé, par nos partenaires fonciers, dans le cadre d'un projet de construction avec nous. Les informations sur les risques auxquels ce bien est exposé sont disponibles sur le site Géorisques (www.georisques.gouv.fr). Prix maison : 165 270 €.
L’actualité immobilière à Le Poiré-sur-Vie





