Images
Description
Sur ce terrain, nous vous proposons cette maison neuve : la Dompierroise, une maison au concept original et agréable.
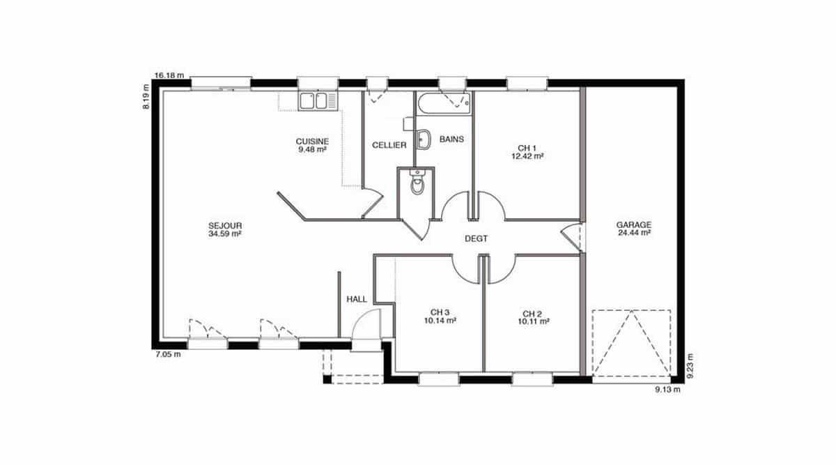
La Dompierroise est une intéressante maison traditionnelle de plain-pied dont l’originalité tient au fait qu’elle se compose de deux corps de bâtiment en décalé. Ce qui permet une délimitation des espaces intéressante et une organisation optimisée.
Avec une surface de 70 m², cette maison dispose de 2 chambres et de 3 pièces, offrant ainsi un espace de vie confortable et fonctionnel. Le salon-séjour-cuisine spacieux est idéal pour les moments en famille ou entre amis. Un grand garage intégré est inclus, ajoutant une touche de praticité supplémentaire.
Cette maison neuve est basse consommation et conforme à la RE2020, garantissant des performances énergétiques optimales et un respect des normes environnementales actuelles.
Les options les plus demandées par nos clients pour ce modèle incluent :
- Enduit bi-ton
- Plancher chauffant
- Sous-sol
Maisons Privat, constructeur centenaire avec les meilleurs avis clients de la région, vous propose cette maison qui saura répondre à toutes vos attentes en termes de confort et de qualité de vie. Ne manquez pas cette opportunité unique de devenir propriétaire d'une maison moderne et économe en énergie.
Logement susceptibles de vous intéresser
Nous vous proposons de découvrir aussi cette sélection de logements situés à moins de 10km de Le Poiré-sur-Vie et qui seraient susceptibles de vous intéresser.
Aizenay
TERRAINNous mettons à votre disposition un terrain exceptionnel de 502 m², idéalement situé à Aizenay, dans le département de la Vendée. Ce terrain entièrement viabilisé offre un potentiel exceptionnel pour un projet de construction de maison individuelle. Sa superficie généreuse et son calme ambiant en font un lieu privilégié pour bâtir le foyer de vos rêves, tout en bénéficiant des atouts d’un cadre de vie agréable. Aizenay, charmante ville des Pays de la Loire, se distingue par son accessibilité et ses nombreuses commodités. Profitez de la proximité immédiate des commerces, des écoles, ainsi que des transports, avec une gare à proximité permettant de rejoindre facilement des destinations environnantes. Le quartier, très recherché, offre une qualité de vie indéniable, alliant tranquillité et dynamisme. Vous serez séduit par l’atmosphère conviviale et les nombreuses activités proposées dans cette belle région. Ce terrain représente une opportunité unique d’investir dans un cadre de vie attractif et épanouissant. N’hésitez pas à envisager cette chance de réaliser votre projet immobilier dans un environnement idéal. À noter qu’en tant que constructeur, nous ne sommes pas mandatés pour réaliser la vente de ce terrain.
Le Poiré-sur-Vie
TERRAIN ET MAISONDécouvrez ce terrain viabilisé de 490 m², idéalement situé sur la commune du Poiré-sur-Vie, dans un environnement calme tout en étant proche des commerces et des services. Parfait pour accueillir votre projet de construction, ce terrain offre un cadre de vie agréable, alliant tranquillité et proximité des commodités. Avec son architecture en L, cette maison de plain-pied séduit par son style moderne et sa disposition astucieuse. La pièce de vie baignée de lumière s’ouvre vers l’extérieur, tandis que les 3 chambres assurent confort et intimité au quotidien. Le garage intégré et le cellier attenant facilitent l’organisation tout en préservant l’esthétique des volumes. Un modèle fonctionnel, chaleureux et personnalisable, pensé pour une vie douce et bien organisée. Pour un confort optimal et conforme à la RE2025, cette maison dispose d’une PAC avec plancher chauffant et volets roulants électriques. À noter : Le prix indiqué exclut les revêtements de sol des chambres, la cuisine aménagée, la peinture, la décoration, les frais de notaire et l’assurance dommages ouvrage. // Réf. : 547-213654-THW. Prix terrain : 59 900 €, hors frais d'agence à la charge de l'acquéreur. Ce terrain vous est proposé, par nos partenaires fonciers, dans le cadre d'un projet de construction avec nous. Les informations sur les risques auxquels ce bien est exposé sont disponibles sur le site Géorisques (www.georisques.gouv.fr). Prix maison : 167 083 €.
Aizenay
TERRAINDécouvrez ce beau terrain constructible de 600 m², entièrement viabilisé, idéalement situé sur la commune d’Aizenay, dans un environnement calme et résidentiel. Parfait pour concrétiser votre projet de construction, ce terrain offre un cadre de vie agréable, à proximité des commodités, des écoles et des axes principaux tout en préservant la tranquillité recherchée. // Réf. : T213475. Prix terrain : 113 000 €, hors frais d'agence et de notaire à la charge de l'acquéreur. Ce terrain vous est proposé, par nos partenaires fonciers, dans le cadre d'un projet de construction avec nous. Les informations sur les risques auxquels ce bien est exposé sont disponibles sur le site Géorisques (www.georisques.gouv.fr).
Aizenay
TERRAINDécouvrez ce beau terrain constructible de 600 m², entièrement viabilisé, idéalement situé sur la commune d’Aizenay, dans un environnement calme et résidentiel. Parfait pour concrétiser votre projet de construction, ce terrain offre un cadre de vie agréable, à proximité des commodités, des écoles et des axes principaux tout en préservant la tranquillité recherchée. // Réf. : T213475. Prix terrain : 113 000 €, hors frais d'agence et de notaire à la charge de l'acquéreur. Ce terrain vous est proposé, par nos partenaires fonciers, dans le cadre d'un projet de construction avec nous. Les informations sur les risques auxquels ce bien est exposé sont disponibles sur le site Géorisques (www.georisques.gouv.fr).
Le Poiré-sur-Vie
TERRAIN ET MAISONDécouvrez ce terrain viabilisé de 490 m², idéalement situé sur la commune du Poiré-sur-Vie, dans un environnement calme tout en étant proche des commerces et des services. Parfait pour accueillir votre projet de construction, ce terrain offre un cadre de vie agréable, alliant tranquillité et proximité des commodités. Bienvenue dans l'avenir de l'habitat avec EVOLIA, une maison modulable et transformable qui s'adapte à vos besoins. Transformez facilement une maison d'une chambre en une maison de deux chambres grâce à un garage de 15 m² aménageable. Avec ses nombreuses options de personnalisation, EVOLIA vous offre un confort inégalé et une modernité à un prix abordable. Faites de vos rêves de propriété une réalité et commencez à bâtir votre futur dès aujourd'hui !. Votre avenir commence ici ! Contactez-nous dès maintenant pour plus d'informations. Prix hors fourniture et pose : des appareils sanitaires (sauf système de chauffage et d'eau chaude sanitaire), du carrelage, de la faïence, de la cuisine aménagée, des revêtements de sol dans les chambres. Hors décoration, aménagement intérieur, peinture, raccordements, frais de notaire et dommage ouvrage. (Surface habitable 49 m²+garage 15 m²). // Réf. : 2659-213654-THW. Prix terrain : 59 900 €, hors frais d'agence à la charge de l'acquéreur. Ce terrain vous est proposé, par nos partenaires fonciers, dans le cadre d'un projet de construction avec nous. Les informations sur les risques auxquels ce bien est exposé sont disponibles sur le site Géorisques (www.georisques.gouv.fr). Prix maison : 95 155 €.
Aizenay
TERRAIN ET MAISONDécouvrez ce beau terrain constructible de 600 m², entièrement viabilisé, idéalement situé sur la commune d’Aizenay, dans un environnement calme et résidentiel. Parfait pour concrétiser votre projet de construction, ce terrain offre un cadre de vie agréable, à proximité des commodités, des écoles et des axes principaux tout en préservant la tranquillité recherchée. Découvrez EVOLIA, la maison évolutive qui s'adapte à chaque étape de votre vie. Transformez facilement une maison de 2 chambres en une maison de 3 chambres grâce à un garage aménageable de 15 m². Flexible et personnalisable, EVOLIA évolue avec vous, que vous soyez une jeune famille, un couple ou une personne seule. Ne laissez plus vos besoins en logement vous limiter. Contactez nos experts conseillers dès aujourd’hui et faites de EVOLIA la maison de vos rêves. Prix hors fourniture et pose : des appareils sanitaires (sauf système de chauffage et d'eau chaude sanitaire), du carrelage, de la faïence, de la cuisine aménagée, des revêtements de sol dans les chambres. Hors décoration, aménagement intérieur, peinture, raccordements, frais de notaire et dommage ouvrage. (Surface habitable 49 m²+garage 15 m²). // Réf. : 2663-213475-THW. Prix terrain : 113 000 €, hors frais d'agence à la charge de l'acquéreur. Ce terrain vous est proposé, par nos partenaires fonciers, dans le cadre d'un projet de construction avec nous. Les informations sur les risques auxquels ce bien est exposé sont disponibles sur le site Géorisques (www.georisques.gouv.fr). Prix maison : 95 181 €.
Mouilleron-le-Captif
TERRAIN ET MAISONSitué au cœur de la commune recherchée de Mouilleron-le-Captif, découvrez ce terrain viabilisé de 471 m², idéal pour concrétiser votre projet de construction. Vous apprécierez son environnement calme, offrant un cadre de vie agréable et préservé, tout en restant proche des commerces, des écoles et des axes routiers. Un modèle de plain-pied où chaque mètre carré a été pensé pour conjuguer accessibilité, confort et efficacité locative. Entièrement conforme aux normes PMR, il offre de larges circulations, une salle de bains spacieuse adaptée, des accès facilités à toutes les pièces, y compris le garage attenant. Le séjour lumineux, les 3 chambres avec rangements intégrés, et l’optimisation des dégagements assurent une vie fluide et sans contrainte. Un bien rare, idéal pour la location inclusive, avec un plan fonctionnel, ergonomique et personnalisable selon les objectifs d’usage ou d’investissement. Pour un confort optimal et conforme à la RE2025, cette maison dispose d’une PAC avec plancher chauffant et volets roulants électriques. À noter : Le prix indiqué exclut les revêtements de sol des chambres, la cuisine aménagée, la peinture, la décoration, les frais de notaire et l’assurance dommages ouvrage. // Réf. : 560-213653-THW. Prix terrain : 66 900 €, hors frais d'agence à la charge de l'acquéreur. Ce terrain vous est proposé, par nos partenaires fonciers, dans le cadre d'un projet de construction avec nous. Les informations sur les risques auxquels ce bien est exposé sont disponibles sur le site Géorisques (www.georisques.gouv.fr). Prix maison : 150 800 €.
Mouilleron-le-Captif
TERRAINDécouvrez ce terrain de 337 m², idéalement situé au cœur de Mouilleron-le-Captif, dans un environnement calme et recherché. Parfait pour votre futur projet de construction, il offre un cadre de vie agréable tout en restant proche des commerces, des écoles et des axes principaux. // Réf. : T213472. Prix terrain : 66 500 €, hors frais d'agence et de notaire à la charge de l'acquéreur. Ce terrain vous est proposé, par nos partenaires fonciers, dans le cadre d'un projet de construction avec nous. Les informations sur les risques auxquels ce bien est exposé sont disponibles sur le site Géorisques (www.georisques.gouv.fr).
Mouilleron-le-Captif
TERRAINDécouvrez ce terrain de 337 m², idéalement situé au cœur de Mouilleron-le-Captif, dans un environnement calme et recherché. Parfait pour votre futur projet de construction, il offre un cadre de vie agréable tout en restant proche des commerces, des écoles et des axes principaux. // Réf. : T213472. Prix terrain : 66 500 €, hors frais d'agence et de notaire à la charge de l'acquéreur. Ce terrain vous est proposé, par nos partenaires fonciers, dans le cadre d'un projet de construction avec nous. Les informations sur les risques auxquels ce bien est exposé sont disponibles sur le site Géorisques (www.georisques.gouv.fr).
L’actualité immobilière à Le Poiré-sur-Vie
27/11/2023
02/11/2023
30/10/2023
20/10/2023
16/10/2023
16/10/2023