Images
Description
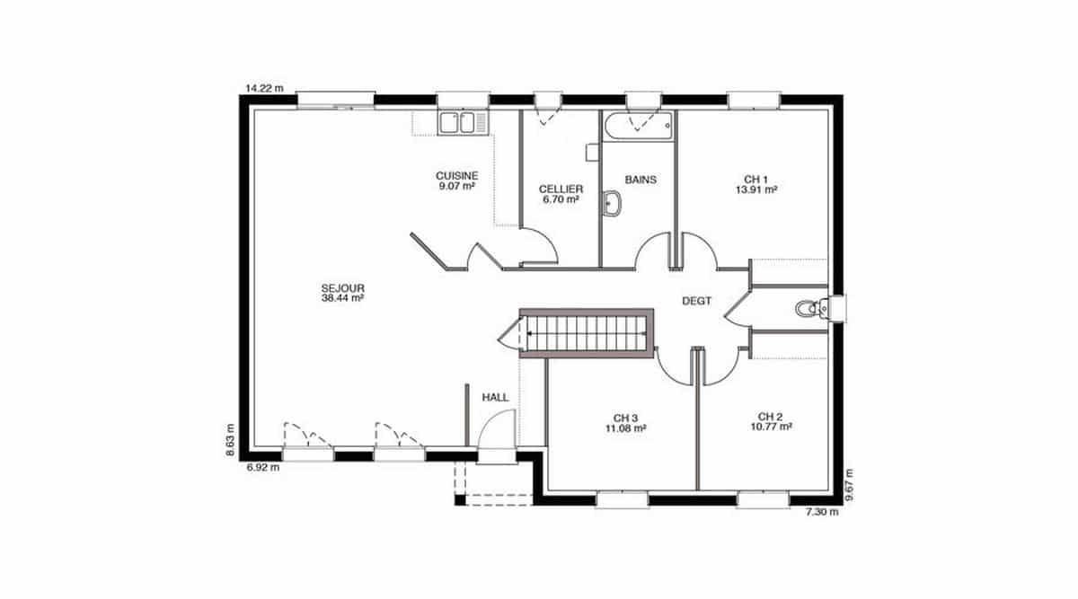
Sur ce terrain, nous vous proposons cette maison neuve : la Dompierroise, une maison au concept original et agréable.
La Dompierroise est une intéressante maison traditionnelle de plain-pied dont l’originalité tient au fait qu’elle se compose de deux corps de bâtiment en décalé. Ce qui permet une délimitation des espaces intéressante et une organisation optimisée. Avec une surface de 80 m², cette maison dispose de 3 chambres et de 4 pièces, offrant ainsi un espace de vie confortable et fonctionnel.
Une maison pour toutes les configurations familiales.
Déclinée en versions allant du T3 au T5, avec une surface au sol comprise entre 70 et 90 m², la Dompierroise s’adapte totalement à la composition de votre famille. Du plus petit au plus grand modèle, vous trouverez la même organisation pratique de l’intérieur, avec un salon-séjour-cuisine spacieux. Un grand garage intégré est inclus, quelle que soit la version. De plus, cette maison est équipée d'un porche accueillant, ajoutant une touche de charme et de fonctionnalité.
Ceux qui ont aimé ce modèle ont également retenu ces options :
- Enduit bi-ton
- Plancher chauffant
- Sous-sol
Insistons sur le fait que cette maison neuve est basse consommation et conforme à la RE2020, garantissant ainsi des performances énergétiques optimales et un confort de vie inégalé.
Le constructeur de cette maison est Maisons Privat, un constructeur centenaire avec les meilleurs avis clients de la région. Faites confiance à leur expertise et à leur savoir-faire pour réaliser votre projet de vie dans une maison qui allie tradition et modernité.
Logement susceptibles de vous intéresser
Nous vous proposons de découvrir aussi cette sélection de logements situés à moins de 10km de Les Pineaux et qui seraient susceptibles de vous intéresser.
Bournezeau
TERRAINPrix : 20300 €.Sur ce terrain de 211 m² à BOURNEZEAU, Alliance Construction vous propose de réaliser votre projet de construction de maison individuelle.Avec Alliance Construction, habitez une maison spécialement pensée et conçue pour vous et votre famille, prête à décorer, adaptée à vos modes de vie, personnalisée selon vos goûts grâce à un large choix d'options, de matériaux et d'innovations ! Demandez une étude gratuite et personnalisée de votre projet de construction sur ce terrain à BOURNEZEAU !Contactez Sylvain CARIOU au (Numéro supprimé) (Alliance Construction – Agence de la Roche-sur-Yon).Prix hors frais de notaire. Terrain sélectionné par ALLIANCE auprès de nos partenaires fonciers, selon disponibilité, pour la construction d'une maison neuve. Non mandaté pour réaliser la vente (loi du 2 janvier 1970 n°70-9). Visuels non contractuels. Voir détails en agence.Cette annonce a été créée et diffusée avec le logiciel VITAHOME.
Bournezeau
TERRAIN ET MAISONA BOURNEZEAU sur un terrain de 211 m², Alliance Construction vous propose de réaliser votre projet de construction de maison individuelle d'une surface de 98.32 m² habitables avec 3 chambres, à partir de 216240€*Demandez une étude gratuite et personnalisée de votre projet de construction !* Cette offre comprend :- Garanties constructeurs (dommages ouvrage, garantie de prix ferme et définitif, garantie de livraison, responsabilité civile et décennale).- Branchements aux compteurs et accès empierré sur 5m linéaires.Habitez une maison spécialement pensée et conçue pour vous et votre famille, prête à décorer, adaptée à vos modes de vie, personnalisée selon vos goûts grâce à un large choix d'options, de matériaux et d'innovations !Contactez Sylvain CARIOU au (Numéro supprimé) (Alliance Construction – Agence de la Roche-sur-Yon).*Prix indicatif pour un projet de construction d'une maison individuelle. Ne sont pas inclus les frais de branchements, raccordements aux réseaux publics, frais d'adaptations, aménagements intérieurs et extérieurs et options. terrain viabilisé, frais de notaire non compris, frais divers non compris. Garanties et assurances obligatoires incluses. Terrain sélectionné par ALLIANCE auprès de nos partenaires fonciers, selon disponibilité, pour la construction d'une maison neuve. Non mandaté pour réaliser la vente (loi du 2 janvier 1970 n°70-9). Visuels non contractuels. Voir détails en agence.Cette annonce a été créée et diffusée avec le logiciel VITAHOME.
Sainte-Hermine
TERRAIN ET MAISONVENTE d’une maison F2 (61 m²) à Sainte-HerminePROCHE DE LA ROCHE-SUR-YON – MAISON 3 PIÈCES NEUVEÀ vendre : à 27 km de l’océan Atlantique et à 29 km de La Roche-sur-Yon, ayez le coup de coeur pour cette maison de 2 pièces de plain-pied de 61 m² à Sainte-Hermine (85210). Conçue de plain-pied, elle inclut deux chambres, une cuisine et une salle de bains.Le terrain de la propriété est de 1 141 m².La maison est neuve.Cinq établissements scolaires sont implantés à moins de 10 minutes à pied. L’autoroute A83 est accessible à 3 km. On trouve un bassin de natation, un tennis, des commerces, trois boulangeries et un bureau de poste à proximité.Elle est à vendre pour la somme de 166 245 €.N’hésitez pas à prendre contact avec Virginie NOVO ((Numéro supprimé)) pour tout renseignement sur cette maison. LMP Constructeur La Roche-sur-Yon est là pour vous accompagner à toutes les étapes de l’achat.
Moutiers-sur-le-Lay
TERRAIN ET MAISONMoutiers-sur-le-Lay : maison de 2 pièces (50 m²) en venteEMPLACEMENT PRIVILÉGIÉ – MAISON 2 PIÈCES NEUVEEn vente : à 26 km de la côte atlantique et à quelques kilomètres de La Roche-sur-Yon, bénéficiant d’un emplacement privilégié dans Moutiers-sur-le-Lay (85320), LMP Constructeur La Roche-sur-Yon vous présente cette maison de 2 pièces de plain-pied de 50 m².Conçue de plain-pied, elle propose une chambre, une cuisine et une salle de bains. Cette maison est neuve.Le terrain du bien est de 869 m².La maison se situe dans un secteur convoité. Il y a l’École Primaire Privée Sainte Marie à moins de 10 minutes à pied. On trouve un accès à l’autoroute A83 à 7 km.Elle est proposée à l’achat pour 136 165 €.Contactez Virginie NOVO ((Numéro supprimé)) pour plus de renseignements sur le bien, sur les démarches à suivre ou sur les modalités de vente.
Château-Guibert
TERRAIN ET MAISONA CHATEAU-GUIBERT sur un terrain de 1400 m², Alliance Construction vous propose de réaliser votre projet de construction de maison individuelle d'une surface de 98.02 m² habitables avec 3 chambres, à partir de 287999€*Informations du terrain : 20 MIN DE LA ROCHE SUR YON . 20 MIIN DE LUCON . 5 MIN DE MAREUIL SUR LAYDemandez une étude gratuite et personnalisée de votre projet de construction !* Cette offre comprend :- Garanties constructeurs (dommages ouvrage, garantie de prix ferme et définitif, garantie de livraison, responsabilité civile et décennale).- Branchements aux compteurs et accès empierré sur 5m linéaires.Habitez une maison spécialement pensée et conçue pour vous et votre famille, prête à décorer, adaptée à vos modes de vie, personnalisée selon vos goûts grâce à un large choix d'options, de matériaux et d'innovations !Contactez Sylvain CARIOU au (Numéro supprimé) (Alliance Construction – Agence de la Roche-sur-Yon).*Prix indicatif pour un projet de construction d'une maison individuelle. Ne sont pas inclus les frais de branchements, raccordements aux réseaux publics, frais d'adaptations, aménagements intérieurs et extérieurs et options. terrain viabilisé, frais de notaire non compris, frais divers non compris. Garanties et assurances obligatoires incluses. Terrain sélectionné par ALLIANCE auprès de nos partenaires fonciers, selon disponibilité, pour la construction d'une maison neuve. Non mandaté pour réaliser la vente (loi du 2 janvier 1970 n°70-9). Visuels non contractuels. Voir détails en agence.Cette annonce a été créée et diffusée avec le logiciel VITAHOME.
Les Pineaux
TERRAIN ET MAISONSur ce terrain, nous vous proposons cette maison neuve : la Dompierroise, une maison au concept original et agréable.La Dompierroise est une intéressante maison traditionnelle de plain-pied dont l’originalité tient au fait qu’elle se compose de deux corps de bâtiment en décalé. Ce qui permet une délimitation des espaces intéressante et une organisation optimisée. Avec une surface de 80 m², cette maison dispose de 3 chambres et de 4 pièces, offrant ainsi un espace de vie confortable et fonctionnel.Une maison pour toutes les configurations familiales.Déclinée en versions allant du T3 au T5, avec une surface au sol comprise entre 70 et 90 m², la Dompierroise s’adapte totalement à la composition de votre famille. Du plus petit au plus grand modèle, vous trouverez la même organisation pratique de l’intérieur, avec un salon-séjour-cuisine spacieux. Un grand garage intégré est inclus, quelle que soit la version. De plus, cette maison est équipée d’un porche accueillant, ajoutant une touche de charme et de fonctionnalité.Ceux qui ont aimé ce modèle ont également retenu ces options :- Enduit bi-ton- Plancher chauffant- Sous-solInsistons sur le fait que cette maison neuve est basse consommation et conforme à la RE2020, garantissant ainsi des performances énergétiques optimales et un confort de vie inégalé.Le constructeur de cette maison est Maisons Privat, un constructeur centenaire avec les meilleurs avis clients de la région. Faites confiance à leur expertise et à leur savoir-faire pour réaliser votre projet de vie dans une maison qui allie tradition et modernité.
Les Pineaux
TERRAINDécouvrez ce terrain exceptionnel de 587 m², idéalement situé dans le charmant lotissement des Pineaux. Ce terrain viabilisé offre une opportunité rêvée pour la construction de votre future maison. Son emplacement privilégié vous permettra de bénéficier d’un cadre paisible tout en étant proche du dynamisme du cœur de la ville. Situé dans le département de la Vendée, en région Pays de la Loire, ce terrain se trouve à proximité des commerces, des écoles et d’autres commodités essentielles. Vous pourrez profiter de la qualité de vie incomparable que cette région a à offrir, avec un accès facile aux axes routiers importants et aux autoroutes. Les Pineaux vous offrent un cadre de vie agréable, alliant tranquillité et proximité avec les attractions locales. C’est un investissement idéal pour réaliser votre projet de construction dans un environnement prometteur. Ne manquez pas l’opportunité d’acquérir ce terrain très prisé qui offre un potentiel exceptionnel.
Château-Guibert
TERRAIN ET MAISONA CHATEAU-GUIBERT sur un terrain de 1400 m², Alliance Construction vous propose de réaliser votre projet de construction de maison individuelle d'une surface de 88.04 m² habitables avec 3 chambres, à partir de 253425€*Informations du terrain : 20 MIN DE LA ROCHE SUR YON . 20 MIIN DE LUCON . 5 MIN DE MAREUIL SUR LAYDemandez une étude gratuite et personnalisée de votre projet de construction !* Cette offre comprend :- Garanties constructeurs (dommages ouvrage, garantie de prix ferme et définitif, garantie de livraison, responsabilité civile et décennale).- Branchements aux compteurs et accès empierré sur 5m linéaires.Habitez une maison spécialement pensée et conçue pour vous et votre famille, prête à décorer, adaptée à vos modes de vie, personnalisée selon vos goûts grâce à un large choix d'options, de matériaux et d'innovations !Contactez Sylvain CARIOU au (Numéro supprimé) (Alliance Construction – Agence de la Roche-sur-Yon).*Prix indicatif pour un projet de construction d'une maison individuelle. Ne sont pas inclus les frais de branchements, raccordements aux réseaux publics, frais d'adaptations, aménagements intérieurs et extérieurs et options. terrain viabilisé, frais de notaire non compris, frais divers non compris. Garanties et assurances obligatoires incluses. Terrain sélectionné par ALLIANCE auprès de nos partenaires fonciers, selon disponibilité, pour la construction d'une maison neuve. Non mandaté pour réaliser la vente (loi du 2 janvier 1970 n°70-9). Visuels non contractuels. Voir détails en agence.Cette annonce a été créée et diffusée avec le logiciel VITAHOME.
Moutiers-sur-le-Lay
TERRAIN ET MAISONVENTE d’une maison F3 (59 m²) à Moutiers-sur-le-LayEMPLACEMENT PRIVILÉGIÉ – MAISON 3 PIÈCES NEUVEÀ 26 km de la côte atlantique et à quelques kilomètres de La Roche-sur-Yon, notre agence LMP Constructeur La Roche-sur-Yon est ravie de vous présenter en vente, bénéficiant d’un emplacement d’exception dans Moutiers-sur-le-Lay (85320), cette maison de 3 pièces de plain-pied de 59 m².Son intérieur offre deux chambres, une cuisine et une salle de bains. Cette maison est neuve.Le terrain de la propriété s’étend sur 869 m².Cette maison est située dans un quartier prisé. Il y a l’École Primaire Privée Sainte Marie à moins de 10 minutes à pied. L’autoroute A83 est accessible à 7 km.Elle est proposée à l’achat pour 143 000 €.Contactez notre constructeur (Virginie NOVO : (Numéro supprimé)) pour toute question sur la maison ou sur les modalités de vente. LMP Constructeur La Roche-sur-Yon est là pour vous accompagner à toutes les étapes de l’achat.
L’actualité immobilière à Les Pineaux
27/11/2023
02/11/2023
30/10/2023
20/10/2023
16/10/2023
16/10/2023