Images
Description
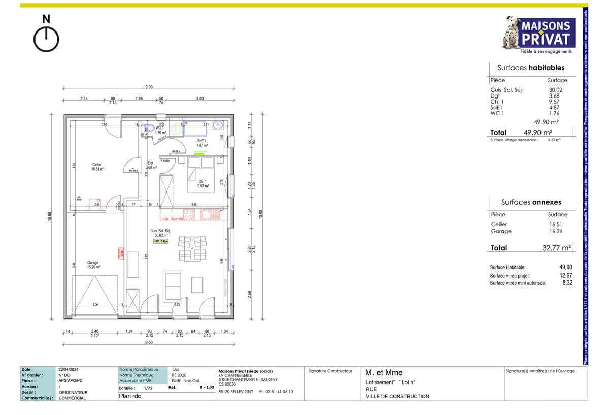
Sur ce terrain, nous vous proposons ce modèle de maison qui incarne l'harmonie parfaite entre fonctionnalité et adaptabilité, elle est conçue pour répondre à vos besoins présents tout en anticipant vos projets futurs.
Le cœur de cette maison est une pièce de vie spacieuse et lumineuse de 30 m², judicieusement aménagée pour maximiser le confort et l'utilité. Cet espace multifonctionnel combine un salon / séjour accueillant, et une cuisine ouverte moderne. Les grandes fenêtres baignent la pièce de lumière naturelle, créant une atmosphère chaleureuse et accueillante, idéale pour se détendre ou recevoir des invités.
À côté de la pièce de vie se trouvent une chambre et une salle d’eau.
Adossé à la maison, un garage de 34 m.² offre un espace pratique pour garer un véhicule ou stocker des équipements.
La conception de cette maison intègre dès le départ la possibilité d'évolution. Lorsque le moment sera venu d'agrandir, l'atelier actuel pourra être aménagé en une chambre avec salle d'eau ou dressing. Cette transformation est facilitée par une infrastructure prévue pour accueillir les installations sanitaires nécessaires. Cette flexibilité permet d'adapter la maison à l'évolution de votre famille ou de vos besoins sans compromis sur le confort ou la qualité de vie.
En résumé, cette maison évolutive est une solution idéale pour ceux qui cherchent à investir dans un habitat adaptable et durable.
* Prix indiqué hors branchements, hors sanitaires, hors revêtement des sols et des murs. Assurance dommages ouvrages incluse.
Logement susceptibles de vous intéresser
Nous vous proposons de découvrir aussi cette sélection de logements situés à moins de 10km de Mouchamps et qui seraient susceptibles de vous intéresser.
Mouchamps
TERRAIN ET MAISONSur ce terrain, nous vous proposons cette maison neuve : la Florentaise. Conçue par Maisons Privat, constructeur centenaire avec les meilleurs avis clients de la région, cette maison de 70 m² allie confort et fonctionnalité.Intérieur bien pensé et confort sont les atouts de la Florentaise. Ce modèle de maison traditionnelle de plain-pied propose un intérieur bien organisé où le moindre espace est utilisé, ce qui en fait une demeure très fonctionnelle au style intemporel.La Florentaise, une maison neuve qui adapte ses dimensions à vos envies. Ce modèle se décline en versions d’une superficie allant de 70 à 102 m² et propose de 2 à 4 chambres donnant sur un dégagement. Vous apprécierez les placards équipant toutes les chambres. La taille généreuse de la salle de bain permet de l’équiper si vous le souhaitez d’une douche et d’une baignoire.Du côté de l’espace jour, un grand salon/séjour traversant pour profiter du moindre rayon de soleil. La cuisine ouverte fait de cette pièce de vie un endroit propice pour se retrouver en famille ou entre amis.Les caractéristiques principales de cette maison incluent un garage intégré, une conception basse consommation et une cuisine ouverte. La Florentaise est conforme à la RE2020, garantissant une performance énergétique optimale et un respect des normes environnementales les plus récentes.Parmi les options les plus demandées par nos clients, vous trouverez des menuiseries en aluminium, une toiture en deux pans ou quatre pans pour encore plus de style, ainsi qu’un grenier sur garage pour un espace de rangement supplémentaire.Ne manquez pas cette opportunité de construire la maison de vos rêves avec Maisons Privat, un constructeur de confiance reconnu pour son expertise et la satisfaction de ses clients.
Mouchamps
TERRAINNous avons le plaisir de vous présenter ce magnifique terrain à vendre, d’une surface généreuse de 522 m², idéal pour la construction de votre future maison. Situé dans un lotissement viabilisé, ce terrain offre un potentiel exceptionnel pour tous vos projets futurs. Son emplacement à Mouchamps, en Vendée, au cœur de la région des Pays de la Loire, vous promet un cadre de vie agréable et accessible. Mouchamps se distingue par son ambiance paisible et son esprit convivial. À proximité immédiate, vous trouverez toutes les commodités nécessaires au quotidien, telles que des commerces variés, des services de santé et des écoles. De plus, la ville est entourée de paysages naturels magnifiques et d’espaces verts, parfaits pour des activités en plein air. Profitez également des richesses culturelles et des événements locaux qui font de Mouchamps un endroit unique où il fait bon vivre. Ce terrain constitue une opportunité en or pour ceux qui souhaitent réaliser leur rêve immobilier. N’attendez plus pour envisager cette chance unique ! À noter qu’en tant que constructeur, nous ne sommes pas mandatés pour réaliser la vente de ce terrain.
Mouchamps
TERRAIN ET MAISONSur ce terrain, nous vous proposons cette maison neuve : l’Aixoise, un coquet pavillon familial de plain-pied. Disponible en T3 sur une superficie de 80 m², l’Aixoise est une jolie maison traditionnelle qui saura répondre à toutes vos attentes.Cette maison neuve est idéale pour installer votre petite famille. Vous apprécierez l’espace nuit agrémenté d’un dégagement le rendant véritablement indépendant de la pièce de vie. Il est composé de deux chambres, d’une salle de bain et de w.c. séparés. Le grand séjour traversant est doté d’une cuisine ouverte avec accès au garage intégré. D’une conception pratique et originale tout à la fois, cette demeure a beaucoup d’atouts pour séduire, même les plus exigeants.Les caractéristiques principales de l’Aixoise incluent un toit à 2 pans ou 4 pans, des baies coulissantes pour une luminosité optimale, et un garage intégré. De plus, cette maison neuve est basse consommation et conforme à la RE2020, garantissant ainsi des économies d’énergie et un confort de vie optimal.Les options les plus demandées par nos clients sont également disponibles pour personnaliser votre maison : une terrasse en béton poreux pour profiter de l’extérieur, un plancher chauffant pour un confort thermique inégalé, des menuiseries en aluminium pour une meilleure isolation, et des équipements de domotique pour une maison connectée et intelligente.Le constructeur de cette maison est Maisons Privat, un constructeur centenaire avec les meilleurs avis clients de la région. Faites confiance à notre expertise et à notre savoir-faire pour réaliser votre projet de vie.N’attendez plus pour découvrir l’Aixoise et faire de cette maison votre nouveau chez-vous. Contactez-nous dès aujourd’hui pour plus d’informations et pour organiser une visite.
Mouchamps
TERRAINPrix : 28900 €.Sur ce terrain de 444 m² à MOUCHAMPS, Alliance Construction vous propose de réaliser votre projet de construction de maison individuelle.Avec Alliance Construction, habitez une maison spécialement pensée et conçue pour vous et votre famille, prête à décorer, adaptée à vos modes de vie, personnalisée selon vos goûts grâce à un large choix d'options, de matériaux et d'innovations ! Demandez une étude gratuite et personnalisée de votre projet de construction sur ce terrain à MOUCHAMPS !Contactez Sylvain CARIOU au (Numéro supprimé) (Alliance Construction – Agence de la Roche-sur-Yon).Prix hors frais de notaire. Terrain sélectionné par ALLIANCE auprès de nos partenaires fonciers, selon disponibilité, pour la construction d'une maison neuve. Non mandaté pour réaliser la vente (loi du 2 janvier 1970 n°70-9). Visuels non contractuels. Voir détails en agence.Cette annonce a été créée et diffusée avec le logiciel VITAHOME.
Mouchamps
TERRAINNous vous proposons un terrain d’exception de 323 m², idéalement situé dans le lotissement de Saint-Fulgent, une charmante commune de la Vendée. Ce terrain viabilisé est parfait pour votre projet de construction de maison, offrant la possibilité de créer un espace de vie sur mesure selon vos désirs et besoins. Avec son emplacement stratégique, ce terrain allie confort et accessibilité, ce qui en fait un bel investissement pour les futurs acquéreurs en quête d’un cadre de vie agréable. Saint-Fulgent, dans le département de la Vendée, bénéficie d’une localisation privilégiée au cœur du Pays de la Loire. La ville est particulièrement appréciée pour ses commodités : commerces de proximité, services variés et attractions locales font partie du quotidien des habitants. De plus, son environnement verdoyant et sécurisé offre un cadre de vie paisible, tout en étant proche des principales routes d’accès et des grandes villes de la région. Les amoureux de la nature apprécieront également la proximité des espaces extérieurs propices aux promenades et aux activités en plein air. Ne manquez pas cette opportunité d’acquérir un terrain au potentiel illimité dans une commune en plein essor. Envisagez dès aujourd’hui votre future construction dans ce cadre enchanteur. À noter qu’en tant que constructeur, nous ne sommes pas mandatés pour réaliser la vente de ce terrain.
Mouchamps
TERRAIN ET MAISONSur ce terrain, nous vous proposons ce modèle de maison qui incarne l’harmonie parfaite entre fonctionnalité et adaptabilité, elle est conçue pour répondre à vos besoins présents tout en anticipant vos projets futurs.Le cœur de cette maison est une pièce de vie spacieuse et lumineuse de 30 m², judicieusement aménagée pour maximiser le confort et l’utilité. Cet espace multifonctionnel combine un salon / séjour accueillant, et une cuisine ouverte moderne. Les grandes fenêtres baignent la pièce de lumière naturelle, créant une atmosphère chaleureuse et accueillante, idéale pour se détendre ou recevoir des invités.À côté de la pièce de vie se trouvent une chambre et une salle d’eau.Adossé à la maison, un garage de 34 m.² offre un espace pratique pour garer un véhicule ou stocker des équipements. La conception de cette maison intègre dès le départ la possibilité d’évolution. Lorsque le moment sera venu d’agrandir, l’atelier actuel pourra être aménagé en une chambre avec salle d’eau ou dressing. Cette transformation est facilitée par une infrastructure prévue pour accueillir les installations sanitaires nécessaires. Cette flexibilité permet d’adapter la maison à l’évolution de votre famille ou de vos besoins sans compromis sur le confort ou la qualité de vie.En résumé, cette maison évolutive est une solution idéale pour ceux qui cherchent à investir dans un habitat adaptable et durable. * Prix indiqué hors branchements, hors sanitaires, hors revêtement des sols et des murs. Assurance dommages ouvrages incluse.
Mouchamps
TERRAINDécouvrez ce terrain de 425 m², idéalement situé dans le charmant lotissement de Mouchamps, en Vendée. Ce bien viabilisé est un emplacement parfait pour réaliser votre projet de construction de maison individuelle. En vous installant ici, vous profiterez d’une tranquillité d’esprit tout en bénéficiant de l’attrait d’une vie dans une ville dynamique. Mouchamps se distingue par son ambiance conviviale et son environnement agréable, offrant ainsi un cadre de vie idéal pour les familles. Idéalement niché dans le département de la Vendée, Mouchamps est une ville accueillante qui possède de nombreuses attractions locales, telles que ses marchés animés et ses événements communautaires. Vous serez à proximité de toutes les commodités essentielles, y compris des commerces, des services de santé et des écoles, ce qui facilite le quotidien. Avec un accès facile aux voies de transport, profitez également des magnifiques paysages de la région des Pays de la Loire, qui ne manqueront pas de vous séduire. Ne manquez pas cette opportunité unique d’acquérir un terrain offrant un véritable potentiel dans un cadre formidable. Contactez-nous dès aujourd’hui pour envisager cet investissement qui pourrait transformer vos rêves en réalité. À noter qu’en tant que constructeur, nous ne sommes pas mandatés pour réaliser la vente de ce terrain.
Les Herbiers
TERRAIN ET MAISONSur ce terrain, nous vous proposons cette maison neuve : la Clissonnaise, une charmante maison à étage de 90 m². Conçue par Maisons Privat, constructeur centenaire avec les meilleurs avis clients de la région, cette demeure est idéale pour les primo-accédants, les couples ou les familles.La Clissonnaise se compose de 4 pièces, dont 3 chambres spacieuses, et offre un cadre de vie confortable et moderne. Grâce à ses baies coulissantes, la maison bénéficie d’une luminosité naturelle exceptionnelle. La dalle étage en béton assure une solidité et une isolation optimales, conformes aux normes RT2020.Cette maison neuve est basse consommation et conforme à la RE2020, garantissant des économies d’énergie significatives et un confort thermique tout au long de l’année. Parfaitement adaptée aux terrains étroits, la Clissonnaise optimise chaque mètre carré pour offrir un espace de vie fonctionnel et agréable.Les options les plus demandées par nos clients sont également disponibles pour personnaliser votre maison selon vos besoins : une deuxième salle de bains pour plus de confort, une baie à galandage pour une ouverture maximale sur l’extérieur, un carport pour abriter votre véhicule, ou encore un garage accolé pour plus de praticité.Achetez votre nouvelle demeure à étage comme vous la souhaitez et profitez d’un espace de vie convivial avec cuisine ouverte. La Clissonnaise est disponible dans des dimensions allant de 70 à 110 m², permettant de nombreuses configurations en fonction de la composition de votre famille.Ne manquez pas cette opportunité unique de devenir propriétaire d’une maison neuve, moderne et économe en énergie, conçue par Maisons Privat, le constructeur de confiance de la région.
Les Herbiers
TERRAINNous vous proposons un terrain d’une superficie de 374 m² situé dans un environnement paisible et agréable, idéal pour un projet de construction de maison individuelle. Ce terrain viabilisé vous offre l’opportunité de bâtir la maison de vos rêves dans un lotissement attractif, où chaque parcelle est soigneusement agencée pour garantir tranquillité et confort. Situé dans la charmante commune de Herbiers, au cœur de la Vendée, ce terrain bénéficie d’une localisation privilégiée dans la région des Pays de la Loire. Laissez-vous séduire par la proximité des commerces et des commodités qui rendent la vie quotidienne facile et agréable. Les écoles à proximité assurent un cadre de vie idéal pour les familles, tout en offrant des possibilités de loisirs variées. Sans oublier les magnifiques paysages de la Vendée qui vous invitent à profiter des sains plaisirs de la nature. Ce terrain représente une belle opportunité d’investissement dans un secteur en plein essor et prometteurs. N’hésitez pas à envisager cette occasion unique d’acquérir votre propre espace dans un cadre enchanteur. À noter qu’en tant que constructeur, nous ne sommes pas mandatés pour réaliser la vente de ce terrain.
L’actualité immobilière à Mouchamps
27/11/2023
02/11/2023
30/10/2023
20/10/2023
16/10/2023
16/10/2023