Images
Description
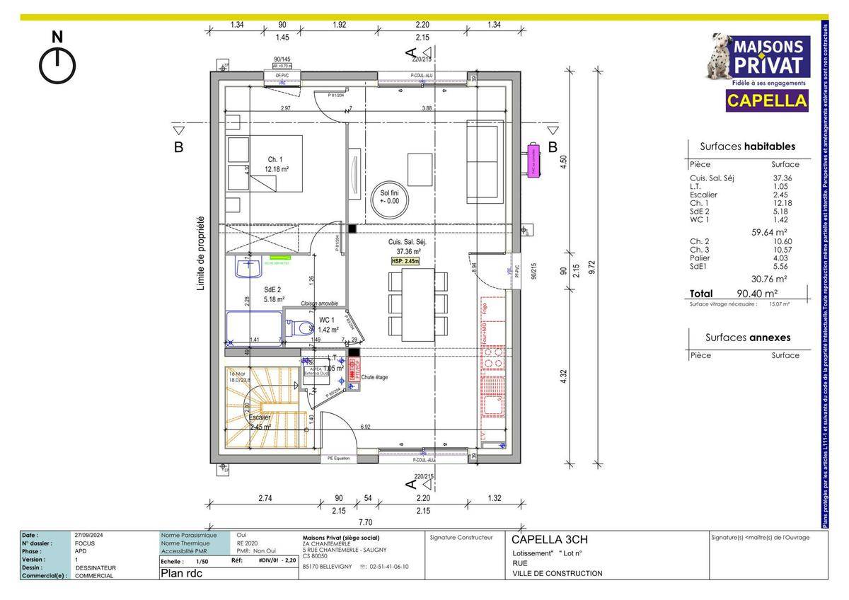
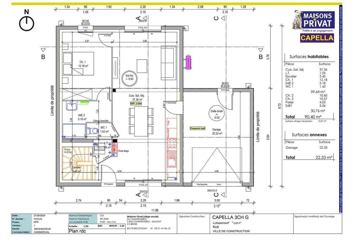
Sur ce terrain, nous vous proposons cette magnifique maison contemporaine de 90,57 m², offrant un cadre de vie idyllique où modernité, confort et nature se rencontrent harmonieusement. Avec ses volumes optimisés, elle est idéale pour une famille à la recherche de bien-être et de sérénité.
Un intérieur spacieux et lumineux
Dès l’entrée, laissez-vous séduire par un grand espace de vie ouvert de 37 m², baigné de lumière grâce à ses larges baies vitrées offrant une vue imprenable sur le jardin et la piscine. La cuisine moderne et fonctionnelle s’intègre parfaitement à l’espace de réception, créant une atmosphère chaleureuse et conviviale.
Au rez-de-chaussée, vous trouverez une suite parentale de 12,18 m², parfaite pour plus d’intimité, une grande pièce de vie de 37 m² avec cuisine ouverte, salon et salle à manger, ainsi qu’une salle d’eau et des WC séparés. Le garage de 22,55 m², accessible directement depuis la maison, offre un espace de rangement idéal.
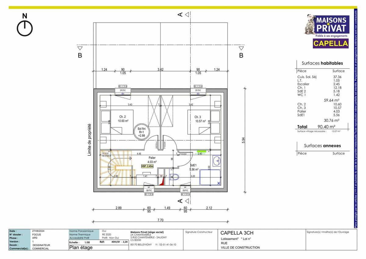
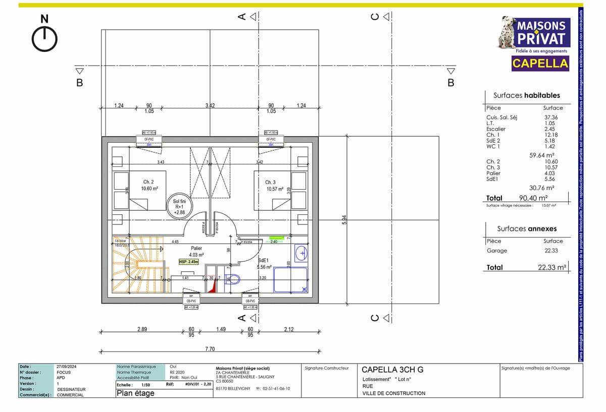
À l’étage, deux chambres confortables de 10,70 m² et 10,74 m² offrent un espace de vie agréable pour les enfants ou les invités. Une salle d’eau spacieuse de 5,56 m² et un palier pouvant être aménagé en bureau ou en espace détente complètent cet étage.
* Prix indiqué hors branchements, hors sanitaires, hors revêtement des sols et des murs. Assurance dommages ouvrages incluse.
Logement susceptibles de vous intéresser
Nous vous proposons de découvrir aussi cette sélection de logements situés à moins de 10km de Poiroux et qui seraient susceptibles de vous intéresser.
Saint-Vincent-sur-Jard
TERRAIN ET MAISONTerrain viabilisé de 350 m² à Saint-Vincent-sur-Jard (85), dans un secteur calme et recherché. À proximité des plages, commerces, écoles et pistes cyclables. Agréable et spacieuse, cette maison de plain-pied vous propose une cuisine aménagée ouverte sur un vaste salon séjour donnant sur l'arrière. La cuisine est à proximité d'un cellier et d'un garage, ce qui facilite l'habitabilité de cette maison. L'espace nuit est composé de trois belles chambres avec rangement, d'une salle de bains équipée et des wc séparés. Ses jeux d'enduits personnalisables sauront vous séduire. Pour vous assurer un confort de vie et conformément à la RE2025, nous avons choisi un mode de chauffage par PAC + plancher chauffant, volets roulants électriques. Prix hors fourniture et pose : des appareils sanitaires (sauf système de chauffage et d'eau chaude sanitaire), du carrelage et de la faïence, des revêtements de sol dans les chambres. Hors décoration et aménagement intérieur et peinture. Hors raccordements, frais de notaire et dommage ouvrage. // Réf. : 2562-213667-SBI. Prix terrain : 81 200 €, hors frais d'agence à la charge de l'acquéreur. Ce terrain vous est proposé, par nos partenaires fonciers, dans le cadre d'un projet de construction avec nous. Les informations sur les risques auxquels ce bien est exposé sont disponibles sur le site Géorisques (www.georisques.gouv.fr). Prix maison : 135 573 €.
Saint-Hilaire-la-Forêt
TERRAIN ET MAISONTerrain viabilisé de 465 m² à Saint-Hilaire-la-Forêt (85), situé dans un environnement paisible et verdoyant. Proche des commerces, écoles, services et des plages vendéennes. Transformez votre maison avec la gamme Evoliâ. Vous rêvez d'une maison évolutive qui s'adapte parfaitement à vos besoins et à votre budget ? La gamme Evoliâ est conçue pour vous. Avec Evoliâ, commencez petit et imaginez grand, transformant votre espace de vie au fil du temps. Imaginez convertir votre maison deux chambres en une spacieuse maison trois chambres. Notre solution innovante vous permet de tirer parti du garage de 28 m², un atout majeur. Ce garage peut être aménagé en une ou deux chambres supplémentaires selon vos besoins, vous offrant ainsi la possibilité d'agrandir votre maison sans les contraintes d'un déménagement, en optimisant chaque mètre carré. Prix hors fourniture et pose : des appareils sanitaires (sauf système de chauffage et d'eau chaude sanitaire), du carrelage, de la faïence, de la cuisine aménagée, des revêtements de sol dans les chambres. Hors décoration, aménagement intérieur, peinture, raccordements, frais de notaire et dommage ouvrage. (Surface habitable 49 m²+garage 28 m²). // Réf. : 2616-213666-SBI. Prix terrain : 52 100 €, hors frais d'agence à la charge de l'acquéreur. Ce terrain vous est proposé, par nos partenaires fonciers, dans le cadre d'un projet de construction avec nous. Les informations sur les risques auxquels ce bien est exposé sont disponibles sur le site Géorisques (www.georisques.gouv.fr). Prix maison : 95 542 €.
Talmont-Saint-Hilaire
TERRAINTerrain viabilisé de 408 m² à Talmont-Saint-Hilaire (85), situé dans un environnement calme et recherché. À proximité des commerces, écoles, port de Bourgenay et des plages. // Réf. : T213665. Prix terrain : 143 200 €, hors frais d'agence et de notaire à la charge de l'acquéreur. Ce terrain vous est proposé, par nos partenaires fonciers, dans le cadre d'un projet de construction avec nous. Les informations sur les risques auxquels ce bien est exposé sont disponibles sur le site Géorisques (www.georisques.gouv.fr).
Talmont-Saint-Hilaire
TERRAINTerrain viabilisé de 408 m² à Talmont-Saint-Hilaire (85), situé dans un environnement calme et recherché. À proximité des commerces, écoles, port de Bourgenay et des plages. // Réf. : T213665. Prix terrain : 143 200 €, hors frais d'agence et de notaire à la charge de l'acquéreur. Ce terrain vous est proposé, par nos partenaires fonciers, dans le cadre d'un projet de construction avec nous. Les informations sur les risques auxquels ce bien est exposé sont disponibles sur le site Géorisques (www.georisques.gouv.fr).
Avrillé
TERRAIN ET MAISONTerrain viabilisé de 266 m² à Avrillé (85). À proximité des commerces, écoles et du littoral vendéen. Découvrez EVOLIA, la maison évolutive qui s'adapte à chaque étape de votre vie. Transformez facilement une maison de 2 chambres en une maison de 3 chambres grâce à un garage aménageable de 15 m². Flexible et personnalisable, EVOLIA évolue avec vous, que vous soyez une jeune famille, un couple ou une personne seule. Ne laissez plus vos besoins en logement vous limiter. Contactez nos experts conseillers dès aujourd’hui et faites de EVOLIA la maison de vos rêves. Prix hors fourniture et pose : des appareils sanitaires (sauf système de chauffage et d'eau chaude sanitaire), du carrelage, de la faïence, de la cuisine aménagée, des revêtements de sol dans les chambres. Hors décoration, aménagement intérieur, peinture, raccordements, frais de notaire et dommage ouvrage. (Surface habitable 49 m²+garage 15 m²). // Réf. : 2615-213664-SBI. Prix terrain : 44 990 €, hors frais d'agence à la charge de l'acquéreur. Ce terrain vous est proposé, par nos partenaires fonciers, dans le cadre d'un projet de construction avec nous. Les informations sur les risques auxquels ce bien est exposé sont disponibles sur le site Géorisques (www.georisques.gouv.fr). Prix maison : 95 181 €.
Poiroux
TERRAINTerrain viabilisé de 364 m² au Poiroux (85), situé dans un environnement calme et agréable et à 12 mn du centre ville des Sables d'Olonne. // Réf. : T213669. Prix terrain : 63 000 €, hors frais d'agence et de notaire à la charge de l'acquéreur. Ce terrain vous est proposé, par nos partenaires fonciers, dans le cadre d'un projet de construction avec nous. Les informations sur les risques auxquels ce bien est exposé sont disponibles sur le site Géorisques (www.georisques.gouv.fr).
Poiroux
TERRAINTerrain viabilisé de 364 m² au Poiroux (85), situé dans un environnement calme et agréable et à 12 mn du centre ville des Sables d'Olonne. // Réf. : T213669. Prix terrain : 63 000 €, hors frais d'agence et de notaire à la charge de l'acquéreur. Ce terrain vous est proposé, par nos partenaires fonciers, dans le cadre d'un projet de construction avec nous. Les informations sur les risques auxquels ce bien est exposé sont disponibles sur le site Géorisques (www.georisques.gouv.fr).
Saint-Vincent-sur-Jard
TERRAIN ET MAISONTerrain viabilisé de 350 m² à Saint-Vincent-sur-Jard (85), dans un secteur calme et recherché. À proximité des plages, commerces, écoles et pistes cyclables. Familiale et fonctionnelle, cette maison rectangulaire de plain-pied vous séduira par un espace de vie de 50 m² très lumineux avec sa baie vitrée et ses ouvertures, une cuisine ouverte vous permettra de communiquer aisément. Du côté de l’espace nuit, un dégagement dessert 1 chambre parentale avec dressing et salle d’eau, trois chambres avec rangement, une salle de bain et un wc séparé. Pour vous assurer un confort de vie et conformément à la RE2025, nous avons choisi un mode de chauffage par PAC + plancher chauffant, volets roulants électriques. Prix hors fourniture et pose : des appareils sanitaires (sauf système de chauffage et d'eau chaude sanitaire), du carrelage et de la faïence, des revêtements de sol dans les chambres. Hors décoration et aménagement intérieur et peinture. Hors raccordements, frais de notaire et dommage ouvrage. // Réf. : 2556-213667-SBI. Prix terrain : 81 200 €, hors frais d'agence à la charge de l'acquéreur. Ce terrain vous est proposé, par nos partenaires fonciers, dans le cadre d'un projet de construction avec nous. Les informations sur les risques auxquels ce bien est exposé sont disponibles sur le site Géorisques (www.georisques.gouv.fr). Prix maison : 143 381 €.
Avrillé
TERRAIN ET MAISONTerrain viabilisé de 266 m² à Avrillé (85). À proximité des commerces, écoles et du littoral vendéen. Cette maison de plain-pied en L, fonctionnelle et spacieuse vous propose un bel espace de vie lumineux et traversant. Sa cuisine est ouverte sur le séjour et a un accès direct au cellier. Son espace nuit est composé de trois belles chambres dont une suite parentale avec dressing et salle de bain privative, une deuxième salle de bains équipé ainsi que des wc séparés. Pour vous assurer un confort de vie et conformément à la RE2025, nous avons choisi un mode de chauffage par PAC + plancher chauffant, volets roulants électriques. Prix hors fourniture et pose : des appareils sanitaires (sauf système de chauffage et d'eau chaude sanitaire), du carrelage et de la faïence, des revêtements de sol dans les chambres. Hors décoration et aménagement intérieur et peinture. Hors raccordements, frais de notaire et dommage ouvrage. // Réf. : 2544-213664-SBI. Prix terrain : 44 990 €, hors frais d'agence à la charge de l'acquéreur. Ce terrain vous est proposé, par nos partenaires fonciers, dans le cadre d'un projet de construction avec nous. Les informations sur les risques auxquels ce bien est exposé sont disponibles sur le site Géorisques (www.georisques.gouv.fr). Prix maison : 133 062 €.
L’actualité immobilière à Poiroux
27/11/2023
02/11/2023
30/10/2023
20/10/2023
16/10/2023
16/10/2023