Images
Description
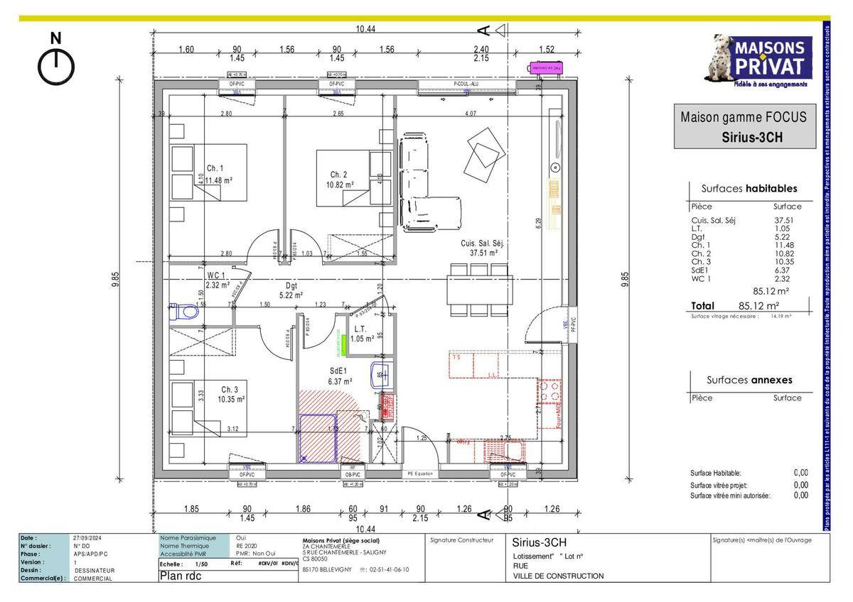
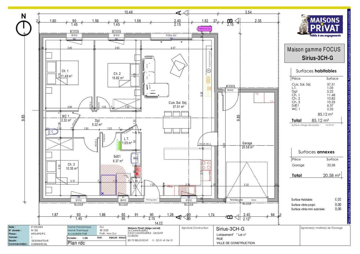
Sur ce terrain, nous vous proposons cette superbe maison de plain-pied au plan optimisé, pensée pour offrir confort et convivialité à toute la famille. Passé l’entrée, vous serez immédiatement séduit par une vaste pièce de vie baignée de lumière, où se côtoient salon, salle à manger et cuisine ouverte, idéale pour partager des moments chaleureux au quotidien.
Côté nuit, trois chambres spacieuses et lumineuses vous attendent, chacune permettant d’installer rangements et bureau selon vos envies. Une salle de bain moderne, un WC complètent cet agencement astucieux, facilitant l’organisation de la vie de famille.
Atout pratique : Un garage attenant de près de 21 m² permet de stationner votre véhicule en toute sécurité, tout en laissant de la place pour un atelier ou du rangement supplémentaire.
Moderne, fonctionnelle et pensée pour un confort optimal, cette maison saura répondre à toutes vos attentes. N’attendez plus pour venir la découvrir et laissez-vous séduire par son agencement harmonieux !
Logement susceptibles de vous intéresser
Nous vous proposons de découvrir aussi cette sélection de logements situés à moins de 10km de Puyravault et qui seraient susceptibles de vous intéresser.
Chaillé-les-Marais
TERRAINProche des commerces et du centre ville à 30 minutes de AGORD-LA ROCHELLEContact : Myriam GUERIN (Numéro supprimé)Prix : 21200 €.Informations : Myriam Guérin au (Numéro supprimé).Sous réserve de disponibilité de notre partenaire foncier. Prix hors frais de notaire. Photos non contractuelles.Cette annonce a été créée et diffusée avec le logiciel VITAHOME.
Champagné-les-Marais
TERRAINA CHAMPAGNE LES MARAIS à 2 pas du centre ville et des commerces.Contact : Myriam GUERIN (Numéro supprimé)Prix : 30000 €.Informations : Myriam Guérin au (Numéro supprimé).Sous réserve de disponibilité de notre partenaire foncier. Prix hors frais de notaire. Photos non contractuelles.Cette annonce a été créée et diffusée avec le logiciel VITAHOME.
Chaillé-les-Marais
TERRAINA 30 minutes de LAGORD-LA ROCHELLE à proximité des commerces .Contact: Myriam GUERIN (Numéro supprimé)Prix : 23600 €.Informations : Myriam Guérin au (Numéro supprimé).Sous réserve de disponibilité de notre partenaire foncier. Prix hors frais de notaire. Photos non contractuelles.Cette annonce a été créée et diffusée avec le logiciel VITAHOME.
Champagné-les-Marais
TERRAINPrix : 30000 €.Informations : Myriam Guérin au (Numéro supprimé).Sous réserve de disponibilité de notre partenaire foncier. Prix hors frais de notaire. Photos non contractuelles.Cette annonce a été créée et diffusée avec le logiciel VITAHOME.
Chaillé-les-Marais
TERRAINCHAILLE LES MARAIS communes idéalement située à 30 minutes de LAGORD-LA ROCHELLE.Située en centre ville proche des commerces.Contact: Myriam GUERIN (Numéro supprimé)Prix : 27500 €.Informations : Myriam Guérin au (Numéro supprimé).Sous réserve de disponibilité de notre partenaire foncier. Prix hors frais de notaire. Photos non contractuelles.Cette annonce a été créée et diffusée avec le logiciel VITAHOME.
Champagné-les-Marais
TERRAINProche du centre ville et des commerces à 30 minutes de AGORD-LA ROCHELLEJade Prom (Numéro supprimé)Prix : 39600 €.Informations : Myriam Guérin au (Numéro supprimé).Sous réserve de disponibilité de notre partenaire foncier. Prix hors frais de notaire. Photos non contractuelles.Cette annonce a été créée et diffusée avec le logiciel VITAHOME.
Champagné-les-Marais
TERRAINA 30 minutes de LAGORD-LA ROCHELLE je vous propose ce terrain proche des commerces et du centre ville.Contact : Myriam GUERIN (Numéro supprimé)Prix : 53700 €.Informations : Myriam Guérin au (Numéro supprimé).Sous réserve de disponibilité de notre partenaire foncier. Prix hors frais de notaire. Photos non contractuelles.Cette annonce a été créée et diffusée avec le logiciel VITAHOME.
Chaillé-les-Marais
TERRAIN ET MAISONClassique et fonctionnelle ! Votre maison plain-pied à partir de 90 m2 habitable vous apporte une grande pièce de vie de 45 m2 avec cellier isolé, cuisine et coin repas attenant. Salon indépendant. 2 grandes baies coulissantes exposées sur la terrasse arrière vous offrent luminosité et confort. Vous disposez de 3 chambres dont une située sur la façade arrière. La salle de bain est aménagée avec meuble 2 vasques, une grande douche et une baignoire. Garage attenant de 16 m2. Orientation salon et pièce de vie principale exposées sur la terrasse à l’arrière. Carrelage grand format compris dans toute les pièces (hors chambres) et faïence au choix dans une large gamme disponible.Informations du terrain : Proche des commerces et du centre ville à 30 minutes de AGORD-LA ROCHELLEContact : Myriam GUERIN (Numéro supprimé)Informations : Myriam Guérin au (Numéro supprimé).Prix incluant assurance dommages-ouvrage, VRD compris, terrain viabilisé, assainissement compris, frais de notaire non compris, taxes non comprises, frais divers compris. Terrain sous réserve de disponibilité de notre partenaire foncier. Images non contractuelles.Cette annonce a été créée et diffusée avec le logiciel VITAHOME.
Champagné-les-Marais
TERRAIN ET MAISONClassique et fonctionnelle ! Votre maison plain-pied à partir de 90 m2 habitable vous apporte une grande pièce de vie de 45 m2 avec cellier isolé, cuisine et coin repas attenant. Salon indépendant. 2 grandes baies coulissantes exposées sur la terrasse arrière vous offrent luminosité et confort. Vous disposez de 3 chambres dont une située sur la façade arrière. La salle de bain est aménagée avec meuble 2 vasques, une grande douche et une baignoire. Garage attenant de 16 m2. Orientation salon et pièce de vie principale exposées sur la terrasse à l’arrière. Carrelage grand format compris dans toute les pièces (hors chambres) et faïence au choix dans une large gamme disponible.Informations du terrain : A CHAMPAGNE LES MARAIS à 2 pas du centre ville et des commerces.Contact : Myriam GUERIN (Numéro supprimé)Informations : Myriam Guérin au (Numéro supprimé).Prix incluant assurance dommages-ouvrage, VRD compris, terrain viabilisé, assainissement compris, frais de notaire compris, taxes non comprises, frais divers compris. Terrain sous réserve de disponibilité de notre partenaire foncier. Images non contractuelles.Cette annonce a été créée et diffusée avec le logiciel VITAHOME.
L’actualité immobilière à Puyravault
27/11/2023
02/11/2023
30/10/2023
20/10/2023
16/10/2023
16/10/2023