Images
Description
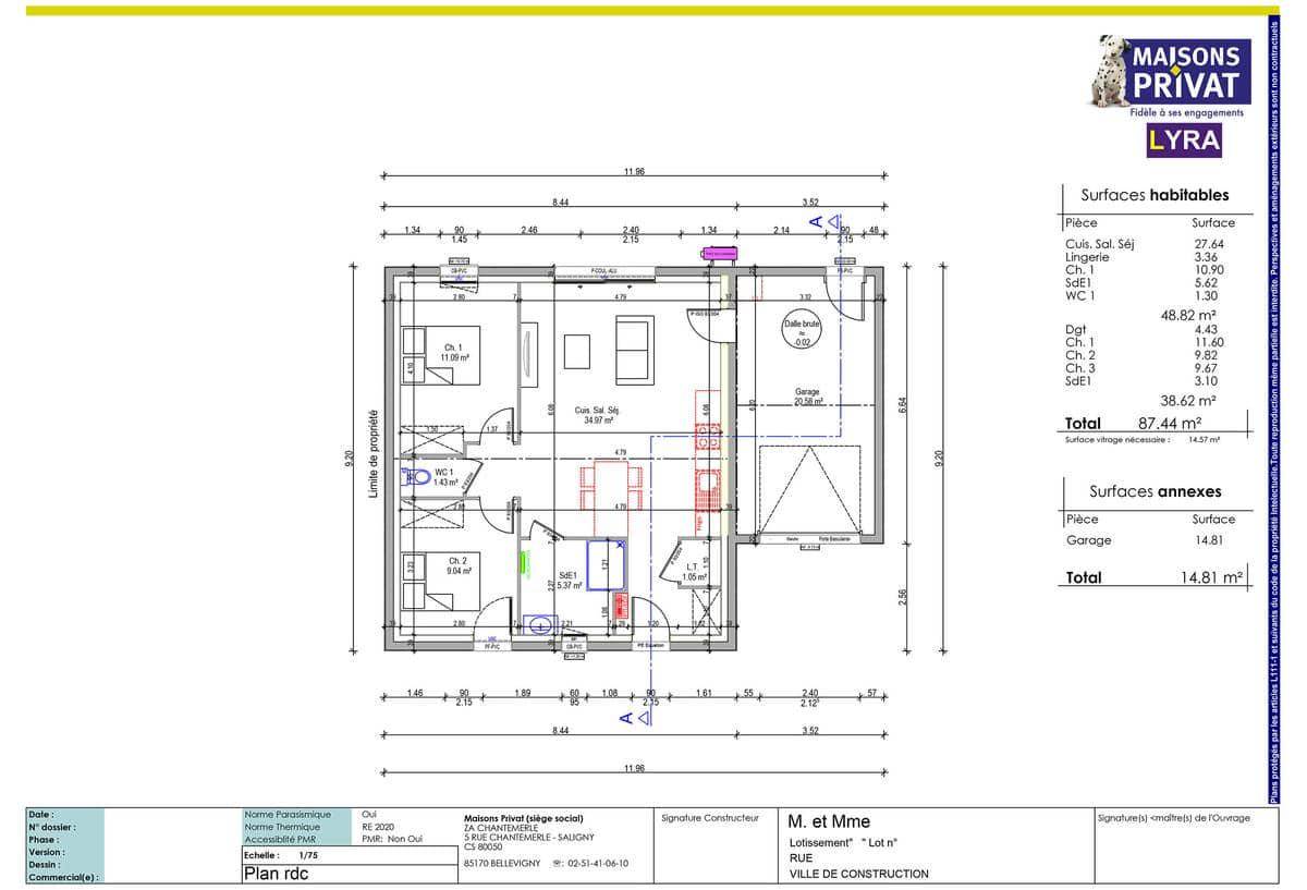
Sur ce terrain, nous vous proposons cette maison de plain-pied au design contemporain, idéale pour un confort de vie au quotidien. Ses deux chambres offrent un espace nuit cosy, tandis que la vaste pièce de vie de plus de 35 m² réunit cuisine ouverte, salle à manger et salon, baignés de lumière naturelle. Vous profiterez également d’une salle d’eau moderne et d’un WC indépendant, pensés pour simplifier votre quotidien.
Le garage de plus de 20 m² constitue un atout majeur pour stationner votre véhicule en toute sécurité ou aménager un espace de bricolage.
Son architecture élégante, soulignée par une toiture à double pente, s’intègre harmonieusement à l’environnement. Ne manquez pas cette belle opportunité?: chaque détail a été soigneusement étudié pour vous garantir une qualité de vie incomparable.
Logement susceptibles de vous intéresser
Nous vous proposons de découvrir aussi cette sélection de logements situés à moins de 10km de Saint-Gervais et qui seraient susceptibles de vous intéresser.
Bois-de-Céné
TERRAINEN PLEIN CENTRE VILLE – VUE SUR LA CAMPAGNE Nous vous proposons un terrain d’exception situé dans le charmant lotissement de Bois-de-Céné, avec une surface généreuse de 578 m². Ce terrain viabilisé est idéal pour la construction de votre future maison. Profitez d’un environnement paisible au cœur de la Vendée, où le cadre champêtre et la vue dégagée ajoutent une touche d’unicité à votre projet immobilier. Offrez-vous un cadre de vie calme, tout en étant à proximité des commodités essentielles. La ville de Bois-de-Céné, nichée dans le département de la Vendée, fait partie de la région dynamique des Pays de la Loire. Ses atouts incluent un centre-ville animé et la proximité immédiate de commerces variés, vous garantissant tout le nécessaire à votre quotidien. Ce cadre privilégié ravira les amateurs de nature et de tranquillité, tout en offrant un accès facile aux attractions locales, permettant ainsi un parfait équilibre entre vie urbaine et environnement serein. Ce terrain représente une opportunité unique de dessiner votre futur dans une ville à fort potentiel. Ce terrain dispose d’un potentiel remarquable pour ceux souhaitant construire leur maison de rêve. N’attendez plus pour envisager cette opportunité d’achat unique?! À noter qu’en tant que constructeur, nous ne sommes pas mandatés pour réaliser la vente de ce terrain.
Bois-de-Céné
TERRAIN ET MAISONSur ce terrain, nous vous proposons cette maison neuve : la Poiréenne, une maison qui vous offre sa singularité et son confort.Charmant pavillon de plain-pied, l’atout de choc de la Poiréenne tient dans l’originalité de ses formes asymétriques. Cette configuration permet d’isoler l’espace nuit dans une aile indépendante. Il sera possible d’ouvrir la pièce de vie sur 3 façades pour garantir un maximum de lumière et de chaleur à ses heureux propriétaires.Avec sa forme en T, vous profiterez au maximum de l’espace disponible de la profondeur de votre terrain. Les chambres sont réunies autour d’un dégagement qui comprend également la salle d’eau avec une douche italienne et des WC séparés. Côté jour, la Poiréenne vous propose un salon-séjour avec cuisine semi-ouverte, communiquant avec le garage.La surface habitable de 100 m² est totalement adaptable à vos envies. L’ajout d’une charpente traditionnelle au garage de taille généreuse est une option fréquemment retenue par les acquéreurs de cette maison. Ceci vous permettra l’aménagement d’un faux grenier avec un plancher bois.Les caractéristiques principales de cette maison incluent des baies coulissantes, des volets roulants, et la possibilité d’opter pour une baie à galandage. Cette maison neuve est basse consommation et conforme à la RE2020, garantissant ainsi des performances énergétiques optimales.Maisons Privat, constructeur centenaire avec les meilleurs avis clients de la région, vous propose cette maison qui allie confort, modernité et économie d’énergie. Ne manquez pas cette opportunité unique de devenir propriétaire d’une maison qui répond à toutes vos attentes.
Beauvoir-sur-Mer
TERRAINSUPERBE TERRAIN EN IMPASSE EN BIEN EXPOSE – VIABILISE À vendre, un terrain viabilisé exceptionnel de 479 m², idéal pour la construction de votre maison de rêve. Situé dans le charmant lotissement de Beauvoir-sur-Mer, ce terrain bénéficie d’un ensoleillement optimal et d’un cadre de vie calme, propice à l’épanouissement de votre famille. Son plat et son accessibilité vous permettront de réaliser facilement votre projet de construction personnalisé. C’est une opportunité rare à saisir, qui n’attend que vous ! Beauvoir-sur-Mer, nichée au cœur de la Vendée dans la magnifique région des Pays de la Loire, offre un cadre de vie à la fois dynamique et serein. La ville est entourée de paysages pittoresques et se trouve à proximité de magnifiques plages et de la nature préservée. Les écoles à proximité garantissent un environnement éducatif de qualité pour vos enfants, tandis que les commodités locales vous assurent de tout avoir à portée de main. Avec ses attractions locales et son ambiance conviviale, ce terrain se situe dans un quartier où il fait bon vivre. Ne manquez pas cette occasion unique d’acquérir un bien de grande valeur dans un emplacement de choix. Imaginez votre futur chez-vous dans ce cadre idyllique ! À noter qu’en tant que constructeur, nous ne sommes pas mandatés pour réaliser la vente de ce terrain.
Beauvoir-sur-Mer
TERRAIN ET MAISONSur ce terrain, nous vous proposons cette maison neuve : la Coueronnaise, une maison traditionnelle à étage de charme. Conçue par Maisons Privat, constructeur centenaire avec les meilleurs avis clients de la région, cette habitation d’une surface de 95 m² est la maison familiale par excellence.La Coueronnaise vous séduira par son architecture traditionnelle et sa façade décrochée. Elle dispose de 4 pièces bien agencées, dont 3 chambres spacieuses. Le séjour-cuisine-salon est vaste et lumineux, agrémenté de baies coulissantes qui apportent une belle luminosité naturelle. L’entrée est séparée, offrant une organisation optimale de l’espace.À l’étage, vous trouverez deux chambres munies de placards, une salle de bains avec baignoire et WC intégrés, ainsi qu’un bureau. En rez-de-chaussée, une suite parentale avec salle d’eau privative et une douche italienne vous offriront tout le confort nécessaire.Cette maison neuve est basse consommation et conforme à la RE2020, garantissant des performances énergétiques optimales et un respect de l’environnement. Parmi les options les plus demandées par nos clients, vous pourrez choisir un garage accolé, des menuiseries en aluminium et un système de domotique pour une maison encore plus moderne et fonctionnelle.Ne manquez pas cette opportunité unique de devenir propriétaire d’une maison neuve, bien organisée et économe en énergie, conçue par un constructeur de renom. Contactez-nous dès maintenant pour plus d’informations et pour visiter notre modèle Coueronnaise.
Saint-Gervais
TERRAINOPPORTUNITE – EMPLACEMENT IDEAL – EXPOSITION SUD PRIMO-ACCEDANTS OU INVESTISSEURS Nous avons le plaisir de vous présenter un terrain à vendre dans le charmant lotissement de Saint-Gervais, offrant une surface généreuse de 354 m², parfaitement viabilisé et prêt à accueillir votre projet de construction de maison. Ce terrain bénéficie de caractéristiques uniques qui en font un emplacement privilégié : un cadre de vie paisible et agréable, idéal pour les familles et les personnes en quête d’un coin de tranquillité, tout en étant à proximité des commodités. Saint-Gervais, située dans le département de la Vendée au cœur de la région Pays de la Loire, se distingue par son ambiance conviviale et ses nombreuses attractions locales. Les commerces de proximité sont facilement accessibles, et la commune offre un cadre de vie de qualité, propice à la détente et aux loisirs. Profitez de la quiétude des environs, tout en étant proche des activités et des services qui enrichissent le quotidien. Le top emplacement de ce terrain, combiné à un prix attractif, en fait une occasion à ne pas manquer. Imaginez la maison de vos rêves sur ce terrain aux multiples atouts. N’hésitez pas à envisager cette opportunité d’achat unique et à nous contacter pour plus d’informations. À noter qu’en tant que constructeur, nous ne sommes pas mandatés pour réaliser la vente de ce terrain.
Saint-Gervais
TERRAIN ET MAISONSur ce terrain, nous vous proposons cette maison de plain-pied au design contemporain, idéale pour un confort de vie au quotidien. Ses deux chambres offrent un espace nuit cosy, tandis que la vaste pièce de vie de plus de 35 m² réunit cuisine ouverte, salle à manger et salon, baignés de lumière naturelle. Vous profiterez également d’une salle d’eau moderne et d’un WC indépendant, pensés pour simplifier votre quotidien.Le garage de plus de 20 m² constitue un atout majeur pour stationner votre véhicule en toute sécurité ou aménager un espace de bricolage. Son architecture élégante, soulignée par une toiture à double pente, s’intègre harmonieusement à l’environnement. Ne manquez pas cette belle opportunité?: chaque détail a été soigneusement étudié pour vous garantir une qualité de vie incomparable.
Beauvoir-sur-Mer
TERRAIN ET MAISONA BEAUVOIR-SUR-MER sur un terrain de 377 m², Alliance Construction vous propose de réaliser votre projet de construction de maison individuelle d'une surface de 157.34 m² habitables avec 4 chambres.Demandez une étude gratuite et personnalisée de votre projet de construction !* Cette offre comprend :- Garanties constructeurs (dommages ouvrage, garantie de prix ferme et définitif, garantie de livraison, responsabilité civile et décennale).- Branchements aux compteurs et accès empierré sur 5m linéaires.Habitez une maison spécialement pensée et conçue pour vous et votre famille, prête à décorer, adaptée à vos modes de vie, personnalisée selon vos goûts grâce à un large choix d'options, de matériaux et d'innovations !Ne manquez pas cette chance unique de concrétiser votre projet immobilier. Contactez-nous dès aujourd'hui pour commencer à planifier la maison de vos rêves !Contactez Perrick MACCHI au (Numéro supprimé) (Alliance Construction – Agence des Sables-d'Olonne).*Prix indicatif pour un projet de construction d'une maison individuelle. Ne sont pas inclus les frais de branchements, raccordements aux réseaux publics, frais d'adaptations, aménagements intérieurs et extérieurs et options. terrain viabilisé, frais de notaire non compris, frais divers non compris. Garanties et assurances obligatoires incluses. Terrain sélectionné par ALLIANCE auprès de nos partenaires fonciers, selon disponibilité, pour la construction d'une maison neuve. Non mandaté pour réaliser la vente (loi du 2 janvier 1970 n°70-9). Visuels non contractuels. Voir détails en agence.Cette annonce a été créée et diffusée avec le logiciel VITAHOME.
Beauvoir-sur-Mer
TERRAIN ET MAISONA BEAUVOIR-SUR-MER sur un terrain de 377 m², Alliance Construction vous propose de réaliser votre projet de construction de maison OSSATURE BOIS d'une surface de 95 m² habitables avec 4 chambresDemandez une étude gratuite et personnalisée de votre projet de construction !* Cette offre comprend :- Garanties constructeurs (dommages ouvrage, garantie de prix ferme et définitif, garantie de livraison, responsabilité civile et décennale).- Branchements aux compteurs et accès empierré sur 5m linéaires.Habitez une maison spécialement pensée et conçue pour vous et votre famille, prête à décorer, adaptée à vos modes de vie, personnalisée selon vos goûts grâce à un large choix d'options, de matériaux et d'innovations !Découvrez tous nos modèles de maisons sur notre site internet ou appelez-nous pour réaliser votre projet entièrement sur-mesure.Contactez Perrick MACCHI au (Numéro supprimé) (Alliance Construction – Agence des Sables-d'Olonne).*Prix indicatif pour un projet de construction d'une maison individuelle. Ne sont pas inclus les frais de branchements, raccordements aux réseaux publics, frais d'adaptations, aménagements intérieurs et extérieurs et options. terrain viabilisé, frais de notaire non compris, frais divers non compris. Garanties et assurances obligatoires incluses. Terrain sélectionné par ALLIANCE auprès de nos partenaires fonciers, selon disponibilité, pour la construction d'une maison neuve. Non mandaté pour réaliser la vente (loi du 2 janvier 1970 n°70-9). Visuels non contractuels. Voir détails en agence.Cette annonce a été créée et diffusée avec le logiciel VITAHOME.
Beauvoir-sur-Mer
TERRAIN ET MAISONEnvie de renouveau ? Profitez du printemps pour concrétiser un nouveau projet. Votre maison Alliance construite en fonction de vos besoins avec des matériaux et des équipements de qualité à partir de 197350€ *.Habitez une maison spécialement pensée et conçue pour vous et votre famille, prête à décorer, adaptée à votre mode de vie, personnalisée selon vos goûts grâce à un large choix d’options, de matériaux et d’innovations !Découvrez tous nos modèles de maisons sur notre site internet ou appelez-nous pour réaliser votre projet entièrement sur-mesure.Contactez Perrick MACCHI au (Numéro supprimé) (Alliance Construction – Agence des Sables-d'Olonne).*Prix indicatif pour un projet de construction d'une maison individuelle. Ne sont pas inclus les frais de branchements, raccordements aux réseaux publics, frais d'adaptations, aménagements intérieurs et extérieurs et options. terrain viabilisé, frais de notaire non compris, frais divers non compris. Garanties et assurances obligatoires incluses. Terrain sélectionné par ALLIANCE auprès de nos partenaires fonciers, selon disponibilité, pour la construction d'une maison neuve. Non mandaté pour réaliser la vente (loi du 2 janvier 1970 n°70-9). Visuels non contractuels. Voir détails en agence.Cette annonce a été créée et diffusée avec le logiciel VITAHOME.
L’actualité immobilière à Saint-Gervais
27/11/2023
02/11/2023
30/10/2023
20/10/2023
16/10/2023
16/10/2023