Images
Description
Sur ce terrain, nous vous proposons cette maison neuve : la Dompierroise, une maison au concept original et agréable.
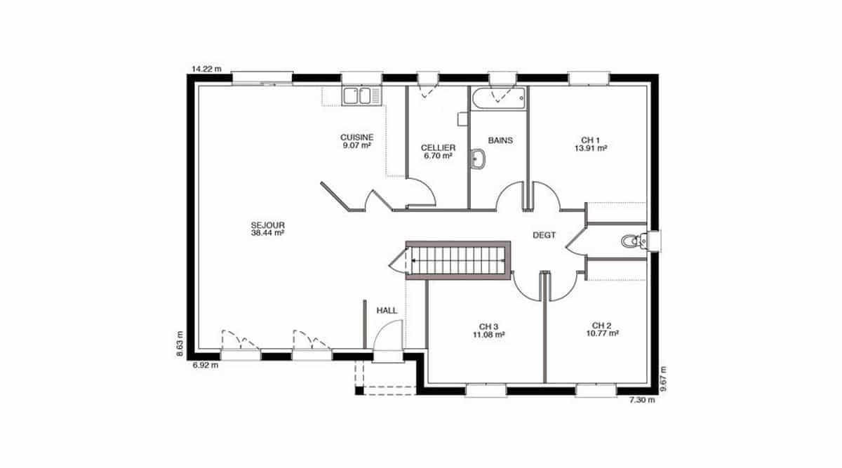
La Dompierroise est une intéressante maison traditionnelle de plain-pied dont l’originalité tient au fait qu’elle se compose de deux corps de bâtiment en décalé. Ce qui permet une délimitation des espaces intéressante et une organisation optimisée. Avec une surface de 90 m², cette maison dispose de 4 chambres et de 4 pièces, offrant ainsi un espace de vie confortable et fonctionnel pour toutes les configurations familiales.
Déclinée en versions allant du T3 au T5, la Dompierroise s’adapte totalement à la composition de votre famille. Du plus petit au plus grand modèle, vous trouverez la même organisation pratique de l’intérieur, avec un salon-séjour-cuisine spacieux. Un grand garage intégré est inclus, quelle que soit la version, et un porche accueillant complète l’ensemble.
Ceux qui ont aimé ce modèle ont également retenu ces options :
- Enduit bi-ton pour une façade élégante et personnalisée.
- Plancher chauffant pour un confort thermique optimal.
- Sous-sol pour un espace de rangement supplémentaire ou un atelier.
Cette maison neuve est basse consommation et conforme à la RE2020, garantissant ainsi des performances énergétiques exceptionnelles et un respect des normes environnementales les plus récentes.
Le constructeur de cette maison est Maisons Privat, un constructeur centenaire avec les meilleurs avis clients de la région. Faites confiance à leur expertise et à leur savoir-faire pour réaliser votre projet de vie.
Logement susceptibles de vous intéresser
Nous vous proposons de découvrir aussi cette sélection de logements situés à moins de 10km de Saint-Gilles-Croix-de-Vie et qui seraient susceptibles de vous intéresser.
Saint-Maixent-sur-Vie
TERRAIN ET MAISONSur ce terrain, nous vous proposons ce modèle de maison qui incarne l’harmonie parfaite entre fonctionnalité et adaptabilité, elle est conçue pour répondre à vos besoins présents tout en anticipant vos projets futurs.Le cœur de cette maison est une pièce de vie spacieuse et lumineuse de 30 m², judicieusement aménagée pour maximiser le confort et l’utilité. Cet espace multifonctionnel combine un salon / séjour accueillant, et une cuisine ouverte moderne. Les grandes fenêtres baignent la pièce de lumière naturelle, créant une atmosphère chaleureuse et accueillante, idéale pour se détendre ou recevoir des invités.À côté de la pièce de vie se trouvent une chambre et une salle d’eau.Adossé à la maison, un garage de 34 m.² offre un espace pratique pour garer un véhicule ou stocker des équipements. La conception de cette maison intègre dès le départ la possibilité d’évolution. Lorsque le moment sera venu d’agrandir, l’atelier actuel pourra être aménagé en une chambre avec salle d’eau ou dressing. Cette transformation est facilitée par une infrastructure prévue pour accueillir les installations sanitaires nécessaires. Cette flexibilité permet d’adapter la maison à l’évolution de votre famille ou de vos besoins sans compromis sur le confort ou la qualité de vie.En résumé, cette maison évolutive est une solution idéale pour ceux qui cherchent à investir dans un habitat adaptable et durable. * Prix indiqué hors branchements, hors sanitaires, hors revêtement des sols et des murs. Assurance dommages ouvrages incluse.
Saint-Maixent-sur-Vie
TERRAINÀ la recherche d’un lieu idéal pour concrétiser votre projet de construction de maison ? Ce terrain d’une surface de 494 m², entièrement viabilisé, vous offre une opportunité exceptionnelle. Situé dans un paisible lieu-dit entre Commequiers, Coex et Saint-Maixent-sur-Vie, ce terrain bénéficie d’un cadre de vie agréable et propice à la sérénité. Idéal pour les familles ou les amoureux de la nature, il constitue un emplacement parfait pour développer votre rêve immobilier. Saint-Maixent-sur-Vie, située dans le département de la Vendée au sein de la région Pays de la Loire, regorge d’attractions locales et de commodités qui sauront séduire les futurs propriétaires. À proximité du terrain, vous retrouverez des sentiers de randonnée et des espaces naturels préservés, parfaits pour des moments de détente en plein air. La ville offre également des services modernes, des commerces, ainsi que des écoles de qualité, favorisant un cadre de vie agréable et pratique. Vous serez charmé par l’ambiance conviviale de cette région qui marie harmonieusement tranquillité et accessibilité. Ne laissez pas passer cette occasion unique d’acquérir un terrain prometteur dans un environnement enchanteresque. Nous vous invitons à considérer cette opportunité d’achat qui pourrait transformer votre rêve en réalité. À noter qu’en tant que constructeur, nous ne sommes pas mandatés pour réaliser la vente de ce terrain.
Saint-Maixent-sur-Vie
TERRAINDécouvrez ce magnifique terrain viabilisé de 494 m² situé dans un lieu-dit paisible entre Commequiers, Coex et Saint-Maixent-sur-Vie, idéal pour la réalisation de votre projet de construction de maison. Ce terrain offre une belle opportunité pour construire la maison de vos rêves dans un cadre calme et agréable. Profitez d’un environnement serein tout en étant à proximité des commodités nécessaires à votre vie quotidienne. Saint-Maixent-sur-Vie, nichée en Vendée au cœur de la région Pays de la Loire, est une ville dynamique qui allie sérénité et modernité. Son emplacement privilégié vous permet de profiter des plaisirs de la nature avec de nombreuses activités de plein air tout en étant à proximité des commodités essentielles, telles que les commerces, les écoles et les infrastructures sportives. La région est également réputée pour ses paysages pittoresques et sa richesse culturelle, offrant ainsi à ses habitants un cadre de vie privilégié. Ne manquez pas cette occasion unique d’investir dans ce terrain prometteur et envisagez dès à présent les nombreuses possibilités qu’il vous offre. Contactez-nous pour plus d’informations. À noter qu’en tant que constructeur, nous ne sommes pas mandatés pour réaliser la vente de ce terrain.
Saint-Hilaire-de-Riez
TERRAINPascal LAVERGNE (EI) megAgence vous propose ce terrain constructible viabilisé et borné de 436 m2 situé sur la commune de Saint-Hilaire-de-Riez à proximité de Saint Gilles Croix de Vie, des commerces et des plages.Quartier recherché et desservi par le tout à l’égout.Zone UBa, emprise au sol 100%, Piscinable.Libre de tout constructeur.Les informations sur les risques auxquels ce bien est exposé sont disponibles sur le site Géorisques : www.georisques.gouv.frPrix de vente honoraires d’agence inclus : 157 500 €Prix de vente hors honoraires d’agence : 150 000 €Honoraires : 5 % TTC de la valeur du bien hors honorairesContactez votre consultant megAgence : Pascal LAVERGNE, Tél. : (Numéro supprimé), E-mail : (Email supprimé) – EI – Agent commercial immatriculé au RSAC de LA ROCHE-SUR-YON sous le numéro 507 842 086
Saint-Maixent-sur-Vie
TERRAINDécouvrez ce lotissement de 494 m², idéalement situé pour réaliser votre projet de construction de maison dans la charmante commune de Saint-Maixent-sur-Vie. Ce terrain viabilisé saura vous séduire par son potentiel d’aménagement et sa configuration propice à l’épanouissement de votre future résidence. Profitez d’un environnement paisible dans un lieu-dit entre Commequiers, Coex et Saint-Maixent-sur, où la convivialité des riverains crée une atmosphère chaleureuse et accueillante. Saint-Maixent-sur-Vie, située dans le département de la Vendée, au cœur de la région Pays de la Loire, bénéficie d’un cadre de vie privilégié. La commune offre un accès facile aux grandes axes routiers tout en préservant une ambiance tranquille. Vous trouverez à proximité des attractions locales telles que des sentiers de randonnée, des commerces pratiques et des écoles de qualité. Les belles plages de la côte vendéenne ne sont qu’à quelques kilomètres, ajoutant à ce cadre exceptionnel un atout tout particulier pour les amoureux de la nature et des activités en plein air. Ne manquez pas cette opportunité d’acquérir un terrain de choix, tout en contemplant le potentiel que ce lieu peut offrir. Une vie sereine vous attend, alors n’hésitez plus et envisagez dès maintenant d’y poser vos valises ! À noter qu’en tant que constructeur, nous ne sommes pas mandatés pour réaliser la vente de ce terrain.
Saint-Maixent-sur-Vie
TERRAIN ET MAISONSur ce terrain, nous vous proposons cette superbe maison de plain-pied, alliant confort, modernité et praticité, idéale pour une famille en quête de bien-être.Avec son agencement optimisé, cette maison vous offre une spacieuse pièce de vie baignée de lumière naturelle, comprenant un séjour convivial et une cuisine ouverte fonctionnelle, parfaite pour des moments en famille ou entre amis.L’espace nuit se compose de trois belles chambres offrant confort et sérénité, d’une salle d’eau moderne et de WC séparés pour plus de praticité.Un garage intégré vient compléter ce bien, idéal pour stationner un véhicule ou disposer d’un espace de rangement supplémentaire.
Saint-Hilaire-de-Riez
TERRAINPascal LAVERGNE (EI) megAgence vous propose ce terrain constructible viabilisé et borné de 640 m2 situé sur la commune de Saint-Hilaire-de-Riez à proximité de Saint Gilles Croix de Vie, des commerces et des plages.Quartier recherché et desservi par le tout à l’égout.Zone UBa, emprise au sol 100%, Piscinable.Libre de tout constructeur.Les informations sur les risques auxquels ce bien est exposé sont disponibles sur le site Géorisques : www.georisques.gouv.frPrix de vente honoraires d’agence inclus : 189 500 €Prix de vente hors honoraires d’agence : 180 000 €Honoraires : 5,28 % TTC de la valeur du bien hors honorairesContactez votre consultant megAgence : Pascal LAVERGNE, Tél. : (Numéro supprimé), E-mail : (Email supprimé) – EI – Agent commercial immatriculé au RSAC de LA ROCHE-SUR-YON sous le numéro 507 842 086
Saint-Maixent-sur-Vie
TERRAIN ET MAISONSur ce terrain, nous vous proposons une maison contemporaine pensée pour le bien-être de toute la famille. Avec ses 90,57 m² de surface habitable et ses espaces lumineux cette maison à étage est idéale pour ceux qui recherchent un cadre de vie agréable et fonctionnel.Un intérieur chaleureux et optimiséDès l’entrée, découvrez une belle pièce de vie de 37 m², spacieuse et lumineuse grâce à ses larges ouvertures donnant sur le jardin . L’espace salon-salle à manger se prolonge harmonieusement avec une cuisine ouverte, idéale pour partager des moments conviviaux.Le rez-de-chaussée accueille également une suite parentale confortable de 12,18 m², garantissant calme et intimité. Une salle d’eau moderne et des WC indépendants complètent ce niveau.Un étage conçu pour la familleÀ l’étage, deux chambres de 10,70 m² et 10,74 m² offrent un espace de vie agréable pour les enfants ou les invités. Une grande salle d’eau de 5,56 m² ainsi qu’un palier pouvant être aménagé en coin bureau ou espace détente complètent ce niveau.Sur cette version, un garage peut être ajouté en option.* Prix indiqué hors branchements, hors sanitaires, hors revêtement des sols et des murs. Assurance dommages ouvrages incluse.
Givrand
TERRAIN ET MAISONA GIVRAND sur un terrain de 225 m², Alliance Construction vous propose de réaliser votre projet de construction de maison individuelle d'une surface de 80 m² habitables avec 3 chambres, à partir de 225072€*Demandez une étude gratuite et personnalisée de votre projet de construction !* Cette offre comprend :- Garanties constructeurs (dommages ouvrage, garantie de prix ferme et définitif, garantie de livraison, responsabilité civile et décennale).- Branchements aux compteurs et accès empierré sur 5m linéaires.Habitez une maison spécialement pensée et conçue pour vous et votre famille, prête à décorer, adaptée à vos modes de vie, personnalisée selon vos goûts grâce à un large choix d'options, de matériaux et d'innovations !Contactez Perrick MACCHI au (Numéro supprimé) (Alliance Construction – Agence des Sables-d'Olonne).*Prix indicatif pour un projet de construction d'une maison individuelle. Ne sont pas inclus les frais de branchements, raccordements aux réseaux publics, frais d'adaptations, aménagements intérieurs et extérieurs et options. terrain viabilisé, frais de notaire non compris, frais divers non compris. Garanties et assurances obligatoires incluses. Terrain sélectionné par ALLIANCE auprès de nos partenaires fonciers, selon disponibilité, pour la construction d'une maison neuve. Non mandaté pour réaliser la vente (loi du 2 janvier 1970 n°70-9). Visuels non contractuels. Voir détails en agence.Cette annonce a été créée et diffusée avec le logiciel VITAHOME.
L’actualité immobilière à Saint-Gilles-Croix-de-Vie
27/11/2023
02/11/2023
30/10/2023
20/10/2023
16/10/2023
16/10/2023