Maison à construire à Saint-Hilaire-de-Riez (85270)
Images
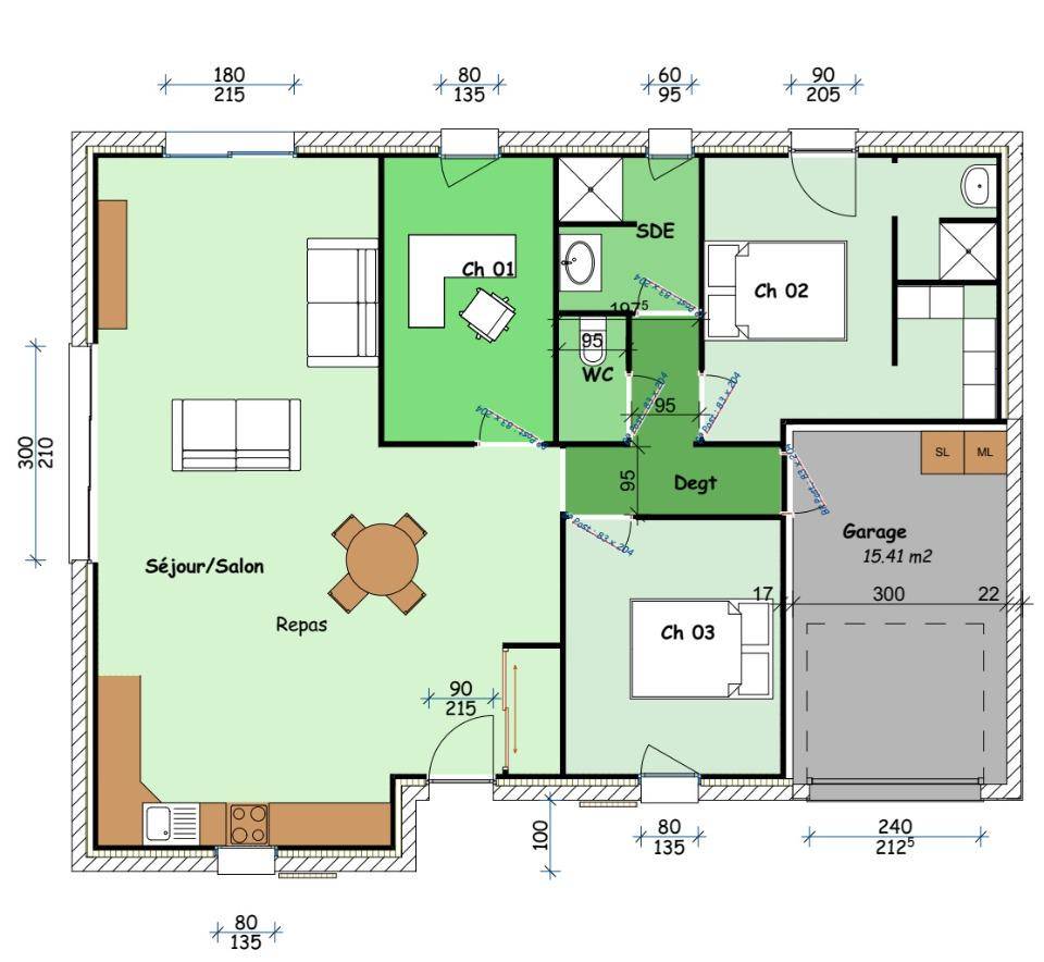
Description
**********PROCHE DU BOURG DE ST HIALIRE DE RIEZ ***********
Maison T4 (90 m²) à vendre à Saint-Hilaire-de-Riez
IDÉALEMENT SITUÉE - MAISON 4 PIÈCES NEUVE
À vendre à 5 km de la côte atlantique, idéalement située dans Saint-Hilaire-de-Riez (85270), LMP Constructeur Saint-Gilles-Croix-de-Vie vous propose cette maison de 4 pièces de plain-pied de 90 m² et de 301 m² de terrain. Son intérieur dispose de trois chambres, d'une cuisine et d'une salle de bains.
Cette maison est neuve.
La maison se situe dans un quartier attractif. Il y a l'École Maternelle Publique Henry Simon, l'École Élémentaire Publique Henry Simon et l'École Primaire Privée Mixte le Marais Bleu à moins de 10 minutes à pied. Niveau transports, on trouve la gare Saint-Hilaire-de-Riez juste à côté. Il y a trois boulangeries, trois commerces, une supérette, un bureau de poste et une épicerie dans les environs.
Elle est proposée à l'achat pour 312 900 €.
N'hésitez pas à prendre contact avec notre agence (Nicolas RISSELIN : (Numéro supprimé)) pour obtenir de plus amples renseignements sur le bien. LMP Constructeur Saint-Gilles-Croix-de-Vie est là pour vous accompagner dans toutes vos démarches.
**********PROCHE DU BOURG DE ST HIALIRE DE RIEZ ***********
Logement susceptibles de vous intéresser
Nous vous proposons de découvrir aussi cette sélection de logements situés à moins de 10km de Saint-Hilaire-de-Riez et qui seraient susceptibles de vous intéresser.
Soullans
TERRAINVENTE : terrain de 360 m² à SoullansIDÉALEMENT SITUÉÀ Soullans (85300) à 12 km de la côte atlantique, donnez vie à votre projet immobilier sur ce terrain de 360 m². Il donne sur un jardin. Dans un secteur prisé, le terrain idéalement situé est proche des écoles et des commerces. On trouve l’École Primaire Publique Charles Milcendeau et l’École Primaire Privée les Roseaux à moins de 5 minutes . Niveau transports en commun, il y a deux gares (Challans et Saint-Hilaire-de-Riez) à moins de 10 minutes en voiture. On trouve un tennis, quatre commerces, deux boulangeries, une supérette, deux boucheries-charcuteries et une poissonnerie dans les environs.Ce terrain est à vendre pour la somme de 73 000 €. N’hésitez pas à prendre contact avec notre agence (MIGAULT Tony : (Numéro supprimé)) pour plus de renseignements sur le terrain ou sur les démarches à suivre.
Soullans
TERRAIN ET MAISONMaison de 3 pièces (61 m²) à vendre à SoullansIDÉALEMENT SITUÉE – MAISON 3 PIÈCES NEUVEÀ 12 km de la côte atlantique, notre agence LMP Constructeur Challans est ravie de vous présenter cette maison de 3 pièces de plain-pied de 61 m² à vendre, idéalement située dans Soullans (85300).Elle compte deux chambres, une cuisine et une salle de bains. La maison est neuve.Le terrain de la propriété s’étend sur 360 m².Cette maison se trouve dans un secteur prisé. Il y a l’École Primaire Publique Charles Milcendeau et l’École Primaire Privée les Roseaux à moins de 5 minutes. Côté transports en commun, on trouve deux gares (Challans et Saint-Hilaire-de-Riez) à moins de 10 minutes en voiture. Il y a un tennis, quatre commerces, deux boulangeries, une poissonnerie, une supérette et un bureau de poste à proximité de la maison.Elle est proposée à l’achat pour 189 000 €.N’hésitez pas à prendre contact avec notre constructeur (Tony MIGAULT : (Numéro supprimé)) pour obtenir de plus amples informations sur le bien ou sur les modalités de vente. Faites de vos projets immobiliers une réalité avec LMP Constructeur Challans.
Soullans
TERRAIN ET MAISONMaison de 3 pièces (61 m²) à vendre à SoullansIDÉALEMENT SITUÉE – MAISON 3 PIÈCES NEUVEEn vente : à 12 km de la côte atlantique, LMP Constructeur Challans vous propose cette maison de 3 pièces de plain-pied de 61 m² et de 360 m² de terrain idéalement située dans Soullans (85300).Elle offre deux chambres, une cuisine et une salle de bains. Cette maison est neuve.La maison se situe dans un quartier recherché. L’École Primaire Publique Charles Milcendeau et l’École Primaire Privée les Roseaux se trouvent à moins de 5 minutes. Côté transports en commun, il y a deux gares (Challans et Saint-Hilaire-de-Riez) à moins de 10 minutes en voiture. On trouve un tennis, quatre commerces, deux boulangeries, une supérette, deux boucheries-charcuteries et un bureau de poste dans les environs.Elle est à vendre pour la somme de 198 000 €.Contactez Tony MIGAULT (tél : (Numéro supprimé)) pour tout renseignement sur la maison.
Soullans
TERRAIN ET MAISONVENTE d’une maison de 5 pièces (90 m²) à SoullansIDÉALEMENT SITUÉE – MAISON 5 PIÈCES NEUVEEn vente à 12 km de la côte atlantique, laissez vous charmer par, idéalement située dans Soullans (85300), cette maison de 5 pièces de plain-pied de 90 m² et de 360 m² de terrain.Elle comporte trois chambres, une cuisine et deux salles de bains. La maison est neuve.La maison se trouve dans un secteur attractif. Il y a l’École Primaire Publique Charles Milcendeau et l’École Primaire Privée les Roseaux à moins de 5 minutes. Niveau transports, on trouve les gares Challans et Saint-Hilaire-de-Riez à moins de 10 minutes en voiture. Il y a un tennis, quatre commerces, deux boulangeries, un bureau de poste, une poissonnerie et deux boucheries-charcuteries à proximité.Son prix de vente est de 262 000 €.Prenez contact avec Tony MIGAULT ((Numéro supprimé)) pour toute information sur la maison ou sur les modalités de vente. LMP Constructeur Challans vous accompagne dans tous vos projets immobiliers et dans toutes vos démarches.
Saint-Jean-de-Monts
TERRAIN ET MAISONSaint-Jean-de-Monts Terrain constructible de 614 m², idéalement situé dans un secteur calme et recherché. Parfait pour votre projet de maison proche des commerces et des plages. Spacieuse et fonctionnelle, cette maison traditionnelle de plain-pied est dotée d'un grand espace de vie de 40 m² environ avec cuisine ouverte, très lumineux inondé de lumière grâce à ses grandes ouvertures. Un dégagement dessert trois chambres, une salle de bains. Le garage intégré communiquant avec le cellier se révélera un plus pour cette charmante maison. Pour vous assurer un confort de vie et conformément à la RE2025, nous avons choisi un mode de chauffage par PAC + plancher chauffant, volets roulants électriques. Prix hors fourniture et pose : des appareils sanitaires (sauf système de chauffage et d'eau chaude sanitaire), du carrelage et de la faïence, des revêtements de sol dans les chambres. Hors décoration et aménagement intérieur et peinture. Hors raccordements, frais de notaire et dommage ouvrage. // Réf. : 2565-210795-GMI. Prix terrain : 92 660 €, hors frais d'agence à la charge de l'acquéreur. Ce terrain vous est proposé, par nos partenaires fonciers, dans le cadre d'un projet de construction avec nous. Les informations sur les risques auxquels ce bien est exposé sont disponibles sur le site Géorisques (www.georisques.gouv.fr). Prix maison : 126 067 €.
Saint-Jean-de-Monts
TERRAIN ET MAISONSaint-Jean-de-Monts Terrain constructible de 614 m², idéalement situé dans un secteur calme et recherché. Parfait pour votre projet de maison proche des commerces et des plages. Familiale et lumineuse. Le modèle PANAY vous propose un plan de maison très astucieux. Cette maison est idéalement agencée avec une entrée sur un grand espace de vie et une cuisine ouverte accolée au cellier. La « zone jour » et délimitée de la « zone nuit » par un dégagement qui dessert quatre belles chambres, une salle de bain et les wc séparés. Pour le côté pratique, le garage est intégré à la maison. Pour vous assurer un confort de vie et conformément à la RE2025, nous avons choisi un mode de chauffage par PAC + plancher chauffant, volets roulants électriques. Prix hors fourniture et pose : des appareils sanitaires (sauf système de chauffage et d'eau chaude sanitaire), du carrelage et de la faïence, des revêtements de sol dans les chambres. Hors décoration et aménagement intérieur et peinture. Hors raccordements, frais de notaire et dommage ouvrage. // Réf. : 2566-210795-GMI. Prix terrain : 92 660 €, hors frais d'agence à la charge de l'acquéreur. Ce terrain vous est proposé, par nos partenaires fonciers, dans le cadre d'un projet de construction avec nous. Les informations sur les risques auxquels ce bien est exposé sont disponibles sur le site Géorisques (www.georisques.gouv.fr). Prix maison : 134 816 €.
Saint-Jean-de-Monts
TERRAIN ET MAISONSaint-Jean-de-Monts Terrain constructible de 614 m², idéalement situé dans un secteur calme et recherché. Parfait pour votre projet de maison proche des commerces et des plages. Transformez votre maison avec la gamme Evoliâ. Vous rêvez d'une maison évolutive qui s'adapte parfaitement à vos besoins et à votre budget ? La gamme Evoliâ est conçue pour vous. Avec Evoliâ, commencez petit et imaginez grand, transformant votre espace de vie au fil du temps. Imaginez convertir votre maison deux chambres en une spacieuse maison trois chambres. Notre solution innovante vous permet de tirer parti du garage de 28 m², un atout majeur. Ce garage peut être aménagé en une ou deux chambres supplémentaires selon vos besoins, vous offrant ainsi la possibilité d'agrandir votre maison sans les contraintes d'un déménagement, en optimisant chaque mètre carré. Prix hors fourniture et pose : des appareils sanitaires (sauf système de chauffage et d'eau chaude sanitaire), du carrelage, de la faïence, de la cuisine aménagée, des revêtements de sol dans les chambres. Hors décoration, aménagement intérieur, peinture, raccordements, frais de notaire et dommage ouvrage. (Surface habitable 49 m²+garage 28 m²). // Réf. : 2616-210795-GMI. Prix terrain : 92 660 €, hors frais d'agence à la charge de l'acquéreur. Ce terrain vous est proposé, par nos partenaires fonciers, dans le cadre d'un projet de construction avec nous. Les informations sur les risques auxquels ce bien est exposé sont disponibles sur le site Géorisques (www.georisques.gouv.fr). Prix maison : 95 542 €.
Saint-Jean-de-Monts
TERRAINSaint-Jean-de-Monts Terrain constructible de 614 m², idéalement situé dans un secteur calme et recherché. Parfait pour votre projet de maison proche des commerces et des plages. // Réf. : T210795. Prix terrain : 92 660 €, hors frais d'agence et de notaire à la charge de l'acquéreur. Ce terrain vous est proposé, par nos partenaires fonciers, dans le cadre d'un projet de construction avec nous. Les informations sur les risques auxquels ce bien est exposé sont disponibles sur le site Géorisques (www.georisques.gouv.fr).
Saint-Jean-de-Monts
TERRAINSaint-Jean-de-Monts Terrain constructible de 614 m², idéalement situé dans un secteur calme et recherché. Parfait pour votre projet de maison proche des commerces et des plages. // Réf. : T210795. Prix terrain : 92 660 €, hors frais d'agence et de notaire à la charge de l'acquéreur. Ce terrain vous est proposé, par nos partenaires fonciers, dans le cadre d'un projet de construction avec nous. Les informations sur les risques auxquels ce bien est exposé sont disponibles sur le site Géorisques (www.georisques.gouv.fr).
L’actualité immobilière à Saint-Hilaire-de-Riez
27/11/2023
02/11/2023
30/10/2023
20/10/2023
16/10/2023
16/10/2023