Maison à construire à Saint-Hilaire-de-Riez (85270)
Images
Description
******AU CENTRE DU BOURG DE ST HILAIRE DE RIEZ*****
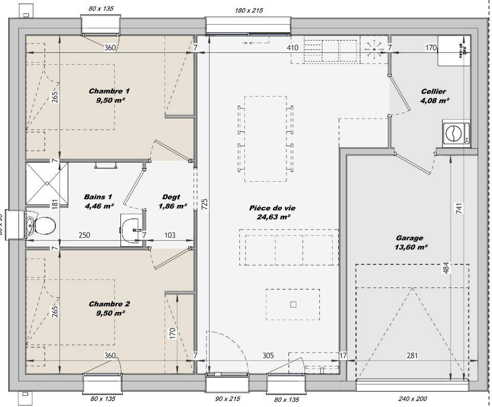
Saint-Hilaire-de-Riez : maison T3 (54 m²) à vendre
QUARTIER RECHERCHÉ - MAISON 3 PIÈCES NEUVE
À vendre : située à 5 km de l'océan Atlantique, venez découvrir, dans un secteur attractif de Saint-Hilaire-de-Riez (85270), cette maison de 3 pièces de plain-pied de 54 m². Son intérieur offre trois chambres, une cuisine et une salle de bains.
Le terrain de cette maison s'étend sur 244 m².
La maison est neuve.
Cette maison se trouve dans un quartier convoité. Il y a l'École Maternelle Publique Henry Simon, l'École Élémentaire Publique Henry Simon et l'École Primaire Privée Mixte le Marais Bleu à moins de 10 minutes à pied. Niveau transports, on trouve la gare Saint-Hilaire-de-Riez à quelques pas du bien. Il y a trois boulangeries, trois commerces, un bureau de poste, une supérette et une poissonnerie à proximité.
Elle est proposée à l'achat pour 219 900 €.
Contactez notre agence (Nicolas RISSELIN : (Numéro supprimé)) pour tout renseignement sur la propriété, sur les démarches à suivre ou sur les modalités de vente. Faites de vos projets immobiliers une réalité avec LMP Constructeur Saint-Gilles-Croix-de-Vie.
******AU CENTRE DU BOURG DE ST HILAIRE DE RIEZ*****
Logement susceptibles de vous intéresser
Nous vous proposons de découvrir aussi cette sélection de logements situés à moins de 10km de Saint-Hilaire-de-Riez et qui seraient susceptibles de vous intéresser.
Saint-Hilaire-de-Riez
TERRAIN******AU CENTRE DU BOURG DE ST HILAIRE DE RIEZ*****VENTE d’un terrain de 244 m² à Saint-Hilaire-de-RiezQUARTIER RECHERCHÉSur la côte atlantique à Saint-Hilaire-de-Riez (85270), terrain de 244 m². Réalisez-y votre projet de construction. Dans un secteur attractif, le terrain niché dans un quartier convoité est proche des commerces et des écoles. L’École Maternelle Publique Henry Simon, l’École Élémentaire Publique Henry Simon et l’École Primaire Privée Mixte le Marais Bleu sont implantées à moins de 10 minutes à pied. Niveau transports, on trouve la gare Saint-Hilaire-de-Riez dans un rayon de 1 km. Il y a trois boulangeries, trois commerces, un bureau de poste, une supérette et une épicerie à quelques minutes.Son prix de vente est de 84 300 €. Contactez notre agence (RISSELIN Nicolas : (Numéro supprimé)) pour tout renseignement sur ce terrain ou sur les démarches à suivre.******AU CENTRE DU BOURG DE ST HILAIRE DE RIEZ*****
Saint-Hilaire-de-Riez
TERRAIN ET MAISON******AU CENTRE DU BOURG DE ST HILAIRE DE RIEZ*****Saint-Hilaire-de-Riez : maison de 2 pièces (50 m²) à vendreQUARTIER RECHERCHÉ – MAISON 2 PIÈCES NEUVEEn vente : à 5 km de l’océan Atlantique, construite dans un quartier attractif de Saint-Hilaire-de-Riez (85270), votre agence LMP Constructeur Saint-Gilles-Croix-de-Vie est heureuse de vous présenter cette maison de 2 pièces de plain-pied de 50 m².Son intérieur inclut une chambre, une cuisine et une salle de bains. La maison est neuve.Le terrain du bien s’étend sur 244 m².La maison est située dans un secteur prisé. Il y a l’École Maternelle Publique Henry Simon, l’École Élémentaire Publique Henry Simon et l’École Primaire Privée Mixte le Marais Bleu à moins de 10 minutes à pied. Côté transports en commun, on trouve la gare Saint-Hilaire-de-Riez juste à côté. Il y a trois boulangeries, trois commerces, une épicerie, une supérette et un bureau de poste dans les environs.Elle est à vendre pour la somme de 179 900 €.Prenez contact avec Nicolas RISSELIN (tél : (Numéro supprimé)) pour obtenir de plus amples renseignements sur la maison, sur les modalités de vente ou sur les démarches à suivre. LMP Constructeur Saint-Gilles-Croix-de-Vie est là pour vous accompagner dans tous vos projets immobiliers.******AU CENTRE DU BOURG DE ST HILAIRE DE RIEZ*****
Saint-Hilaire-de-Riez
TERRAIN ET MAISON******AU CENTRE DU BOURG DE ST HILAIRE DE RIEZ*****VENTE : maison de 2 pièces (61 m²) à Saint-Hilaire-de-RiezQUARTIER RECHERCHÉ – MAISON 2 PIÈCES NEUVEEn vente à 5 km de la côte atlantique, nous vous présentons cette maison de 2 pièces de plain-pied de 61 m² dans un secteur attractif de Saint-Hilaire-de-Riez (85270). Elle dispose de deux chambres, d’une cuisine et d’une salle de bains.Le terrain de la propriété est de 244 m².Cette maison est neuve.Cette maison est située dans un quartier prisé. On trouve l’École Maternelle Publique Henry Simon, l’École Élémentaire Publique Henry Simon et l’École Primaire Privée Mixte le Marais Bleu à moins de 10 minutes à pied. Côté transports en commun, il y a la gare Saint-Hilaire-de-Riez dans les environs. On trouve trois boulangeries, trois commerces, une poissonnerie, une supérette et un bureau de poste à quelques minutes du bien.Elle est proposée à l’achat pour 199 900 €.Prenez contact avec notre agence (Nicolas RISSELIN : (Numéro supprimé)) pour obtenir de plus amples renseignements sur la maison. Concrétisez vos projets immobiliers avec LMP Constructeur Saint-Gilles-Croix-de-Vie.******AU CENTRE DU BOURG DE ST HILAIRE DE RIEZ*****
Saint-Hilaire-de-Riez
TERRAIN ET MAISON******AU CENTRE DU BOURG DE ST HILAIRE DE RIEZ*****Maison de 3 pièces (54 m²) en vente à Saint-Hilaire-de-RiezQUARTIER RECHERCHÉ – MAISON 3 PIÈCES NEUVEÀ vendre : située sur le littoral atlantique, LMP Constructeur Saint-Gilles-Croix-de-Vie vous propose cette maison de 3 pièces de plain-pied de 54 m² et de 244 m² de terrain dans un quartier recherché de Saint-Hilaire-de-Riez (85270). Son intérieur se divise en trois chambres, une cuisine et une salle de bains.La maison est neuve.Ce bien se trouve dans un secteur prisé. L’École Maternelle Publique Henry Simon, l’École Élémentaire Publique Henry Simon et l’École Primaire Privée Mixte le Marais Bleu sont implantées à moins de 10 minutes à pied. Côté transports, on trouve la gare Saint-Hilaire-de-Riez à quelques pas du bien. Il y a trois boulangeries, trois commerces, une poissonnerie, une supérette et un bureau de poste dans les environs.Il est à vendre pour la somme de 205 900 €.Contactez Nicolas RISSELIN (tél : (Numéro supprimé)) pour plus d’informations sur la maison. LMP Constructeur Saint-Gilles-Croix-de-Vie est là pour vous accompagner à toutes les étapes de votre projet.******AU CENTRE DU BOURG DE ST HILAIRE DE RIEZ*****
Saint-Hilaire-de-Riez
TERRAIN ET MAISON******AU CENTRE DU BOURG DE ST HILAIRE DE RIEZ*****Saint-Hilaire-de-Riez : maison T3 (54 m²) à vendreQUARTIER RECHERCHÉ – MAISON 3 PIÈCES NEUVEÀ vendre : située à 5 km de l’océan Atlantique, venez découvrir, dans un secteur attractif de Saint-Hilaire-de-Riez (85270), cette maison de 3 pièces de plain-pied de 54 m². Son intérieur offre trois chambres, une cuisine et une salle de bains.Le terrain de cette maison s’étend sur 244 m².La maison est neuve.Cette maison se trouve dans un quartier convoité. Il y a l’École Maternelle Publique Henry Simon, l’École Élémentaire Publique Henry Simon et l’École Primaire Privée Mixte le Marais Bleu à moins de 10 minutes à pied. Niveau transports, on trouve la gare Saint-Hilaire-de-Riez à quelques pas du bien. Il y a trois boulangeries, trois commerces, un bureau de poste, une supérette et une poissonnerie à proximité.Elle est proposée à l’achat pour 219 900 €.Contactez notre agence (Nicolas RISSELIN : (Numéro supprimé)) pour tout renseignement sur la propriété, sur les démarches à suivre ou sur les modalités de vente. Faites de vos projets immobiliers une réalité avec LMP Constructeur Saint-Gilles-Croix-de-Vie.******AU CENTRE DU BOURG DE ST HILAIRE DE RIEZ*****
Saint-Hilaire-de-Riez
TERRAIN ET MAISON******AU CENTRE DU BOURG DE ST HILAIRE DE RIEZ*****Maison T4 (84 m²) en vente à Saint-Hilaire-de-RiezQUARTIER RECHERCHÉ – MAISON 4 PIÈCES NEUVESur la côte atlantique, LMP Constructeur Saint-Gilles-Croix-de-Vie vous présente cette maison de 4 pièces de plain-pied de 84 m² située dans un secteur attractif de Saint-Hilaire-de-Riez (85270). Son intérieur comporte trois chambres, une cuisine et une salle de bains.Le terrain de la propriété s’étend sur 244 m².La maison est neuve.Cette propriété est située dans un quartier prisé. L’École Maternelle Publique Henry Simon, l’École Élémentaire Publique Henry Simon et l’École Primaire Privée Mixte le Marais Bleu sont implantées à moins de 10 minutes à pied. Niveau transports en commun, on trouve la gare Saint-Hilaire-de-Riez à quelques pas du bien. Il y a trois boulangeries, trois commerces, un bureau de poste, une supérette et une poissonnerie à proximité du logement.Elle est à vendre pour la somme de 279 900 €.N’hésitez pas à prendre contact avec notre agence (RISSELIN Nicolas : (Numéro supprimé)) pour plus de renseignements sur la maison. LMP Constructeur Saint-Gilles-Croix-de-Vie est là pour vous accompagner à toutes les étapes de votre projet.******AU CENTRE DU BOURG DE ST HILAIRE DE RIEZ*****
Saint-Hilaire-de-Riez
TERRAIN ET MAISON******AU CENTRE DU BOURG DE ST HILAIRE DE RIEZ*****Maison de 3 pièces (54 m²) en vente à Saint-Hilaire-de-RiezQUARTIER RECHERCHÉ – MAISON 3 PIÈCES NEUVEEn vente à 5 km de la côte atlantique, nous vous proposons cette maison de 3 pièces de plain-pied de 54 m² et de 244 m² de terrain située dans un quartier recherché de Saint-Hilaire-de-Riez (85270). Conçue de plain-pied, elle propose deux chambres, une cuisine et une salle de bains.Cette maison est neuve.Cette maison est située dans un secteur prisé. L’École Maternelle Publique Henry Simon, l’École Élémentaire Publique Henry Simon et l’École Primaire Privée Mixte le Marais Bleu se trouvent à moins de 10 minutes à pied. Niveau transports en commun, il y a la gare Saint-Hilaire-de-Riez juste à côté. On trouve trois boulangeries, trois commerces, un bureau de poste, une épicerie et une supérette à proximité de la maison.Son prix de vente est de 225 900 €.Contactez notre agence (RISSELIN Nicolas : (Numéro supprimé)) pour toute question sur la maison. Concrétisez vos projets immobiliers avec LMP Constructeur Saint-Gilles-Croix-de-Vie.******AU CENTRE DU BOURG DE ST HILAIRE DE RIEZ*****
Soullans
TERRAINVENTE : terrain de 360 m² à SoullansIDÉALEMENT SITUÉÀ Soullans (85300) à 12 km de la côte atlantique, donnez vie à votre projet immobilier sur ce terrain de 360 m². Il donne sur un jardin. Dans un secteur prisé, le terrain idéalement situé est proche des écoles et des commerces. On trouve l’École Primaire Publique Charles Milcendeau et l’École Primaire Privée les Roseaux à moins de 5 minutes . Niveau transports en commun, il y a deux gares (Challans et Saint-Hilaire-de-Riez) à moins de 10 minutes en voiture. On trouve un tennis, quatre commerces, deux boulangeries, une supérette, deux boucheries-charcuteries et une poissonnerie dans les environs.Ce terrain est à vendre pour la somme de 73 000 €. N’hésitez pas à prendre contact avec notre agence (MIGAULT Tony : (Numéro supprimé)) pour plus de renseignements sur le terrain ou sur les démarches à suivre.
Soullans
TERRAIN ET MAISONMaison de 3 pièces (61 m²) à vendre à SoullansIDÉALEMENT SITUÉE – MAISON 3 PIÈCES NEUVEÀ 12 km de la côte atlantique, notre agence LMP Constructeur Challans est ravie de vous présenter cette maison de 3 pièces de plain-pied de 61 m² à vendre, idéalement située dans Soullans (85300).Elle compte deux chambres, une cuisine et une salle de bains. La maison est neuve.Le terrain de la propriété s’étend sur 360 m².Cette maison se trouve dans un secteur prisé. Il y a l’École Primaire Publique Charles Milcendeau et l’École Primaire Privée les Roseaux à moins de 5 minutes. Côté transports en commun, on trouve deux gares (Challans et Saint-Hilaire-de-Riez) à moins de 10 minutes en voiture. Il y a un tennis, quatre commerces, deux boulangeries, une poissonnerie, une supérette et un bureau de poste à proximité de la maison.Elle est proposée à l’achat pour 189 000 €.N’hésitez pas à prendre contact avec notre constructeur (Tony MIGAULT : (Numéro supprimé)) pour obtenir de plus amples informations sur le bien ou sur les modalités de vente. Faites de vos projets immobiliers une réalité avec LMP Constructeur Challans.
L’actualité immobilière à Saint-Hilaire-de-Riez
27/11/2023
02/11/2023
30/10/2023
20/10/2023
16/10/2023
16/10/2023