Images
Description
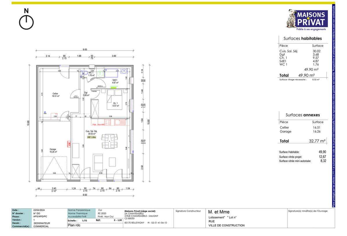
Sur ce terrain, nous vous proposons ce modèle de maison qui incarne l'harmonie parfaite entre fonctionnalité et adaptabilité, elle est conçue pour répondre à vos besoins présents tout en anticipant vos projets futurs.
Le cœur de cette maison est une pièce de vie spacieuse et lumineuse de 30 m², judicieusement aménagée pour maximiser le confort et l'utilité. Cet espace multifonctionnel combine un salon / séjour accueillant, et une cuisine ouverte moderne. Les grandes fenêtres baignent la pièce de lumière naturelle, créant une atmosphère chaleureuse et accueillante, idéale pour se détendre ou recevoir des invités.
À côté de la pièce de vie se trouvent une chambre et une salle d’eau.
Adossé à la maison, un garage de 34 m.² offre un espace pratique pour garer un véhicule ou stocker des équipements.
La conception de cette maison intègre dès le départ la possibilité d'évolution. Lorsque le moment sera venu d'agrandir, l'atelier actuel pourra être aménagé en une chambre avec salle d'eau ou dressing. Cette transformation est facilitée par une infrastructure prévue pour accueillir les installations sanitaires nécessaires. Cette flexibilité permet d'adapter la maison à l'évolution de votre famille ou de vos besoins sans compromis sur le confort ou la qualité de vie.
En résumé, cette maison évolutive est une solution idéale pour ceux qui cherchent à investir dans un habitat adaptable et durable.
* Prix indiqué hors branchements, hors sanitaires, hors revêtement des sols et des murs. Assurance dommages ouvrages incluse.
Logement susceptibles de vous intéresser
Nous vous proposons de découvrir aussi cette sélection de logements situés à moins de 10km de Saint-Jean-de-Monts et qui seraient susceptibles de vous intéresser.
Saint-Jean-de-Monts
TERRAIN ET MAISONUne forme idéalisée de maison de villégiature. Plain-pied lumineux ouvrant sur une vaste terrasse agrémentée d’une piscine. Finition extérieure des murs en enduit gratté fin blanc et bardage bois. Le Douglas français, faux claire voie, d’un aspect gris clair lumineux conserve son bel aspect naturel dans le temps, sans entretien particulier. La maison bénéficie d’une protection solaire par sa conception architecturale. L’installation de Brise-Soleil Orientables motorisés sur les menuiseries extérieures permet de maîtriser les apports solaires les jours de grande chaleur. La Pergola protège l’accès de la pièce de vie vers la terrasse.Vous rêvez de construire cette maison ? En choisissant My Lovely Nature, vous avez frappé à la bonne porte. Nous serons heureux de vous accompagner dans votre projet de vie au naturel.Contactez-nous au (Numéro supprimé) (My Lovely Nature – Agence de Nantes MLN).*Prix indicatif pour un projet de construction d'une maison individuelle. Ne sont pas inclus les frais de branchements, raccordements aux réseaux publics, frais d'adaptations, aménagements intérieurs et extérieurs et options. terrain viabilisé, frais de notaire non compris, frais divers non compris. Garanties et assurances obligatoires incluses. Terrain sélectionné par MY LOVELY NATURE auprès de nos partenaires fonciers, selon disponibilité, pour la construction d'une maison neuve. Non mandaté pour réaliser la vente (loi du 2 janvier 1970 n°70-9). Visuels non contractuels. Voir détails en agence.Cette annonce a été créée et diffusée avec le logiciel VITAHOME.
Saint-Jean-de-Monts
TERRAIN ET MAISONTerrain situé dans un environnement boisé et calme. Déjà viabilisé. Possibilité de maison à étage ou de plain pied. Construction sur mesure. Estimatif donné pour le terrain, les frais annexes et pour une maison à étage de 146m² comprenant 4 chambres dont une suite parentale au rez-de-chaussée, ainsi que 44m² de garage.Labélisée RE2020, nos projets vous apportent confort de vie (été comme hiver) et économie d’énergie grâce à leur conception bioclimatique.Vous souhaitez faire construire une maison bois écologique, unique et moderne ?Venez nous rencontrer pour étudier ensemble un projet à votre image.L’équipe My Lovely NatureContactez-nous au (Numéro supprimé) (My Lovely Nature – Agence de Nantes MLN).*Prix indicatif pour un projet de construction d'une maison individuelle. Ne sont pas inclus les frais de branchements, raccordements aux réseaux publics, frais d'adaptations, aménagements intérieurs et extérieurs et options. terrain viabilisé, frais de notaire compris, frais divers non compris. Garanties et assurances obligatoires incluses. Terrain sélectionné par MY LOVELY NATURE auprès de nos partenaires fonciers, selon disponibilité, pour la construction d'une maison neuve. Non mandaté pour réaliser la vente (loi du 2 janvier 1970 n°70-9). Visuels non contractuels. Voir détails en agence.Cette annonce a été créée et diffusée avec le logiciel VITAHOME.
Notre-Dame-de-Monts
TERRAINTerrains viabilisés de 334 m² à 515 m², libres de constructeur sur la commune de Notre-Dame-de-Monts, en Vendée.Découvrez notre nouvelle opération de 14 lots « Le Domaine des Oyats » située Route du Bois Soret.Idéalement située à 10 minutes de Saint-Jean-de-Monts et à 20 minutes de Challans. La commune est proche des grands centres urbains de l’Ouest : à 1h de Nantes et de la Roche-sur-Yon.Les amateurs de sports nautiques, de voile et de pêche trouveront leur bonheur dans cette région dynamique, où les loisirs liés à la mer sont à portée de main.Retrouvez l’ensemble de nos lots disponibles sur notre site internet.
Saint-Jean-de-Monts
TERRAINÀ la recherche d’un terrain idéal pour concrétiser votre projet de rêve ? Découvrez cette belle parcelle de 500 m², située dans un charmant lotissement à Saint-Jean-de-Monts, dans le département de la Vendée. Ce terrain, entièrement viabilisé, représente une opportunité en or pour l’édification de votre future maison. Profitez de la tranquillité d’un cadre naturel tout en étant à proximité des commodités, et laissez libre cours à votre imagination pour réaliser la maison de vos souhaits. Saint-Jean-de-Monts est une ville dynamique des Pays de la Loire, reconnue pour son ambiance conviviale et son attrait touristique. À deux pas de ce terrain, vous aurez accès à la magnifique Forêt Domaniale, idéale pour les promenades en famille ou les activités de plein air. La ville offre une multitude de restaurants, boutiques et services, tout en préservant une atmosphère paisible et accueillante. Également proche des plages, cette localisation est un véritable atout pour les amoureux de la nature et de la mer. Ne manquez pas cette occasion unique d’acquérir un terrain qui combine à la fois tranquillité et accessibilité. N’attendez plus pour envisager votre future maison à Saint-Jean-de-Monts ! À noter qu’en tant que constructeur, nous ne sommes pas mandatés pour réaliser la vente de ce terrain.
Saint-Jean-de-Monts
TERRAIN ET MAISONSur ce terrain, nous vous proposons cette maison neuve : la Dompierroise, une maison au concept original et agréable.La Dompierroise est une intéressante maison traditionnelle de plain-pied dont l’originalité tient au fait qu’elle se compose de deux corps de bâtiment en décalé. Ce qui permet une délimitation des espaces intéressante et une organisation optimisée.Avec une surface de 70 m², cette maison dispose de 2 chambres et de 3 pièces, offrant ainsi un espace de vie confortable et fonctionnel. Le salon-séjour-cuisine spacieux est idéal pour les moments en famille ou entre amis. Un grand garage intégré est inclus, ajoutant une touche de praticité supplémentaire.Cette maison neuve est basse consommation et conforme à la RE2020, garantissant des performances énergétiques optimales et un respect des normes environnementales actuelles.Les options les plus demandées par nos clients pour ce modèle incluent :- Enduit bi-ton- Plancher chauffant- Sous-solMaisons Privat, constructeur centenaire avec les meilleurs avis clients de la région, vous propose cette maison qui saura répondre à toutes vos attentes en termes de confort et de qualité de vie. Ne manquez pas cette opportunité unique de devenir propriétaire d’une maison moderne et économe en énergie.
Saint-Jean-de-Monts
TERRAINNous sommes ravis de vous présenter ce terrain génial de 500 m², situé dans un charmant lotissement à Saint-Jean-de-Monts, dans le département de la Vendée. Ce terrain, entièrement viabilisé, offre une opportunité exceptionnelle pour réaliser votre projet de construction de maison. Avec son emplacement privilégié au cœur d’un environnement paisible et verdoyant, il vous permettra de bénéficier d’un cadre de vie agréable et serein. Saint-Jean-de-Monts est une ville dynamique située en Pays de la Loire, connue pour ses plages magnifiques et ses paysages naturels. Elle combine harmonieusement le charme d’une ville côtière et les commodités modernes, avec de nombreux commerces, restaurants et activités de loisirs à proximité. Les amoureux de la nature apprécieront la proximité de la Forêt Domaniale qui offre de belles promenades et des espaces pour profiter des activités en plein air. Ce cadre de vie unique fait de ce terrain une occasion de construire une maison qui allie confort et accessibilité à un mode de vie épanouissant. Ne manquez pas cette opportunité d’investir dans un terrain au potentiel infini, idéal pour votre projet de vie. Contactez-nous pour davantage d’informations et pour envisager cette belle opportunité d’achat unique. À noter qu’en tant que constructeur, nous ne sommes pas mandatés pour réaliser la vente de ce terrain.
Saint-Jean-de-Monts
TERRAIN ET MAISONSur ce terrain, nous vous proposons cette superbe maison de plain-pied, alliant confort, modernité et praticité, idéale pour une famille en quête de bien-être.Avec son agencement optimisé, cette maison vous offre une spacieuse pièce de vie baignée de lumière naturelle, comprenant un séjour convivial et une cuisine ouverte fonctionnelle, parfaite pour des moments en famille ou entre amis.L’espace nuit se compose de trois belles chambres offrant confort et sérénité, d’une salle d’eau moderne et de WC séparés pour plus de praticité.Un garage intégré vient compléter ce bien, idéal pour stationner un véhicule ou disposer d’un espace de rangement supplémentaire.
Saint-Jean-de-Monts
TERRAINDécouvrez ce magnifique terrain de 500 m², idéalement situé à Saint-Jean-de-Monts, dans un charmant lotissement de 8 parcelles. Ce terrain viabilisé offre une toile de fond parfaite pour réaliser votre projet de construction de maison. Les caractéristiques uniques de cette ville balnéaire en Vendée, telle que son ambiance conviviale et son cadre naturel préservé, en font un emplacement de choix pour les amoureux de la nature et de la tranquillité. Saint-Jean-de-Monts, située dans le département de la Vendée au cœur de la région Pays de la Loire, est renommée pour ses plages de sable fin et ses paysages pittoresques. À proximité immédiate, vous trouverez la magnifique Forêt Domaniale, idéale pour les promenades et les activités en plein air. La ville offre également une variété de commodités, de restaurants et de commerces, ainsi que des infrastructures culturelles et sportives qui sauront séduire toute la famille. Ce cadre de vie privilégié garantit un quotidien agréable, tout en restant accessible des grandes villes environnantes. Ne manquez pas cette opportunité d’acquérir un terrain prometteur, dans un environnement attractif et riche en ressources. Pensez à la maison de vos rêves dans cet écrin de verdure, où il fait bon vivre. À noter qu’en tant que constructeur, nous ne sommes pas mandatés pour réaliser la vente de ce terrain.
Saint-Jean-de-Monts
TERRAIN ET MAISONSur ce terrain, nous vous proposons cette maison neuve : la Poiréenne, une maison qui vous offre sa singularité et son confort.Charmant pavillon de plain-pied, l’atout de choc de la Poiréenne tient dans l’originalité de ses formes asymétriques. Cette configuration permet d’isoler l’espace nuit dans une aile indépendante. Il sera possible d’ouvrir la pièce de vie sur 3 façades pour garantir un maximum de lumière et de chaleur à ses heureux propriétaires.Avec une surface de 90 m², cette maison dispose de 3 chambres et de 4 pièces. La Poiréenne se distingue par son plan en T, offrant une distribution confortable et originale. Vous profiterez au maximum de l’espace disponible de la profondeur de votre terrain. Les chambres sont réunies autour d’un dégagement qui comprend également la salle d’eau avec une douche italienne et des WC séparés. Côté jour, la Poiréenne vous propose un salon-séjour avec cuisine semi-ouverte, communiquant avec le garage.Les caractéristiques principales de cette maison incluent des baies coulissantes et des volets roulants. Parmi les options les plus demandées par les clients, vous trouverez la baie à galandage, la charpente traditionnelle et l’aménagement du garage. L’ajout d’une charpente traditionnelle au garage de taille généreuse est une option fréquemment retenue par les acquéreurs de cette maison, permettant l’aménagement d’un faux grenier avec un plancher bois.Cette maison neuve est basse consommation et conforme à la RE2020, garantissant des performances énergétiques optimales et un confort de vie exceptionnel.Le constructeur de cette maison est Maisons Privat, un constructeur centenaire avec les meilleurs avis clients de la région. Faites confiance à leur expertise pour réaliser votre projet de vie dans cette maison unique et confortable.
L’actualité immobilière à Saint-Jean-de-Monts
27/11/2023
02/11/2023
30/10/2023
20/10/2023
16/10/2023
16/10/2023