Images
Description
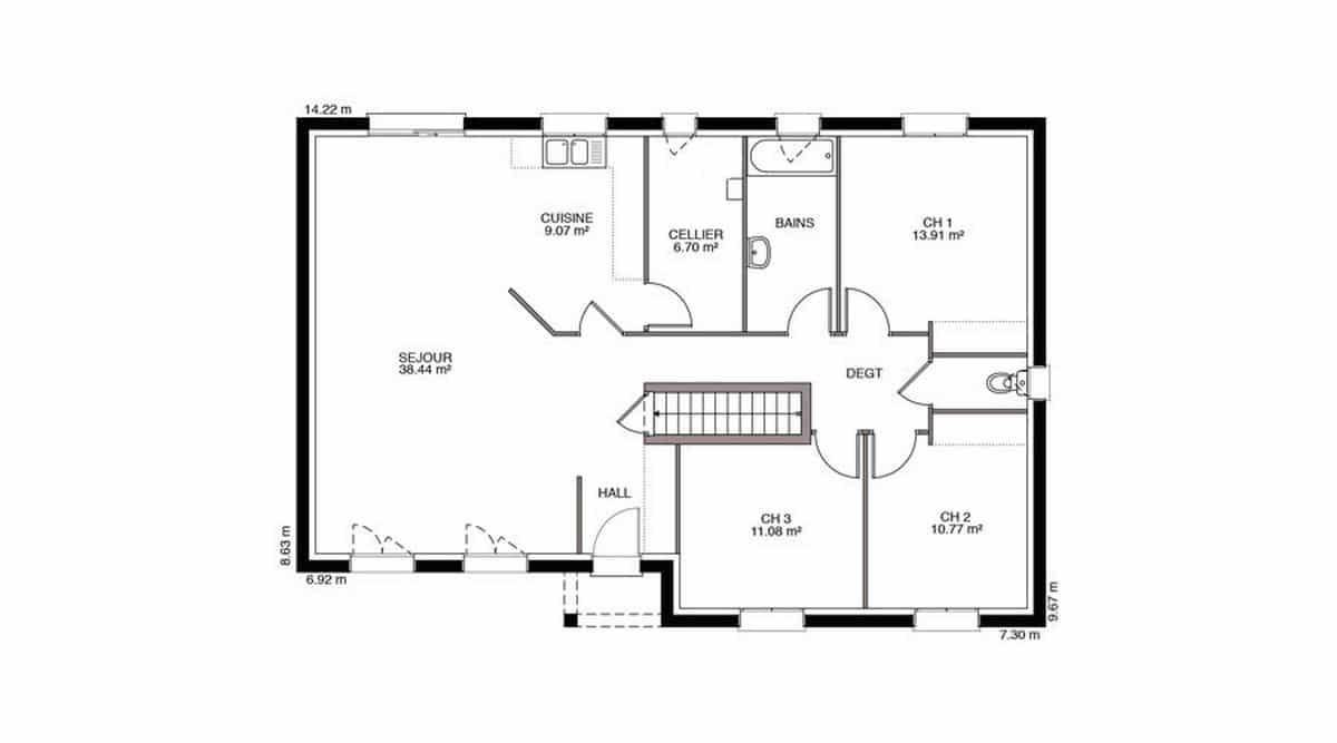
Sur ce terrain, nous vous proposons cette maison neuve : la Dompierroise, une maison au concept original et agréable.
La Dompierroise est une intéressante maison traditionnelle de plain-pied dont l’originalité tient au fait qu’elle se compose de deux corps de bâtiment en décalé. Ce qui permet une délimitation des espaces intéressante et une organisation optimisée.
Avec une surface de 70 m², cette maison dispose de 2 chambres et de 3 pièces, offrant ainsi un espace de vie confortable et fonctionnel. Le salon-séjour-cuisine spacieux est idéal pour les moments en famille ou entre amis. Un grand garage intégré est inclus, ajoutant une touche de praticité supplémentaire.
Cette maison neuve est basse consommation et conforme à la RE2020, garantissant des performances énergétiques optimales et un respect des normes environnementales actuelles.
Les options les plus demandées par nos clients pour ce modèle incluent :
- Enduit bi-ton
- Plancher chauffant
- Sous-sol
Maisons Privat, constructeur centenaire avec les meilleurs avis clients de la région, vous propose cette maison qui saura répondre à toutes vos attentes en termes de confort et de qualité de vie. Ne manquez pas cette opportunité unique de devenir propriétaire d'une maison moderne et économe en énergie.
Logement susceptibles de vous intéresser
Nous vous proposons de découvrir aussi cette sélection de logements situés à moins de 10km de Saint-Jean-de-Monts et qui seraient susceptibles de vous intéresser.
Saint-Jean-de-Monts
TERRAINÀ la recherche d’un terrain idéal pour concrétiser votre projet de rêve ? Découvrez cette belle parcelle de 500 m², située dans un charmant lotissement à Saint-Jean-de-Monts, dans le département de la Vendée. Ce terrain, entièrement viabilisé, représente une opportunité en or pour l’édification de votre future maison. Profitez de la tranquillité d’un cadre naturel tout en étant à proximité des commodités, et laissez libre cours à votre imagination pour réaliser la maison de vos souhaits. Saint-Jean-de-Monts est une ville dynamique des Pays de la Loire, reconnue pour son ambiance conviviale et son attrait touristique. À deux pas de ce terrain, vous aurez accès à la magnifique Forêt Domaniale, idéale pour les promenades en famille ou les activités de plein air. La ville offre une multitude de restaurants, boutiques et services, tout en préservant une atmosphère paisible et accueillante. Également proche des plages, cette localisation est un véritable atout pour les amoureux de la nature et de la mer. Ne manquez pas cette occasion unique d’acquérir un terrain qui combine à la fois tranquillité et accessibilité. N’attendez plus pour envisager votre future maison à Saint-Jean-de-Monts ! À noter qu’en tant que constructeur, nous ne sommes pas mandatés pour réaliser la vente de ce terrain.
Saint-Jean-de-Monts
TERRAIN ET MAISONSur ce terrain, nous vous proposons cette maison neuve : la Dompierroise, une maison au concept original et agréable.La Dompierroise est une intéressante maison traditionnelle de plain-pied dont l’originalité tient au fait qu’elle se compose de deux corps de bâtiment en décalé. Ce qui permet une délimitation des espaces intéressante et une organisation optimisée.Avec une surface de 70 m², cette maison dispose de 2 chambres et de 3 pièces, offrant ainsi un espace de vie confortable et fonctionnel. Le salon-séjour-cuisine spacieux est idéal pour les moments en famille ou entre amis. Un grand garage intégré est inclus, ajoutant une touche de praticité supplémentaire.Cette maison neuve est basse consommation et conforme à la RE2020, garantissant des performances énergétiques optimales et un respect des normes environnementales actuelles.Les options les plus demandées par nos clients pour ce modèle incluent :- Enduit bi-ton- Plancher chauffant- Sous-solMaisons Privat, constructeur centenaire avec les meilleurs avis clients de la région, vous propose cette maison qui saura répondre à toutes vos attentes en termes de confort et de qualité de vie. Ne manquez pas cette opportunité unique de devenir propriétaire d’une maison moderne et économe en énergie.
Saint-Jean-de-Monts
TERRAINNous sommes ravis de vous présenter ce terrain génial de 500 m², situé dans un charmant lotissement à Saint-Jean-de-Monts, dans le département de la Vendée. Ce terrain, entièrement viabilisé, offre une opportunité exceptionnelle pour réaliser votre projet de construction de maison. Avec son emplacement privilégié au cœur d’un environnement paisible et verdoyant, il vous permettra de bénéficier d’un cadre de vie agréable et serein. Saint-Jean-de-Monts est une ville dynamique située en Pays de la Loire, connue pour ses plages magnifiques et ses paysages naturels. Elle combine harmonieusement le charme d’une ville côtière et les commodités modernes, avec de nombreux commerces, restaurants et activités de loisirs à proximité. Les amoureux de la nature apprécieront la proximité de la Forêt Domaniale qui offre de belles promenades et des espaces pour profiter des activités en plein air. Ce cadre de vie unique fait de ce terrain une occasion de construire une maison qui allie confort et accessibilité à un mode de vie épanouissant. Ne manquez pas cette opportunité d’investir dans un terrain au potentiel infini, idéal pour votre projet de vie. Contactez-nous pour davantage d’informations et pour envisager cette belle opportunité d’achat unique. À noter qu’en tant que constructeur, nous ne sommes pas mandatés pour réaliser la vente de ce terrain.
Saint-Jean-de-Monts
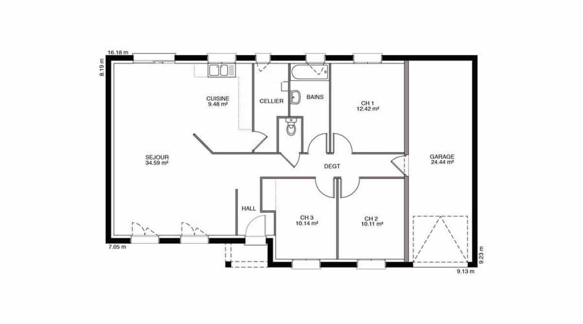
TERRAIN ET MAISONSur ce terrain, nous vous proposons cette superbe maison de plain-pied, alliant confort, modernité et praticité, idéale pour une famille en quête de bien-être.Avec son agencement optimisé, cette maison vous offre une spacieuse pièce de vie baignée de lumière naturelle, comprenant un séjour convivial et une cuisine ouverte fonctionnelle, parfaite pour des moments en famille ou entre amis.L’espace nuit se compose de trois belles chambres offrant confort et sérénité, d’une salle d’eau moderne et de WC séparés pour plus de praticité.Un garage intégré vient compléter ce bien, idéal pour stationner un véhicule ou disposer d’un espace de rangement supplémentaire.
Saint-Jean-de-Monts
TERRAINDécouvrez ce magnifique terrain de 500 m², idéalement situé à Saint-Jean-de-Monts, dans un charmant lotissement de 8 parcelles. Ce terrain viabilisé offre une toile de fond parfaite pour réaliser votre projet de construction de maison. Les caractéristiques uniques de cette ville balnéaire en Vendée, telle que son ambiance conviviale et son cadre naturel préservé, en font un emplacement de choix pour les amoureux de la nature et de la tranquillité. Saint-Jean-de-Monts, située dans le département de la Vendée au cœur de la région Pays de la Loire, est renommée pour ses plages de sable fin et ses paysages pittoresques. À proximité immédiate, vous trouverez la magnifique Forêt Domaniale, idéale pour les promenades et les activités en plein air. La ville offre également une variété de commodités, de restaurants et de commerces, ainsi que des infrastructures culturelles et sportives qui sauront séduire toute la famille. Ce cadre de vie privilégié garantit un quotidien agréable, tout en restant accessible des grandes villes environnantes. Ne manquez pas cette opportunité d’acquérir un terrain prometteur, dans un environnement attractif et riche en ressources. Pensez à la maison de vos rêves dans cet écrin de verdure, où il fait bon vivre. À noter qu’en tant que constructeur, nous ne sommes pas mandatés pour réaliser la vente de ce terrain.
Saint-Jean-de-Monts
TERRAIN ET MAISONSur ce terrain, nous vous proposons cette maison neuve : la Poiréenne, une maison qui vous offre sa singularité et son confort.Charmant pavillon de plain-pied, l’atout de choc de la Poiréenne tient dans l’originalité de ses formes asymétriques. Cette configuration permet d’isoler l’espace nuit dans une aile indépendante. Il sera possible d’ouvrir la pièce de vie sur 3 façades pour garantir un maximum de lumière et de chaleur à ses heureux propriétaires.Avec une surface de 90 m², cette maison dispose de 3 chambres et de 4 pièces. La Poiréenne se distingue par son plan en T, offrant une distribution confortable et originale. Vous profiterez au maximum de l’espace disponible de la profondeur de votre terrain. Les chambres sont réunies autour d’un dégagement qui comprend également la salle d’eau avec une douche italienne et des WC séparés. Côté jour, la Poiréenne vous propose un salon-séjour avec cuisine semi-ouverte, communiquant avec le garage.Les caractéristiques principales de cette maison incluent des baies coulissantes et des volets roulants. Parmi les options les plus demandées par les clients, vous trouverez la baie à galandage, la charpente traditionnelle et l’aménagement du garage. L’ajout d’une charpente traditionnelle au garage de taille généreuse est une option fréquemment retenue par les acquéreurs de cette maison, permettant l’aménagement d’un faux grenier avec un plancher bois.Cette maison neuve est basse consommation et conforme à la RE2020, garantissant des performances énergétiques optimales et un confort de vie exceptionnel.Le constructeur de cette maison est Maisons Privat, un constructeur centenaire avec les meilleurs avis clients de la région. Faites confiance à leur expertise pour réaliser votre projet de vie dans cette maison unique et confortable.
Saint-Jean-de-Monts
TERRAIN ET MAISONSur ce terrain, nous vous proposons cette maison neuve : la Florentaise. Conçue par Maisons Privat, constructeur centenaire avec les meilleurs avis clients de la région, cette maison de 80 m² allie confort et fonctionnalité.Intérieur bien pensé et confort sont les atouts de la Florentaise. Ce modèle de maison traditionnelle de plain-pied propose un intérieur bien organisé où le moindre espace est utilisé, ce qui en fait une demeure très fonctionnelle au style intemporel.La Florentaise, une maison neuve qui adapte ses dimensions à vos envies. Ce modèle se décline en versions d’une superficie allant de 70 à 102 m² et propose de 2 à 4 chambres donnant sur un dégagement. Vous apprécierez les placards équipant toutes les chambres. La taille généreuse de la salle de bain permet de l’équiper si vous le souhaitez d’une douche et d’une baignoire.Du côté de l’espace jour, un grand salon/séjour traversant pour profiter du moindre rayon de soleil. La cuisine ouverte fait de cette pièce de vie un endroit propice pour se retrouver en famille ou entre amis.Les caractéristiques principales de cette maison incluent un garage intégré, une conception basse consommation et une cuisine ouverte. La Florentaise est conforme à la RE2020, garantissant une performance énergétique optimale et des économies sur vos factures d’énergie.Les options les plus demandées par nos clients sont également disponibles : menuiseries en aluminium, toiture en 2 pans ou 4 pans, et grenier sur garage pour encore plus de rangement et de style.Ne manquez pas cette opportunité de construire la maison de vos rêves avec Maisons Privat, un constructeur de confiance. Contactez-nous dès aujourd’hui pour plus d’informations !
Saint-Jean-de-Monts
TERRAINNous vous proposons ce terrain de 500 m², viabilisé, idéalement situé dans un charmant lotissement de 8 parcelles à Saint-Jean-de-Monts. Ce terrain offre une occasion unique d’élaborer votre projet de construction de maison dans un cadre serein et verdoyant. Sa superficie généreuse vous permettra d’imaginer un espace de vie selon vos désirs et vos besoins, tout en bénéficiant des atouts de la commune. Saint-Jean-de-Monts, située dans le département de la Vendée en région Pays de la Loire, est une ville prisée pour son ambiance conviviale et son riche patrimoine naturel. À seulement quelques minutes de la magnifique Forêt Domaniale, ce terrain vous placera à proximité des sentiers de randonnée, des pistes cyclables et des plages de sable fin. Les commodités locales, telles que commerces, écoles et services, sont facilement accessibles et contribuent à créer un cadre de vie agréable et pratique. C’est un véritable havre de paix, où la douceur de vivre est au rendez-vous. Ce terrain représente une opportunité d’achat unique pour ceux qui souhaitent bâtir leur maison dans un environnement d’exception. N’attendez plus pour saisir cette chance d’investir dans un projet qui vous ressemble ! À noter qu’en tant que constructeur, nous ne sommes pas mandatés pour réaliser la vente de ce terrain.
Saint-Jean-de-Monts
TERRAIN ET MAISONSur ce terrain, nous vous proposons cette maison neuve : la Lucéenne, un modèle de plain-pied en forme de L, conçu pour offrir un confort optimal dans un espace de 90 m². Idéale pour les couples et les jeunes familles, cette maison basse consommation est conforme à la RE2020, garantissant des économies d’énergie et un respect de l’environnement.La Lucéenne se distingue par ses trois chambres spacieuses et ses quatre pièces bien agencées. Le grand et lumineux séjour-salon-cuisine, partiellement cloisonné, est parfait pour des moments conviviaux en famille. Les baies coulissantes en aluminium apportent une luminosité naturelle exceptionnelle, créant une atmosphère chaleureuse et accueillante.Les options les plus demandées par nos clients sont également disponibles pour personnaliser votre maison selon vos besoins : aménagement du garage, menuiseries en aluminium et domotique pour un confort moderne et pratique.Construite par Maisons Privat, un constructeur centenaire reconnu pour ses excellents avis clients dans la région, la Lucéenne est une demeure parfaite pour les primo-accédants ou les retraités. Avec des espaces à vivre optimisés et un garage accolé de taille généreuse, cette maison vous offre tout le nécessaire et même le superflu dans un espace raisonné.Ne manquez pas cette opportunité unique de devenir propriétaire d’une maison neuve, basse consommation et conforme aux dernières normes environnementales. Contactez-nous dès aujourd’hui pour plus d’informations et pour visiter notre modèle Lucéenne.
L’actualité immobilière à Saint-Jean-de-Monts
27/11/2023
02/11/2023
30/10/2023
20/10/2023
16/10/2023
16/10/2023