Maison à construire à Saint-Maixent-sur-Vie (85220)
Images
Description
***** A 10 MINUTES DE STAINT GILLES CROIX DE VIE***
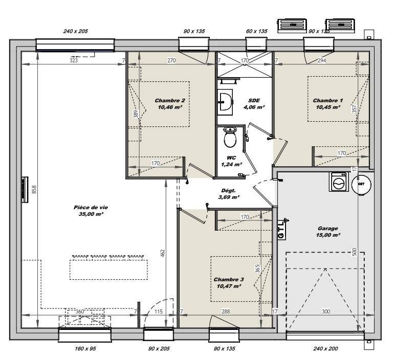
VENTE d'une maison T4 (79 m²) à Saint-Maixent-sur-Vie
IDÉALEMENT SITUÉE - MAISON 4 PIÈCES NEUVE
En vente à 12 km de la côte atlantique, notre agence LMP Constructeur Saint-Gilles-Croix-de-Vie est heureuse de vous présenter cette maison de 4 pièces de plain-pied de 79 m² et de 879 m² de terrain idéalement située dans Saint-Maixent-sur-Vie (85220).
Son intérieur dispose de trois chambres, d'une cuisine et d'une salle de bains. La maison est neuve.
Cette maison se trouve dans un secteur convoité. L'École Primaire Publique l'Oiseau Bleu est implantée à moins de 10 minutes à pied.
Elle est proposée à l'achat pour 211 900 €.
N'hésitez pas à prendre contact avec notre constructeur (RISSELIN Nicolas : (Numéro supprimé)) pour toute question sur la maison ou sur les démarches à suivre. LMP Constructeur Saint-Gilles-Croix-de-Vie est là pour vous accompagner dans tous vos projets immobiliers.
***** A 10 MINUTES DE STAINT GILLES CROIX DE VIE***
Logement susceptibles de vous intéresser
Nous vous proposons de découvrir aussi cette sélection de logements situés à moins de 10km de Saint-Maixent-sur-Vie et qui seraient susceptibles de vous intéresser.
Commequiers
TERRAIN ET MAISONIdéal pour votre projet de construction. Maison rectangulaire de plain-pied de plus de 100 m² habitables qui vous séduira par son espace de vie traversant baigné de lumière grâce à ses ouvertures, un cellier et un garage accessible de la cuisine ouverte. Pour l’espace nuit, 4 chambres, une salle de bains avec douche et baignoire, un wc séparé. Pour vous assurer un confort de vie et conformément à la RE2025, nous avons choisi un mode de chauffage par PAC + plancher chauffant, volets roulants électriques. Prix hors fourniture et pose : des appareils sanitaires (sauf système de chauffage et d'eau chaude sanitaire), du carrelage et de la faïence, des revêtements de sol dans les chambres. Hors décoration et aménagement intérieur et peinture. Hors raccordements, frais de notaire et dommage ouvrage. // Réf. : 2567-210814-DIB. Prix terrain : 75 500 €, hors frais d'agence à la charge de l'acquéreur. Ce terrain vous est proposé, par nos partenaires fonciers, dans le cadre d'un projet de construction avec nous. Les informations sur les risques auxquels ce bien est exposé sont disponibles sur le site Géorisques (www.georisques.gouv.fr). Prix maison : 146 537 €.
Commequiers
TERRAIN ET MAISONIdéal pour votre projet de construction. Vous serez séduits par cette maison contemporaine qui se distingue par son porche en façade et ses enduits bi-ton personnalisable. Elle vous accueille dans un très bel espace de vie de plus de 44 m² très lumineux grâce à ses nombreuses ouvertures. La cuisine ouverte est très fonctionnelle puisqu’à la fois ouverte sur le séjour et accolée au cellier. L’espace nuit est composé de trois chambres avec tous les rangements nécessaires ainsi que d’une salle de bain et des wc séparés. Le plus de cette maison est sans nul doute son garage intégré. Pour vous assurer un confort de vie et conformément à la RE2025, nous avons choisi un mode de chauffage par PAC + plancher chauffant, volets roulants électriques. Prix hors fourniture et pose : des appareils sanitaires (sauf système de chauffage et d'eau chaude sanitaire), du carrelage et de la faïence, des revêtements de sol dans les chambres. Hors décoration et aménagement intérieur et peinture. Hors raccordements, frais de notaire et dommage ouvrage. // Réf. : 2538-210814-DIB. Prix terrain : 75 500 €, hors frais d'agence à la charge de l'acquéreur. Ce terrain vous est proposé, par nos partenaires fonciers, dans le cadre d'un projet de construction avec nous. Les informations sur les risques auxquels ce bien est exposé sont disponibles sur le site Géorisques (www.georisques.gouv.fr). Prix maison : 136 998 €.
Commequiers
TERRAIN ET MAISONIdéal pour votre projet de construction. Idéal premier achat, cette maison de plain-pied fonctionnelle et lumineuse vous propose une vaste pièce de vie éclairée par sa grande baie vitrée avec cuisine ouverte, deux chambres avec rangement, salle de bains et cellier indépendant. Pour vous assurer un confort de vie et conformément à la RE2025, nous avons choisi un mode de chauffage par PAC + plancher chauffant, volets roulants électriques. Prix hors fourniture et pose : des appareils sanitaires (sauf système de chauffage et d'eau chaude sanitaire), du carrelage et de la faïence, des revêtements de sol dans les chambres. Hors décoration et aménagement intérieur et peinture. Hors raccordements, frais de notaire et dommage ouvrage. // Réf. : 2552-210814-DIB. Prix terrain : 75 500 €, hors frais d'agence à la charge de l'acquéreur. Ce terrain vous est proposé, par nos partenaires fonciers, dans le cadre d'un projet de construction avec nous. Les informations sur les risques auxquels ce bien est exposé sont disponibles sur le site Géorisques (www.georisques.gouv.fr). Prix maison : 99 601 €.
Commequiers
TERRAINIdéal pour votre projet de construction. // Réf. : T210814. Prix terrain : 75 500 €, hors frais d'agence et de notaire à la charge de l'acquéreur. Ce terrain vous est proposé, par nos partenaires fonciers, dans le cadre d'un projet de construction avec nous. Les informations sur les risques auxquels ce bien est exposé sont disponibles sur le site Géorisques (www.georisques.gouv.fr).
Saint-Maixent-sur-Vie
TERRAIN***** A 10 MINUTES DE STAINT GILLES CROIX DE VIE***VENTE : terrain de 879 m² à Saint-Maixent-sur-VieIDÉALEMENT SITUÉEn vente à 12 km de l’océan Atlantique à Saint-Maixent-sur-Vie (85220), grand terrain. Il est prêt à accueillir votre projet immobilier pour toute la famille. Dans un quartier convoité, ce terrain idéalement situé est proche des commerces et des écoles. L’École Primaire Publique l’Oiseau Bleu se trouve à moins de 10 minutes à pied.Ce terrain est à vendre pour la somme de 76 900 €. Contactez notre agence (RISSELIN Nicolas : (Numéro supprimé)) pour toute information sur le terrain, sur les démarches à suivre ou sur les modalités de vente. LMP Constructeur Saint-Gilles-Croix-de-Vie est là pour vous accompagner à toutes les étapes de l’achat.***** A 10 MINUTES DE STAINT GILLES CROIX DE VIE***
Saint-Maixent-sur-Vie
TERRAIN ET MAISON***** A 10 MINUTES DE STAINT GILLES CROIX DE VIE***VENTE d’une maison T4 (79 m²) à Saint-Maixent-sur-VieIDÉALEMENT SITUÉE – MAISON 4 PIÈCES NEUVEEn vente à 12 km de la côte atlantique, notre agence LMP Constructeur Saint-Gilles-Croix-de-Vie est heureuse de vous présenter cette maison de 4 pièces de plain-pied de 79 m² et de 879 m² de terrain idéalement située dans Saint-Maixent-sur-Vie (85220).Son intérieur dispose de trois chambres, d’une cuisine et d’une salle de bains. La maison est neuve.Cette maison se trouve dans un secteur convoité. L’École Primaire Publique l’Oiseau Bleu est implantée à moins de 10 minutes à pied.Elle est proposée à l’achat pour 211 900 €.N’hésitez pas à prendre contact avec notre constructeur (RISSELIN Nicolas : (Numéro supprimé)) pour toute question sur la maison ou sur les démarches à suivre. LMP Constructeur Saint-Gilles-Croix-de-Vie est là pour vous accompagner dans tous vos projets immobiliers.***** A 10 MINUTES DE STAINT GILLES CROIX DE VIE***
Saint-Maixent-sur-Vie
TERRAIN ET MAISON***** A 10 MINUTES DE STAINT GILLES CROIX DE VIE***Maison de 4 pièces (84 m²) en vente à Saint-Maixent-sur-VieIDÉALEMENT SITUÉE – MAISON 4 PIÈCES NEUVEÀ vendre : localisée à 12 km de l’océan Atlantique, idéalement située dans Saint-Maixent-sur-Vie (85220), LMP Constructeur Saint-Gilles-Croix-de-Vie vous propose cette maison de 4 pièces de plain-pied de 84 m² et de 879 m² de terrain. Son intérieur comporte trois chambres, une cuisine et une salle de bains.La maison est neuve.Cette maison se situe dans un quartier attractif. L’École Primaire Publique l’Oiseau Bleu se trouve à moins de 10 minutes à pied.Elle est à vendre pour la somme de 249 900 €.Prenez contact avec Nicolas RISSELIN ((Numéro supprimé)) pour plus d’informations sur le bien. LMP Constructeur Saint-Gilles-Croix-de-Vie vous accompagne dans toutes vos démarches et dans tous vos projets immobiliers.***** A 10 MINUTES DE STAINT GILLES CROIX DE VIE***
Saint-Maixent-sur-Vie
TERRAIN ET MAISON***** A 10 MINUTES DE STAINT GILLES CROIX DE VIE***Saint-Maixent-sur-Vie : maison de 2 pièces (61 m²) à vendreIDÉALEMENT SITUÉE – MAISON 2 PIÈCES NEUVEEn vente à 12 km de la côte atlantique, idéalement située dans Saint-Maixent-sur-Vie (85220), LMP Constructeur Saint-Gilles-Croix-de-Vie vous propose cette maison de 2 pièces de plain-pied de 61 m² et de 879 m² de terrain. Conçue de plain-pied, elle dispose de deux chambres, d’une cuisine et d’une salle de bains.Cette maison est neuve.La maison se situe dans un quartier prisé. Il y a l’École Primaire Publique l’Oiseau Bleu à moins de 10 minutes à pied.Son prix de vente est de 202 900 €.Contactez notre agence (RISSELIN Nicolas : (Numéro supprimé)) pour plus d’informations sur la maison, sur les modalités de vente ou sur les démarches à suivre.***** A 10 MINUTES DE STAINT GILLES CROIX DE VIE***
Saint-Maixent-sur-Vie
TERRAIN ET MAISON***** A 10 MINUTES DE STAINT GILLES CROIX DE VIE***VENTE : maison de 4 pièces (84 m²) à Saint-Maixent-sur-VieIDÉALEMENT SITUÉE – MAISON 4 PIÈCES NEUVEÀ vendre : située à 12 km de la côte atlantique, découvrez, idéalement située dans Saint-Maixent-sur-Vie (85220), cette maison de 4 pièces de plain-pied de 84 m² et de 879 m² de terrain. Conçue de plain-pied, elle propose trois chambres, une cuisine et une salle de bains.Cette maison est neuve.Cette maison se situe dans un secteur attractif. Il y a l’École Primaire Publique l’Oiseau Bleu à moins de 10 minutes à pied.Elle est proposée à l’achat pour 259 900 €.Prenez contact avec Nicolas RISSELIN (tél : (Numéro supprimé)) pour tout renseignement sur la maison ou sur les démarches à suivre. Donnez vie à vos projets immobiliers avec LMP Constructeur Saint-Gilles-Croix-de-Vie.***** A 10 MINUTES DE STAINT GILLES CROIX DE VIE***
L’actualité immobilière à Saint-Maixent-sur-Vie
27/11/2023
02/11/2023
30/10/2023
20/10/2023
16/10/2023
16/10/2023