Images
Description
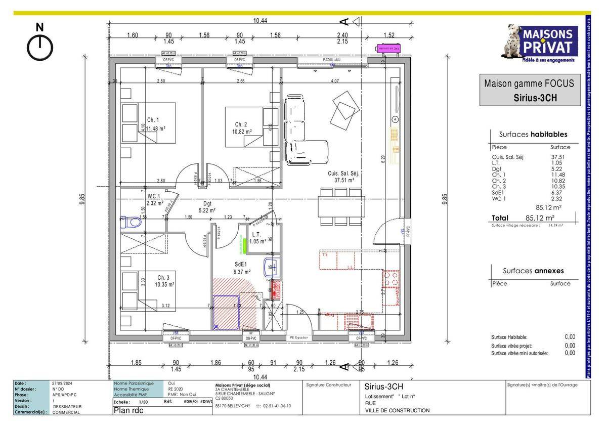
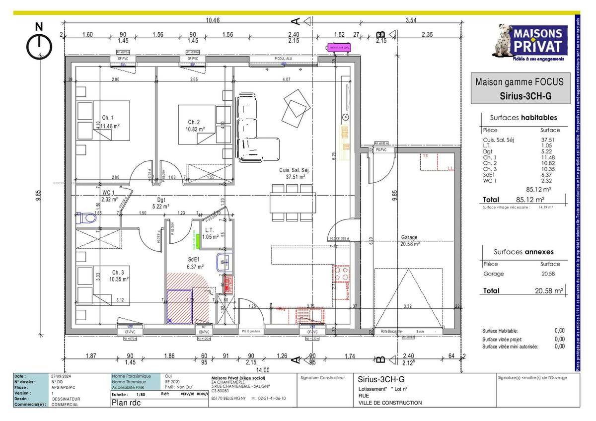
Sur ce terrain, nous vous proposons cette superbe maison de plain-pied au plan optimisé, pensée pour offrir confort et convivialité à toute la famille. Passé l’entrée, vous serez immédiatement séduit par une vaste pièce de vie baignée de lumière, où se côtoient salon, salle à manger et cuisine ouverte, idéale pour partager des moments chaleureux au quotidien.
Côté nuit, trois chambres spacieuses et lumineuses vous attendent, chacune permettant d’installer rangements et bureau selon vos envies. Une salle de bain moderne, un WC complètent cet agencement astucieux, facilitant l’organisation de la vie de famille.
Atout pratique : Un garage attenant de près de 21 m² permet de stationner votre véhicule en toute sécurité, tout en laissant de la place pour un atelier ou du rangement supplémentaire.
Moderne, fonctionnelle et pensée pour un confort optimal, cette maison saura répondre à toutes vos attentes. N’attendez plus pour venir la découvrir et laissez-vous séduire par son agencement harmonieux !
Logement susceptibles de vous intéresser
Nous vous proposons de découvrir aussi cette sélection de logements situés à moins de 10km de Saint-Urbain et qui seraient susceptibles de vous intéresser.
Saint-Jean-de-Monts
TERRAIN ET MAISONHabiter dans un secteur paisible et bénéficier des attraits aux alentoursA 500 m du lotissement, vous disposerez dans le bourg de commerces de proximité (boulangerie, bar/tabac, épicerie, pizzeria), d’une école primaire mais aussi d’un médecin.Profitez de l’attractivité des communes voisines telles que Saint-Jean-de-Monts et Saint-Hilaire-de-Riez avec ses nombreux commerces, services, établissements scolaires, associations culturelles et sportives, golf, cinéma, salle de spectacle, piscine, thalasso, casino… Pour votre plaisir, vous pourrez également vouspromener au cœur de la forêt domaniale et parcourir les multiples pistes cyclables ou encore profiter des plages de la côte.Quelques distances depuis le lotissementA 3,6 km de la plageA 7,7 km de Saint-Jean-de-MontsA 8,1 km de Saint-Hilaire-de-RiezContactez Perrick MACCHI au (Numéro supprimé) (Alliance Construction – Agence des Sables-d'Olonne).*Prix indicatif pour un projet de construction d'une maison individuelle. Ne sont pas inclus les frais de branchements, raccordements aux réseaux publics, frais d'adaptations, aménagements intérieurs et extérieurs et options. terrain viabilisé, frais de notaire non compris, frais divers non compris. Garanties et assurances obligatoires incluses. Terrain sélectionné par ALLIANCE auprès de nos partenaires fonciers, selon disponibilité, pour la construction d'une maison neuve. Non mandaté pour réaliser la vente (loi du 2 janvier 1970 n°70-9). Visuels non contractuels. Voir détails en agence.Cette annonce a été créée et diffusée avec le logiciel VITAHOME.
Saint-Jean-de-Monts
TERRAIN ET MAISONA SAINT-JEAN-DE-MONTS sur un terrain de 483 m², Alliance Construction vous propose de réaliser votre projet de construction de maison individuelle d'une surface de 95 m² habitables avec 4 chambres, à partir de 335500€*Demandez une étude gratuite et personnalisée de votre projet de construction !* Cette offre comprend :- Garanties constructeurs (dommages ouvrage, garantie de prix ferme et définitif, garantie de livraison, responsabilité civile et décennale).- Branchements aux compteurs et accès empierré sur 5m linéaires.Habitez une maison spécialement pensée et conçue pour vous et votre famille, prête à décorer, adaptée à vos modes de vie, personnalisée selon vos goûts grâce à un large choix d'options, de matériaux et d'innovations !Contactez Perrick MACCHI au (Numéro supprimé) (Alliance Construction – Agence des Sables-d'Olonne).*Prix indicatif pour un projet de construction d'une maison individuelle. Ne sont pas inclus les frais de branchements, raccordements aux réseaux publics, frais d'adaptations, aménagements intérieurs et extérieurs et options. terrain viabilisé, frais de notaire non compris, frais divers non compris. Garanties et assurances obligatoires incluses. Terrain sélectionné par ALLIANCE auprès de nos partenaires fonciers, selon disponibilité, pour la construction d'une maison neuve. Non mandaté pour réaliser la vente (loi du 2 janvier 1970 n°70-9). Visuels non contractuels. Voir détails en agence.Cette annonce a été créée et diffusée avec le logiciel VITAHOME.
Saint-Jean-de-Monts
TERRAIN ET MAISONVous rêvez d’un jardin paysager, une cuisine avec ilot centrale, parquet dans les chambres… Faites construire, vous pourrez choisir !Pour une maison principale, un locatif, ou une maison secondaire, ce projet est fait pour vous !Alliance vous propose un de ses modèles de maison sur-mesure sur un terrain de 426 m² à partir de 240000€* (hors frais supplémentaires et selon disponibilité de notre partenaire foncier.)Découvrez tous nos modèles de maisons sur notre site internet ou appelez nous pour réaliser votre projet entièrement sur-mesure.N'attendez plus, et contactez nous pour plus de renseignementsContactez Perrick MACCHI au (Numéro supprimé) (Alliance Construction – Agence des Sables-d'Olonne).*Prix indicatif pour un projet de construction d'une maison individuelle. Ne sont pas inclus les frais de branchements, raccordements aux réseaux publics, frais d'adaptations, aménagements intérieurs et extérieurs et options. terrain viabilisé, frais de notaire non compris, frais divers non compris. Garanties et assurances obligatoires incluses. Terrain sélectionné par ALLIANCE auprès de nos partenaires fonciers, selon disponibilité, pour la construction d'une maison neuve. Non mandaté pour réaliser la vente (loi du 2 janvier 1970 n°70-9). Visuels non contractuels. Voir détails en agence.Cette annonce a été créée et diffusée avec le logiciel VITAHOME.
Saint-Jean-de-Monts
TERRAIN ET MAISONA SAINT-JEAN-DE-MONTS sur un terrain de 483 m², Alliance Construction vous propose de réaliser votre projet de construction de maison individuelle d'une surface de 119.55 m² habitables avec 4 chambres, à partir de 342100€*Demandez une étude gratuite et personnalisée de votre projet de construction !* Cette offre comprend :- Garanties constructeurs (dommages ouvrage, garantie de prix ferme et définitif, garantie de livraison, responsabilité civile et décennale).- Branchements aux compteurs et accès empierré sur 5m linéaires.Habitez une maison spécialement pensée et conçue pour vous et votre famille, prête à décorer, adaptée à vos modes de vie, personnalisée selon vos goûts grâce à un large choix d'options, de matériaux et d'innovations !Contactez Perrick MACCHI au (Numéro supprimé) (Alliance Construction – Agence des Sables-d'Olonne).*Prix indicatif pour un projet de construction d'une maison individuelle. Ne sont pas inclus les frais de branchements, raccordements aux réseaux publics, frais d'adaptations, aménagements intérieurs et extérieurs et options. terrain viabilisé, frais de notaire non compris, frais divers non compris. Garanties et assurances obligatoires incluses. Terrain sélectionné par ALLIANCE auprès de nos partenaires fonciers, selon disponibilité, pour la construction d'une maison neuve. Non mandaté pour réaliser la vente (loi du 2 janvier 1970 n°70-9). Visuels non contractuels. Voir détails en agence.Cette annonce a été créée et diffusée avec le logiciel VITAHOME.
Saint-Jean-de-Monts
TERRAINHabiter dans un secteur paisible et bénéficier des attraits aux alentoursA 500 m du lotissement, vous disposerez dans le bourg de commerces de proximité (boulangerie, bar/tabac, épicerie, pizzeria), d’une école primaire mais aussi d’un médecin.Profitez de l’attractivité des communes voisines telles que Saint-Jean-de-Monts et Saint-Hilaire-de-Riez avec ses nombreux commerces, services, établissements scolaires, associations culturelles et sportives, golf, cinéma, salle de spectacle, piscine, thalasso, casino… Pour votre plaisir, vous pourrez également vouspromener au cœur de la forêt domaniale et parcourir les multiples pistes cyclables ou encore profiter des plages de la côte.Quelques distances depuis le lotissementA 3,6 km de la plageA 7,7 km de Saint-Jean-de-MontsA 8,1 km de Saint-Hilaire-de-RiezPrix : 78500 €.Sur ce terrain de 460 m² à SAINT-JEAN-DE-MONTS, Alliance Construction vous propose de réaliser votre projet de construction de maison individuelle.Avec Alliance Construction, habitez une maison spécialement pensée et conçue pour vous et votre famille, prête à décorer, adaptée à vos modes de vie, personnalisée selon vos goûts grâce à un large choix d'options, de matériaux et d'innovations ! Demandez une étude gratuite et personnalisée de votre projet de construction sur ce terrain à SAINT-JEAN-DE-MONTS !Contactez Perrick MACCHI au (Numéro supprimé) (Alliance Construction – Agence des Sables-d'Olonne).Prix hors frais de notaire. Terrain sélectionné par ALLIANCE auprès de nos partenaires fonciers, selon disponibilité, pour la construction d'une maison neuve. Non mandaté pour réaliser la vente (loi du 2 janvier 1970 n°70-9). Visuels non contractuels. Voir détails en agence.Cette annonce a été créée et diffusée avec le logiciel VITAHOME.
Saint-Jean-de-Monts
TERRAINPrix : 79500 €.Sur ce terrain de 483 m² à SAINT-JEAN-DE-MONTS, Alliance Construction vous propose de réaliser votre projet de construction de maison individuelle.Avec Alliance Construction, habitez une maison spécialement pensée et conçue pour vous et votre famille, prête à décorer, adaptée à vos modes de vie, personnalisée selon vos goûts grâce à un large choix d'options, de matériaux et d'innovations ! Demandez une étude gratuite et personnalisée de votre projet de construction sur ce terrain à SAINT-JEAN-DE-MONTS !Contactez Perrick MACCHI au (Numéro supprimé) (Alliance Construction – Agence des Sables-d'Olonne).Prix hors frais de notaire. Terrain sélectionné par ALLIANCE auprès de nos partenaires fonciers, selon disponibilité, pour la construction d'une maison neuve. Non mandaté pour réaliser la vente (loi du 2 janvier 1970 n°70-9). Visuels non contractuels. Voir détails en agence.Cette annonce a été créée et diffusée avec le logiciel VITAHOME.
Saint-Jean-de-Monts
TERRAINPrix : 59000 €.Sur ce terrain de 426 m² à SAINT-JEAN-DE-MONTS, Alliance Construction vous propose de réaliser votre projet de construction de maison individuelle.Avec Alliance Construction, habitez une maison spécialement pensée et conçue pour vous et votre famille, prête à décorer, adaptée à vos modes de vie, personnalisée selon vos goûts grâce à un large choix d'options, de matériaux et d'innovations ! Demandez une étude gratuite et personnalisée de votre projet de construction sur ce terrain à SAINT-JEAN-DE-MONTS !Contactez Perrick MACCHI au (Numéro supprimé) (Alliance Construction – Agence des Sables-d'Olonne).Prix hors frais de notaire. Terrain sélectionné par ALLIANCE auprès de nos partenaires fonciers, selon disponibilité, pour la construction d'une maison neuve. Non mandaté pour réaliser la vente (loi du 2 janvier 1970 n°70-9). Visuels non contractuels. Voir détails en agence.Cette annonce a été créée et diffusée avec le logiciel VITAHOME.
Saint-Urbain
TERRAINDécouvrez cette opportunité rare d’acquérir un terrain viabilisé d’une superficie de 438 m², idéalement situé dans le charmant lotissement de Saint-Urbain, en Vendée. Ce terrain est parfait pour réaliser votre projet de construction de maison, vous permettant de créer un espace de vie sur mesure qui répond à toutes vos attentes. Sa situation ensoleillée et son cadre champêtre apportent un charme indéniable à cet emplacement, faisant de chaque jour une invitation à la détente et au bien-être. Située dans la région des Pays de la Loire, Saint-Urbain est une ville qui allie qualité de vie et praticité. Profitez d’un environnement paisible tout en étant à proximité immédiate des commerces et des services essentiels. Les écoles à proximité garantissent une éducation de qualité pour les familles, tandis que l’accès aux axes routiers importants facilite vos déplacements. Les arrêts de bus à proximité vous connectent aisément aux villes environnantes, rendant ce terrain non seulement attractif, mais également fonctionnel pour votre vie quotidienne. Ne manquez pas cette chance d’investir dans un terrain au potentiel prometteur. N’hésitez pas à envisager cette opportunité d’achat unique ! À noter qu’en tant que constructeur, nous ne sommes pas mandatés pour réaliser la vente de ce terrain.
Saint-Urbain
TERRAIN ET MAISONSur ce terrain, nous vous proposons cette superbe maison de plain-pied au plan optimisé, pensée pour offrir confort et convivialité à toute la famille. Passé l’entrée, vous serez immédiatement séduit par une vaste pièce de vie baignée de lumière, où se côtoient salon, salle à manger et cuisine ouverte, idéale pour partager des moments chaleureux au quotidien.Côté nuit, trois chambres spacieuses et lumineuses vous attendent, chacune permettant d’installer rangements et bureau selon vos envies. Une salle de bain moderne, un WC complètent cet agencement astucieux, facilitant l’organisation de la vie de famille.Atout pratique : Un garage attenant de près de 21 m² permet de stationner votre véhicule en toute sécurité, tout en laissant de la place pour un atelier ou du rangement supplémentaire.Moderne, fonctionnelle et pensée pour un confort optimal, cette maison saura répondre à toutes vos attentes. N’attendez plus pour venir la découvrir et laissez-vous séduire par son agencement harmonieux !
L’actualité immobilière à Saint-Urbain
27/11/2023
02/11/2023
30/10/2023
20/10/2023
16/10/2023
16/10/2023