Images
Description
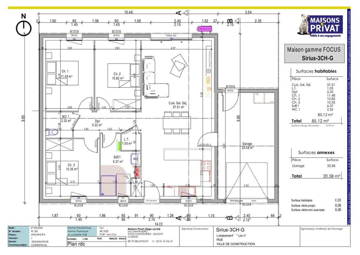
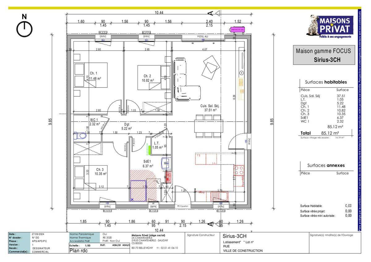
Sur ce terrain, nous vous proposons cette superbe maison de plain-pied au plan optimisé, pensée pour offrir confort et convivialité à toute la famille. Passé l’entrée, vous serez immédiatement séduit par une vaste pièce de vie baignée de lumière, où se côtoient salon, salle à manger et cuisine ouverte, idéale pour partager des moments chaleureux au quotidien.
Côté nuit, trois chambres spacieuses et lumineuses vous attendent, chacune permettant d’installer rangements et bureau selon vos envies. Une salle de bain moderne, un WC complètent cet agencement astucieux, facilitant l’organisation de la vie de famille.
Atout pratique : Un garage attenant de près de 21 m² permet de stationner votre véhicule en toute sécurité, tout en laissant de la place pour un atelier ou du rangement supplémentaire.
Moderne, fonctionnelle et pensée pour un confort optimal, cette maison saura répondre à toutes vos attentes. N’attendez plus pour venir la découvrir et laissez-vous séduire par son agencement harmonieux !
Logement susceptibles de vous intéresser
Nous vous proposons de découvrir aussi cette sélection de logements situés à moins de 10km de Sainte-Cécile et qui seraient susceptibles de vous intéresser.
Essarts en Bocage
TERRAINPrix : 34340 €.Sur ce terrain de 404 m² à LES ESSARTS, Alliance Construction vous propose de réaliser votre projet de construction de maison individuelle.Avec Alliance Construction, habitez une maison spécialement pensée et conçue pour vous et votre famille, prête à décorer, adaptée à vos modes de vie, personnalisée selon vos goûts grâce à un large choix d'options, de matériaux et d'innovations ! Demandez une étude gratuite et personnalisée de votre projet de construction sur ce terrain à LES ESSARTS !Contactez Sylvain CARIOU au (Numéro supprimé) (Alliance Construction – Agence de la Roche-sur-Yon).Prix hors frais de notaire. Terrain sélectionné par ALLIANCE auprès de nos partenaires fonciers, selon disponibilité, pour la construction d'une maison neuve. Non mandaté pour réaliser la vente (loi du 2 janvier 1970 n°70-9). Visuels non contractuels. Voir détails en agence.Cette annonce a été créée et diffusée avec le logiciel VITAHOME.
Mouchamps
TERRAINPrix : 28900 €.Sur ce terrain de 444 m² à MOUCHAMPS, Alliance Construction vous propose de réaliser votre projet de construction de maison individuelle.Avec Alliance Construction, habitez une maison spécialement pensée et conçue pour vous et votre famille, prête à décorer, adaptée à vos modes de vie, personnalisée selon vos goûts grâce à un large choix d'options, de matériaux et d'innovations ! Demandez une étude gratuite et personnalisée de votre projet de construction sur ce terrain à MOUCHAMPS !Contactez Sylvain CARIOU au (Numéro supprimé) (Alliance Construction – Agence de la Roche-sur-Yon).Prix hors frais de notaire. Terrain sélectionné par ALLIANCE auprès de nos partenaires fonciers, selon disponibilité, pour la construction d'une maison neuve. Non mandaté pour réaliser la vente (loi du 2 janvier 1970 n°70-9). Visuels non contractuels. Voir détails en agence.Cette annonce a été créée et diffusée avec le logiciel VITAHOME.
Saint-Hilaire-le-Vouhis
TERRAINPrix : 27500 €.Sur ce terrain de 405 m² à SAINT-HILAIRE-LE-VOUHIS, Alliance Construction vous propose de réaliser votre projet de construction de maison individuelle.Avec Alliance Construction, habitez une maison spécialement pensée et conçue pour vous et votre famille, prête à décorer, adaptée à vos modes de vie, personnalisée selon vos goûts grâce à un large choix d'options, de matériaux et d'innovations ! Demandez une étude gratuite et personnalisée de votre projet de construction sur ce terrain à SAINT-HILAIRE-LE-VOUHIS !Contactez Sylvain CARIOU au (Numéro supprimé) (Alliance Construction – Agence de la Roche-sur-Yon).Prix hors frais de notaire. Terrain sélectionné par ALLIANCE auprès de nos partenaires fonciers, selon disponibilité, pour la construction d'une maison neuve. Non mandaté pour réaliser la vente (loi du 2 janvier 1970 n°70-9). Visuels non contractuels. Voir détails en agence.Cette annonce a été créée et diffusée avec le logiciel VITAHOME.
Saint-Hilaire-le-Vouhis
TERRAINPrix : 33500 €.Sur ce terrain de 682 m² à SAINT-HILAIRE-LE-VOUHIS, Alliance Construction vous propose de réaliser votre projet de construction de maison individuelle.Avec Alliance Construction, habitez une maison spécialement pensée et conçue pour vous et votre famille, prête à décorer, adaptée à vos modes de vie, personnalisée selon vos goûts grâce à un large choix d'options, de matériaux et d'innovations ! Demandez une étude gratuite et personnalisée de votre projet de construction sur ce terrain à SAINT-HILAIRE-LE-VOUHIS !Contactez Sylvain CARIOU au (Numéro supprimé) (Alliance Construction – Agence de la Roche-sur-Yon).Prix hors frais de notaire. Terrain sélectionné par ALLIANCE auprès de nos partenaires fonciers, selon disponibilité, pour la construction d'une maison neuve. Non mandaté pour réaliser la vente (loi du 2 janvier 1970 n°70-9). Visuels non contractuels. Voir détails en agence.Cette annonce a été créée et diffusée avec le logiciel VITAHOME.
Essarts en Bocage
TERRAIN ET MAISONA LES ESSARTS sur un terrain de 305 m², Alliance Construction vous propose de réaliser votre projet de construction de maison individuelle d'une surface de 71.3 m² habitables avec 2 chambres, à partir de 168920€*Demandez une étude gratuite et personnalisée de votre projet de construction !* Cette offre comprend :- Garanties constructeurs (dommages ouvrage, garantie de prix ferme et définitif, garantie de livraison, responsabilité civile et décennale).- Branchements aux compteurs et accès empierré sur 5m linéaires.Habitez une maison spécialement pensée et conçue pour vous et votre famille, prête à décorer, adaptée à vos modes de vie, personnalisée selon vos goûts grâce à un large choix d'options, de matériaux et d'innovations !Contactez Patrice (Numéro supprimé)*Prix indicatif pour un projet de construction d'une maison individuelle. Ne sont pas inclus les frais de branchements, raccordements aux réseaux publics, frais d'adaptations, aménagements intérieurs et extérieurs et options. terrain viabilisé, frais de notaire non compris, frais divers non compris. Garanties et assurances obligatoires incluses. Terrain sélectionné par ALLIANCE auprès de nos partenaires fonciers, selon disponibilité, pour la construction d'une maison neuve. Non mandaté pour réaliser la vente (loi du 2 janvier 1970 n°70-9). Visuels non contractuels. Voir détails en agence.Cette annonce a été créée et diffusée avec le logiciel VITAHOME.
Saint-Hilaire-le-Vouhis
TERRAIN ET MAISONA SAINT-HILAIRE-LE-VOUHIS sur un terrain de 405 m², Alliance Construction vous propose de réaliser votre projet de construction de maison individuelle d'une surface de 106.13 m² habitables avec 4 chambres, clé en main ! à partir de 258570€*Demandez une étude gratuite et personnalisée de votre projet de construction !* Cette offre comprend :- Garanties constructeurs (dommages ouvrage, garantie de prix ferme et définitif, garantie de livraison, responsabilité civile et décennale).- Branchements aux compteurs et accès empierré sur 5m linéaires.Habitez une maison spécialement pensée et conçue pour vous et votre famille, prête à décorer, adaptée à vos modes de vie, personnalisée selon vos goûts grâce à un large choix d'options, de matériaux et d'innovations !Contactez Sylvain CARIOU au (Numéro supprimé) (Alliance Construction – Agence de la Roche-sur-Yon).*Prix indicatif pour un projet de construction d'une maison individuelle. Ne sont pas inclus les frais de branchements, raccordements aux réseaux publics, frais d'adaptations, aménagements intérieurs et extérieurs et options. terrain viabilisé, frais de notaire non compris, frais divers non compris. Garanties et assurances obligatoires incluses. Terrain sélectionné par ALLIANCE auprès de nos partenaires fonciers, selon disponibilité, pour la construction d'une maison neuve. Non mandaté pour réaliser la vente (loi du 2 janvier 1970 n°70-9). Visuels non contractuels. Voir détails en agence.Cette annonce a été créée et diffusée avec le logiciel VITAHOME.
Chantonnay
TERRAINPrix : 32000 €.Sur ce terrain de 401 m² à CHANTONNAY, Alliance Construction vous propose de réaliser votre projet de construction de maison individuelle.Avec Alliance Construction, habitez une maison spécialement pensée et conçue pour vous et votre famille, prête à décorer, adaptée à vos modes de vie, personnalisée selon vos goûts grâce à un large choix d'options, de matériaux et d'innovations ! Demandez une étude gratuite et personnalisée de votre projet de construction sur ce terrain à CHANTONNAY !Contactez Sylvain CARIOU au (Numéro supprimé) (Alliance Construction – Agence de la Roche-sur-Yon).Prix hors frais de notaire. Terrain sélectionné par ALLIANCE auprès de nos partenaires fonciers, selon disponibilité, pour la construction d'une maison neuve. Non mandaté pour réaliser la vente (loi du 2 janvier 1970 n°70-9). Visuels non contractuels. Voir détails en agence.Cette annonce a été créée et diffusée avec le logiciel VITAHOME.
Essarts en Bocage
TERRAINPrix : 28000 €.Sur ce terrain de 305 m² à LES ESSARTS, Alliance Construction vous propose de réaliser votre projet de construction de maison individuelle.Avec Alliance Construction, habitez une maison spécialement pensée et conçue pour vous et votre famille, prête à décorer, adaptée à vos modes de vie, personnalisée selon vos goûts grâce à un large choix d'options, de matériaux et d'innovations ! Demandez une étude gratuite et personnalisée de votre projet de construction sur ce terrain à LES ESSARTS !Contactez Sylvain CARIOU au (Numéro supprimé) (Alliance Construction – Agence de la Roche-sur-Yon).Prix hors frais de notaire. Terrain sélectionné par ALLIANCE auprès de nos partenaires fonciers, selon disponibilité, pour la construction d'une maison neuve. Non mandaté pour réaliser la vente (loi du 2 janvier 1970 n°70-9). Visuels non contractuels. Voir détails en agence.Cette annonce a été créée et diffusée avec le logiciel VITAHOME.
Saint-Martin-des-Noyers
TERRAINPrix : 69800 €.Sur ce terrain de 820 m² à SAINT-MARTIN-DES-NOYERS, Alliance Construction vous propose de réaliser votre projet de construction de maison individuelle.Avec Alliance Construction, habitez une maison spécialement pensée et conçue pour vous et votre famille, prête à décorer, adaptée à vos modes de vie, personnalisée selon vos goûts grâce à un large choix d'options, de matériaux et d'innovations ! Demandez une étude gratuite et personnalisée de votre projet de construction sur ce terrain à SAINT-MARTIN-DES-NOYERS !Contactez Sylvain CARIOU au (Numéro supprimé) (Alliance Construction – Agence de la Roche-sur-Yon).Prix hors frais de notaire. Terrain sélectionné par ALLIANCE auprès de nos partenaires fonciers, selon disponibilité, pour la construction d'une maison neuve. Non mandaté pour réaliser la vente (loi du 2 janvier 1970 n°70-9). Visuels non contractuels. Voir détails en agence.Cette annonce a été créée et diffusée avec le logiciel VITAHOME.
L’actualité immobilière à Sainte-Cécile
27/11/2023
02/11/2023
30/10/2023
20/10/2023
16/10/2023
16/10/2023