Images
Description
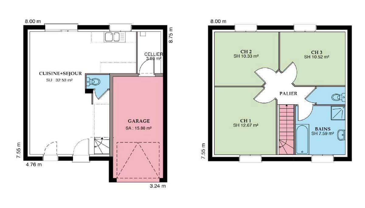
Sur ce terrain, nous vous proposons cette maison neuve : la Nantaise, une maison contemporaine à étage qui allie classique et moderne.
La Nantaise est une maison contemporaine, couverte d’un toit mixte tuilé à deux pans et terrasse à l’arrière. Elle est dotée de jolis volets battants en couleur. Son garage intégré en avancée lui confère de l’originalité.
Cette demeure de 100 m² dispose de 3 chambres et de 4 pièces, offrant ainsi un espace de vie confortable et fonctionnel. La dalle étage en béton assure une solidité et une isolation optimale, répondant aux exigences de qualité et de durabilité.
La Nantaise a tout de la maison cossue. Cette grande demeure très cubique est proposée en versions allant d’une surface de 90 à 110 m², ce qui reste raisonnable tout en permettant de voir grand, tout cela sans prendre beaucoup de place au sol. Elle peut se composer de 4 chambres, voire plus, s’adaptant ainsi parfaitement à tous les types de familles, même particulièrement grandes.
A noter que les options les plus demandées par les clients, comme l'enduit bi-ton, sont disponibles pour personnaliser votre maison selon vos goûts.
Cette maison neuve est basse consommation et conforme à la RE2020, garantissant ainsi des performances énergétiques optimales et un respect de l'environnement.
Le constructeur, Maisons Privat, est un constructeur centenaire avec les meilleurs avis clients de la région, vous assurant une qualité de construction irréprochable et un accompagnement personnalisé tout au long de votre projet.
Ne manquez pas cette opportunité unique de devenir propriétaire d'une maison moderne, économe en énergie et parfaitement adaptée à vos besoins. Contactez-nous dès aujourd'hui pour plus d'informations !
Logement susceptibles de vous intéresser
Nous vous proposons de découvrir aussi cette sélection de logements situés à moins de 10km de Vairé et qui seraient susceptibles de vous intéresser.
Les Sables-d'Olonne
TERRAINTerrain viabilisé de 330 m² aux Sables-d’Olonne, idéalement situé dans un secteur recherché, environnement calme et agréable. // Réf. : T213663. Prix terrain : 140 500 €, hors frais d'agence et de notaire à la charge de l'acquéreur. Ce terrain vous est proposé, par nos partenaires fonciers, dans le cadre d'un projet de construction avec nous. Les informations sur les risques auxquels ce bien est exposé sont disponibles sur le site Géorisques (www.georisques.gouv.fr).
Les Sables-d'Olonne
TERRAINTerrain viabilisé de 330 m² aux Sables-d’Olonne, idéalement situé dans un secteur recherché, environnement calme et agréable. // Réf. : T213663. Prix terrain : 140 500 €, hors frais d'agence et de notaire à la charge de l'acquéreur. Ce terrain vous est proposé, par nos partenaires fonciers, dans le cadre d'un projet de construction avec nous. Les informations sur les risques auxquels ce bien est exposé sont disponibles sur le site Géorisques (www.georisques.gouv.fr).
Les Sables-d'Olonne
TERRAIN ET MAISONTerrain viabilisé de 330 m² aux Sables-d’Olonne, idéalement situé dans un secteur recherché, environnement calme et agréable. Idéale pour une première acquisition, cette charmante maison de plain-pied vous accueille dans un très bel espace de vie baigné de lumière grâce à sa baie vitrée. Elle vous offre également deux chambres, une salle de bains et des wc séparés. Le garage est intégré à la maison et communique avec le cellier. Pour vous assurer un confort de vie et conformément à la RE2025, nous avons choisi un mode de chauffage par PAC + plancher chauffant, volets roulants électriques. Prix hors fourniture et pose : des appareils sanitaires (sauf système de chauffage et d'eau chaude sanitaire), du carrelage et de la faïence, des revêtements de sol dans les chambres. Hors décoration et aménagement intérieur et peinture. Hors raccordements, frais de notaire et dommage ouvrage. // Réf. : 2563-213663-SBI. Prix terrain : 140 500 €, hors frais d'agence à la charge de l'acquéreur. Ce terrain vous est proposé, par nos partenaires fonciers, dans le cadre d'un projet de construction avec nous. Les informations sur les risques auxquels ce bien est exposé sont disponibles sur le site Géorisques (www.georisques.gouv.fr). Prix maison : 110 893 €.
Les Sables-d'Olonne
TERRAIN ET MAISONTerrain viabilisé de 330 m² aux Sables-d’Olonne, idéalement situé dans un secteur recherché, environnement calme et agréable. Laissez-vous Séduire par cette Maison de Rêve ! Optez pour le confort et la fonctionnalité avec cette magnifique maison de plain-pied en L, spécialement conçue pour répondre à toutes vos attentes. Un espace de vie baigné de lumière : Vaste séjour traversant pour une luminosité optimale avec cuisine ouverte pour des moments conviviaux, accès direct au cellier pour un rangement pratique. Un espace nuit bien pensé : 1 suite parentale avec dressing et salle de bains, 2 chambres avec placards, une seconde salle de bains et des wc séparés. Pour vous assurer un confort de vie et conformément à la RE2025, nous avons choisi un mode de chauffage par PAC + plancher chauffant, volets roulants électriques. Prix hors fourniture et pose : des appareils sanitaires (sauf système de chauffage et d'eau chaude sanitaire), du carrelage et de la faïence, des revêtements de sol dans les chambres. Hors décoration et aménagement intérieur et peinture. Hors raccordements, frais de notaire et dommage ouvrage. // Réf. : 2545-213663-SBI. Prix terrain : 140 500 €, hors frais d'agence à la charge de l'acquéreur. Ce terrain vous est proposé, par nos partenaires fonciers, dans le cadre d'un projet de construction avec nous. Les informations sur les risques auxquels ce bien est exposé sont disponibles sur le site Géorisques (www.georisques.gouv.fr). Prix maison : 139 925 €.
Les Sables-d'Olonne
TERRAINMagnifique terrain à bâtir de 840 m² situé à Olonne-sur-Mer (85).Ce beau terrain plat est idéal pour construire une jolie maison vendéenne. Les grands terrains sont rares sur le secteur, profitez de cette opportunité unique !Il bénéficie également d'une localisation proche des transports, facilitant vos déplacements.Prix : 200000 €.Contactez-nous au (Numéro supprimé) (ALLIANCE PROMOTION)Prix hors frais de notaire. Terrain sélectionné par ALLIANCE PROMOTION. Visuels non contractuels. Voir détails en agence.Cette annonce a été créée et diffusée avec le logiciel VITAHOME.
Les Sables-d'Olonne
TERRAIN ET MAISONTerrain viabilisé de 330 m² aux Sables-d’Olonne, idéalement situé dans un secteur recherché, environnement calme et agréable. Compacte et fonctionnelle, cette maison de plain-pied vous propose un bel espace de vie lumineux, avec une grande baie vitrée donnant sur le jardin. Sa cuisine est ouverte sur le séjour et dispose d'un accès direct au cellier, et au garage intégré. Son espace nuit est composé de deux chambres avec rangements, d'une salle de bains et de wc séparés. Pour vous assurer un confort de vie et conformément à la RE2025, nous avons choisi un mode de chauffage par PAC + plancher chauffant, volets roulants électriques, Prix hors fourniture et pose : des appareils sanitaires (sauf système de chauffage et d'eau chaude sanitaire), du carrelage et de la faïence, des revêtements de sol dans les chambres. Hors décoration et aménagement intérieur et peinture. Hors raccordements, frais de notaire et dommage ouvrage. // Réf. : 2549-213663-SBI. Prix terrain : 140 500 €, hors frais d'agence à la charge de l'acquéreur. Ce terrain vous est proposé, par nos partenaires fonciers, dans le cadre d'un projet de construction avec nous. Les informations sur les risques auxquels ce bien est exposé sont disponibles sur le site Géorisques (www.georisques.gouv.fr). Prix maison : 124 870 €.
L'Île-d'Olonne
TERRAIN ET MAISONA L'ILE-D'OLONNE sur un terrain de 613 m², Alliance Construction vous propose de réaliser votre projet de construction de maison individuelle avec 3 chambres, à partir de 297200€*Demandez une étude gratuite et personnalisée de votre projet de construction !* Cette offre comprend :- Garanties constructeurs (dommages ouvrage, garantie de prix ferme et définitif, garantie de livraison, responsabilité civile et décennale).- Branchements aux compteurs et accès empierré sur 5m linéaires.Habitez une maison spécialement pensée et conçue pour vous et votre famille, prête à décorer, adaptée à vos modes de vie, personnalisée selon vos goûts grâce à un large choix d'options, de matériaux et d'innovations !Contactez Perrick MACCHI au (Numéro supprimé) (Alliance Construction – Agence des Sables-d'Olonne).*Prix indicatif pour un projet de construction d'une maison individuelle. Ne sont pas inclus les frais de branchements, raccordements aux réseaux publics, frais d'adaptations, aménagements intérieurs et extérieurs et options. terrain viabilisé, frais de notaire non compris, frais divers non compris. Garanties et assurances obligatoires incluses. Terrain sélectionné par ALLIANCE auprès de nos partenaires fonciers, selon disponibilité, pour la construction d'une maison neuve. Non mandaté pour réaliser la vente (loi du 2 janvier 1970 n°70-9). Visuels non contractuels. Voir détails en agence.Cette annonce a été créée et diffusée avec le logiciel VITAHOME.
L'Aiguillon-sur-Vie
TERRAIN ET MAISONA L'AIGUILLON-SUR-VIE sur un terrain de 375 m², Alliance Construction vous propose de réaliser votre projet de construction de maison individuelle d'une surface de 94.48 m² habitables avec 3 chambres, à partir de 246700€*Demandez une étude gratuite et personnalisée de votre projet de construction !* Cette offre comprend :- Garanties constructeurs (dommages ouvrage, garantie de prix ferme et définitif, garantie de livraison, responsabilité civile et décennale).- Branchements aux compteurs et accès empierré sur 5m linéaires.Habitez une maison spécialement pensée et conçue pour vous et votre famille, prête à décorer, adaptée à vos modes de vie, personnalisée selon vos goûts grâce à un large choix d'options, de matériaux et d'innovations !Contactez Perrick MACCHI au (Numéro supprimé) (Alliance Construction – Agence des Sables-d'Olonne).*Prix indicatif pour un projet de construction d'une maison individuelle. Ne sont pas inclus les frais de branchements, raccordements aux réseaux publics, frais d'adaptations, aménagements intérieurs et extérieurs et options. terrain viabilisé, frais de notaire non compris, frais divers non compris. Garanties et assurances obligatoires incluses. Terrain sélectionné par ALLIANCE auprès de nos partenaires fonciers, selon disponibilité, pour la construction d'une maison neuve. Non mandaté pour réaliser la vente (loi du 2 janvier 1970 n°70-9). Visuels non contractuels. Voir détails en agence.Cette annonce a été créée et diffusée avec le logiciel VITAHOME.
L'Île-d'Olonne
TERRAIN ET MAISONA L'ILE-D'OLONNE sur un terrain de 613 m², Alliance Construction vous propose de réaliser votre projet de construction de maison individuelle avec 3 chambres, à partir de 326572€*Demandez une étude gratuite et personnalisée de votre projet de construction !* Cette offre comprend :- Garanties constructeurs (dommages ouvrage, garantie de prix ferme et définitif, garantie de livraison, responsabilité civile et décennale).- Branchements aux compteurs et accès empierré sur 5m linéaires.Habitez une maison spécialement pensée et conçue pour vous et votre famille, prête à décorer, adaptée à vos modes de vie, personnalisée selon vos goûts grâce à un large choix d'options, de matériaux et d'innovations !Contactez Perrick MACCHI au (Numéro supprimé) (Alliance Construction – Agence des Sables-d'Olonne).*Prix indicatif pour un projet de construction d'une maison individuelle. Ne sont pas inclus les frais de branchements, raccordements aux réseaux publics, frais d'adaptations, aménagements intérieurs et extérieurs et options. terrain viabilisé, frais de notaire non compris, frais divers non compris. Garanties et assurances obligatoires incluses. Terrain sélectionné par ALLIANCE auprès de nos partenaires fonciers, selon disponibilité, pour la construction d'une maison neuve. Non mandaté pour réaliser la vente (loi du 2 janvier 1970 n°70-9). Visuels non contractuels. Voir détails en agence.Cette annonce a été créée et diffusée avec le logiciel VITAHOME.
L’actualité immobilière à Vairé
27/11/2023
02/11/2023
30/10/2023
20/10/2023
16/10/2023
16/10/2023