Images
Description
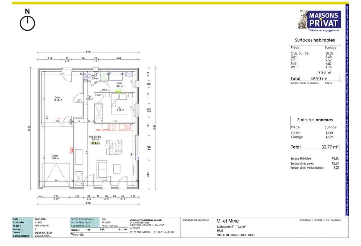
Sur ce terrain, nous vous proposons ce modèle de maison qui incarne l'harmonie parfaite entre fonctionnalité et adaptabilité, elle est conçue pour répondre à vos besoins présents tout en anticipant vos projets futurs.
Le cœur de cette maison est une pièce de vie spacieuse et lumineuse de 30 m², judicieusement aménagée pour maximiser le confort et l'utilité. Cet espace multifonctionnel combine un salon / séjour accueillant, et une cuisine ouverte moderne. Les grandes fenêtres baignent la pièce de lumière naturelle, créant une atmosphère chaleureuse et accueillante, idéale pour se détendre ou recevoir des invités.
À côté de la pièce de vie se trouvent une chambre et une salle d’eau.
Adossé à la maison, un garage de 34 m.² offre un espace pratique pour garer un véhicule ou stocker des équipements.
La conception de cette maison intègre dès le départ la possibilité d'évolution. Lorsque le moment sera venu d'agrandir, l'atelier actuel pourra être aménagé en une chambre avec salle d'eau ou dressing. Cette transformation est facilitée par une infrastructure prévue pour accueillir les installations sanitaires nécessaires. Cette flexibilité permet d'adapter la maison à l'évolution de votre famille ou de vos besoins sans compromis sur le confort ou la qualité de vie.
En résumé, cette maison évolutive est une solution idéale pour ceux qui cherchent à investir dans un habitat adaptable et durable.
* Prix indiqué hors branchements, hors sanitaires, hors revêtement des sols et des murs. Assurance dommages ouvrages incluse.
Logement susceptibles de vous intéresser
Nous vous proposons de découvrir aussi cette sélection de logements situés à moins de 10km de Vairé et qui seraient susceptibles de vous intéresser.
Les Sables-d'Olonne
TERRAINTerrain viabilisé de 330 m² aux Sables-d’Olonne, idéalement situé dans un secteur recherché, environnement calme et agréable. // Réf. : T213663. Prix terrain : 140 500 €, hors frais d'agence et de notaire à la charge de l'acquéreur. Ce terrain vous est proposé, par nos partenaires fonciers, dans le cadre d'un projet de construction avec nous. Les informations sur les risques auxquels ce bien est exposé sont disponibles sur le site Géorisques (www.georisques.gouv.fr).
Les Sables-d'Olonne
TERRAINTerrain viabilisé de 330 m² aux Sables-d’Olonne, idéalement situé dans un secteur recherché, environnement calme et agréable. // Réf. : T213663. Prix terrain : 140 500 €, hors frais d'agence et de notaire à la charge de l'acquéreur. Ce terrain vous est proposé, par nos partenaires fonciers, dans le cadre d'un projet de construction avec nous. Les informations sur les risques auxquels ce bien est exposé sont disponibles sur le site Géorisques (www.georisques.gouv.fr).
Les Sables-d'Olonne
TERRAIN ET MAISONTerrain viabilisé de 330 m² aux Sables-d’Olonne, idéalement situé dans un secteur recherché, environnement calme et agréable. Idéale pour une première acquisition, cette charmante maison de plain-pied vous accueille dans un très bel espace de vie baigné de lumière grâce à sa baie vitrée. Elle vous offre également deux chambres, une salle de bains et des wc séparés. Le garage est intégré à la maison et communique avec le cellier. Pour vous assurer un confort de vie et conformément à la RE2025, nous avons choisi un mode de chauffage par PAC + plancher chauffant, volets roulants électriques. Prix hors fourniture et pose : des appareils sanitaires (sauf système de chauffage et d'eau chaude sanitaire), du carrelage et de la faïence, des revêtements de sol dans les chambres. Hors décoration et aménagement intérieur et peinture. Hors raccordements, frais de notaire et dommage ouvrage. // Réf. : 2563-213663-SBI. Prix terrain : 140 500 €, hors frais d'agence à la charge de l'acquéreur. Ce terrain vous est proposé, par nos partenaires fonciers, dans le cadre d'un projet de construction avec nous. Les informations sur les risques auxquels ce bien est exposé sont disponibles sur le site Géorisques (www.georisques.gouv.fr). Prix maison : 110 893 €.
Les Sables-d'Olonne
TERRAIN ET MAISONTerrain viabilisé de 330 m² aux Sables-d’Olonne, idéalement situé dans un secteur recherché, environnement calme et agréable. Laissez-vous Séduire par cette Maison de Rêve ! Optez pour le confort et la fonctionnalité avec cette magnifique maison de plain-pied en L, spécialement conçue pour répondre à toutes vos attentes. Un espace de vie baigné de lumière : Vaste séjour traversant pour une luminosité optimale avec cuisine ouverte pour des moments conviviaux, accès direct au cellier pour un rangement pratique. Un espace nuit bien pensé : 1 suite parentale avec dressing et salle de bains, 2 chambres avec placards, une seconde salle de bains et des wc séparés. Pour vous assurer un confort de vie et conformément à la RE2025, nous avons choisi un mode de chauffage par PAC + plancher chauffant, volets roulants électriques. Prix hors fourniture et pose : des appareils sanitaires (sauf système de chauffage et d'eau chaude sanitaire), du carrelage et de la faïence, des revêtements de sol dans les chambres. Hors décoration et aménagement intérieur et peinture. Hors raccordements, frais de notaire et dommage ouvrage. // Réf. : 2545-213663-SBI. Prix terrain : 140 500 €, hors frais d'agence à la charge de l'acquéreur. Ce terrain vous est proposé, par nos partenaires fonciers, dans le cadre d'un projet de construction avec nous. Les informations sur les risques auxquels ce bien est exposé sont disponibles sur le site Géorisques (www.georisques.gouv.fr). Prix maison : 139 925 €.
Les Sables-d'Olonne
TERRAINMagnifique terrain à bâtir de 840 m² situé à Olonne-sur-Mer (85).Ce beau terrain plat est idéal pour construire une jolie maison vendéenne. Les grands terrains sont rares sur le secteur, profitez de cette opportunité unique !Il bénéficie également d'une localisation proche des transports, facilitant vos déplacements.Prix : 200000 €.Contactez-nous au (Numéro supprimé) (ALLIANCE PROMOTION)Prix hors frais de notaire. Terrain sélectionné par ALLIANCE PROMOTION. Visuels non contractuels. Voir détails en agence.Cette annonce a été créée et diffusée avec le logiciel VITAHOME.
Les Sables-d'Olonne
TERRAIN ET MAISONTerrain viabilisé de 330 m² aux Sables-d’Olonne, idéalement situé dans un secteur recherché, environnement calme et agréable. Compacte et fonctionnelle, cette maison de plain-pied vous propose un bel espace de vie lumineux, avec une grande baie vitrée donnant sur le jardin. Sa cuisine est ouverte sur le séjour et dispose d'un accès direct au cellier, et au garage intégré. Son espace nuit est composé de deux chambres avec rangements, d'une salle de bains et de wc séparés. Pour vous assurer un confort de vie et conformément à la RE2025, nous avons choisi un mode de chauffage par PAC + plancher chauffant, volets roulants électriques, Prix hors fourniture et pose : des appareils sanitaires (sauf système de chauffage et d'eau chaude sanitaire), du carrelage et de la faïence, des revêtements de sol dans les chambres. Hors décoration et aménagement intérieur et peinture. Hors raccordements, frais de notaire et dommage ouvrage. // Réf. : 2549-213663-SBI. Prix terrain : 140 500 €, hors frais d'agence à la charge de l'acquéreur. Ce terrain vous est proposé, par nos partenaires fonciers, dans le cadre d'un projet de construction avec nous. Les informations sur les risques auxquels ce bien est exposé sont disponibles sur le site Géorisques (www.georisques.gouv.fr). Prix maison : 124 870 €.
L'Île-d'Olonne
TERRAIN ET MAISONA L'ILE-D'OLONNE sur un terrain de 613 m², Alliance Construction vous propose de réaliser votre projet de construction de maison individuelle avec 3 chambres, à partir de 297200€*Demandez une étude gratuite et personnalisée de votre projet de construction !* Cette offre comprend :- Garanties constructeurs (dommages ouvrage, garantie de prix ferme et définitif, garantie de livraison, responsabilité civile et décennale).- Branchements aux compteurs et accès empierré sur 5m linéaires.Habitez une maison spécialement pensée et conçue pour vous et votre famille, prête à décorer, adaptée à vos modes de vie, personnalisée selon vos goûts grâce à un large choix d'options, de matériaux et d'innovations !Contactez Perrick MACCHI au (Numéro supprimé) (Alliance Construction – Agence des Sables-d'Olonne).*Prix indicatif pour un projet de construction d'une maison individuelle. Ne sont pas inclus les frais de branchements, raccordements aux réseaux publics, frais d'adaptations, aménagements intérieurs et extérieurs et options. terrain viabilisé, frais de notaire non compris, frais divers non compris. Garanties et assurances obligatoires incluses. Terrain sélectionné par ALLIANCE auprès de nos partenaires fonciers, selon disponibilité, pour la construction d'une maison neuve. Non mandaté pour réaliser la vente (loi du 2 janvier 1970 n°70-9). Visuels non contractuels. Voir détails en agence.Cette annonce a été créée et diffusée avec le logiciel VITAHOME.
L'Aiguillon-sur-Vie
TERRAIN ET MAISONA L'AIGUILLON-SUR-VIE sur un terrain de 375 m², Alliance Construction vous propose de réaliser votre projet de construction de maison individuelle d'une surface de 94.48 m² habitables avec 3 chambres, à partir de 246700€*Demandez une étude gratuite et personnalisée de votre projet de construction !* Cette offre comprend :- Garanties constructeurs (dommages ouvrage, garantie de prix ferme et définitif, garantie de livraison, responsabilité civile et décennale).- Branchements aux compteurs et accès empierré sur 5m linéaires.Habitez une maison spécialement pensée et conçue pour vous et votre famille, prête à décorer, adaptée à vos modes de vie, personnalisée selon vos goûts grâce à un large choix d'options, de matériaux et d'innovations !Contactez Perrick MACCHI au (Numéro supprimé) (Alliance Construction – Agence des Sables-d'Olonne).*Prix indicatif pour un projet de construction d'une maison individuelle. Ne sont pas inclus les frais de branchements, raccordements aux réseaux publics, frais d'adaptations, aménagements intérieurs et extérieurs et options. terrain viabilisé, frais de notaire non compris, frais divers non compris. Garanties et assurances obligatoires incluses. Terrain sélectionné par ALLIANCE auprès de nos partenaires fonciers, selon disponibilité, pour la construction d'une maison neuve. Non mandaté pour réaliser la vente (loi du 2 janvier 1970 n°70-9). Visuels non contractuels. Voir détails en agence.Cette annonce a été créée et diffusée avec le logiciel VITAHOME.
L'Île-d'Olonne
TERRAIN ET MAISONA L'ILE-D'OLONNE sur un terrain de 613 m², Alliance Construction vous propose de réaliser votre projet de construction de maison individuelle avec 3 chambres, à partir de 326572€*Demandez une étude gratuite et personnalisée de votre projet de construction !* Cette offre comprend :- Garanties constructeurs (dommages ouvrage, garantie de prix ferme et définitif, garantie de livraison, responsabilité civile et décennale).- Branchements aux compteurs et accès empierré sur 5m linéaires.Habitez une maison spécialement pensée et conçue pour vous et votre famille, prête à décorer, adaptée à vos modes de vie, personnalisée selon vos goûts grâce à un large choix d'options, de matériaux et d'innovations !Contactez Perrick MACCHI au (Numéro supprimé) (Alliance Construction – Agence des Sables-d'Olonne).*Prix indicatif pour un projet de construction d'une maison individuelle. Ne sont pas inclus les frais de branchements, raccordements aux réseaux publics, frais d'adaptations, aménagements intérieurs et extérieurs et options. terrain viabilisé, frais de notaire non compris, frais divers non compris. Garanties et assurances obligatoires incluses. Terrain sélectionné par ALLIANCE auprès de nos partenaires fonciers, selon disponibilité, pour la construction d'une maison neuve. Non mandaté pour réaliser la vente (loi du 2 janvier 1970 n°70-9). Visuels non contractuels. Voir détails en agence.Cette annonce a été créée et diffusée avec le logiciel VITAHOME.
L’actualité immobilière à Vairé
27/11/2023
02/11/2023
30/10/2023
20/10/2023
16/10/2023
16/10/2023