Images
Description
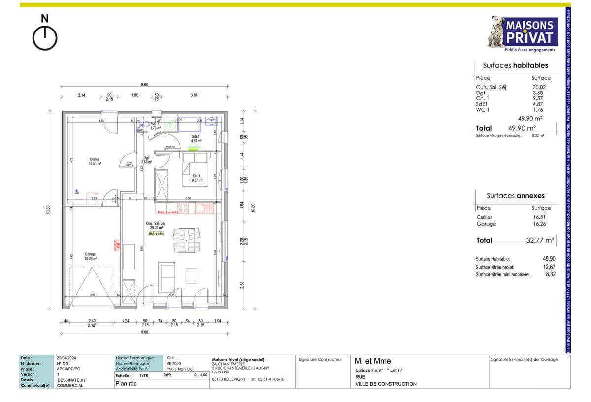
Sur ce terrain, nous vous proposons ce modèle de maison qui incarne l'harmonie parfaite entre fonctionnalité et adaptabilité, elle est conçue pour répondre à vos besoins présents tout en anticipant vos projets futurs.
Le cœur de cette maison est une pièce de vie spacieuse et lumineuse de 30 m², judicieusement aménagée pour maximiser le confort et l'utilité. Cet espace multifonctionnel combine un salon / séjour accueillant, et une cuisine ouverte moderne. Les grandes fenêtres baignent la pièce de lumière naturelle, créant une atmosphère chaleureuse et accueillante, idéale pour se détendre ou recevoir des invités.
À côté de la pièce de vie se trouvent une chambre et une salle d’eau.
Adossé à la maison, un garage de 34 m.² offre un espace pratique pour garer un véhicule ou stocker des équipements.
La conception de cette maison intègre dès le départ la possibilité d'évolution. Lorsque le moment sera venu d'agrandir, l'atelier actuel pourra être aménagé en une chambre avec salle d'eau ou dressing. Cette transformation est facilitée par une infrastructure prévue pour accueillir les installations sanitaires nécessaires. Cette flexibilité permet d'adapter la maison à l'évolution de votre famille ou de vos besoins sans compromis sur le confort ou la qualité de vie.
En résumé, cette maison évolutive est une solution idéale pour ceux qui cherchent à investir dans un habitat adaptable et durable.
* Prix indiqué hors branchements, hors sanitaires, hors revêtement des sols et des murs. Assurance dommages ouvrages incluse.
Logement susceptibles de vous intéresser
Nous vous proposons de découvrir aussi cette sélection de logements situés à moins de 10km de Venansault et qui seraient susceptibles de vous intéresser.

Aubigny-Les Clouzeaux
TERRAIN ET MAISONTerrain viabilisé de 540 m² à Aubigny-les-Clouzeaux (85). À seulement quelques minutes de La Roche-sur-Yon, dans un environnement résidentiel calme. Proche des commerces, écoles et services. Le modèle MAJORQUE est une maison de plain-pied fonctionnelle et lumineuse qui vous accueille dans un bel espace de vie avec cuisine ouverte avec accès direct au cellier. Du côté de l'espace nuit, 3 chambres, une salle de bains et wc indépendant. Vous pourrez choisir vos jeux d’enduits afin de personnaliser votre maison pour qu’elle corresponde à votre style. Pour vous assurer un confort de vie et conformément à la RE2025, nous avons choisi un mode de chauffage par PAC + plancher chauffant, volets roulants électriques. Prix hors fourniture et pose : des appareils sanitaires (sauf système de chauffage et d'eau chaude sanitaire), du carrelage et de la faïence, des revêtements de sol dans les chambres. Hors décoration et aménagement intérieur et peinture. Hors raccordements, frais de notaire et dommage ouvrage. // Réf. : 2559-209632-SBI. Prix terrain : 79 500 €, hors frais d'agence à la charge de l'acquéreur. Ce terrain vous est proposé, par nos partenaires fonciers, dans le cadre d'un projet de construction avec nous. Les informations sur les risques auxquels ce bien est exposé sont disponibles sur le site Géorisques (www.georisques.gouv.fr). Prix maison : 113 473 €.

Aubigny-Les Clouzeaux
TERRAIN ET MAISONTerrain viabilisé de 540 m² à Aubigny-les-Clouzeaux (85). À seulement quelques minutes de La Roche-sur-Yon, dans un environnement résidentiel calme. Proche des commerces, écoles et services. Compacte et fonctionnelle, cette maison de plain-pied vous propose un bel espace de vie lumineux, avec une grande baie vitrée donnant sur le jardin. Sa cuisine est ouverte sur le séjour et dispose d'un accès direct au cellier, et au garage intégré. Son espace nuit est composé de deux chambres avec rangements, d'une salle de bains et de wc séparés. Pour vous assurer un confort de vie et conformément à la RE2025, nous avons choisi un mode de chauffage par PAC + plancher chauffant, volets roulants électriques, Prix hors fourniture et pose : des appareils sanitaires (sauf système de chauffage et d'eau chaude sanitaire), du carrelage et de la faïence, des revêtements de sol dans les chambres. Hors décoration et aménagement intérieur et peinture. Hors raccordements, frais de notaire et dommage ouvrage. // Réf. : 2549-209632-SBI. Prix terrain : 79 500 €, hors frais d'agence à la charge de l'acquéreur. Ce terrain vous est proposé, par nos partenaires fonciers, dans le cadre d'un projet de construction avec nous. Les informations sur les risques auxquels ce bien est exposé sont disponibles sur le site Géorisques (www.georisques.gouv.fr). Prix maison : 124 870 €.

Aubigny-Les Clouzeaux
TERRAIN ET MAISONTerrain viabilisé de 540 m² à Aubigny-les-Clouzeaux (85). À seulement quelques minutes de La Roche-sur-Yon, dans un environnement résidentiel calme. Proche des commerces, écoles et services. Une maison idéale pour les petits terrains, sans compromis sur l’espace ! Grâce à son agencement optimisé, cette maison s’adapte parfaitement aux terrains de taille réduite tout en offrant des volumes généreux et un confort absolu. Le rez-de-chaussée accueille une pièce de vie ouverte et lumineuse, pensée pour favoriser la convivialité. Son agencement fluide entre le salon, la salle à manger et la cuisine permet un cadre chaleureux et moderne. Un cellier discret ajoute une solution de rangement pratique au quotidien. À l’étage, trois chambres confortables assurent à chacun son propre espace, tandis qu’une salle de bain fonctionnelle et des WC indépendants garantissent un confort optimal pour toute la famille. Un design contemporain et intelligent, parfait pour maximiser l’espace même sur une petite parcelle !. Pour vous assurer un confort de vie optimal et en conformité avec la RE2025, nous avons opté pour un système de chauffage par pompe à chaleur (PAC) avec plancher chauffant au rez-de-chaussée et radiateurs à l’étage. Le logement est également équipé de volets roulants électriques. Prix hors fourniture et pose : des appareils sanitaires (sauf système de chauffage et d'eau chaude sanitaire), du carrelage et de la faïence, des revêtements de sol dans les chambres. Hors décoration et aménagement intérieur et peinture. Hors raccordements, frais de notaire et dommage ouvrage. // Réf. : 2571-209632-SBI. Prix terrain : 79 500 €, hors frais d'agence à la charge de l'acquéreur. Ce terrain vous est proposé, par nos partenaires fonciers, dans le cadre d'un projet de construction avec nous. Les informations sur les risques auxquels ce bien est exposé sont disponibles sur le site Géorisques (www.georisques.gouv.fr). Prix maison : 154 572 €.

Aubigny-Les Clouzeaux
TERRAINTerrain viabilisé de 540 m² à Aubigny-les-Clouzeaux (85). À seulement quelques minutes de La Roche-sur-Yon, dans un environnement résidentiel calme. Proche des commerces, écoles et services. // Réf. : T209632. Prix terrain : 79 500 €, hors frais d'agence et de notaire à la charge de l'acquéreur. Ce terrain vous est proposé, par nos partenaires fonciers, dans le cadre d'un projet de construction avec nous. Les informations sur les risques auxquels ce bien est exposé sont disponibles sur le site Géorisques (www.georisques.gouv.fr).

Aubigny-Les Clouzeaux
TERRAINTerrain viabilisé de 540 m² à Aubigny-les-Clouzeaux (85). À seulement quelques minutes de La Roche-sur-Yon, dans un environnement résidentiel calme. Proche des commerces, écoles et services. // Réf. : T209632. Prix terrain : 79 500 €, hors frais d'agence et de notaire à la charge de l'acquéreur. Ce terrain vous est proposé, par nos partenaires fonciers, dans le cadre d'un projet de construction avec nous. Les informations sur les risques auxquels ce bien est exposé sont disponibles sur le site Géorisques (www.georisques.gouv.fr).

La Genétouze
TERRAINDécouvrez ce terrain idéalement situé dans le charmant lotissement de La Genétouze, offrant une superficie généreuse de 711 m², parfaitement viabilisé et prêt à accueillir votre projet de construction de maison. Ce bien représente une opportunité exceptionnelle pour concrétiser vos aspirations immobilières dans un cadre paisible et harmonieux. L’environnement verdoyant de la commune et son ambiance conviviale en font un lieu de vie idéal pour les familles et les professionnels en quête de tranquillité. La Genétouze, dans le département de la Vendée, est prisée pour sa convivialité et son dynamisme. La commune bénéficie de la proximité des commodités nécessaires à votre quotidien, telles que commerces, écoles et services de santé. De plus, le secteur regorge d’attractions locales, de paysages naturels remarquables et d’activités de plein air, garantissant un cadre de vie agréable et riche en possibilités. N’attendez plus pour profiter d’un cadre de vie paisible tout en étant à proximité des atouts de la région des Pays de la Loire. Ne laissez pas passer cette occasion unique d’acquérir un terrain prometteur dans un environnement privilégié. Contactez-nous pour plus d’informations. À noter qu’en tant que constructeur, nous ne sommes pas mandatés pour réaliser la vente de ce terrain.

La Genétouze
TERRAIN ET MAISONSur ce terrain, nous vous proposons cette maison neuve : l’INNOVA, une maison contemporaine absolument unique. Avec une surface de 130 m², cette demeure de plain-pied a tout de la maison d’architecte. La composition de ses différents corps en fait une maison d’un aspect magnifique tout en permettant une disposition intérieure extrêmement intéressante.L’INNOVA, le rêve d’une maison unique réalisable, se distingue par ses 4 chambres et ses 4 pièces principales. Vous y trouverez un porche accueillant, un garage accolé et un plancher chauffant, l’une des options les plus demandées par nos clients. Cette maison neuve est basse consommation et conforme à la RE2020, garantissant ainsi une efficacité énergétique optimale et un confort de vie exceptionnel. Construite par Maisons Privat, constructeur centenaire avec les meilleurs avis clients de la région, l’INNOVA est une opportunité rare de vivre dans une maison moderne, élégante et respectueuse de l’environnement.Ne manquez pas cette chance unique de devenir propriétaire d’une maison INNOVA, où chaque détail a été pensé pour votre bien-être et votre satisfaction. Contactez-nous dès aujourd’hui pour plus d’informations et pour planifier une visite.

Le Poiré-sur-Vie
TERRAINDécouvrez une opportunité rare d’acquérir un terrain de 598 m², idéalement situé au cœur du charmant lotissement du Poiré-sur-Vie, dans le département dynamique de la Vendée. Ce terrain viabilisé, prêt pour accueillir votre projet de construction, est parfait pour réaliser la maison de vos rêves. Avec une surface généreuse, ce bien se prête aussi bien à une construction moderne qu’à une architecture plus traditionnelle, vous offrant de nombreuses possibilités pour personnaliser votre futur chez-vous. Le Poiré-sur-Vie, une ville attractive de la région des Pays de la Loire, offre un cadre de vie agréable avec ses commodités à proximité. Profitez de la proximité des commerces, des écoles et des infrastructures sportives qui font de cette ville un lieu de vie apprécié des familles et des jeunes actifs. Sans oublier les nombreux sentiers de randonnée et espaces verts qui invitent à la détente, ainsi que les attractions locales qui sauront séduire tant les résidents que les visiteurs. Ce terrain constitue donc un point de départ idéal pour explorer tout le potentiel de cette belle région. Ne laissez pas passer cette opportunité unique d’investir dans un terrain au potentiel indéniable. Contactez-nous pour envisager cette possibilité d’achat qui pourrait donner vie à votre projet immobilier. À noter qu’en tant que constructeur, nous ne sommes pas mandatés pour réaliser la vente de ce terrain.

Le Poiré-sur-Vie
TERRAIN ET MAISONSur ce terrain, nous vous proposons cette superbe maison de plain-pied, alliant confort, modernité et praticité, idéale pour une famille en quête de bien-être.Avec son agencement optimisé, cette maison vous offre une spacieuse pièce de vie baignée de lumière naturelle, comprenant un séjour convivial et une cuisine ouverte fonctionnelle, parfaite pour des moments en famille ou entre amis.L’espace nuit se compose de trois belles chambres offrant confort et sérénité, d’une salle d’eau moderne et de WC séparés pour plus de praticité.Un garage intégré vient compléter ce bien, idéal pour stationner un véhicule ou disposer d’un espace de rangement supplémentaire.
L’actualité immobilière à Venansault





