Images
Description
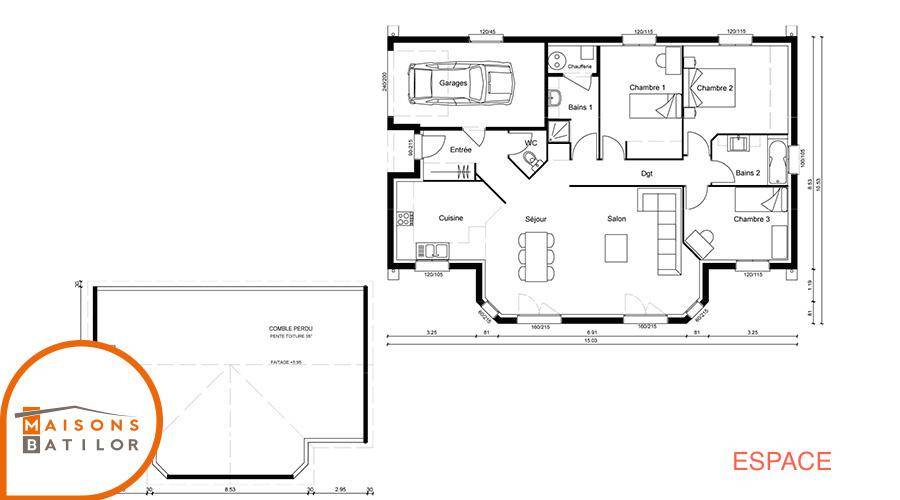
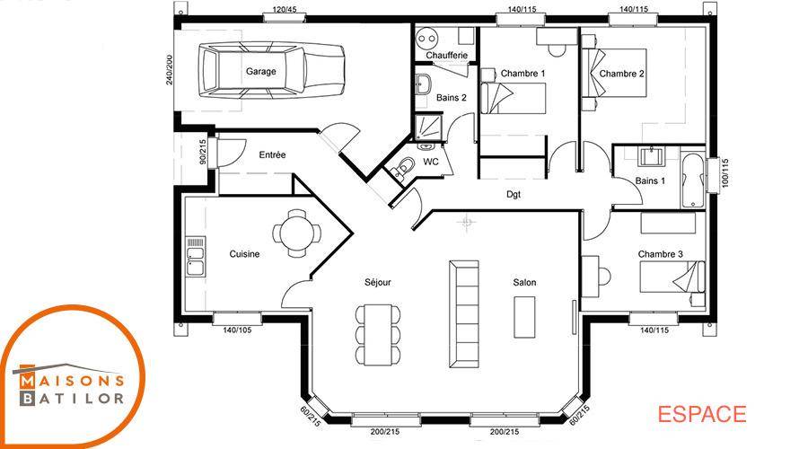
Nous vous proposons cette maison neuve, baptisée Espace, un modèle qui allie design et fonctionnalité, tout en affichant un charme très britannique. Avec une surface habitable de 106 m², cette maison est conçue pour maximiser l'espace et le confort de ses habitants. Elle se compose de 4 pièces, dont 3 chambres spacieuses, et bénéficie de deux salles de bains, garantissant ainsi une commodité optimale pour toute la famille.
L'un des atouts majeurs de ce modèle est son bow window, une fenêtre en saillie qui non seulement enrichit l'esthétique de la maison avec une touche d'élégance britannique, mais assure également une excellente luminosité dans les pièces de vie. Cette caractéristique, combinée à une construction principalement en briques, confère à la maison une isolation thermique et acoustique de qualité supérieure.
La maison Espace est également conçue pour répondre aux attentes les plus exigeantes en termes d'écologie et d'économie d'énergie. Elle est conforme à la réglementation thermique 2020 (RE2020), ce qui en fait une habitation basse consommation. Ce critère, de plus en plus recherché, assure non seulement un confort de vie inégalé tout au long de l'année, mais aussi des économies significatives sur les factures d'énergie.
Parmi les options les plus plébiscitées par nos clients et disponibles pour ce modèle, vous trouverez des aménagements supplémentaires pour personnaliser et optimiser votre espace selon vos besoins et vos envies.
En choisissant la maison Espace, vous optez pour une demeure de standing, écologique et économique, qui saura s'adapter à votre mode de vie tout en respectant l'environnement. Cette maison est une invitation à vivre dans un espace conçu pour le bien-être de ses occupants, où chaque détail a été pensé pour allier confort, esthétique et performance énergétique.
N'attendez plus pour faire de la maison Espace le lieu de vos futurs souvenirs. Contactez-nous pour plus d'informations et débutons ensemble le projet de votre nouvel
Logement susceptibles de vous intéresser
Nous vous proposons de découvrir aussi cette sélection de logements situés à moins de 10km de Charmois-devant-Bruyères et qui seraient susceptibles de vous intéresser.
Charmois-devant-Bruyères
TERRAINDécouvrez ce terrain exceptionnel à vendre, situé dans la charmante commune de Charmois-devant-Bruyères, dans les Vosges (88460). Avec une superficie généreuse de 1200 m², ce terrain viabilisé est idéal pour concevoir votre projet de construction de maison moderne ou traditionnelle. Bénéficiant d’un cadre naturel enchanteur, cet espace offre de nombreuses possibilités pour créer la maison de vos rêves, tout en profitant d’un environnement paisible et accueillant. Charmois-devant-Bruyères est une ville qui charme par sa qualité de vie et son dynamisme. Nichée dans la région Grand Est, cette commune vous permet d’accéder facilement aux merveilles des Vosges, avec ses paysages verdoyants et ses sentiers de randonnée pittoresques. À proximité, vous trouverez des commerces de proximité, des services médicaux, des écoles et des activités de loisirs, tout cela contribuant à l’attrait indéniable de cette localisation. Les habitants apprécient également la proximité des villes voisines, offrant un accès rapide à une plus large palette d’équipements et d’attractions. Ne laissez pas passer cette occasion unique de construire votre chez-vous dans un cadre idyllique. Ce terrain prometteur n’attend que vous pour libérer tout son potentiel. N’hésitez pas à nous contacter pour plus d’informations ! À noter qu’en tant que constructeur, nous ne sommes pas mandatés pour réaliser la vente de ce terrain.
Charmois-devant-Bruyères
TERRAIN ET MAISONNous vous proposons cette maison neuve, baptisée Espace, un modèle qui allie design et fonctionnalité, tout en affichant un charme très britannique. Avec une surface habitable de 106 m², cette maison est conçue pour maximiser l’espace et le confort de ses habitants. Elle se compose de 4 pièces, dont 3 chambres spacieuses, et bénéficie de deux salles de bains, garantissant ainsi une commodité optimale pour toute la famille.L’un des atouts majeurs de ce modèle est son bow window, une fenêtre en saillie qui non seulement enrichit l’esthétique de la maison avec une touche d’élégance britannique, mais assure également une excellente luminosité dans les pièces de vie. Cette caractéristique, combinée à une construction principalement en briques, confère à la maison une isolation thermique et acoustique de qualité supérieure.La maison Espace est également conçue pour répondre aux attentes les plus exigeantes en termes d’écologie et d’économie d’énergie. Elle est conforme à la réglementation thermique 2020 (RE2020), ce qui en fait une habitation basse consommation. Ce critère, de plus en plus recherché, assure non seulement un confort de vie inégalé tout au long de l’année, mais aussi des économies significatives sur les factures d’énergie.Parmi les options les plus plébiscitées par nos clients et disponibles pour ce modèle, vous trouverez des aménagements supplémentaires pour personnaliser et optimiser votre espace selon vos besoins et vos envies.En choisissant la maison Espace, vous optez pour une demeure de standing, écologique et économique, qui saura s’adapter à votre mode de vie tout en respectant l’environnement. Cette maison est une invitation à vivre dans un espace conçu pour le bien-être de ses occupants, où chaque détail a été pensé pour allier confort, esthétique et performance énergétique.N’attendez plus pour faire de la maison Espace le lieu de vos futurs souvenirs. Contactez-nous pour plus d’informations et débutons ensemble le projet de votre nouvel
Pouxeux
TERRAIN0Découvrez ce terrain de 900 m², idéalement situé à Pouxeux, une ville charmante des Vosges, dans la région Grand Est. Parfait pour la réalisation de votre projet de construction de maison, ce terrain déjà viabilisé offre de nombreuses possibilités pour créer l’habitat de vos rêves, tout en garantissant un cadre de vie paisible et agréable. Sa configuration arborée et calme vous promet un environnement serein, en phase avec votre désir de tranquillité. Situé à proximité des commodités, vous profiterez d’un accès facilité aux commerces locaux, aux services essentiels, et aux activités de loisirs des alentours. Les attraits de la région sont également nombreux, avec des paysages naturels époustouflants propices aux promenades et aux activités en plein air. Pouxeux, avec son ambiance conviviale et son esprit de communauté, est le lieu idéal pour vous établir et élever votre famille dans un cadre harmonieux. Ne manquez pas cette opportunité exceptionnelle d’acquérir un terrain au potentiel remarquable. Contactez-nous dès aujourd’hui pour découvrir cette offre unique ! À noter qu’en tant que constructeur, nous ne sommes pas mandatés pour réaliser la vente de ce terrain.
Pouxeux
TERRAIN ET MAISONNous vous proposons cette maison neuve, baptisée la Belmontoise, un modèle qui allie élégance et fonctionnalité dans un design moderne en L. Avec une surface habitable de 81 m², cette maison est parfaitement conçue pour répondre aux besoins d’une vie familiale épanouie, offrant 3 chambres confortables et un total de 4 pièces bien agencées pour maximiser l’espace et la lumière naturelle.La Belmontoise se distingue par son architecture en L, permettant une séparation naturelle des espaces de vie et offrant une intimité accrue aux chambres. L’intégration d’un garage, directement accessible depuis la maison, ajoute un aspect pratique indéniable, tout en préservant l’esthétique globale de la construction.Construite dans le respect des normes RE2020, cette maison basse consommation est un choix judicieux pour ceux qui cherchent à minimiser leur empreinte écologique tout en bénéficiant d’un confort optimal. Les matériaux et techniques de construction avancés garantissent une isolation supérieure, réduisant ainsi les besoins en chauffage et en climatisation.Parmi les options les plus plébiscitées par nos clients, vous trouverez le crépis coloré, qui permet de personnaliser l’extérieur de votre maison selon vos goûts, ainsi que les menuiseries en aluminium, reconnues pour leur durabilité et leur facilité d’entretien. Vous aurez également le choix entre un toit à 2 ou 4 pans, vous permettant d’adapter l’esthétique de votre maison à vos préférences personnelles.La Belmontoise est plus qu’une maison ; c’est un foyer conçu pour s’adapter à diverses configurations de terrains, offrant ainsi une flexibilité rarement égalée. Que vous disposiez d’un terrain en lotissement ou d’un espace plus sauvage, ce modèle saura s’intégrer harmonieusement à son environnement, tout en répondant à vos attentes en termes de design, de confort et de performance énergétique.Choisir la Belmontoise, c’est opter pour une maison qui grandira avec vous, en alliant esthétique moderne, fonctionnal
Charmois-devant-Bruyères
TERRAINDécouvrez ce magnifique terrain à vendre d’une superficie de 1466 m², situé à Charmois-devant-Bruyères, dans le département des Vosges, au cœur de la région Grand Est. Ce bien est entièrement viabilisé, offrant une opportunité idéale pour la construction de votre maison de rêve. Avec son cadre naturel paisible et ses caractéristiques uniques, ce terrain vous permettra de réaliser un projet de vie qui vous ressemble. Charmois-devant-Bruyères est une ville dynamique, entourée de paysages verdoyants et de montagnes pittoresques, où vous pourrez profiter de nombreuses activités de plein air, comme la randonnée et le VTT. La localité s’impose comme un point de rendez-vous pour les amateurs de nature et de tranquillité, tout en bénéficiant de commodités essentielles à proximité telles que des commerces, des écoles et des services de santé. La proximité des grandes villes et des axes routiers facilite également l’accès aux infrastructures et aux divertissements. Ce terrain, au potentiel inégalé, offre ainsi un cadre de vie idéal dans une région prisée. N’attendez plus pour découvrir ce terrain d’exception qui pourrait devenir le lieu de vos futurs souvenirs. Contactez-nous pour envisager cette belle opportunité d’achat unique. À noter qu’en tant que constructeur, nous ne sommes pas mandatés pour réaliser la vente de ce terrain.
Charmois-devant-Bruyères
TERRAIN ET MAISONNous vous proposons cette maison neuve, baptisée Lubéronne, qui incarne l’élégance et le confort moderne tout en s’inspirant du charme intemporel provençal. Avec une surface généreuse de 135 m², cette demeure est conçue pour répondre aux attentes des plus exigeants, alliant fonctionnalité et esthétique.La Lubéronne se distingue par sa tour caractéristique, offrant une avancée architecturale remarquable, et sa galerie, qui invite à la détente et à la contemplation des paysages environnants. Le double garage spacieux assure un confort pratique au quotidien, répondant ainsi aux besoins de stationnement et de rangement.Cette maison est composée de 4 chambres confortables, regroupées dans la tour pour préserver l’intimité de chacun, et de 4 pièces lumineuses, dont une partie jour significative qui baigne l’espace de vie en lumière naturelle, créant une atmosphère chaleureuse et accueillante.Les options les plus plébiscitées, telles que les menuiseries en aluminium, la domotique pour une maison connectée et un crépis coloré, sont disponibles pour personnaliser votre maison selon vos goûts et vos besoins. Ces éléments ajoutent une touche de modernité et de confort, faisant de la Lubéronne un lieu de vie unique et personnalisé.Construite dans le respect des normes de la RE2020, cette maison neuve est synonyme de basse consommation, garantissant ainsi une efficacité énergétique optimale et un respect de l’environnement. Ce choix responsable contribue à réduire les dépenses énergétiques tout en offrant un cadre de vie sain et agréable.La Lubéronne, avec son style provençal revisité et ses prestations de qualité, est proposée en 3 plans différents, permettant de s’adapter à vos projets de vie et à vos envies. Faites le choix d’une maison qui allie tradition et innovation, pour un quotidien empreint de bien-être.
Deyvillers
TERRAINTerrain à vendre à Deyvillers – Idéal pour votre projet de construction Découvrez ce terrain exceptionnel de 2724 m², parfaitement viabilisé et prêt à accueillir votre future maison. Situé dans la charmante commune de Deyvillers, ce terrain se distingue par son emplacement privilégié en pleine nature, tout en offrant la proximité des commodités nécessaires à votre confort quotidien. Son terrain plat, ensoleillé et au calme promet une qualité de vie inestimable, vous permettant de profiter d’un cadre champêtre tout en étant à deux pas des attraits de la ville. Ne manquez pas cette opportunité unique, idéal pour un projet de construction sur mesure. Deyvillers, situé dans le département des Vosges en région Grand Est, est une commune qui allie tranquillité et accessibilité. Vous serez enchanté par ses paysages sereins et verdoyants. De plus, la ville offre un accès facile aux infrastructures locales telles que commerces, écoles et services de santé, tout en étant idéalement situé à proximité des grandes villes. En choisissant ce terrain, vous investissez dans un environnement propice à l’épanouissement familial, avec des activités de plein air plaisantes aux alentours, garantissant une qualité de vie propre à séduire les amoureux de la nature. Ce terrain à Deyvillers est une véritable aubaine pour les acheteurs recherchant un emplacement idéal pour construire une maison de rêve. N’attendez plus pour saisir cette opportunité unique d’acquérir un bien rare sur le marché. À noter qu’en tant que constructeur, nous ne sommes pas mandatés pour réaliser la vente de ce terrain.
Deyvillers
TERRAIN ET MAISONNous vous proposons cette maison neuve, baptisée Lubéronne, qui incarne l’élégance et le confort moderne tout en s’inspirant du charme intemporel provençal. Avec une surface généreuse de 135 m², cette demeure est conçue pour répondre aux attentes des plus exigeants, alliant fonctionnalité et esthétique.La Lubéronne se distingue par sa tour caractéristique, offrant une avancée architecturale remarquable, et sa galerie, qui invite à la détente et à la contemplation des paysages environnants. Le double garage spacieux assure un confort pratique au quotidien, répondant ainsi aux besoins de stationnement et de rangement.Cette maison est composée de 4 chambres confortables, regroupées dans la tour pour préserver l’intimité de chacun, et de 4 pièces lumineuses, dont une partie jour significative qui baigne l’espace de vie en lumière naturelle, créant une atmosphère chaleureuse et accueillante.Les options les plus plébiscitées, telles que les menuiseries en aluminium, la domotique pour une maison connectée et un crépis coloré, sont disponibles pour personnaliser votre maison selon vos goûts et vos besoins. Ces éléments ajoutent une touche de modernité et de confort, faisant de la Lubéronne un lieu de vie unique et personnalisé.Construite dans le respect des normes de la RE2020, cette maison neuve est synonyme de basse consommation, garantissant ainsi une efficacité énergétique optimale et un respect de l’environnement. Ce choix responsable contribue à réduire les dépenses énergétiques tout en offrant un cadre de vie sain et agréable.La Lubéronne, avec son style provençal revisité et ses prestations de qualité, est proposée en 3 plans différents, permettant de s’adapter à vos projets de vie et à vos envies. Faites le choix d’une maison qui allie tradition et innovation, pour un quotidien empreint de bien-être.
Épinal
TERRAIN ET MAISONSur ce terrain, nous vous proposons cette maison neuve, la Sommière, conçue par Babeau-Seguin, constructeur offrant le meilleur rapport qualité/prix du marché. Avec une surface de 107 m², cette maison moderne en L se distingue par son design élégant et ses nombreuses options de personnalisation.La Sommière dispose de 4 chambres spacieuses et de 4 pièces, offrant un espace de vie confortable et fonctionnel pour toute la famille. Vous avez la possibilité de choisir entre un toit à 2 pans ou à 4 pans, selon vos préférences esthétiques et architecturales. De plus, cette maison peut être équipée d’un garage ou d’un sous-sol, selon vos besoins spécifiques.Cette maison neuve est basse consommation et conforme à la RE2020, garantissant une performance énergétique optimale et des économies sur vos factures d’énergie. La Sommière est disponible en plus de 10 versions, allant d’une surface de 78 m² à 148 m², ce qui en fait la maison plain-pied la plus déclinée de toute notre gamme.Avec ou sans garage intégré, avec ou sans galerie, la Sommière s’adapte parfaitement aux besoins et aux attentes de chacun. Nous lui décernons sans hésitation le prix de la maison sur mesure !Ne manquez pas cette opportunité unique de faire construire une maison qui répondra à toutes vos attentes et vous offrira un cadre de vie exceptionnel. Contactez-nous dès maintenant pour plus d’informations et pour découvrir toutes les options disponibles pour personnaliser votre future maison Sommière.
L’actualité immobilière à Charmois-devant-Bruyères
27/11/2023
02/11/2023
30/10/2023
20/10/2023
16/10/2023
16/10/2023